I came to the conclusion to increase the width of the room to 3.8 m and to discard the extra wall behind. To do this, I found the opportunity to move the door one meter forward from the back wall. Now my room's ratio is 1: 1.38: 1.89 which is close to the 1: 1.40: 1.90 ratio of M.M. Louden.

That's excellent! A bigger room, with a better ratio, and the door moved out of the corner. Those are three very good improvements!
I understand that it doesn't matter in a small room, but I'm glad to know that I have at least a good ratio
It's not that the ratio doesn't matter at all: Rather, the ratio is just one factor to consider as you design the studio. The problem here is that some people take "room ratios" much too seriously, and try to make changes that really are not that useful. A good ratio is nice too have, and useful, but there are other things that are just as important, or even more important: Such as room volume (as big as possible), and keeping the corners free for bass trapping...

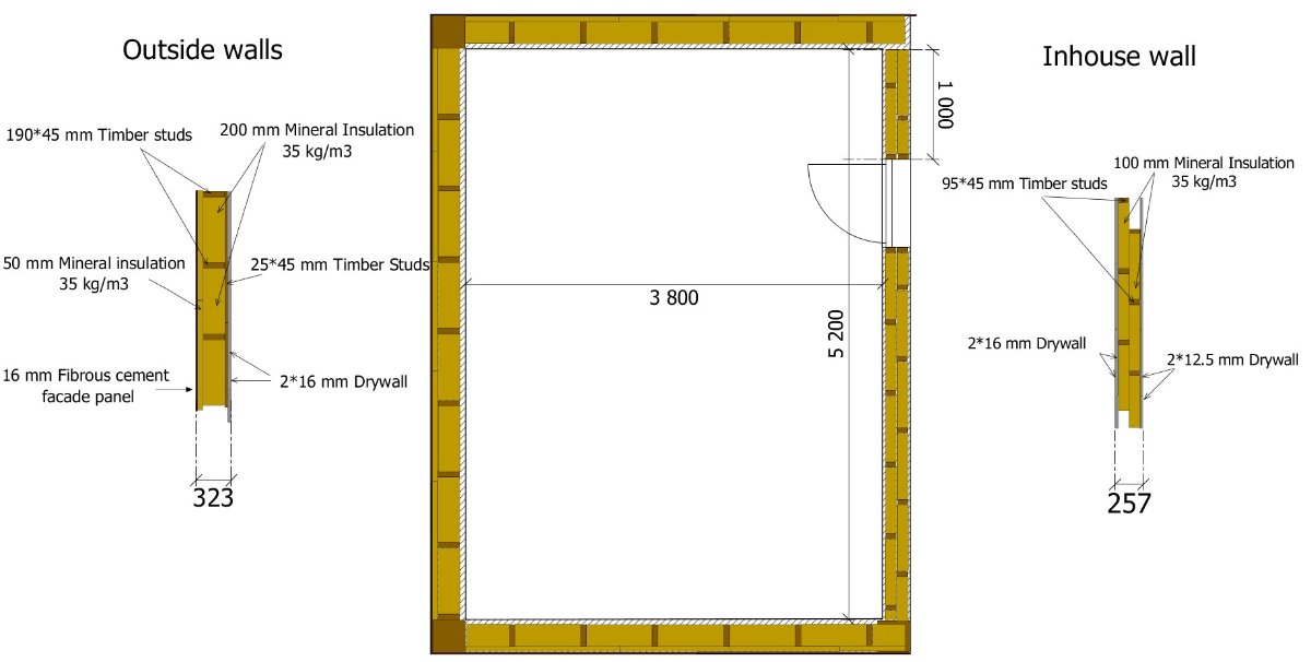
The room size is now 5.2 * 3.8 * 2.75.

Much better! That is very nearly 20m2 floor area, which is the minimum recommended for a "critical listening" room, so you are fine there. And the 2.75 m ceiling height is also great.
After consulting with my construction engineer, we decided to change the design of the inner wall from one frame to a double frame.
Yet another important change! That will definitely help to improve the isolation.
Do you think this will help improve structure-borne noise insulation between the home and the control room?
Definitely.
External facade fiber cement slabs are a ventilated facade. That is, there is a 2-3 cm ventilation gap between the waterproof membrane and these plates. This means that only the inner double layer of the drywall is responsible for the sound insulation of the three outer walls.
Hmmm.... Not so good. That's a problem. If that outer leaf is ventilated, then you don't have a proper 2-leaf MSM wall. Here's some useful information on that:
What is "room-in-a-room" construction? What is "MSM"? How does it work?So, we'll have to figure out a way of creating a proper "outer leaf" for you, in addition to the "real" outer leaf. This does mean that you will have a 3-leaf system, instead of the normal 2-leaf system, which means lower isolation.... however, we can compensate for that with the wall design.
So I want to ask what can be done? For example, I can glue a membrane with a density of 4 kg / m2 between layers of drywall. Will this help improve the insulation of the outer walls?
That sounds like you are talking about MLV (Mass Loaded Vinyl), or something similar? That would increase the mass, yes, but not enough to be useful by itself. If the wall cavity is ventilated, then basically your isolation is subject to a principle of physics called "mass law", and the equation for that is simple:
TL = 14.5 log (M * 0.205) + 23 dB
Where: M = Surface density in kg/m2
If you plug in your total mass values there, you0ll see that you can't get good isolation unless you have VERY high mass. That's why studios are normally built with 2-leaf "MSM" walls, because MSM is a very different principle of physics. The equations for that are more complex, but basically you get a LOT more isolation for the same amount of mass.
Or, green glue or similar sealant can be used.
Green Glue is great, but it is not a sealant. It is a very special type of product, in the form of a visco-elastic polymer", which basically means that it is gooey and soft, and rubber, and stretches, and also does other good things. Technically, it acts as a "constrained layer damping material", which is just a fancy way of saying that it is held in place by the layers on each side, and when one of them vibrates, it "damps" the motion of the vibration, preventing it fro getting through to the other side. It is a bit more complex than that, but it works very well, and in fact there is no other product as good. It is not a sealant, and it is not glue (despite the name!). I really wish they would have used another name originally, because it isn't glue! Here's something I wrote about that, a coupe of months ago:
The truth about Green GlueOK, so even though Green Glue is very good, it still won't do what you are wanting it to do. It works best when it is part of a proper two-leaf wall.
This is in addition to the isolation clips. I would like to avoid building a room in a room, but if there are no other options to make the required level of isolation, then I have to do it
Does that outer leaf HAVE to be ventilated? IS there any way you can fix that, so that the outer leaf is NOT ventilated? Some way of sealing up the wall? If you can do that then you are fine! You don't need to make any other changes.
What do you mean ineffective for music? I thought it was important to suppress the noise of moving air in the ducts so that in the control room this noise was as quiet as possible. And these mufflers cope with this task? But what does it mean that they are not suitable for music? Will you hear music from the control room throughout the house?
Yes you will hear music in the house. You will also hear house sounds getting into your studio, such as the phone ringing, vacuum cleaner, TV, radio, washing machine, etc. Sound travels very well through pipes and ducts. In fact, it travels so well that "speaking tubes" or "sound pipes" were the normal method for communicating on ships:
The captain had several tubes, going to different places in the ship, to give instructions. This was before telephones were used... however:
Those are both modern warships! The first photo is from 2009, the second one from 2013. They still use them today, because they are reliable, always work, and do not need any electrical power. So even if the ship is heavily damaged, has no power, and no telephones, the captain can sill communicate.
Those are just ordinary metal pipes: nothing special. An HVAC duct is very similar, and does, indeed, conduct sound very well, even over long distances. (Speaking tubes on ships were sometimes as long as 80 or 90 m (about 300 feet).
So you need silencers to stop the music from getting through, and also to stop house sounds from bothering you as you try to mix quiet tracks.
Good. And if instead of these absorbers I cover the entire back wall with hangers, will it be effective? Let's say a layer of hangers a meter deep? Or is this also not enough to drop to 33 hertz (the first axial mode in the room)?
The wavelength for 33 Hz is about 10 meters (34 feet). Acoustic theory says that you can get useful acoustic absorption using porous absorbers of just 1/16 wave, which works out to about 60 cm (about 23 inches) in your case, so if you were to use pure absorption, it would have to be about 60cm thick. Hangers are a bit different, and you can get by with slightly less, depending on the angle and size. Probably about 50cm would be the minimum. Of course, more is better!
However, you don't really need to have them that deep across the entire wall: its the corners that are important. So you could make them maybe 80cm or so deep in the corners, but then angle them back diagonally to be maybe 30cm or so across the middle of the wall, like this:
That's a room that is currently under construction by one of my clients, who wants to remain anonymous for now. The room is basically completed now, and we are just in the final precision tuning stage. You can see in the first photo, how the hanger in the corners are larger than the other ones across the middle, and how they get progressively smaller away from the corners. The other two images show the room after the fabric covers were put on, and the slats added, so you can see how to hide them neatly.
You could do something like that in your room.
I could also hang hangers on the side walls, but with less depth.
You don't need hangers on the side walls. You will need some type of treatment, yes, but not hangers. Take a look at the Studio 3 Productions thread, and you'll see some photos that show the side walls: What I did there, was three panels on each side wall, with different treatment inside each one, as needed for the position and the problems at that position. You can see some of that here, under construction:
... and completed ...
In the case of the anonymous studio above, I did something similar, put the panels are different, because he room had different problems that needed treating.
The panels are shaped differently here, and deeper too, because I needed to do some more complicated things there, but they are not as tall because there's no serious issues higher up in this room.
So, yes, you will need side wall treatment, but not hangers. It should be designed specifically for the acoustic problems in your room, if you want the best possible acoustic response, or they could just be more "generic" panels if you don't need such high accuracy.
If possible, one would like to avoid membrane absorbers, as it seems that they are very difficult to manufacture.
Ahhh, well, they are only difficult to make if the design is complicated! With a simple design, they can be simple to build as well...

But if I don't have other options, then of course I will take a drill and a hammer in my hands and make them, although it will not be easy for a person who has never worked with wood
After you do the framing and the hangers, you will have worked with a lot of wood!

So you'll be able to do things that are a bit harder...
Yes, this room turned out great! I would like to get closer to the same result in my control room,
You probably won't be able to get exactly those results, because that room is much bigger than yours, and there's a HUGE amount of treatment in there, but you can still get very good results in your room. Here's another construction photo, from the early days, showing the very large amount of porous absorption that went in, above the front of the room.
Obviously, you room is not big enough to do that, but it is big enough to do other things and still get good acoustic response. Sometimes I see acoustic "experts" talking about it being silly to try to treat small rooms, saying that it is a waste of time, but that simply is not true. I have even heard of a couple of them that refuse to take on a project if the room is not a certain size!

I think they just say that because they don't know HOW to treat small rooms successfully!

In fact, it is easy to treat large room and get good results, so that0s probably why they only want to do large rooms... The big challenge in acoustic design is to treat a small room to sound great: Maybe they don't like challenges...
But in reality it isn't hard to make a drastic improvement in most small rooms. The majority of home studio builders do not have a large room, and they just want to make a small room usable: that is very possible, and does not require extreme treatment. Modest treatment can already get very noticeable, very useful improvements, and that's what most home studio builders need. And with a bit more work, and careful analysis, and careful design, it is possible to make a small room like yours, REALLY good. It all depends on how much time and money you want to invest in it.
I'll think about that as we get closer to the design of the ceilings. Now we need to deal with sound insulation.

If you can build those three external walls without making them vented, then you would solve the problem. If not, then we can look at other ways of getting good isolation.
- Stuart -