Multi-purpose Music/Home Theater/Recording Studio

Start your own studio thread here: Goals, plans, layouts, treatment, speakers, questions, queries, comments...
goodwater
Active Member
Posts: 73
Joined: Sun, 2022-May-08, 22:45
Location: Canada, Saguenay (Quebec province)

Multi-purpose Music/Home Theater/Recording Studio

#31

Postby goodwater » Sun, 2025-Jul-20, 21:14

Thank you Glenn.

Rereading my previous post, there is a mistake: for the first layer of the ceiling, I will use 1 5/8 inch screws (the same as for the walls) so that the screws do not protrude beyond the slats.

Some additional questions:

  1. a) In my design above, I seal the corners after installing all the sheets – ceiling and walls (arrow 1). However, in your diagram below, I understand that the ceiling sheets are sealed before the wall sheets are installed (arrow 2), so double sealing. Would it be beneficial for me to do this?

    b) Is the backer rod really essential or only if the gap is too large (e.g. more than ¼ inch)?

    c) I seem to have read somewhere that the sealant should only touch 2 surfaces but on your diagram it also touches the backer rod, so 3 surfaces... Can you clarify this for me?

    seal.JPG

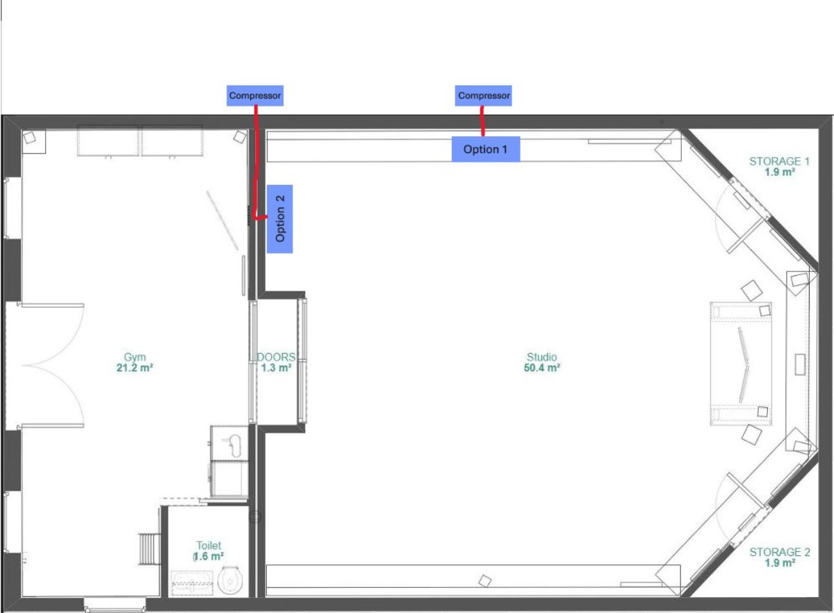
  2. Context: In my first post I wrote : " I am not sure if I will need an air conditioner (mini-split system) but I intend to do what is necessary in anticipation (circuit breaker, electrical cable, hole in the wall to the outside, sealant, etc ...) ”. I realized that the humidity level outside is higher from year to year (not all summer but at times) and despite the fact that the exterior wall is well insulated and sealed, the humidity manages to enter. And since it is well insulated, it remains inside for a long time. And when the ERV is working, it could be worse because it will pump humid air from outside.

    The ERV is not a dehumidifier, but a mini-split system can act as a dehumidifier. This led me to seriously consider installing one during the studio construction. This also made me realize how big the hole in my two layers of drywall behind the indoor unit is: 2.25 inches. Additionally, it requires another hole for the electrical wire that powers the system. Even though it will be well sealed, I'm afraid it will affect the isolation.

    Initially I was thinking of putting the indoor unit on the north wall (Option 1) but another idea emerged: putting it on the wall that separates the gym (Option 2). This way the holes to the outside will be between the two walls.

    Question: Is option #1 really likely to reduce isolation and therefore I should opt for option #2?

    minisplit.JPG

Thanks again!
Stef



User avatar
gullfo
Senior Member
Posts: 791
Joined: Fri, 2021-Jun-25, 14:50
Location: Panama City Beach, FL USA

Multi-purpose Music/Home Theater/Recording Studio

#32

Postby gullfo » Tue, 2025-Jul-22, 10:46

the caulk needs 3 points of contact to ensure it stays sealed. the multiple layers of it also ensure when things shift, there is still a high probability that something will continue seal those gaps...

i would prefer option 2 and if possible place the unit above the door for symmetrical noise and flow.

the ERV / HRV are not humifiers / dehumidifiers, they do possess energy conservation and in some cases, balace of humidity. more importantly - FRESH AIR - not only required to stay alive, but in most cases required by law... EVR / HRV units will provide the air you need to live. plus filtering it, plus energy savings.

you will need to install duct work to faciliate it. i recommend wll-ceiling soffits to distribute the ducts. the ERV unit should sit outside your studio and be installed on isolation suspension (hangers) - see kinetics noise https://kineticsnoise.com/rh/neoprene-isolation-hanger for an example.



goodwater
Active Member
Posts: 73
Joined: Sun, 2022-May-08, 22:45
Location: Canada, Saguenay (Quebec province)

Multi-purpose Music/Home Theater/Recording Studio

#33

Postby goodwater » Tue, 2025-Jul-22, 12:03

Very good and very logical. So I'll seal it to death and with my new DeWalt Caulking Gun it will even be very pleasant! :D

Regarding the ERV, it's in the gym and I used the chains that came with the machine. They're supposed to be anti-vibration chains... Do you think that's enough or should I decouple the screw from the slat? (Maybe by screwing a piece of thick rubber into the slat and then screwing the chain into the rubber?)

minisplit.JPG

ERV.JPG



User avatar
gullfo
Senior Member
Posts: 791
Joined: Fri, 2021-Jun-25, 14:50
Location: Panama City Beach, FL USA

Multi-purpose Music/Home Theater/Recording Studio

#34

Postby gullfo » Thu, 2025-Jul-24, 11:47

the chains are still a direct contact. you need a decoupler between. i've seen homebrew decouplers like plumbing washers (the thick soft rubber rings) which break the chain direct connection - should use several to distribute the weight and ensure the ring isn't stretched too much otherwise it defeats the purpose. best bet though - get proper ones.



goodwater
Active Member
Posts: 73
Joined: Sun, 2022-May-08, 22:45
Location: Canada, Saguenay (Quebec province)

Multi-purpose Music/Home Theater/Recording Studio

#35

Postby goodwater » Tue, 2025-Aug-05, 16:59

gullfo wrote:Source of the post i would prefer option 2 and if possible place the unit above the door for symmetrical noise and flow.


My original idea was to use the top of the doors for storage, but it's not a very large storage space. So to place the unit above the door, I have to build a 2x4 (maybe 2x3) frame up to the ceiling, closed with drywall.

minisplit3.JPG


My question is about the drywall. Do I put the 2 layers of drywall on the second wall as planned (the wall behind the new frame) and cover the new frame with a 1/2 layer of drywall or do I put the 2 layers on the new frame and nothing behind it?

minisplit2.JPG


Do I have to put wool inside?

What would be the best way to do this?
The frame dimensions are 16x32x80 inches.

Stef



User avatar
gullfo
Senior Member
Posts: 791
Joined: Fri, 2021-Jun-25, 14:50
Location: Panama City Beach, FL USA

Multi-purpose Music/Home Theater/Recording Studio

#36

Postby gullfo » Tue, 2025-Aug-12, 20:58

presuming the AC unit is going into that frame - you'd want the wall behind it to be the same mass as the rest of the room. the box itself can be light weight as it's mainly a "cover" around the unit. all the wiring, plumbing etc is hidden.



goodwater
Active Member
Posts: 73
Joined: Sun, 2022-May-08, 22:45
Location: Canada, Saguenay (Quebec province)

Multi-purpose Music/Home Theater/Recording Studio

#37

Postby goodwater » Wed, 2025-Aug-13, 08:49

The indoor unit will actually be mounted on the front of the box wall. The wiring and plumbing will enter the box from the back of the unit, run between the two walls separating the gym, and down to the hole in the exterior wall to connect to the outdoor unit.

Gree.JPG


The outdoor unit will be mounted on brackets (similar to the ones in this photo) which will be mounted on the concrete foundation.

Gree2.JPG


But I'm hesitating between brackets or a support on concrete tiles.

Gree3.JPG



User avatar
gullfo
Senior Member
Posts: 791
Joined: Fri, 2021-Jun-25, 14:50
Location: Panama City Beach, FL USA

Multi-purpose Music/Home Theater/Recording Studio

#38

Postby gullfo » Sun, 2025-Aug-17, 17:32

mounting on brackets attached to your build simply adds vibrations to your building... so i'd go with a detached concrete slab unless you're prone to flooding... remember in your planning to determine your drainage lines as well - sloped minimum 1/4:12 to ensure things drain, and also ensure the end of the drain jas a screen to keep bugs out :-)



goodwater
Active Member
Posts: 73
Joined: Sun, 2022-May-08, 22:45
Location: Canada, Saguenay (Quebec province)

Multi-purpose Music/Home Theater/Recording Studio

#39

Postby goodwater » Fri, 2025-Sep-05, 11:04

Thanks Glenn. As you could read in my construction thread, I followed your advice and didn't place the outdoor unit directly on the foundation. It didn't cost any extra! ;)

I continue with electrical and lighting design.

My electrical panel has two phases. It's connected to the main electrical panel of the house, which has a ground connection. So far, I've connected all the circuits (breakers) to the same phase (lighting and outlets in the gym, the ERV unit, water heater, etc.). There are only two exceptions: the 50A circuit breaker for the radiant floor heating system and the dual 15A circuit breaker for the mini-split air conditioner. For the studio, the lighting and two accessory outlets will also be on this phase. All other outlets in the studio will be on the other phase and will be used for the computer, monitors, speakers, synthesizers, console, rack-mounted equipment, amplifiers, stereo system, turntable, etc.

Panel.JPG


My wife and I decided to renovate our bathroom. We hired a company to handle the design and construction work, and the designer they assigned to us is excellent. So, I decided to hire him to help me with the interior design of my studio, including the lighting. Instead of extending the ceiling panels to the walls of the storage area and the front wall (as in my original plan), he suggests extending them to the back wall and also installing recessed lighting there.

New Soffit.JPG


Here is the plan and the details:

Electrical Plan.JPG


  • red circle = recessed LED light on 1 dimmer (including 4 lights in the cloud on a second dimmer)
  • black = three 12 feet tracks with LED heads on a third dimmer
  • red rectangle = Ceiling light in the storage, also LED
  • orange squares = Accessory outlets (not on the studio phase, except for the one in the workshop area)
  • blue squares = studio outlets (1x 15A for the 2 outlets on the south wall, 1x 15A for the 2 outlets on the north wall, 2x 20A for the 4 outlets on the wall behind the control room area)
  • green squares = light switch or dimmer

Here's an overview of what it should look like (on this version the tracks are not positioned exactly as I described and the TV isn't at the right height):

New Design1.JPG

New Design2.JPG
New Design2.JPG (46.28 KiB) Viewed 18316 times
New Design2.JPG
New Design2.JPG (46.28 KiB) Viewed 18316 times


QUESTIONS:

  1. Does my design make sense? Is anything missing?
  2. As you can see, there's no projector or large screen. Instead, for roughly the same price, I could get an 85-inch TV. This would give me more flexibility for the design/installation of the cloud, and I could stream content directly from my phone. Do you see any disadvantages to using a TV instead of a projector, or any advantages to using a projector?

I will discuss CAT5 cabling for internet and Audio cabling in another post.

Stef

[/list]



User avatar
gullfo
Senior Member
Posts: 791
Joined: Fri, 2021-Jun-25, 14:50
Location: Panama City Beach, FL USA

Multi-purpose Music/Home Theater/Recording Studio

#40

Postby gullfo » Fri, 2025-Sep-05, 11:59

in the new design, for all intents and purposes the "front soffit" is effectively integrated into the front wall (a good thing and i do it all the time unless i need something deeper to accomodate larger ducts or interior ac units). and having the rear wall soffit - also good. as a generaly "rule" i start out my acoustics plans with the soffit around the entire perimeter of the rooms. then i can make decisions on the hvac, cabling, etc before i start considering all the other constructs like front walls, side wall treatments, back etc. plus it defines the remaining ceiling space for the clouds and diffusers.

i'm a big fan of big TVs. i have a 75in TV in my living room. if you're more than 8-9' away (2-1/2m - 3m) it forms a nice image. close up though, you can get fatigued if your vision-edge angles exceed something like 36° (similar to the basics in a home theater but since you're working on smaller details (typically) you would want it tighter). so for most studios i keep the "work" monitor < 48in and the "hype" monitors (if there is room or you're in a large live room) < 90in.



goodwater
Active Member
Posts: 73
Joined: Sun, 2022-May-08, 22:45
Location: Canada, Saguenay (Quebec province)

Multi-purpose Music/Home Theater/Recording Studio

#41

Postby goodwater » Sat, 2025-Sep-06, 11:43

gullfo wrote:Source of the post 'm a big fan of big TVs. i have a 75in TV in my living room.

:D

Since the TV will also be used as a computer monitor, should I plug it into an outlet that is connected to the "Studio" phase in the panel?



User avatar
gullfo
Senior Member
Posts: 791
Joined: Fri, 2021-Jun-25, 14:50
Location: Panama City Beach, FL USA

Multi-purpose Music/Home Theater/Recording Studio

#42

Postby gullfo » Mon, 2025-Sep-08, 12:35

yes, i think you want it on the clean/computer power circuit to avoid noise via the HDMI connection.



goodwater
Active Member
Posts: 73
Joined: Sun, 2022-May-08, 22:45
Location: Canada, Saguenay (Quebec province)

Multi-purpose Music/Home Theater/Recording Studio

#43

Postby goodwater » Thu, 2025-Oct-02, 14:56

I know that I'm not yet at the stage of testing the room to determine the necessary acoustic treatments, but I think I'll definitely need some bass traps. Since I have some unused space above the two storage areas, I thought I could use that space to put some bass traps. I'm setting the ceiling height of the storage area at 8 feet, so there will be 2 feet of unused space above that. This gives approximately 36 cubic feet for each bass trap.

The red triangle represents the ceiling of the storage area, and the blue area represents the space for the bass trap.

bass trap.JPG


My idea is to use an absorbent material and leave an opening covered with fabric, similar to an acoustic panel, as shown in this plan :

Rear wall.JPG



Questions:

1) Is it too big?

2) I was thinking of filling the space with semi-rigid Rockwool insulation like these. Is there a specific product that's better for this purpose, or will any type of Rockwool work?

Rockwool.JPG


3) Is it better if I leave 4 inches of air space behind the Rockwool panels on both sides (the 6-feet sides)?

4) I know that I need to make sure the structure is strong enough. But does the frame have to be built in a specific way, or can I simply stack the Rockwool on top of the ceiling (non compressed) and make sure it stays in place?

Thank you!

Stef



User avatar
gullfo
Senior Member
Posts: 791
Joined: Fri, 2021-Jun-25, 14:50
Location: Panama City Beach, FL USA

Multi-purpose Music/Home Theater/Recording Studio

#44

Postby gullfo » Wed, 2025-Oct-08, 16:40

no such thing as a bass trap which is too big :-)
yes that insulation would work.
no, you can just fill the space
add some support framing and use chicken wire or other mesh to support each 12" of insulation so they don't compress over time



goodwater
Active Member
Posts: 73
Joined: Sun, 2022-May-08, 22:45
Location: Canada, Saguenay (Quebec province)

Multi-purpose Music/Home Theater/Recording Studio

#45

Postby goodwater » Tue, 2025-Oct-28, 12:30

gullfo wrote:Source of the post no such thing as a bass trap which is too big

:yahoo:

Actually, I would place them vertically like in a wall. By placing a piece of insulation horizontally, the height of the insulation is just high enough (the space is 22.5 inches and the insulation is 23 inches, so the insulation is compressed by only 1/2 inch and holds in place). The vertically placed pieces rest partly on the 2x3s on the sides and partly on the horizontal piece.

bt1.JPG

bt2.JPG

bt3.JPG

bt4.JPG

bt5.JPG


Is the absorption the same as if the pieces were all placed horizontally, one on top of the other?

Stef




  • Similar Topics
    Statistics
    Last post

Who is online

Users browsing this forum: No registered users and 25 guests