I want light and sound isolation
I want light and sound isolation
Hello all,
I'll repost soon with more general questions about my project. But for the moment I have a more specific question.
I'm converting an outbuilding into a rehearsal space. The 2 leaf system I'm in the process of designing is as follows:
Outer leaf: pisé construction (rammed earth), with a big barn door opening
Dedoupled Inner leaf: I'll construct it with wood, insulate with wood fiber panels, drywall interior.
The space will be used for teaching, rehearsing and basic recording.
I would like 80db of isolation if possible. And budget is my main concern.
My question has to do with the barn door opening. As is, the opening is about 2.5m wide by 4m high. The opening faces south and gets a lot of natural light, something that's missing in the rest of my house. So I'm aware that for sound isolation purposes, closing the opening and installing opaque doors on both leaves would give me the best sound isolation. But I've decided that having natural light (at least some of the time) is an essential element for me. In any case, a bay window or door will only be about 2.5m tall, so the remain 1.5m in height, I would simply close up with OSB and wood fiber panels.
So here are the options I see :
1. Bay windows/doors or sliding glass doors on both leaves, with about 30 cm between them. If standard commercial sliding glass doors get 35db reduction, how do I figure out what I would get with 2 of them, decoupled, seperated by 30cm? And would an acoustic curtain between them (able to be opened and closed) be a helpful addition?
2. Bay window/door on outer leaf, and something else that could be opened or closed as need on the inner leaf. Possibly a double door, or a big massive sliding industrial door (well sealed, of course). So while I'm teaching or doing something that doesn't require sound isolation, I can open the big door and have light, then close it when it's time to rock.
3. Vice versa for number 2: Big doors on the outside, glass on the inside
4. I have a crazy idea. I'll install glass on the inner leaf. As for the more isolating outter leaf, I could use the current barn door to create a "mobile wall". My rough idea is to put up drywall on the wood door frame, then attach wood fiber insulation panels. This whole structure would open and close. The key would be to do a fair amount of handy work in order to get the insulation panels slide in tight against the floors/walls/ceiling, and to get the drywall to close flush with the opening, and of course seal with weather proofing materials, etc.
Last question: obviously the glass doors I'm speaking of would be double glazed. If I use 2 of them, does that create a 4 leaf system?
What are your thoughts? Is there a way to have my light and sound isolation on a budget?
I'll repost soon with more general questions about my project. But for the moment I have a more specific question.
I'm converting an outbuilding into a rehearsal space. The 2 leaf system I'm in the process of designing is as follows:
Outer leaf: pisé construction (rammed earth), with a big barn door opening
Dedoupled Inner leaf: I'll construct it with wood, insulate with wood fiber panels, drywall interior.
The space will be used for teaching, rehearsing and basic recording.
I would like 80db of isolation if possible. And budget is my main concern.
My question has to do with the barn door opening. As is, the opening is about 2.5m wide by 4m high. The opening faces south and gets a lot of natural light, something that's missing in the rest of my house. So I'm aware that for sound isolation purposes, closing the opening and installing opaque doors on both leaves would give me the best sound isolation. But I've decided that having natural light (at least some of the time) is an essential element for me. In any case, a bay window or door will only be about 2.5m tall, so the remain 1.5m in height, I would simply close up with OSB and wood fiber panels.
So here are the options I see :
1. Bay windows/doors or sliding glass doors on both leaves, with about 30 cm between them. If standard commercial sliding glass doors get 35db reduction, how do I figure out what I would get with 2 of them, decoupled, seperated by 30cm? And would an acoustic curtain between them (able to be opened and closed) be a helpful addition?
2. Bay window/door on outer leaf, and something else that could be opened or closed as need on the inner leaf. Possibly a double door, or a big massive sliding industrial door (well sealed, of course). So while I'm teaching or doing something that doesn't require sound isolation, I can open the big door and have light, then close it when it's time to rock.
3. Vice versa for number 2: Big doors on the outside, glass on the inside
4. I have a crazy idea. I'll install glass on the inner leaf. As for the more isolating outter leaf, I could use the current barn door to create a "mobile wall". My rough idea is to put up drywall on the wood door frame, then attach wood fiber insulation panels. This whole structure would open and close. The key would be to do a fair amount of handy work in order to get the insulation panels slide in tight against the floors/walls/ceiling, and to get the drywall to close flush with the opening, and of course seal with weather proofing materials, etc.
Last question: obviously the glass doors I'm speaking of would be double glazed. If I use 2 of them, does that create a 4 leaf system?
What are your thoughts? Is there a way to have my light and sound isolation on a budget?
I want light and sound isolation
so presuming you're going to decouple the inner space from the out walls and roof -- given the inner room(s) will be air tight, then i'd put the sliding glass doors on the inside and on the outer as well, then re-locate the barn doors outside that to act as "blinds / shades" and/or security. this way you have two air tight boundaries which address the isolation needs, and barn doors can shade or secure the facility.
basically - build them as you would any high isolation space, then add a heavy "beam" frame (to clear the sliders) and provide a decent seal + make it lockable (if desired).
basically - build them as you would any high isolation space, then add a heavy "beam" frame (to clear the sliders) and provide a decent seal + make it lockable (if desired).
- Attachments
-
- Almavague door example0002.jpg (34.01 KiB) Viewed 28405 times
- Almavague door example0002.jpg (34.01 KiB) Viewed 28405 times
-
- Almavague door example0004.jpg (26.11 KiB) Viewed 28405 times
- Almavague door example0004.jpg (26.11 KiB) Viewed 28405 times
- Soundman2020
- Site Admin
- Posts: 905
- Joined: Thu, 2019-Sep-19, 22:58
- Location: Santiago, Chile
- Contact:
I want light and sound isolation
thanks. almost always best to get the isolation done properly and add some décor rather than try to guess if some variation of isolation design will actually work...
I want light and sound isolation
Spot on Glenn!! You totally get it. Security is an issue with sliding glass doors.
So if I get standard commercial sliding doors that get 35db reduction each, how do I calculate what kind of reduction I'd get? And how does the distance between them affect that? Am I getting any where near 80db?
Basically, I assume that these doors will be the weakest point in my isolation. So there'd be no point in trying for 100db of reduction in the rest of the structure if I'm only getting 60db of reduction through the doors. Am I right about that?
So if I get standard commercial sliding doors that get 35db reduction each, how do I calculate what kind of reduction I'd get? And how does the distance between them affect that? Am I getting any where near 80db?
Basically, I assume that these doors will be the weakest point in my isolation. So there'd be no point in trying for 100db of reduction in the rest of the structure if I'm only getting 60db of reduction through the doors. Am I right about that?
- Soundman2020
- Site Admin
- Posts: 905
- Joined: Thu, 2019-Sep-19, 22:58
- Location: Santiago, Chile
- Contact:
I want light and sound isolation
80 dB isolation (transmission loss) is a very tall order, and it's unlikely you would need that much.Am I getting any where near 80db?
For some perspective: A typical house wall (2x4 stud frame with a single layer of 1/2" drywall on each side), might get you 25 dB, perhaps 28 if it is well built, maybe 30 if it contains good insulation and is decently sealed. By doubling-up the drywall on each side, you could probably increase that to +/- 33 or so. Generously: 35, if you replace the 1/2" drywall with 5/8" drywall.
Rebuild that same wall on 2 stud frames, fully decoupled, with 2 layers of drywall on the outer sides, the frames separated by a couple of inches, and the entire cavity completely filled with suitable insulation, and you could get maybe 50 dB of isolation. Add even more mass to that (eg, a layer of thick MDF as the first layer, under the two layers of drywall), and also add a good constrained layer damping compound of some sort (eg, GreenGlue) in between some of those layers, and with a bit of luck, that might get you 60 dB. But that's about as good as you could reasonably hope for in home studio construction. Getting beyond that requires techniques that are usually out of the skill set and budget of a typical home-studio builder. For example, separate foundations for the inner and outer leaf wall, very high mass walls, such as brick or concrete (instead of stud frames with drywall), and such like. Done like that, you could conceivably get to maybe 70-something dB of isolation, perhaps 80 with a big budget.
(And that's only about walls: When you add in doors, windows, and the HVAC system, things start getting very complicated, Getting 70 dB isolation from a wall is relatively easy, compared to getting the same level from a door or window, and child's play compared to getting it from the HVAC system.)
Going beyond that requires a REALLY big budget. The best-isolated studio that I'm aware of is Galaxy in Belgium. They get just a hair over 100 dB of isolation, but it cost them many, many millions of dollars to get that. They basically built an enormous concrete bunker with massively thick walls, then built the separate rooms of the studio as "inner" concrete bunkers within that "outer" concrete bunker shell, with each room floating on huge steel springs combined with rubber pads.
So I'd suggest that you lower your sights a bit, and aim for maybe 55 dB, which is pretty much the reasonable limit for a home studio. Maybe 60, if you get very lucky. That's achievable, through very careful design, meticulous attention to detail in the build, and a good sized budget.
Having said all that, it's still unlikely that you'd need 80 dB. That would bring a typical mixing/mastering session down to around 5 dBC directly outside the building, which is entirely unnecessary: anything below about 30 dBC or so is already inaudible in a typical suburban or even rural setting. Even if you had a major rock band in your studio, jamming their hearts out with everything turned up to 11, the level right outside the wall would still only be around 40 dBC, which is pretty quite, and if you step back twenty feet or so away from the wall, the level would be down to maybe 30 dBC.
Most home studio builders are very happy if they get 50 to 55 dB of isolation when their studios are completed, which is a very reasonable goal.
Why do you think you would need 80 dB of isolation?
- Stuart -
- Soundman2020
- Site Admin
- Posts: 905
- Joined: Thu, 2019-Sep-19, 22:58
- Location: Santiago, Chile
- Contact:
I want light and sound isolation
Regarding your door questions:
To get 30 dB of isolation from a single glass pane, it would have to be about 1/2" thick (13mm). Or you could get that from 1/4" thick acoustic laminated glass.
To increased that to 35 dB, double the thickness of the glass.
However, a pair of those won't get you 70 dB. Unfortunately, you can't just add up the numbers, because there are other factors involved, such as resonance between them, coincidence issues, etc.
A pair of 1/4"laminated glass panes separated by a 4" air gap (10cm) would get you maybe 40 dB, with luck.
A pair of 1/2" laminated glass panes separated by an 8" air gap, could theoretically get you close to 50 dB isolation.
Now, all of the above assumes that the glass is mounted in very well built sliders, with exceptional seals all around.
And all of the above assumes a single pane of monolithic glass in each slider. If you go to double-glazed, then as you guessed, that does in fact create a 4 leaf system... sort of! Yes, there would be 4 leaves, yes that can reduce isolation in the low frequencies.... but if you start out with thick heavy laminated double-glazing, with different thicknesses of glass on each side of the unit along with acoustic PVB, and there's a good separation (air gap of several inches) between the doors, then it's probably not going to be a big issue. Its far more likely that your biggest problem will be the seals on the sliders.
- Stuart -
So if I get standard commercial sliding doors that get 35db reduction each, how do I calculate what kind of reduction I'd get? And how does the distance between them affect that? Am I getting any where near 80db? ... the glass doors I'm speaking of would be double glazed. If I use 2 of them, does that create a 4 leaf system?
To get 30 dB of isolation from a single glass pane, it would have to be about 1/2" thick (13mm). Or you could get that from 1/4" thick acoustic laminated glass.
To increased that to 35 dB, double the thickness of the glass.
However, a pair of those won't get you 70 dB. Unfortunately, you can't just add up the numbers, because there are other factors involved, such as resonance between them, coincidence issues, etc.
A pair of 1/4"laminated glass panes separated by a 4" air gap (10cm) would get you maybe 40 dB, with luck.
A pair of 1/2" laminated glass panes separated by an 8" air gap, could theoretically get you close to 50 dB isolation.
Now, all of the above assumes that the glass is mounted in very well built sliders, with exceptional seals all around.
And all of the above assumes a single pane of monolithic glass in each slider. If you go to double-glazed, then as you guessed, that does in fact create a 4 leaf system... sort of! Yes, there would be 4 leaves, yes that can reduce isolation in the low frequencies.... but if you start out with thick heavy laminated double-glazing, with different thicknesses of glass on each side of the unit along with acoustic PVB, and there's a good separation (air gap of several inches) between the doors, then it's probably not going to be a big issue. Its far more likely that your biggest problem will be the seals on the sliders.
- Stuart -
I want light and sound isolation
Thanks for your excellent answer Stuart! You're right, I had chosen 80db a bit arbitrarily. I figured if my band plays at 110db, 80db of reduction would be good. But I clearly didn't know what was reasonably attainable.
But, if my band plays at 110db and I get my room upto 50db of reduction, that's still 60db of sound that the neighbors will hear.
I'm going to keep reading and thinking. Just wanted to say thanks for all the info!!
But, if my band plays at 110db and I get my room upto 50db of reduction, that's still 60db of sound that the neighbors will hear.
I'm going to keep reading and thinking. Just wanted to say thanks for all the info!!
I want light and sound isolation
that depends on a lot of factors - if you're band is at 60db outside your building - what levels does that compare with? now at what distance is that measured? 1m? 20m? 5m? what is the ambient noise level? vehicles, insects, other activities, etc?
note that most sound level measurements are intended to be represented as "#db @ 1m", so the chart attached is showing the values as ~#db @ 1m. sound levels drop by 50% every squaring of distance. so @1m = x, then 2m = x/2, 4m = x/4 etc (although it's not as linear as that because db math is logarithmic, but you get the idea)
so, if there are no significant paths to transfer vibrations to the neighbors, then 60db from even a modest distance will possibly not be offensive (unless your band sounds like a chainsaw etc... lol) given it will taper off (air sucks as a platform for sound transmission).
note that most sound level measurements are intended to be represented as "#db @ 1m", so the chart attached is showing the values as ~#db @ 1m. sound levels drop by 50% every squaring of distance. so @1m = x, then 2m = x/2, 4m = x/4 etc (although it's not as linear as that because db math is logarithmic, but you get the idea)
so, if there are no significant paths to transfer vibrations to the neighbors, then 60db from even a modest distance will possibly not be offensive (unless your band sounds like a chainsaw etc... lol) given it will taper off (air sucks as a platform for sound transmission).
- Soundman2020
- Site Admin
- Posts: 905
- Joined: Thu, 2019-Sep-19, 22:58
- Location: Santiago, Chile
- Contact:
I want light and sound isolation
Not necessarily! It depends on how far away your neighbors are from your building. Sound decrease with distance at the rate of about 5 dB every time you double the distance (6 db in theory, but more like 5 in reality). The reason is simply because sound expands in the shape of a hemisphere, and the area of the wave-front increases proportional to the inverse of the square of the distance.But, if my band plays at 110db and I get my room up to 50db of reduction, that's still 60db of sound that the neighbors will hear.
So, if you are getting a level of 60 dBC at a distance of, say 2m from the wall, then that should be down to 55 db at 4m, 50 dB at 8m, 45 dB at 16m, 40 dB at 32 m, etc. If there are intervening buildings then the level could be a little less. If you are lucky, then even wind can make a difference (assuming it is blowing in a helpful direction! From your neighbors house, towards you).
Careful here: Some on-line calculators for figuring the level at a distance assume that the wave-front is a sphere, expanding equally in all directions, but that's not the case. Your studio is sitting on the ground, so the wave can only expand in a hemisphere, so the same amount of sound is spread out over a smaller area. They also assume that your studio is a "point source" of sound (where the size of the source is tiny, compared to the wavelength and the distances), but in reality your studio is a 3D object that acts more like a line or a plane than a point... until you get far enough away that it acts like a point! Thus, the theoretical "6 db reduction per distance doubling" isn't really correct. 5 dB is a better estimate. It might even be 4 dB, depending on the precise situation. Or it might also be more that 5!
There's also the issue of sound attenuation in the air itself, which varies according to humidity and frequency. This can be significant for the right humidity levels at some frequencies: As you can see, if there's a distance of 30m between you and your neighbors, you could be getting another couple of dB of reduction in the mids and highs, if the humidity happens to be around 20%
So, ... How far is your studio away from your neighbors house? Is there anything in between, such as a substantial tall fence, or another building?
But the easiest way, by far, is not to calculate all of this: Just measure it! Set up a powerful full-range sound system inside the studio (or better still, hire a live rock band to come over to your place), play bass-heavy rock music at a level of 110 dB inside the studio as it is right now, and measure that with a decent sound level meter at various distances and locations, with special attention to several spots along the edge of your property line, where it meets your neighbor's property line. Take careful notes of all of that. Then turn the volume down on the sound system (musicians!?), until you think the level is acceptable at the property line: Not down that level at the property line, and also back inside the room. Make many sound level measurements all around the studio, in all directions, noting the distance to the studio wall for each one. The more measurements you have, the easier it is to get a good picture of how sound is behaving around your place.
With all of that data, you have enough information to calculate how isolation you are getting right now, how that drops with distance in YOUR location, and how much isolation you will need in order to get your screaming rock band down to a reasonable level at the property line.
- Stuart -
- Soundman2020
- Site Admin
- Posts: 905
- Joined: Thu, 2019-Sep-19, 22:58
- Location: Santiago, Chile
- Contact:
I want light and sound isolation
The nearest neighbors are about 15m away, and 3 others are within 25m. So if my band plays at 110db, and I get 50db of reduction, I'll have 60db at 1m from the wall, I might get down to 40db at 16m. I guess this is considered an acceptable level.
I've contacted the local government about noise regulations. I live in a quiet little village. The code doesn't have any specifications actual db level, just that noise should not be bothersome to neighbors either by volume or duration. Which seems to be a double edged sword - on the one hand, no one can say it's above the legal threshold, on the other hand, anyone who's bothered has a legitimate complaint.
So, I'm continuing with my design, aiming for 50db reduction (anything above that would be icing on the cake!). I'd like to post my general plans to get feedback on the plan as a whole. Stuart - Should I just continue this thread, or start a new one?
I've contacted the local government about noise regulations. I live in a quiet little village. The code doesn't have any specifications actual db level, just that noise should not be bothersome to neighbors either by volume or duration. Which seems to be a double edged sword - on the one hand, no one can say it's above the legal threshold, on the other hand, anyone who's bothered has a legitimate complaint.
So, I'm continuing with my design, aiming for 50db reduction (anything above that would be icing on the cake!). I'd like to post my general plans to get feedback on the plan as a whole. Stuart - Should I just continue this thread, or start a new one?
- Soundman2020
- Site Admin
- Posts: 905
- Joined: Thu, 2019-Sep-19, 22:58
- Location: Santiago, Chile
- Contact:
I want light and sound isolation
Unfortunately, that's the case in many places around the world! Because the regulations are written by politicians, they always want to cover their backs. So they specify an actual technical limit that can be measured objectively, but then add additional clauses like the one your town has, that basically says the measurable technical limit doesn't matter at all, it's all about what someone might say they felt about it... ! Imagine if the law about murder said that it didn't really matter if you really were dead or not, as measured objectively by a doctor using technical instruments, but rather it only matters if the killer felt like you were dead....Which seems to be a double edged sword - on the one hand, no one can say it's above the legal threshold, on the other hand, anyone who's bothered has a legitimate complaint.
So basically, you are screwed no matter how good your isolation is!
To make matters worse, in most places that do have physical decibel limits, the limit is so low as to be ridiculous: Where I live, the limit is around 35dbA at night. Just walking down the street quietly chatting with my wife would be louder than that. In fact, it would be impossible to measure, since this is a residential area in a big city, so just the background noise is louder than 35 dBA. Sometimes I wonder why they even bother making such silly laws!
So, anyway.... If you figure your levels can be down to around 40 dB at your property line, and assuming the neighbor's house is another few meters beyond that, then level should be "reasonable" at their front door.
There are also other tricks that might help you get another dB or two of isolation inside the room, such as putting your drum kit on a drum riser (Glenn has a great design for that), as well as any speakers that might normally be on the floor. The fact of NOT having those things directly on the floor can help to reduce the transmission of impact noise and vibration into your floor. Any way that you can reduce the level inside the room, is going to help to keep your levels outside lower.
It's fine to continue on with this thread! No need to change now, since you already have it going.Should I just continue this thread, or start a new one?
Looking forward to seeing your plans!
- Stuart -
I want light and sound isolation
So here’s the bird-eye view of the project. I’m looking for some more general advice. I’d like to make sure I’m on the right track and not forgetting important factors. Many thanks in advance for any thoughts!!!
I’m converting an outbuilding that’s attached to my house, into a rehearsal space.
Here’s the original structure:
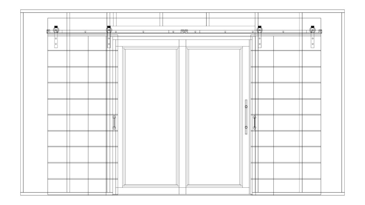
The outbuilding is attached to the house on one end, and another outbuilding on the other. The north side is the street, south side is the courtyard of the house. The room is 5x6m. The walls are 40cm thick rammed earth (Pisé – a traditional construction technique in my area of France). But one of the 4 walls is stone (40cm thick – this one has the other outbuilding on the other side). There’s an A frame ceiling 5.5m high at its peak, 4m high at the base. There’s a porous layer of wood and a tile roof. The room has a giant opening with a barn door of 3x4m. There’s a cement slab floor. The nearest neighbor is about 15m to the north, and 3 other neighbors are within 25m. See attached drawing and photos.
The room will be used for teaching music, rehearsing, and basic recording. I would like to get 50db of reduction, any more would be icing on the cake. One essential element is to use the barn door opening to allow in light. The rest of the house is dark, and this is the one place where I can have direct natural light. Budget is 13,000€ and I’ll be doing everything myself. I've basically calculated the price of materials, leaving plenty of margin, and sold it to my wife
Below are my sound measurements from the building as is - although I’m not sure how much this really indicates because of the giant barn door opening, and because the roof is very porous.
With an 80db electric bass sound source, here’s what I measured:
2m in front of the barn door - 75db
Bedroom - 50db
Street (north of the building) 60db
I suspect that the 30db reduction between the future studio and the bedroom is a good indication of what I would achieve if I simply closed and insulated the barn door opening and and the ceiling.
Here are the plans I’ve come up with using a 2 leaf structure:
Outer leaf
The pisé/stone walls are a great starting place, but it needs to be closed. For the barn door opening, I’ll use a commercial sliding glass door. This door will be about 2.5m high. And for the upper part of the opening, I’ll build a wood structure with OSB 3 and 15cm of wood fiber insulation panels. I’ll create a false ceiling, by hanging metal rails from the roof joists and attach OSB 3 panels. Clearly, everything needs to be airtight.
Inner leaf
I’ll build a wood inner structure completely decoupled from the walls and ceiling (I will have a bit of help from a professional with this). It will rest directly on the cement slab. I’ll leave about 5cm between the studs and the pisé wall (pisé absolutely needs to breathe, and I figure this is convenient for sound isolation as well). Between the studs I’ll have 15cm of wood fiber insulation panels. The interior of the walls will be sealed with double layered drywall. The ceiling will be the exact same construction as the walls. The floor will be insulated with rigid wood fiber panels, and probably OSB on top. In the barn door opening will be an inner sliding glass door, identical to the outer one.
Basic ideas for HVAC
Double flow CMV for air exchange. The in/out vents will each have a baffle box.
For heat/cooling a mini-split heat pump. (In France you can buy these from a hardware store and install them yourself, you just need a specialist to check the seals and insert the liquid refrigerant.)
Here are my general questions:
Am I on track to get 50db sound reduction?
Am I making any big mistakes?
I estimate I have 106m2 surface area to drywall. Drywall costs 3€/m2, so doubling it seems like a no-brainer. Are there other easy/cheap sound reduction additions that would be worth my while that I haven’t thought of?
Specific questions:
Ceiling:
the ceiling is a normal MAM construction. But given that the outer leaf is still mostly protected from the elements by the porous roof, would it be wise to add insulation on top of the false ceiling?
How could I make airtight seals between the tongue and groove panels of OSB? And then between the OSB panels and the pisé walls?
Walls/ceiling of inner leaf:
When doubling drywall, each layer needs to be sealed with drywall mud and ideally the seams need to be staggered, correct?
My carpenter who’s helping with the framing tells me that I can’t attach drywall directly to the wood studs because the wood will warp and cause problems in the drywall. This doesn’t seem right to me - any thoughts?
Double sliding glass doors:
I could conceivably build the doors with a significant air gap between them. If I built the 25cm or 50cm apart, would I actually be gaining sound reduction? What would be the ideal distance?
Also, would an acoustic curtain be a helpful addition between the two doors?
Most likely, my double sliding door entrance will be the weak point of the sound isolation. And I realize the seals on these doors are the most important/difficult part. Is it pointless to try for more insulation, doubling drywall, or adding green glue, etc. in other parts of the construction, knowing that the double sliding glass door will get whatever isolation it gets, and can’t be improved? In other words, is sound isolation only as good as the weakest link?
HVAC:
Does anyone have any experience with the self installed mini split heat pumps? I’ve heard mixed reviews, but I figure that if it’s just for a 30m2 room and not the whole house, it might be a good option. The whole thing is about 1500€
I’m converting an outbuilding that’s attached to my house, into a rehearsal space.
Here’s the original structure:
The outbuilding is attached to the house on one end, and another outbuilding on the other. The north side is the street, south side is the courtyard of the house. The room is 5x6m. The walls are 40cm thick rammed earth (Pisé – a traditional construction technique in my area of France). But one of the 4 walls is stone (40cm thick – this one has the other outbuilding on the other side). There’s an A frame ceiling 5.5m high at its peak, 4m high at the base. There’s a porous layer of wood and a tile roof. The room has a giant opening with a barn door of 3x4m. There’s a cement slab floor. The nearest neighbor is about 15m to the north, and 3 other neighbors are within 25m. See attached drawing and photos.
The room will be used for teaching music, rehearsing, and basic recording. I would like to get 50db of reduction, any more would be icing on the cake. One essential element is to use the barn door opening to allow in light. The rest of the house is dark, and this is the one place where I can have direct natural light. Budget is 13,000€ and I’ll be doing everything myself. I've basically calculated the price of materials, leaving plenty of margin, and sold it to my wife
Below are my sound measurements from the building as is - although I’m not sure how much this really indicates because of the giant barn door opening, and because the roof is very porous.
With an 80db electric bass sound source, here’s what I measured:
2m in front of the barn door - 75db
Bedroom - 50db
Street (north of the building) 60db
I suspect that the 30db reduction between the future studio and the bedroom is a good indication of what I would achieve if I simply closed and insulated the barn door opening and and the ceiling.
Here are the plans I’ve come up with using a 2 leaf structure:
Outer leaf
The pisé/stone walls are a great starting place, but it needs to be closed. For the barn door opening, I’ll use a commercial sliding glass door. This door will be about 2.5m high. And for the upper part of the opening, I’ll build a wood structure with OSB 3 and 15cm of wood fiber insulation panels. I’ll create a false ceiling, by hanging metal rails from the roof joists and attach OSB 3 panels. Clearly, everything needs to be airtight.
Inner leaf
I’ll build a wood inner structure completely decoupled from the walls and ceiling (I will have a bit of help from a professional with this). It will rest directly on the cement slab. I’ll leave about 5cm between the studs and the pisé wall (pisé absolutely needs to breathe, and I figure this is convenient for sound isolation as well). Between the studs I’ll have 15cm of wood fiber insulation panels. The interior of the walls will be sealed with double layered drywall. The ceiling will be the exact same construction as the walls. The floor will be insulated with rigid wood fiber panels, and probably OSB on top. In the barn door opening will be an inner sliding glass door, identical to the outer one.
Basic ideas for HVAC
Double flow CMV for air exchange. The in/out vents will each have a baffle box.
For heat/cooling a mini-split heat pump. (In France you can buy these from a hardware store and install them yourself, you just need a specialist to check the seals and insert the liquid refrigerant.)
Here are my general questions:
Am I on track to get 50db sound reduction?
Am I making any big mistakes?
I estimate I have 106m2 surface area to drywall. Drywall costs 3€/m2, so doubling it seems like a no-brainer. Are there other easy/cheap sound reduction additions that would be worth my while that I haven’t thought of?
Specific questions:
Ceiling:
the ceiling is a normal MAM construction. But given that the outer leaf is still mostly protected from the elements by the porous roof, would it be wise to add insulation on top of the false ceiling?
How could I make airtight seals between the tongue and groove panels of OSB? And then between the OSB panels and the pisé walls?
Walls/ceiling of inner leaf:
When doubling drywall, each layer needs to be sealed with drywall mud and ideally the seams need to be staggered, correct?
My carpenter who’s helping with the framing tells me that I can’t attach drywall directly to the wood studs because the wood will warp and cause problems in the drywall. This doesn’t seem right to me - any thoughts?
Double sliding glass doors:
I could conceivably build the doors with a significant air gap between them. If I built the 25cm or 50cm apart, would I actually be gaining sound reduction? What would be the ideal distance?
Also, would an acoustic curtain be a helpful addition between the two doors?
Most likely, my double sliding door entrance will be the weak point of the sound isolation. And I realize the seals on these doors are the most important/difficult part. Is it pointless to try for more insulation, doubling drywall, or adding green glue, etc. in other parts of the construction, knowing that the double sliding glass door will get whatever isolation it gets, and can’t be improved? In other words, is sound isolation only as good as the weakest link?
HVAC:
Does anyone have any experience with the self installed mini split heat pumps? I’ve heard mixed reviews, but I figure that if it’s just for a 30m2 room and not the whole house, it might be a good option. The whole thing is about 1500€
- Attachments
-
- img20230530_10131888.pdf
- (1 MiB) Downloaded 673 times
- img20230530_10131888.pdf
- (1 MiB) Downloaded 673 times
-
- img20230501_21422051.pdf
- (14.86 KiB) Downloaded 800 times
- img20230501_21422051.pdf
- (14.86 KiB) Downloaded 800 times
I want light and sound isolation
Sorry, I can't figure out how to get the photos upright, and the drawings have to be downloaded. If anyone needs any clarification, don't hesitate to ask!
-
- Similar Topics
- Statistics
- Last post
-
-
recording light sign Attachment(s)
by goodwater » Fri, 2025-Feb-07, 16:10 » in Recording Studio Furniture -
Replies: 7
Views: 90068 -
by goodwater
View the latest post
Sun, 2025-Nov-02, 20:16
-
-
-
New build with light gauge steel framework Attachment(s)
by seaweednylon » Thu, 2025-Mar-20, 06:38 » in RECORDING STUDIO CONSTRUCTION -
Replies: 3
Views: 10835 -
by gullfo
View the latest post
Thu, 2025-Mar-27, 12:20
-
-
-
Sound Recognition Technology: Transforming the Future of Audio Intelligence
by DivakarMRFR » Fri, 2025-Jul-25, 06:26 » in RECORDING STUDIO DESIGN -
Replies: 0
Views: 21350 -
by DivakarMRFR
View the latest post
Fri, 2025-Jul-25, 06:26
-
Who is online
Users browsing this forum: No registered users and 13 guests