Studio Build- Central Portugal

Document your build here: All about your walls, ceilings, doors, windows, HVAC, and (gasp!) floated floors...
Dr Space
Full Member
Posts: 162
Joined: Wed, 2019-Sep-25, 05:47
Location: Portugal
Contact:

Studio Build- Central Portugal

#1

Postby Dr Space » Sat, 2019-Oct-26, 15:04

Stuart designed me a studio about 2 years ago. It was never totally completed but enough. It is about 80m2 with a 23m2 control room, 33m2 live room with 4.5m high ceilings, and an entrance room that we will treat so that vocals can be recorded in there.

It has been a long journey as it is a difficult and slow process in Portugal to build in the countryside do to the forests and all the extra regulations but we had the architectural plan approved and the structural plan is submitted and will be approved this week. I expect to get the final building permit by the end of the week.

The materials list for creating the building is done and we have invited 3 builders to give quotes..
At the moment, we are just going to build the brick building and then a professional studio building firm in Portugal, that has built world class studios all around the world, will do the inside. These details have not been totally worked out yet but they have a copy of Stuarts drawings.

I have attached a file with the overview from the top. I can add more files for more feedback but I just wanted to get this started. The stone wall that is shown is not part of the building now though and we have changed the window as well. It will have a lot of isolation this studio as the back wall will have a huge 11mx5mx30cm concrete retaining wall the will wold up the land behind the ruin. We will also have 50cm thick granite stone walls on the sides of the building. Only the front will have less.

The goal is to have a small world class studio to amaze!!!! 8-)
Attachments
top view- draft small.jpeg
Top view



User avatar
Soundman2020
Site Admin
Posts: 916
Joined: Thu, 2019-Sep-19, 22:58
Location: Santiago, Chile
Contact:

Re: Studio Build- Central Portugal

#2

Postby Soundman2020 » Sat, 2019-Oct-26, 15:23

I was really glad to see that you finally got your permits! They sure did mess you around with that. It will be good to see your place finally taking shape!

- Stuart -



Dr Space
Full Member
Posts: 162
Joined: Wed, 2019-Sep-25, 05:47
Location: Portugal
Contact:

Re: Studio Build- Central Portugal

#3

Postby Dr Space » Sun, 2019-Oct-27, 04:59

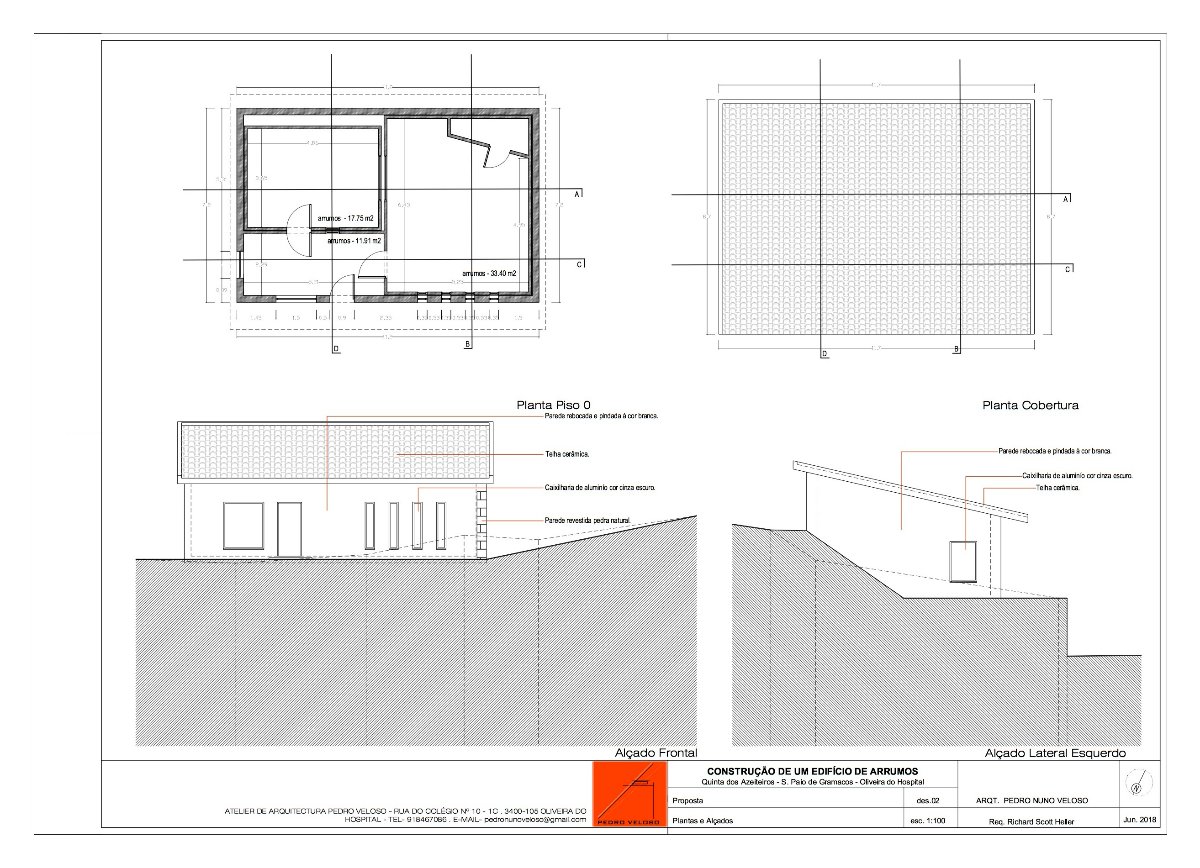
This is the architectural plans to make the building. Thr roof slants down from 5m in the back to 4.2m in the front. Pay no attention to they way the rooms are laid out inside as we are free to do whatever we want inside and will follow the design as stuart has made it except we are moving the storage room in the live room to another corner.

scott
Attachments
Richard_2.jpg
Richard_1.jpg



Dr Space
Full Member
Posts: 162
Joined: Wed, 2019-Sep-25, 05:47
Location: Portugal
Contact:

Re: Studio Build- Central Portugal

#4

Postby Dr Space » Mon, 2020-Jan-27, 10:42

Good news folks... I finally agreed with a local builder to start construction on my studio. Looks like they will start next week. It was about 10,000€ more expensive than I had planned but this seems the best we can get at this time. All the other builders where 20,000€ more. I will post pictures as we get going on this.

This is the guy who will build the studio after Stuart's design (except the ceiling and ventilation as this was never completed).

http://www.newellacousticengineering.com/

scott



User avatar
Starlight
Full Member
Posts: 482
Joined: Wed, 2019-Sep-25, 12:52
Location: Slovakia, Europe
Contact:

Re: Studio Build- Central Portugal

#5

Postby Starlight » Mon, 2020-Jan-27, 11:35

Joules has been building studios for over 30 years. You are in good hands.



User avatar
Soundman2020
Site Admin
Posts: 916
Joined: Thu, 2019-Sep-19, 22:58
Location: Santiago, Chile
Contact:

Re: Studio Build- Central Portugal

#6

Postby Soundman2020 » Tue, 2020-Jan-28, 13:49

Woohooo! That's great news! It will be cool to FINALLY see construction happening on your studio!!! :yahoo:

- Stuart -



Purelythemusic
Full Member
Posts: 156
Joined: Sat, 2019-Oct-12, 18:39
Location: England - Bristol

Re: Studio Build- Central Portugal

#7

Postby Purelythemusic » Mon, 2020-Feb-03, 19:23

Great news! Looks like a brilliant project!


- Success in music is being able to make music whatever your situation -

Dr Space
Full Member
Posts: 162
Joined: Wed, 2019-Sep-25, 05:47
Location: Portugal
Contact:

Studio Build- Central Portugal

#8

Postby Dr Space » Fri, 2020-Mar-06, 09:02

Contract with the builder (just to make the building, not the studio inside) has been signed. They will start in the next 3 weeks and be finished before May 29th. Wow.. Hard to believe after 3 years this is going to happen now. I will keep you posted.



User avatar
John Steel
Active Member
Posts: 29
Joined: Sun, 2019-Sep-22, 09:02
Location: Hastings, East Sussex
Contact:

Studio Build- Central Portugal

#9

Postby John Steel » Fri, 2020-Mar-06, 12:22

That's good to hear! I'm looking forward to seeing it.


“While none of the work we do is very important, it is important that we do a great deal of it.”
https://johnsteel.org/

User avatar
Soundman2020
Site Admin
Posts: 916
Joined: Thu, 2019-Sep-19, 22:58
Location: Santiago, Chile
Contact:

Studio Build- Central Portugal

#10

Postby Soundman2020 » Fri, 2020-Mar-06, 12:27

Cool! Take lots of photos! :thu:

- Stuart -



Dr Space
Full Member
Posts: 162
Joined: Wed, 2019-Sep-25, 05:47
Location: Portugal
Contact:

Studio Build- Central Portugal

#11

Postby Dr Space » Sun, 2020-Sep-27, 09:01

Well, 2020 is 3/4 over now and the builder still has not started to build my studio, despite us signing a contract in March!!!! I just wanted to let people know, it is still going to happen and he says soon, but I have been hearing that for months... I keep you posted.. Supposed to start next week but I heard that in June as well....
Peace
ricardo (dr Space also known as Scott)



User avatar
Soundman2020
Site Admin
Posts: 916
Joined: Thu, 2019-Sep-19, 22:58
Location: Santiago, Chile
Contact:

Studio Build- Central Portugal

#12

Postby Soundman2020 » Sun, 2020-Sep-27, 16:07

That's a real bummer! Your studio has just taken so long to get off the ground, with so many setbacks, one after the other! It must be very frustrating for you. But when it is finished, I reckon you'll forget all about that, and just enjoy making great music in there! There is light at the end of the tunnel.

- Stuart -



Jag94
Full Member
Posts: 107
Joined: Mon, 2020-Aug-03, 02:17
Location: Los Angeles, CA..

Studio Build- Central Portugal

#13

Postby Jag94 » Tue, 2020-Sep-29, 13:06

Dr Space,

Man that's really frustrating. I know the feeling of wanting to get a major project done, and you're ready to go, but you're waiting on other people to do their job and they're not doing it. I'm sorry you have to go through that.

Are there any things you can do yourself to "get started"? Maybe nothing major, but small things you can prepare to help make the whole thing move along?



Dr Space
Full Member
Posts: 162
Joined: Wed, 2019-Sep-25, 05:47
Location: Portugal
Contact:

Studio Build- Central Portugal

#14

Postby Dr Space » Sun, 2020-Oct-18, 06:38

We started the process in May 2018, Stuart and I before that.... Anyway, things are super slow in Portugal to get just about anything done.
Signed a contract in March 2020 with a builder and after 7 months, they finally started yesterday. Incredible..

Anyway, they tore down most of the ruin yesterday so that is a start. I am guessing the basic building will be done by Christmas. it will depend on the weather. If it like last fall, it will take much longer as it rained nearly every day from end of October to Christmas! It was insanely wet... Hope for better weather this fall.

Attached a before (taken a few years ago, not changed much) and after....
Ruin before.jpg

IMG_5667.JPG

Dr Space...



User avatar
Starlight
Full Member
Posts: 482
Joined: Wed, 2019-Sep-25, 12:52
Location: Slovakia, Europe
Contact:

Studio Build- Central Portugal

#15

Postby Starlight » Sun, 2020-Oct-18, 13:06

I am glad to see that eventually the builders have started.




  • Similar Topics
    Statistics
    Last post

Who is online

Users browsing this forum: No registered users and 21 guests