Private studio in Slovakia
- Starlight
- Full Member
- Posts: 480
- Joined: Wed, 2019-Sep-25, 12:52
- Location: Slovakia, Europe
- Contact:
Private studio in Slovakia
Happy Christmas everyone! Here is my new studio, complete with fake snow for isolation, an open door policy and animals to ensure that shoppers keep the noise down. No, not really!
Stuart has asked me to document our studio build here. My wife and I live in a flat and we have bought a 56 sq.m commercial space on the ground floor of our building. This will be our home music room, a private studio. We have enlisted John H. Brandt to help as we need to ensure that residents cannot hear us after 10pm. More details and photos to follow. Here is the outside view.
-
- Full Member
- Posts: 156
- Joined: Sat, 2019-Oct-12, 18:39
- Location: England - Bristol
Re: Private studio in Slovakia
Happy Christmas!
I look forward to your build! Nice size space... are you dividing it up a bit?
I look forward to your build! Nice size space... are you dividing it up a bit?
- Success in music is being able to make music whatever your situation -
- Starlight
- Full Member
- Posts: 480
- Joined: Wed, 2019-Sep-25, 12:52
- Location: Slovakia, Europe
- Contact:
Re: Private studio in Slovakia
Thanks, Tom. The difference between our builds is that we have a sort of head start in that the outer building is already built but that does limit us as we cannot have an isolated slab, a taller room or other things that may have been ideal. For us, the location is perfect and the room has enough potential that we believe we can make it a decent studio.
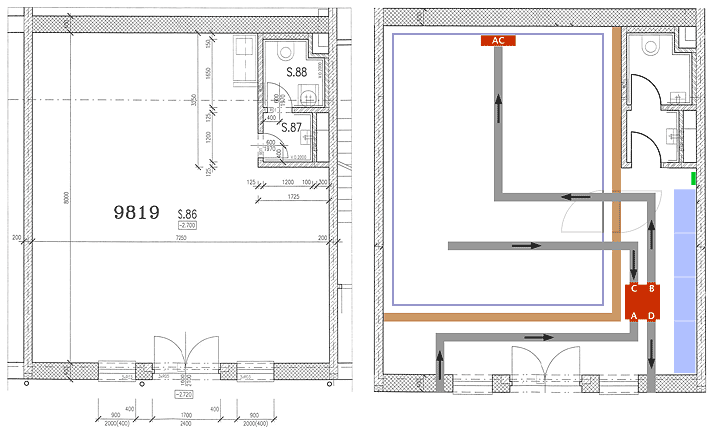
The original plan for the building is on the left and our plans are on the right. By moving a door in the original build we can then construct a wall (brown) to create a rectanglar space and then a detached inner room (purple) which will be our studio. We are aiming for the finished internal size to be as close to 6.19 x 4.79 x 2.77 metres as we can get in order to get a fair Bonello distribution.
The other drawn in bits are:
- HVAC, red AC and ventilator, grey ducts.
- Blue is the storage shelving outside the studio.
- The green box is the main fuse box, the place where electricity enters our space.
This is how the place looked on 18th November with a new doorway opened up in the original build and the metal trunking laid just to show where the outer (brown) wall will go. Work started on 19th November with a delivery of bricks, OSB, fire-rated plasterboard and rolls of insulation. I will try to bring you up to date before we resume work in January. I am sorry that I have been too exhausted each working day to get my build topic started.
The original plan for the building is on the left and our plans are on the right. By moving a door in the original build we can then construct a wall (brown) to create a rectanglar space and then a detached inner room (purple) which will be our studio. We are aiming for the finished internal size to be as close to 6.19 x 4.79 x 2.77 metres as we can get in order to get a fair Bonello distribution.
The other drawn in bits are:
- HVAC, red AC and ventilator, grey ducts.
- Blue is the storage shelving outside the studio.
- The green box is the main fuse box, the place where electricity enters our space.
This is how the place looked on 18th November with a new doorway opened up in the original build and the metal trunking laid just to show where the outer (brown) wall will go. Work started on 19th November with a delivery of bricks, OSB, fire-rated plasterboard and rolls of insulation. I will try to bring you up to date before we resume work in January. I am sorry that I have been too exhausted each working day to get my build topic started.
- Soundman2020
- Site Admin
- Posts: 905
- Joined: Thu, 2019-Sep-19, 22:58
- Location: Santiago, Chile
- Contact:
Re: Private studio in Slovakia
Cool! Good to see you getting started! This is going to be an interesting thread, I think. I'm looking forward to it!
However, I do insist that you must run a full REW test on the gingerbread studio first, then break it down into samples and mail pieces to all of us for personal, in-depth analysis...
We do have to be scientific about this new concept, you know? It deserves close inspection....
Merry Christmas!
- Stuart -
However, I do insist that you must run a full REW test on the gingerbread studio first, then break it down into samples and mail pieces to all of us for personal, in-depth analysis...

Merry Christmas!
- Stuart -
- Starlight
- Full Member
- Posts: 480
- Joined: Wed, 2019-Sep-25, 12:52
- Location: Slovakia, Europe
- Contact:
Re: Private studio in Slovakia
Soundman2020 wrote:I do insist that you must run a full REW test on the gingerbread studio first, then break it down into samples and mail pieces to all of us for personal, in-depth analysis.
Okay, captain!
It has been interesting to read Howie's topic New Studio Build Underway and how he chose to go with getting a quote for the whole job. We have not gone that route, I could not manage to put every detail of the build together as some things I will better know what I want a bit further down the line. We were recommended and introduced to Joseph, a bricklayer by training and a general builder and handyman by trade. We are working on a day-to-day basis with me as his assistant.
Week 1 - 20th-26th November 2019
It took a week to build the wall, coloured brown in the plan - see my previous post. As well as being a pianist, my wife is especially skilled at cleaning, something that I am really grateful for.
Larger gaps were filled with cement and smaller gaps with what looks like expanding foam but I am so impressed that the builder listened and has taken onboard the demanding requirements of a studio build - here he is using a foam that stays much more compact to help maintain as much mass as possible.
The inside of the wall was then rendered with Cemix, a cement adhesive, and plasterer's mesh.
The wall then needed 3 days to dry.
- Starlight
- Full Member
- Posts: 480
- Joined: Wed, 2019-Sep-25, 12:52
- Location: Slovakia, Europe
- Contact:
Re: Private studio in Slovakia
Week 2 - 27th November - 2nd December 2019
The studs for the internal room were erected after we had painted the walls with masonry paint.
Then the gaps were filled with low density mineral wool, 10.7kg/cu.m.
The plumber replaced old pipes, removed an old boiler and basin and prepared for two new basins and a small water heater. The two little rooms (see the original plan, above) were for a toilet with a low level sink for a mop and then a hand basin outside, in the small connecting room. We would like to have a tap (and sink) for clean water for the kettle so by adding a hand basin in the bathroom we will try to keep the bathroom self-contained and the small room as a dedicated, clean, miniature kitchen.
The studs for the internal room were erected after we had painted the walls with masonry paint.
Then the gaps were filled with low density mineral wool, 10.7kg/cu.m.
The plumber replaced old pipes, removed an old boiler and basin and prepared for two new basins and a small water heater. The two little rooms (see the original plan, above) were for a toilet with a low level sink for a mop and then a hand basin outside, in the small connecting room. We would like to have a tap (and sink) for clean water for the kettle so by adding a hand basin in the bathroom we will try to keep the bathroom self-contained and the small room as a dedicated, clean, miniature kitchen.
- Starlight
- Full Member
- Posts: 480
- Joined: Wed, 2019-Sep-25, 12:52
- Location: Slovakia, Europe
- Contact:
Re: Private studio in Slovakia
Weeks 3 and 4: 3rd - 19th December 2019
Next up were the ceiling isolation mounts bought from Spain. Their job is to hold the inner room's ceiling and isolate it from the rest of the building. The new ceiling will join up with the plasterboard walls that we will put up. Up to this point I could have designed my own studio but this is one of those things that I needed help with, caluculating what value of Sylomer is required in the mounts as well as how many mounts. Before we can proceed we need the HVAC company to install the copper pipes and mains cable that connect the indoor and outdoor AC units and the drain from the AC, for which we very fortunately have a drain point because in the original build there was a sink in the corner of the studio.
The holes for the ventilation ducts were drilled. My job is to order duct liner and prepare 4 baffle boxes.
The electrician ripped out almost everything in our place and installed cables apart from inside the studio. Because the electrician's supplier cannot, my job is to find mains cable with twisted live and neutral wires for use inside the studio and that is proving to be difficult.
Because we cannot continue in the studio the builder has turned his attention to the bathroom and kitchen areas, doing a fine job so far.
He then proceeded to render the outside of our newly built wall. That will have dried by now.
That then is the state of play right now, with a pause over the Christmas and New Year break.
Next up were the ceiling isolation mounts bought from Spain. Their job is to hold the inner room's ceiling and isolate it from the rest of the building. The new ceiling will join up with the plasterboard walls that we will put up. Up to this point I could have designed my own studio but this is one of those things that I needed help with, caluculating what value of Sylomer is required in the mounts as well as how many mounts. Before we can proceed we need the HVAC company to install the copper pipes and mains cable that connect the indoor and outdoor AC units and the drain from the AC, for which we very fortunately have a drain point because in the original build there was a sink in the corner of the studio.
The holes for the ventilation ducts were drilled. My job is to order duct liner and prepare 4 baffle boxes.
The electrician ripped out almost everything in our place and installed cables apart from inside the studio. Because the electrician's supplier cannot, my job is to find mains cable with twisted live and neutral wires for use inside the studio and that is proving to be difficult.
Because we cannot continue in the studio the builder has turned his attention to the bathroom and kitchen areas, doing a fine job so far.
He then proceeded to render the outside of our newly built wall. That will have dried by now.
That then is the state of play right now, with a pause over the Christmas and New Year break.
-
- Active Member
- Posts: 30
- Joined: Tue, 2019-Sep-24, 05:16
- Location: Aalten, almost Germany
- Contact:
Re: Private studio in Slovakia
Could you elaborate on why you choose for this construction?
So how did you determine the isolation needs, and how did you calculate all this?
I suppose it's all substantiated with gory math and stuff?
So how did you determine the isolation needs, and how did you calculate all this?
I suppose it's all substantiated with gory math and stuff?

- Starlight
- Full Member
- Posts: 480
- Joined: Wed, 2019-Sep-25, 12:52
- Location: Slovakia, Europe
- Contact:
Re: Private studio in Slovakia
Thank you for your questions, Bert.
I am not quite sure what it is that I have chosen that you would like me to elaborate on. Here is our room within the building. Because it is built on a slope, this view we call the back of the building where there is one extra storey of commercial premises than you could see at the front. Above us is a row of shops with their front doors on the other side. Behind us is the underground parking area for residents. The road you see is a private car park which needs a remote control to get in, so it is pretty quiet. To our right are the main electric fuseboxes, between us and the shop (that has just closed). On our other side, the pink section, is a shop which in terms of noise spill will be our nearest neighbour, along with the electronics shop above us run by 3 youngish chaps that have music playing all day long - so they probably won't hear us nor would they care too much if they did.
As well as noticing how near our neighbours in shops are and also the 5 floors of accommodation above, I spent some time just sitting in the room before we bought it with my SPL meter, discovering which noises can be heard. The loudest were motorbikes and ambulances on the road which is 75 metres away. They all produced a reading of 62dBC SPL.
You hit the nail on the head! I have been on Gearslutz for 8 years and have been learning through topics there and a few of the usually recommended books. However, I still feel like a student. I can do the maths but I still feel like I need the teacher to check my homework. I can follow and generally understand what Stuart and other studio designers explain and to an extent I would risk making my own decisions based on my knowledge but as we have bought this place and we hope only to do this one time, it seemed like the right time to hire a professional.
Because a lot of what I have read over the years is what Rod Gervais and John H. Brandt have posted on Gearlsutz and what John has published on his web site, and because I designed my previous studio with some aspects of a Philip Newell style Non-Environment studio, I thought John's Balanced Non-Environment would be the way I would like to proceed. This year I have got to know Stuart and really appreciate his ability as a teacher. Stuart has helped me probably double what I learned in the last 7 years during 2019. Had I known Stuart before I opted for John H. Brandt, quite possibly I would have employed Stuart to help with our studio. The gory maths and stuff, as you described it, Bert, is something I can leave to John.
As far as my making a noise goes, I play drums (although guitar and flute are my main instruments) and I have learned to play quieter and can just keep the noise at 80dbC. With a nighttime ideal level of no louder than 25dBA in the flats above, a working target of 55dB noise reduction with the room in a room design should be possible if I pay close attention to all the details. As a private music studio I do not need a place where customers play as loud as they wish any hour of the day or night. Those bands we have recorded CDs for have all come early evening or during the day on Saturdays so I believe we can make the studio a place to rehearse, write and record songs as it suits us.
bert stoltenborg wrote:Could you elaborate on why you choose for this construction?
I am not quite sure what it is that I have chosen that you would like me to elaborate on. Here is our room within the building. Because it is built on a slope, this view we call the back of the building where there is one extra storey of commercial premises than you could see at the front. Above us is a row of shops with their front doors on the other side. Behind us is the underground parking area for residents. The road you see is a private car park which needs a remote control to get in, so it is pretty quiet. To our right are the main electric fuseboxes, between us and the shop (that has just closed). On our other side, the pink section, is a shop which in terms of noise spill will be our nearest neighbour, along with the electronics shop above us run by 3 youngish chaps that have music playing all day long - so they probably won't hear us nor would they care too much if they did.
bert stoltenborg wrote:So how did you determine the isolation needs, and how did you calculate all this?
As well as noticing how near our neighbours in shops are and also the 5 floors of accommodation above, I spent some time just sitting in the room before we bought it with my SPL meter, discovering which noises can be heard. The loudest were motorbikes and ambulances on the road which is 75 metres away. They all produced a reading of 62dBC SPL.
bert stoltenborg wrote:I suppose it's all substantiated with gory math and stuff?
You hit the nail on the head! I have been on Gearslutz for 8 years and have been learning through topics there and a few of the usually recommended books. However, I still feel like a student. I can do the maths but I still feel like I need the teacher to check my homework. I can follow and generally understand what Stuart and other studio designers explain and to an extent I would risk making my own decisions based on my knowledge but as we have bought this place and we hope only to do this one time, it seemed like the right time to hire a professional.
Because a lot of what I have read over the years is what Rod Gervais and John H. Brandt have posted on Gearlsutz and what John has published on his web site, and because I designed my previous studio with some aspects of a Philip Newell style Non-Environment studio, I thought John's Balanced Non-Environment would be the way I would like to proceed. This year I have got to know Stuart and really appreciate his ability as a teacher. Stuart has helped me probably double what I learned in the last 7 years during 2019. Had I known Stuart before I opted for John H. Brandt, quite possibly I would have employed Stuart to help with our studio. The gory maths and stuff, as you described it, Bert, is something I can leave to John.
As far as my making a noise goes, I play drums (although guitar and flute are my main instruments) and I have learned to play quieter and can just keep the noise at 80dbC. With a nighttime ideal level of no louder than 25dBA in the flats above, a working target of 55dB noise reduction with the room in a room design should be possible if I pay close attention to all the details. As a private music studio I do not need a place where customers play as loud as they wish any hour of the day or night. Those bands we have recorded CDs for have all come early evening or during the day on Saturdays so I believe we can make the studio a place to rehearse, write and record songs as it suits us.
-
- Active Member
- Posts: 30
- Joined: Tue, 2019-Sep-24, 05:16
- Location: Aalten, almost Germany
- Contact:
Re: Private studio in Slovakia
Thanks.
I guess you don't need permits etc.
Over here it wouldn't be so easy to get such a project on the rails
.
I guess you don't need permits etc.
Over here it wouldn't be so easy to get such a project on the rails

-
- Full Member
- Posts: 156
- Joined: Sat, 2019-Oct-12, 18:39
- Location: England - Bristol
Re: Private studio in Slovakia
So great to see the progress!
What kind of blocks are they? Are they solid or hollow core?
Yea over here the acoustic foam is blue, soudal make it I think...as well as others I’m sure... very low expansion and flexible when cured.
What kind of blocks are they? Are they solid or hollow core?
Yea over here the acoustic foam is blue, soudal make it I think...as well as others I’m sure... very low expansion and flexible when cured.
- Success in music is being able to make music whatever your situation -
- howiedrum
- Active Member
- Posts: 97
- Joined: Sun, 2019-Oct-06, 13:57
- Location: Mckinleyville, California U.S.A.
Re: Private studio in Slovakia
I finally got some time to check out what you are doing. It looks nice. Slovakia too! But it sure does look like a Gingerbread house
I look forward to seeing your progress. It nice knowing we are both going through this at the same time.
Cheers,
Howie
Yeah it's hard to think of everything. Here in California, I had to get a permit from the County because the building site was in clear view of our main country road and so I couldn't take the risk that many folks do to build without a permit. So I had to be specific about building materials or I couldn't get the permit. My building is pretty simple because it is just two rooms, the studio and a small kitchenette and bathroom. A number things are left out on the approved plans and some of the things listed don't give the exact product. For example it says "sound insulation" or surface mounted outlets, but not which kind, and other generalities. Well you know since you read my post, caulking is not listed. These extra things is what got the general contractor upset even though he was cc'd on emails about all these details. I changed my mind about a number of things throughout the process. I was patient and didn't want to start building until I got the thumbs up from Stuart and other folks and sources. The final thing I'll say is I knew from past experience that the general contractor would charge me a high price for everything imaginable if I agreed to a T&M do it as we go approach.It has been interesting to read Howie's topic New Studio Build Underway and how he chose to go with getting a quote for the whole job.
I look forward to seeing your progress. It nice knowing we are both going through this at the same time.
Cheers,
Howie
- Starlight
- Full Member
- Posts: 480
- Joined: Wed, 2019-Sep-25, 12:52
- Location: Slovakia, Europe
- Contact:
Re: Private studio in Slovakia
bert stoltenborg wrote:I guess you don't need permits etc.
Over here it wouldn't be so easy to get such a project on the rails :) .
One thing that may be working in our favour is that we bought a commercial space. I checked with a structural engineer regarding the weight of the wall and we got talking about architects - because I thought he might be able to recommend one. He told me that so long as we do not remove the bathroom area (both rooms) then we are free to do what we like within our space. The only other rule I am conscious of is that here in Slovakia you have to be quiet after 10pm, something I have no intention of doing and so that is why I am paying attention to sound isolation.
- Starlight
- Full Member
- Posts: 480
- Joined: Wed, 2019-Sep-25, 12:52
- Location: Slovakia, Europe
- Contact:
Re: Private studio in Slovakia
Purelythemusic wrote:What kind of blocks are they? Are they solid or hollow core?
Yea over here the acoustic foam is blue, soudal make it I think...as well as others I’m sure... very low expansion and flexible when cured.
Between solid and hollow, these Porotherm blocks seem to be popular in thermally-challenged countries - I have seen them in Spain where it gets hot. Here in Slovakia we have a continental climate. I have experienced -26°C (-16°F) to 39°C (102°F). As for the blocks' acoustic properties, I was ready to go with solid concrete blocks but John H. Brandt said it would be overkill and so it was easier to go with what the builder would consider normal. I was thinking I would have to fill each block with dry sand; I am glad I did not need to.
As for the foam, we are using a Dutch product (multi kleber) from Den Braven. As you can see, it does not expand as much as expanding foam. This is because its job is not to expand and fill gaps but to be an ashesive for building materials. It has a density of 20kg/cu.m. which is a bit better than the 12kg/cu.m. that expanding foam has. I have 200 metres of Den Braven backer rod which has a density of 40kg/cu.m., showing that foam products in general are no match for the blocks which come in at 800kg/cu.m.
- Soundman2020
- Site Admin
- Posts: 905
- Joined: Thu, 2019-Sep-19, 22:58
- Location: Santiago, Chile
- Contact:
Private studio in Slovakia
Thanks for the kind words. Much appreciated!I thought John's Balanced Non-Environment would be the way I would like to proceed. This year I have got to know Stuart and really appreciate his ability as a teacher. Stuart has helped me probably double what I learned in the last 7 years during 2019. Had I known Stuart before I opted for John H. Brandt, quite possibly I would have employed Stuart to help with our studio. The gory maths and stuff, as you described it, Bert, is something I can leave to John.
You are probably in safe hands with him. He and I might seem to be "competitors" as studio designers, but I don't see it that way, and I don't think he does either. We even communicate every now and then, albeit not very often. And we very, very rarely compete on bids for the same client. I think that might have happened maybe two or three times in all the years I've known him. He does good work, and I'm not at all upset or jealous that he is designing your place for you, Starlight! Rather, I'm pleased, since I know it's going to be a well designed studio. Unlike some other "designers" out there, John Brandt mostly does stick to the science of acoustics, and doesn't "wing it" too much, based only on whims and guesses and tradition, like some others do.
And it seems to be progressing well right now! Looking good!

- Stuart -
-
- Similar Topics
- Statistics
- Last post
-
-
Just Another Garage Studio Attachment(s)
by bradvuv » Sat, 2025-Aug-16, 01:40 » in RECORDING STUDIO DESIGN -
Replies: 6
Views: 6928 -
by bradvuv
View the latest post
Tue, 2025-Aug-19, 01:41
-
-
-
CYC WALL IN STUDIO? PROBLEMS?
by StudioJiimaan » Mon, 2025-Feb-17, 20:23 » in RECORDING STUDIO ACOUSTICS AND TREATMENT -
Replies: 6
Views: 10435 -
by StudioJiimaan
View the latest post
Fri, 2025-Feb-21, 19:03
-
-
-
Replies: 5
Views: 15002 -
by gullfo
View the latest post
Tue, 2025-Apr-15, 17:55
-
-
Studio Layout and Acoustic treatment
by coastingbeats » Fri, 2025-Mar-14, 19:12 » in RECORDING STUDIO DESIGN -
Replies: 1
Views: 5227 -
by gullfo
View the latest post
Sat, 2025-Mar-15, 12:57
-
Who is online
Users browsing this forum: No registered users and 86 guests