Small Home Control Room

Start your own studio thread here: Goals, plans, layouts, treatment, speakers, questions, queries, comments...
Dmitry S
New Member
Posts: 4
Joined: Sat, 2020-Oct-24, 13:43
Location: Russia, Moscow

Small Home Control Room

#1

Postby Dmitry S » Mon, 2020-Nov-02, 00:18

Hello! First of all, I would like to express my gratitude to Stuart for the large amount of useful information. Thank you very much for taking the time to do this. I have been reading this forum for many days and have learned a lot from all of your topics. At the moment I am trying to plan a control room in my house. I would like to ask for advice.

1.
I've been producing music for 20 years, arranging, mixing. I usually work with a loudness level of 75-80 dB SPL. My speakers are Geneleс 1037 and ATC SCM20. The house will be located in the countryside, there are no noisy roads and objects nearby (at the moment :)), very quiet and there are few people around :) I do not need to live record anything, so I do not need significant sound insulation, 40-45 db would be enough for me (however, I may be wrong in my assessment). I want to focus on the sound absorption in the room. I don't need the best control room on Earth, but I would like a decent, acoustically comfortable room to work with.

2.
The control room is planned to be on the side of the house, according to the plan there should have been a garage. Therefore, the room will have three outer walls and one inner wall with the house. The house will be built on a concrete foundation and timber frame technology. Although I can now change the area of ​​the future control room, I would not like to do this for various reasons. I drew the future outlines of the room and the structure of the walls.
Room size and walls plan.jpg

In general, the dimensions of the entire room are 5.25x3.40x2.75. Concrete floor with built-in water heating. There will be no other rooms above the room, but there will be a flat, exploited roof, where we will sometimes gather with our family. The structure of the ceiling will consist of 400 mm I-beams filled with mineral insulation with a density of 35 kg / m3, on top of which there will be an operating roof covering with decking. From the inside, the ceiling is sheathed with two layers of 12.5 mm drywall. In principle, nothing bothers me here, but I would like to ask how critical it is for sound insulation that one wall is slightly different in structure and width from the other three? This wall is not adjacent to living and noisy rooms, so maybe this is not a problem? Also at this stage, I can replace the inner wall cladding with a thicker drywall or other material if this helps to slightly improve the sound insulation.

The house is planned to have centralized ventilation with heat recovery, so the control room will have both fresh air intake and dirty air intake. Advise on mufflers, do you need those big heavy boxes that Stuart designs beautifully, or you can get by with conventional mufflers like this -
glushitel.png


I can be wrong and these things perform completely different tasks, so I will be glad to any of your thoughts on this matter.

3.
Control room plan. I made two versions, the first one seems to me to be usual and basic for me, and the second one is strange, but it has some interesting moments. I'll start with the first one.
Plan V1.jpg


To begin with, I separated part of the room in order to accommodate my PC and some other auxiliary devices that I need, but make unnecessary noise. For this I assume a 20 cm wall with two layers of plasterboard on both sides, each 12.5 mm thick. In theory, I can replace drywall with something else, if it gives any advantages. A plastic door with double glazing is planned in this wall, one is marked on the plan, but in general there is an idea to put two of them opposite each other on both sides of the wall. They are quite good at soundproofing, it seems that this is what I need.
I have long dreamed of flush mounting my genelecs. Therefore, any variant of the control room provides for soffits. Many people advise me to make them out of bricks or not to do them at all, but reading yours and other forums, I see that you can do this with a wooden frame. I don't really understand all the details of this yet, but I hope I can figure it out. At least I know that the frame and the front wall should be as heavy and strong as possible :)
Since I do not need powerful soundproofing, I thought that I should not build a room in a room. Instead, I thought I could make the sound absorption thicker. As a basis for broadband absorbers, I took a design by John Brandt - https://www.jhbrandt.net/wp-content/upl ... 20Inch.pdf

Probably I am very wrong in this, but I thought that if I just increase their depth, then I would get some absorption :) Therefore, I planned 30 cm absorbers on the side walls, and 70 cm absorbers at the back. I got these values ​​in John Brandt's calculator for room modes, but there is probably something to clarify here. Also I will probably need some diffusion, which I am planning to do with wood slats over the decorative absorbent fabric. I am also very concerned about the ceiling. What if you hang a similar broadband absorber 25-30 cm thick on it, will it work? The thickness of the ceiling absorber is also obtained from John's calculator.
Surely my plan looks very funny because I just took someone else's design and applied it to my room, so I would really appreciate any help with this :oops:


And now the second version of the plan. Funny and naive :)

Plan V2.jpg

I thought, what if, instead of a wall dividing the room in two, you just increase the depth of the rear absorbers and not make them a hard backing? That is, we use the entire length of the room without additional walls and have one meter deep rear absorbers with a gap of 1 meter from the rear wall. This allows me to sit a little further away from the front speaker wall. It also lowers the first axial mode to 32 hertz, which is lower than what my speakers can reproduce (genelecs has a lower end of the 36 hertz range). I'm not sure, but is there any advantage over the first option? Of course, many questions arise here, for example, do we need doors in the back? How do absorbers work with this back wall clearance? Does this make any sense? :)

However, there are some common questions I would like to ask. Is a door in the back wall better in the middle of the wall or on the edge? Can I make broadband absorbers exactly like this, with waveguides, or will it lead to unpredictable results? How do frame walls work with the lowest frequencies in general, does it make sense to make absorbers too deep or will the sub bass pass through the walls without reflecting into the room?

Surely my plan looks very funny because I just took someone else's design and applied it to my room, so any help with that would be greatly appreciated.


And there is another important big question about speaker placement. I tried to draw their position with those 15 points from Stuart.
Speakers Placement.jpg


Unfortunately, the width of the room does not give much freedom in placement and I get either on the 45 degree line of the corners, or 25% of the width of the room. Which one is worse? I am inclined to think that the angles are worse than 25% :) I would be glad for your thoughts on this matter.

Look like that's it. I hope for fruitful communication :)
Have a nice day!



User avatar
Soundman2020
Site Admin
Posts: 911
Joined: Thu, 2019-Sep-19, 22:58
Location: Santiago, Chile
Contact:

Small Home Control Room

#2

Postby Soundman2020 » Mon, 2020-Nov-02, 03:32

HI there Dmitry, and Welcome to the forum! :) :thu:

Thanks for the kind words about the forum, and I'm really glad you found it useful.

I usually work with a loudness level of 75-80 dB SPL.
That's very smart! Keep the levels down, and keep your hearing good for a long time.

My speakers are Geneleс 1037 and ATC SCM20.
Nice! Older speakers, but still very decent.

do not need significant sound insulation, 40-45 db would be enough for me (however, I may be wrong in my assessment).
As luck would have it, just a few minutes ago I wrote a long post to someone else about how to determine isolation for their studio, so I'm going to turn it into an article, and post it in the reference area.... How much isolation do you need? How to find out.But 45 dB is a good goal for a control room, and there should be no problem achieving that, if you work carefully.

The house will be built on a concrete foundation and timber frame
:thu: That's a good start!

I drew the future outlines of the room and the structure of the walls.
That's a decent sized room. You will have a floor area of about 18m2, which is small, but still good. However, you show that you intend to divide the room into two sections, with one as a "mini machine room". Doing that makes your control room VERY small: just 13m2. I would recommend that you avoid doing that. Keep the entire space for your control room, and mount your gear in racks inside the room, perhaps in the desk, like this: The Soundman M1 studio desk

From this point of view, "version 2" of your plan is better. Keep the room as large as possible.

To get the isolation you want, what I would suggest is that you decouple the drywall on the inside of the room, from the studs. At present, your diagram shows the outer siding and the inner drywall are both attached to the same studs, but that limits your total isolation to less than what you are aiming for. I would suggest using isolation clips of some type, together with "hat channel", and that should provide enough decoupling for your needs. There are several different types of clip, such as RSIC, Isomax, Whisperclips, Noiseproofing Clips, etc.
clips-isomax.jpg
rsic1-stud-enh.jpg
gg-noiseproofing-clips.jpg
Any of those should do what you need.

The other thing I would suggest, is using thicker drywall. Your diagram shows 2 x 12.5mm layers, but I would suggest 2 x 15mm layers, if you can get that where you live.

One other suggestion: If you do use the entire space for your room, without splitting it into two, then try to move the door. It would be in the rear corner of the room, but that's where your bass trapping needs to go, so if you could move the door about a meter or so forward, that would be much better.

how critical it is for sound insulation that one wall is slightly different in structure and width from the other three?
It is not that critical. The problem here will likely be "flanking", which basically means that sounds in the structure of the house will be transmitted into the room, and also the other way. It would be very important to decouple this inner-leaf here, on the house wall, and it might even be a good idea to do a second, separate from on that wall, to maximize isolation. The other walls can still be "clips + hat", but this wall might need better decoupling.

or you can get by with conventional mufflers like this -
Those commercial "off the shelf" silencers are designed to reduce fan noise and air noise, but they are not very effective for music. It would probably be better to use a proper wood silencer box. However, your isolation needs are in the "moderate" range, so it might be possible to use just one single box for the incoming fresh air, and one singe box for the exhaust air. For high isolation, you need two boxes on each duct, but your isolation is low enough that you can probably use just one on each duct.

To begin with, I separated part of the room in order to accommodate my PC and some other auxiliary devices that I need, but make unnecessary noise.
How much noise do the make? If they are not too loud, then it might be better to put them in an isolation box, rather than take up an entire room. You could probably build such a box in the space between the soffits at the front of the room.

I have long dreamed of flush mounting my genelecs.
:thu: :thu: :thu: Yes yes yes yes!!! Very good idea! Those work VERY well when flush mounted. In fact, this room A properly treated and tuned control room: S3P started out with Genelec 1032's! Very similar to your 1037's. Here's some early photos of the construction:
RDMO--front-genelecs-2.jpg
RDMO--front-genelecs-1.jpg
RDMO--front-genelecs.jpg
We used the Genelecs initially, for all the setup and tuning, and the studio ran with those for about a year before they decided to upgrade to the Eve's. They worked VERY well mounted like that.

Many people advise me to make them out of bricks or not to do them at all, but reading yours and other forums, I see that you can do this with a wooden frame.
Right! You do not need bricks to do this! Wood framing is fine, easier to do, more accurate, and more flexible. And probably cheaper, too.

I don't really understand all the details of this yet, but I hope I can figure it out. At least I know that the frame and the front wall should be as heavy and strong as possible
I have a fairly standard soffit design that I can adapt for most rooms and most speakers quickly (in a few days), and I do offer that as a service, if you are interested. PM me if you would like to go that route.

Probably I am very wrong in this, but I thought that if I just increase their depth, then I would get some absorption :) Therefore, I planned 30 cm absorbers on the side walls, and 70 cm absorbers at the back. I got these values ​​in John Brandt's calculator for room modes, but there is probably something to clarify here
That looks like an old Tom Hidley based design, from about 40 years ago. Tom did have some great ideas, and built many excellent rooms, but acoustics science has advanced a lot since those days, and there are better, ore modern design concepts now. What you are showing there wastes a lot of space in the room, unnecessarily. Yes, you do need deep bass trapping on the rear wall, but not so much on the sides. And the devices on the rear wall are more correctly called "acoustic hangers", not "waveguides". Only part of what they do is based on waveguide principles. Hangers use seven different acoustic principles to deal with bass, and only one of those is waveguide. So calling those a waveguide is sort of like referring to a car as an "engine". Yes, it has an engine, but there's a lot more to it than just an engine!

Also I will probably need some diffusion, which I am planning to do with wood slats over the decorative absorbent fabric.
Right, but that isn't really true diffusion: it is more just to keep some of the high frequency energy in the room. Your room probably isn't big enough to use true diffusion, but you will definitely need to have slats of some type, or something similar, to prevent the bass trapping from taking out too much of the mids and highs.

I am also very concerned about the ceiling. What if you hang a similar broadband absorber 25-30 cm thick on it, will it work?
Sort of! :) What you are talking about is called a "ceiling cloud", and there are different ways of making them. Here's one option:
SOUNDMAN--sample-standard-cloud--for--recording-studio.jpg
That's the way I often do them for small rooms. Sometimes you need to split the cloud into two parts, hung at different angles.

I thought, what if, instead of a wall dividing the room in two, you just increase the depth of the rear absorbers and not make them a hard backing? That is, we use the entire length of the room
:thu: Yes!.... sort of... :)

It also lowers the first axial mode to 32 hertz, which is lower than what my speakers can reproduce (genelecs has a lower end of the 36 hertz range).
Even though speaker literature often mentions the "low cutoff" frequency, it isn't a sudden drop: there is still a lot of energy put out by the speaker well blow that. The roll-off depends on the cross-over design, and other characteristics of the speaker and the cabinet, but is commonly something like 6 to 24 dB/octave. I'm not sure what it is for the 1037's, but probably 24 dB/oct. Let's assume that is the case. So, if the advertised lowest frequency is 35 Hz, that's the point where it is -3dB. One octave lower, at 17Hz, it is down by -27 dB. A lot lower, but it can still put out sound down that low. But at half an octave lower, 26 Hz, it is only 15 dB lower, and at a quarter octave lower, 31 Hz, it is only about 7 dB lower, so there's substantial energy there.

Is a door in the back wall better in the middle of the wall or on the edge?
In the middle. Keep the corners for bass trapping, since that's where you get the best trapping effect. The middle is still good for trapping, but the corners are better. But better still is ti have the door on the middle of the side wall, so the entire back wall is free for ttrapping.

Can I make broadband absorbers exactly like this, with waveguides,
The empty air depth back there will act as a low-level resonator, and it will be tuned to some unknown but very low frequency. So it MIGHT help, but unless you can predict that frequency, you'll never know... :) Also, part of the waveguide principle of acoustic hangers, is that the "wave" is "guided" into something that absorbs it, directly on the rear and side walls, right where the hangers end. In the scenario you describe, the wave would be guided into empty air...

I would suggest moving all of that trapping right back to the rear wall, and leave more floor space for yourself inside the room.

How do frame walls work with the lowest frequencies in general, does it make sense to make absorbers too deep or will the sub bass pass through the walls without reflecting into the room?
There are several effects here, depending on how the walls are built, and how the treatment is built. Some sound might, indeed, go through the walls if they are not build properly. It also depends on frequency. The walls themselves might even vibrate / resonate at certain frequencies, if they are not damped properly.

Anyway, it's 3:30 AM here where I am, and I need to get some sleep! Hopefully that's enough to get you started!


- Stuart -



Dmitry S
New Member
Posts: 4
Joined: Sat, 2020-Oct-24, 13:43
Location: Russia, Moscow

Small Home Control Room

#3

Postby Dmitry S » Thu, 2020-Nov-05, 00:19

Hi Stuart! Thank you so much for your answer! He pushed me towards some solutions :)

Soundman2020 wrote:Source of the post That's a decent sized room. You will have a floor area of about 18m2, which is small, but still good. However, you show that you intend to divide the room into two sections, with one as a "mini machine room". Doing that makes your control room VERY small: just 13m2. I would recommend that you avoid doing that. Keep the entire space for your control room


After some thought and sorting through the values ​​in the calculator of room modes, I came to the conclusion to increase the width of the room to 3.8 m and to discard the extra wall behind. To do this, I found the opportunity to move the door one meter forward from the back wall. Now my room's ratio is 1: 1.38: 1.89 which is close to the 1: 1.40: 1.90 ratio of M.M. Louden. I understand that it doesn't matter in a small room, but I'm glad to know that I have at least a good ratio :D
This is a new plan.
Room Size and Walls.jpg


The room size is now 5.2 * 3.8 * 2.75. The increased width allowed me to delicately position the speakers between the corner lines and the 25% line of the room's width. It also affected the position of the speakers in the front ceiling panel, in my opinion it is better now.
Speakers Placement.jpg


Soundman2020 wrote:Source of the post The problem here will likely be "flanking", which basically means that sounds in the structure of the house will be transmitted into the room, and also the other way. It would be very important to decouple this inner-leaf here, on the house wall, and it might even be a good idea to do a second, separate from on that wall, to maximize isolation.


After consulting with my construction engineer, we decided to change the design of the inner wall from one frame to a double frame.
Double frame.jpg

Do you think this will help improve structure-borne noise insulation between the home and the control room? I will also follow your advice to replace the 12.5mm drywall with a 16mm. And there is one problem here.


Soundman2020 wrote:Source of the post your diagram shows the outer siding and the inner drywall are both attached to the same studs


External facade fiber cement slabs are a ventilated facade. That is, there is a 2-3 cm ventilation gap between the waterproof membrane and these plates. This means that only the inner double layer of the drywall is responsible for the sound insulation of the three outer walls. So I want to ask what can be done? For example, I can glue a membrane with a density of 4 kg / m2 between layers of drywall. Will this help improve the insulation of the outer walls? Or, green glue or similar sealant can be used. This is in addition to the isolation clips. I would like to avoid building a room in a room, but if there are no other options to make the required level of isolation, then I have to do it :(

Soundman2020 wrote:Source of the post Those commercial "off the shelf" silencers are designed to reduce fan noise and air noise, but they are not very effective for music.


What do you mean ineffective for music? I thought it was important to suppress the noise of moving air in the ducts so that in the control room this noise was as quiet as possible. And these mufflers cope with this task? But what does it mean that they are not suitable for music? Will you hear music from the control room throughout the house? :) Or something else? Please tell me, I don't have enough knowledge here.

Soundman2020 wrote:Source of the post That looks like an old Tom Hidley based design, from about 40 years ago. Tom did have some great ideas, and built many excellent rooms, but acoustics science has advanced a lot since those days, and there are better, ore modern design concepts now. What you are showing there wastes a lot of space in the room, unnecessarily. Yes, you do need deep bass trapping on the rear wall, but not so much on the sides.


Good. And if instead of these absorbers I cover the entire back wall with hangers, will it be effective? Let's say a layer of hangers a meter deep? Or is this also not enough to drop to 33 hertz (the first axial mode in the room)? I could also hang hangers on the side walls, but with less depth. If possible, one would like to avoid membrane absorbers, as it seems that they are very difficult to manufacture. But if I don't have other options, then of course I will take a drill and a hammer in my hands and make them, although it will not be easy for a person who has never worked with wood :lol:

Soundman2020 wrote:Source of the post In fact, this room A properly treated and tuned control room: S3P started out with Genelec 1032's!


Yes, this room turned out great! I would like to get closer to the same result in my control room, but I'm afraid I don't have extra meters in height on the ceiling :D I will try, of course:)

Soundman2020 wrote:Source of the post I have a fairly standard soffit design that I can adapt for most rooms and most speakers quickly (in a few days), and I do offer that as a service, if you are interested. PM me if you would like to go that route.


I'll think about that as we get closer to the design of the ceilings. Now we need to deal with sound insulation.

I am glad for your answers, friends!
Have a nice day!



User avatar
Soundman2020
Site Admin
Posts: 911
Joined: Thu, 2019-Sep-19, 22:58
Location: Santiago, Chile
Contact:

Small Home Control Room

#4

Postby Soundman2020 » Thu, 2020-Nov-05, 02:43

I came to the conclusion to increase the width of the room to 3.8 m and to discard the extra wall behind. To do this, I found the opportunity to move the door one meter forward from the back wall. Now my room's ratio is 1: 1.38: 1.89 which is close to the 1: 1.40: 1.90 ratio of M.M. Louden.
:yahoo: That's excellent! A bigger room, with a better ratio, and the door moved out of the corner. Those are three very good improvements!

I understand that it doesn't matter in a small room, but I'm glad to know that I have at least a good ratio
It's not that the ratio doesn't matter at all: Rather, the ratio is just one factor to consider as you design the studio. The problem here is that some people take "room ratios" much too seriously, and try to make changes that really are not that useful. A good ratio is nice too have, and useful, but there are other things that are just as important, or even more important: Such as room volume (as big as possible), and keeping the corners free for bass trapping... :)

The room size is now 5.2 * 3.8 * 2.75.
:thu: Much better! That is very nearly 20m2 floor area, which is the minimum recommended for a "critical listening" room, so you are fine there. And the 2.75 m ceiling height is also great.

After consulting with my construction engineer, we decided to change the design of the inner wall from one frame to a double frame.
Yet another important change! That will definitely help to improve the isolation.

Do you think this will help improve structure-borne noise insulation between the home and the control room?
Definitely.

External facade fiber cement slabs are a ventilated facade. That is, there is a 2-3 cm ventilation gap between the waterproof membrane and these plates. This means that only the inner double layer of the drywall is responsible for the sound insulation of the three outer walls.
Hmmm.... Not so good. That's a problem. If that outer leaf is ventilated, then you don't have a proper 2-leaf MSM wall. Here's some useful information on that:
What is "room-in-a-room" construction?
What is "MSM"? How does it work?
So, we'll have to figure out a way of creating a proper "outer leaf" for you, in addition to the "real" outer leaf. This does mean that you will have a 3-leaf system, instead of the normal 2-leaf system, which means lower isolation.... however, we can compensate for that with the wall design.

So I want to ask what can be done? For example, I can glue a membrane with a density of 4 kg / m2 between layers of drywall. Will this help improve the insulation of the outer walls?
That sounds like you are talking about MLV (Mass Loaded Vinyl), or something similar? That would increase the mass, yes, but not enough to be useful by itself. If the wall cavity is ventilated, then basically your isolation is subject to a principle of physics called "mass law", and the equation for that is simple:

TL = 14.5 log (M * 0.205) + 23 dB

Where: M = Surface density in kg/m2

If you plug in your total mass values there, you0ll see that you can't get good isolation unless you have VERY high mass. That's why studios are normally built with 2-leaf "MSM" walls, because MSM is a very different principle of physics. The equations for that are more complex, but basically you get a LOT more isolation for the same amount of mass.

Or, green glue or similar sealant can be used.
Green Glue is great, but it is not a sealant. It is a very special type of product, in the form of a visco-elastic polymer", which basically means that it is gooey and soft, and rubber, and stretches, and also does other good things. Technically, it acts as a "constrained layer damping material", which is just a fancy way of saying that it is held in place by the layers on each side, and when one of them vibrates, it "damps" the motion of the vibration, preventing it fro getting through to the other side. It is a bit more complex than that, but it works very well, and in fact there is no other product as good. It is not a sealant, and it is not glue (despite the name!). I really wish they would have used another name originally, because it isn't glue! Here's something I wrote about that, a coupe of months ago: The truth about Green Glue

OK, so even though Green Glue is very good, it still won't do what you are wanting it to do. It works best when it is part of a proper two-leaf wall.

This is in addition to the isolation clips. I would like to avoid building a room in a room, but if there are no other options to make the required level of isolation, then I have to do it
Does that outer leaf HAVE to be ventilated? IS there any way you can fix that, so that the outer leaf is NOT ventilated? Some way of sealing up the wall? If you can do that then you are fine! You don't need to make any other changes.

What do you mean ineffective for music? I thought it was important to suppress the noise of moving air in the ducts so that in the control room this noise was as quiet as possible. And these mufflers cope with this task? But what does it mean that they are not suitable for music? Will you hear music from the control room throughout the house?
Yes you will hear music in the house. You will also hear house sounds getting into your studio, such as the phone ringing, vacuum cleaner, TV, radio, washing machine, etc. Sound travels very well through pipes and ducts. In fact, it travels so well that "speaking tubes" or "sound pipes" were the normal method for communicating on ships:
speaking-tube-german-1-SML-ENH.jpg
The captain had several tubes, going to different places in the ship, to give instructions. This was before telephones were used... however:
speaking-tube-on-warship-today--800px-Voice_tube-SML.jpg
speaking-tube-on-modern-warship-2015-SML-ENH.jpg
Those are both modern warships! The first photo is from 2009, the second one from 2013. They still use them today, because they are reliable, always work, and do not need any electrical power. So even if the ship is heavily damaged, has no power, and no telephones, the captain can sill communicate.

Those are just ordinary metal pipes: nothing special. An HVAC duct is very similar, and does, indeed, conduct sound very well, even over long distances. (Speaking tubes on ships were sometimes as long as 80 or 90 m (about 300 feet).

So you need silencers to stop the music from getting through, and also to stop house sounds from bothering you as you try to mix quiet tracks.

Good. And if instead of these absorbers I cover the entire back wall with hangers, will it be effective? Let's say a layer of hangers a meter deep? Or is this also not enough to drop to 33 hertz (the first axial mode in the room)?
The wavelength for 33 Hz is about 10 meters (34 feet). Acoustic theory says that you can get useful acoustic absorption using porous absorbers of just 1/16 wave, which works out to about 60 cm (about 23 inches) in your case, so if you were to use pure absorption, it would have to be about 60cm thick. Hangers are a bit different, and you can get by with slightly less, depending on the angle and size. Probably about 50cm would be the minimum. Of course, more is better!

However, you don't really need to have them that deep across the entire wall: its the corners that are important. So you could make them maybe 80cm or so deep in the corners, but then angle them back diagonally to be maybe 30cm or so across the middle of the wall, like this:
SNO--Rear-Riser-Floor-and-hangers.JPG
SNO--Rear-Riser-Floor-and-hangers-finished.JPG
SNO--Rear-Riser-Floor-and-hangers-finished-2.JPG
That's a room that is currently under construction by one of my clients, who wants to remain anonymous for now. The room is basically completed now, and we are just in the final precision tuning stage. You can see in the first photo, how the hanger in the corners are larger than the other ones across the middle, and how they get progressively smaller away from the corners. The other two images show the room after the fabric covers were put on, and the slats added, so you can see how to hide them neatly.

You could do something like that in your room.

I could also hang hangers on the side walls, but with less depth.
You don't need hangers on the side walls. You will need some type of treatment, yes, but not hangers. Take a look at the Studio 3 Productions thread, and you'll see some photos that show the side walls: What I did there, was three panels on each side wall, with different treatment inside each one, as needed for the position and the problems at that position. You can see some of that here, under construction:
ROD-2014-Mar-10-ROOM-A17-SML-ENH.jpg
... and completed ...
RDMOUS-M-CR-Side-.jpg


In the case of the anonymous studio above, I did something similar, put the panels are different, because he room had different problems that needed treating.
DSC00398 copy.jpg
The panels are shaped differently here, and deeper too, because I needed to do some more complicated things there, but they are not as tall because there's no serious issues higher up in this room.

So, yes, you will need side wall treatment, but not hangers. It should be designed specifically for the acoustic problems in your room, if you want the best possible acoustic response, or they could just be more "generic" panels if you don't need such high accuracy.

If possible, one would like to avoid membrane absorbers, as it seems that they are very difficult to manufacture.
Ahhh, well, they are only difficult to make if the design is complicated! With a simple design, they can be simple to build as well... :)

But if I don't have other options, then of course I will take a drill and a hammer in my hands and make them, although it will not be easy for a person who has never worked with wood
After you do the framing and the hangers, you will have worked with a lot of wood! :) So you'll be able to do things that are a bit harder...

Yes, this room turned out great! I would like to get closer to the same result in my control room,
You probably won't be able to get exactly those results, because that room is much bigger than yours, and there's a HUGE amount of treatment in there, but you can still get very good results in your room. Here's another construction photo, from the early days, showing the very large amount of porous absorption that went in, above the front of the room.
Studio-3--Insane-front-and-ceiing-insulation.jpg
Obviously, you room is not big enough to do that, but it is big enough to do other things and still get good acoustic response. Sometimes I see acoustic "experts" talking about it being silly to try to treat small rooms, saying that it is a waste of time, but that simply is not true. I have even heard of a couple of them that refuse to take on a project if the room is not a certain size! :shock: I think they just say that because they don't know HOW to treat small rooms successfully! :) In fact, it is easy to treat large room and get good results, so that0s probably why they only want to do large rooms... The big challenge in acoustic design is to treat a small room to sound great: Maybe they don't like challenges... :lol:

But in reality it isn't hard to make a drastic improvement in most small rooms. The majority of home studio builders do not have a large room, and they just want to make a small room usable: that is very possible, and does not require extreme treatment. Modest treatment can already get very noticeable, very useful improvements, and that's what most home studio builders need. And with a bit more work, and careful analysis, and careful design, it is possible to make a small room like yours, REALLY good. It all depends on how much time and money you want to invest in it.

I'll think about that as we get closer to the design of the ceilings. Now we need to deal with sound insulation.
:thu: If you can build those three external walls without making them vented, then you would solve the problem. If not, then we can look at other ways of getting good isolation.

- Stuart -



Dmitry S
New Member
Posts: 4
Joined: Sat, 2020-Oct-24, 13:43
Location: Russia, Moscow

Small Home Control Room

#5

Postby Dmitry S » Thu, 2020-Nov-05, 17:53

Hi Stuart! It's me again :)

Soundman2020 wrote:Source of the post Those are three very good improvements!

Soundman2020 wrote:Source of the post Much better!

Soundman2020 wrote:Source of the post Yet another important change! That will definitely help


It's nice to read :) It is a pity that not all room parameters can be matched with such words. But we will try to improve the situation :)

Soundman2020 wrote:Source of the post Does that outer leaf HAVE to be ventilated? IS there any way you can fix that, so that the outer leaf is NOT ventilated? Some way of sealing up the wall? If you can do that then you are fine! You don't need to make any other changes.


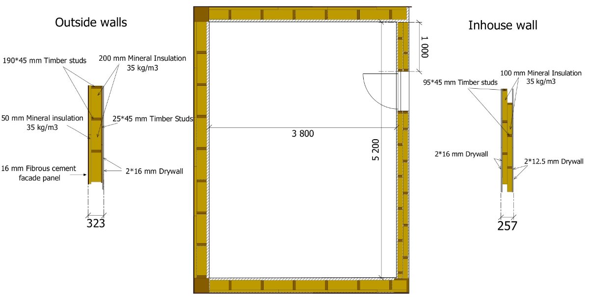
I consulted with the builder and came to the conclusion that we have the opportunity to make a rigid lining under the ventilated facade. I have several options for how to make it. These are OSB-3, Gyprok GTS-9, Isoplaat fibreboards or Cement Bonded Particle Board (https://www.eltomation.com/eng/our-prod ... bpb-plant/ - нere you can see their parameters). For now, I'm leaning towards the latter option, since these boards are very heavy, twice as heavy as drywall. And one such 16 mm plate has the weight of two 15 mm drywall sheets. It seems to me that this is a good option, since we will have approximately the same mass on both sides of the frame (I do not take into account the weight of fiber cement facade slabs here, because they are with a ventilation gap). But with these plates there is one small problem, during installation it is necessary to make expansion joints between the plates, at least 4 mm. Will there be enough sealant to seal these joints, will it be possible to obtain an airtight surface in this way? I also see that when installing OSB-3 boards, it is also necessary to make expansion joints between the boards. They do not need to be done when using Gyproc GTS-9, but this facade drywall is only 9 mm thick and it will not be easy to use it to gain a mass similar to the inner layer of drywall (it is also very difficult to buy it). What do you think about this? Would a ventilated façade be a problem now (although it looks a lot like a 3-leaf system :cry: )?

I drew a diagram of the outer walls and the inner one.
Outwall v2.jpg

Inwall v2.jpg


Soundman2020 wrote:Source of the post Yet another important change! That will definitely help to improve the isolation.


I have a choice of two options for the execution of the internal wall frame.
Frame v1.png

Frame v2.png


The first is easier in construction, but will the joint tying of the studs worsen the sound insulation? Moreover, any of these options has the same ceiling overlap and the same foundation. Does it make sense in this case to make two separate frames?

Soundman2020 wrote:Source of the post Yes you will hear music in the house. You will also hear house sounds getting into your studio, such as the phone ringing, vacuum cleaner, TV, radio, washing machine, etc. Sound travels very well through pipes and ducts.


Damn it, some problems :) Thanks, I will remember that I need muffler boxes :)

Soundman2020 wrote:Source of the post The wavelength for 33 Hz is about 10 meters (34 feet). Acoustic theory says that you can get useful acoustic absorption using porous absorbers of just 1/16 wave, which words out to about 60 cm (about 23 inches), so if you were to use pure absorption, it would have to be about 60cm thick. Hangers are a bit different, and you can get by with slightly less, depending on the angle and size. Probably about 50cm would be the minimum. Of course, more is better!

However, you don't really need to have them that deep across the entire wall: its the corners that are important. So you could make them maybe 80cm or so deep in the corners, but then angle them back diagonally to be maybe 30cm or so across the middle of the wall, like this


It looks simple and effective at the same time. I like it:) :yahoo:

Soundman2020 wrote:Source of the post If you can build those three external walls without making them vented, then you would solve the problem.


I think we will succeed!

Have a nice day!



User avatar
Soundman2020
Site Admin
Posts: 911
Joined: Thu, 2019-Sep-19, 22:58
Location: Santiago, Chile
Contact:

Small Home Control Room

#6

Postby Soundman2020 » Fri, 2021-Jun-25, 00:34

Hi again, Dmitry! As you probably noticed, I've been absent from the forum for a while, due to health issues, but I'm back again now, and trying to get up to speed again: So if you are still around, then now would be a good time to revive your thread, show us where you are at now, and let's see if we can help you get to your goal!

- Stuart -



Dmitry S
New Member
Posts: 4
Joined: Sat, 2020-Oct-24, 13:43
Location: Russia, Moscow

Small Home Control Room

#7

Postby Dmitry S » Tue, 2021-Sep-14, 17:00

Soundman2020 wrote:Source of the post show us where you are at now


Hi Stuart! Unfortunately, construction materials and construction work have become very expensive this year. Therefore, I had to abandon the construction of a mix room, completely focusing on building a house. The mix room will wait until better times :( :( :(

I wish you good health and many years of life! I hope that I will soon return to this topic with a new project of a mix of a room, of a larger size, since now I do not depend on the size of the foundation of the house and it will be a separate building.

Have a nice day!



User avatar
Starlight
Full Member
Posts: 482
Joined: Wed, 2019-Sep-25, 12:52
Location: Slovakia, Europe
Contact:

Small Home Control Room

#8

Postby Starlight » Tue, 2021-Sep-14, 18:28

Привет Dmitry,

We all seem to be suffering the effect Covid shutdowns have had on the timber trade and others, with materials being much more expensive that they were 2 years ago. I just wanted to wish you all the best for the future continuation of your studio and hoping that your house will be all the better for having your undivided attention.



User avatar
Soundman2020
Site Admin
Posts: 911
Joined: Thu, 2019-Sep-19, 22:58
Location: Santiago, Chile
Contact:

Small Home Control Room

#9

Postby Soundman2020 » Tue, 2021-Dec-07, 00:30

Therefore, I had to abandon the construction of a mix room, completely focusing on building a house. The mix room will wait until better time
Wow. That's sad, Dmitry. I do hope you can finish the house well, then get back to building your studio soon. Hopefully, we'll still be here to help, when that time comes!

- Stuart -




  • Similar Topics
    Statistics
    Last post

Who is online

Users browsing this forum: No registered users and 16 guests