Hello everybody!
My name is Thomas from the town Düsseldorf in Germany, and I post here in this forum because I want to build my first “real” mixing/control room. To my persona: I’m a 36 year old electro-acoustic and audio engineer who does this mixing and producing thing as a night job. My main style of music is urban orientated, but I also do rock projects, classical recordings and film score mixing. And I play in a Band that plays Dub / Drum’n’Base / Jazz music, which I also mix. As a day job, I work in a company that develops loudspeakers for industrial and HIFI purposes. So, many of the physical and technical terms and understandings are not new for me, but I definitely have no real live experiences when it comes to building a mixing/control room. That’s why after a half year of research and 3D modelling, I finally want to share my Ideas with people who actually did build mixing/control rooms. For the past 10 years, I’ve worked at my home studio, which was acoustically optimized, but far away from optimum. Hopefully, it will get a little better with the efforts I want to put into this project.
Short disclaimer
Since I’m located in Europe, all measurements are in centimetres. Also, English is not my native tongue, so bear with me when it comes to grammar and vocabulary. If anything is not clear or strangely described, please don't hesitate to ask. If I have a question I'll write it down directly within the description of the problem and highlight them. Also, all downloadable files can be found at the end of this post. My intended budget is 4000 – 6000€. I’ll scatter my initial post over a few posts, since there is a restriction in picture upload. But I think these are really necessary, because some problems need a picture to fully understand it.
The goal of the room
The main goal is to have a reliable acoustic environment for stereo playback. My main focus will be mixing and producing in stereo. The second (future) goal will be to have the possibility to expand to 5.1 surround for film score mixing. Spoilers ahead, it is impossible meet the requirements for this approach in this particular room, regarding the recommendations based on the “recommendation for surround sound production” I’ve downloaded somewhere. Never the less will I try to mix in this non-perfect environment in this format, because the benefits of this room are in fact the other rooms in the facility I have also access to.
Why I choose this room
I’ve rented a room in an already existing recording facility. There is already a control room, a live room, a drum room and a vocal booth from the owner of the facility, which I’m allowed to use when the rooms are not occupied by him. There are two other project studios located in the same facility. My room will be connected with Dante Via software to a bunch of digital stage boxes that are in the live rooms I’ve described above. This was the main reason why I choose this room, so recording for clients in my own (control) room without blocking the main control room from the owner and vice versa is really easy to achieve. And there is a Steinway D Grand Piano from 1890! And a lot of different drums, since the owner of the facility is a professional drummer. And of course a ton of microphones and other recording stuff I can use, too. The other reason that I’ve chosen this room is that I can be as loud as I want despite the time of the day (or night), because the studio is located in an industrial area of the town where no people live I could disturbe. Luckily, the other nearby buildings doesn’t house anything industrial that is loud to the outside. There are mostly storage buildings. Also, the rent covers expenses like insurance of my stuff and other additional costs. Finally, the facility is located only 10 minutes away from my home. Lucky me!
Basic Information about the room
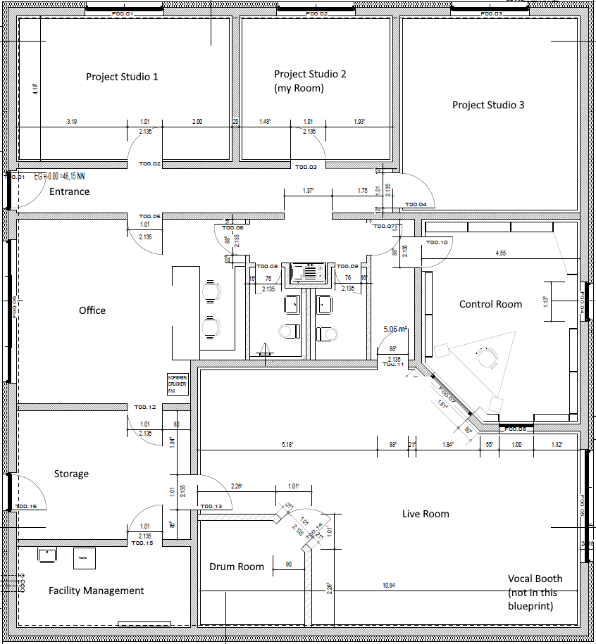
The room dimensions are:
263 cm x 420,8 cm x 442,5 cm (H x W x L), so the floor area is about 18,6 m² and the volume is 48,9 m³. I know that these dimensions are not ideal and do not meet the EBU listening standards. But the benefits outweigh the cons, regarding the other rooms I can use and the costs of it.
The Walls
The Walls are made out of sand-lime brick (KSR 2,2 / 12 / DBM), 24 cm for the outside wall, 20 cm for the walls that are separating the room from the other rooms and the corridor. Additionally, one of the room that is located right next to mine is isolated with room in room soundproofing. The outside wall is isolated with 16 cm mineral wool (WD WLG 0,035), which is covered with plasterwork.
The ceiling
The ceiling is made out of 20 cm reinforced concrete plates (STB C25/30 XC1 / BST 500 M/S). It is isolated with 20 cm mineral wool (WD WLG 0,035), which is covered with a bitumen seal ceiling.
The floor
The floor is made out of different stacked materials; I’ll list them from top to bottom:
1. 1 cm PVC floor,
2. 6,5 cm of floor screed,
3. 3 cm heated floor (burling mat with heating flexible tube, filled with floor screed),
4. 3,5 cm floor impact protection, which is also intend to decouple the above mentioned materials from the walls,
5. 12 cm mineral wool insulation (WD WLG 0,035) and
6. 30 cm reinforced concrete slab (STB C25/30 XC3 XF1 / BST 500 M/S).
The window
The window is a double sided one, and the right window (viewed from the entrance) is able to be opened. Honestly, I don’t know exactly what kind of glass is used, but it is heavily rigged, 2 leaf insulated as far as I can tell. The room was intended to be a drum rehearsal room, so the owner paid attention to a good insulation to the outside world.
The door
Same as the window, the door is heavily rigged, 150 kg, double sealed acoustic door. It is also sealed to the floor when closed. I did not test the insulation directly, but while measuring the room, the 80 dB of sweep was barely noticeable directly standing behind it.
The HVAC
The bad news is there is no HVAC. The good news is there is no HVAC...jet. I've talked to the owner of the complex and he allows me to make two core drillings in the ceiling to get fresh air in and consumed air out. I’ve talked to the guy who have provided and installed the already existing HVAC for the live rooms and the control room of the owner. The problem here is that installing my own HVAC will require a quiet large amount of money which I do not have...yet. I guess it will take me at least until summer to get the money for this thing. I'll talk about the intended location of the HVAC later in another post in the chapter "the cloud".
My research
I've done all my research based on the threads in the john Sayers forum: I've read all the recommended threads and have searched for specific problems. Also, I read a lot of the recommended literature regarding this topic. So hopefully, I did not make to many mistakes.
I'll continue in the next post with all the details, since I'm ot of uploadable pictures...
Cheeres, Thomas
Chief Diggin Studio
Re: Chief Diggin Studio
So, my first post was released, thank you Stuart! Here we go:
The acoustic plan
This is just an overview of the room, so you can get an idea what the concept is about. I'll talk about every part in greater detail in dedicated chapters of this post.
All my following considerations are based on the "38% rule"; I've read so much about. Sadly, my room let me only fulfil this requirement in one direction (the 442,5 cm length of the room). Therefore, the orientation of the listening position is along the longer side of the room (442,5cm) and the mix position will be in 36-40% of this length (190 cm). The wall I'm facing is the wall that I share with the soundproofed one I’ve talked about in the chapter “The walls” and will consist of 3 flush mounted full range Eve Audio SC 208 monitors (L, R, C) and a self developed Sub, which will be located underneath the center speaker and driven by an Class D amplifier with DSP, which allows me to delay, and equalize it, if necessary. I’ve also took into account, that the positioning of the speakers are also nearly to this 38 % rule, regarding the baffle step on the left and on the right of the speaker (except the center and the sub, of course). I've done the horizontal ray tracing with the amroc tool and for the (half) vertical ray tracing I used the tool from Stuart to guide the reflections around the mixing position and get a reflection free zone.
This part of the room will approximately occupy 30% of the room. Behind the flush mounting baffle, there will be a big array of hangers, and where are no hangers possible, the space will be filled with rock wool or glass wool, depending on the measurements. The hot air from the amplifier of the four loudspeakers behind the baffle will be guided outside with three 10 cm air tubes (those ones that are intended for tumble dryers) and guided to the place in the ceiling where the hot air is sucked out of the room by the (future) HVAC.
After that, moving backwards from the listening position on the length of the room, there will be slat resonators (vertical), and a massive cloud (horizontal) filled with glass wool or rock wool, which will cover approximately 50% of the room, including a false door and a false window, to keep the reflection free zone consistent.
The remaining 20% of the room will be a false wall with another array of hangers behind it. Standing before this wall and facing in the opposite direction, there will be the Ls and Rs speakers. I know it is not ideal and will probably interfere with the reflection free zone, but since 5.1 will be the minority of my work in this room, I'm willing to sacrifice some of it in this case.
Details about the intended construction
The framework
The whole construction thing is totally new to me and I've absolutely no experience in framing. I've done some woodwork in the past (I've build some studio furniture), but building this room will be a total ne level for me. I've read a ton of material and watched countless videos regarding this topic, but I guess experience beats knowledge in this case. Never the less did I try to avoid basic mistakes, hopefully. Since we have a woodworking shop at my dayjob (to build prototypes of speaker cabinets), I have access to some expensive tools and even to a 2 x 1 m wood CNC cutter. So, dealing with complex shapes can be easy if I've done everything right acoustically. For all the connection points of the framework I'll use filling compound to prevent the structure from creaking and making resonant noises.
Question here: what is the "best" filling compound for this task? Is there a special brand (e.g. green glue) or can I use conventional filling compound?
The outer framework
The plan is to build an outer frame structure, which is parallel to the whole room, but don't touch the walls or ceiling. The main reason for this is the fact, that I would bypass the decoupled floor, which has to be avoided to keep the crosstalk to the other rooms as small as possible in both directions. This means that this inner structure is approximately 3 - 5 cm away from every wall and the ceiling. The slats I want to use are 4 x 6 cm, because this structure doesn’t need to carry a lot of weight, since there is no "real" ceiling needed. This whole structure will be glued to the floor with silicon glue, since I'm not allowed to drill holes in the floor and silicon glue is powerful enough to keep the structure in place and can be easily removed if I have to move out (hopefully not in the next 10 years, but you never know). I know this is not ideal, but I'm not located in an area which is endangered to earthquakes. Between the frameworks, there will be 6 cm rock wool for insulation except for some places where airflow is needed. Since the room has floor heating, I don't have to bother with a vapour barrier in this case. I want to wrap the rock wool in plastic sheets, so the fibres can't flow around. But I won't warp them tightly, so they don’t get a resonant surface.
The reflection free zone framework
This framework will hold the angled structure, which will house the speakers and the baffle of them. This was the hardest part to get working, since I wanted to avoid as many angled slats as possible. The construction I've intended will be just frames with 90° angles, which are connected to the outer framework via angled slats. With this approach, the only not - 90° - angled slats are the ones that connect the reflection free zone framework with the outer framework. Thos slats are also relatively short and I only need a mitre saw to make them.
Here is my first bigger question mark: how should I connect those angled slats with the outer framework? I intend to use metal brackets to connect them, but I'm not sure if this is the right approach. Is there some clever way to deal with this problem, but only use woodscrews? Or is there a way to connect them “jigsaw puzzle allike”?
I'll continue in the next post with all the details, since I'm ot of uploadable pictures...
The acoustic plan
This is just an overview of the room, so you can get an idea what the concept is about. I'll talk about every part in greater detail in dedicated chapters of this post.
All my following considerations are based on the "38% rule"; I've read so much about. Sadly, my room let me only fulfil this requirement in one direction (the 442,5 cm length of the room). Therefore, the orientation of the listening position is along the longer side of the room (442,5cm) and the mix position will be in 36-40% of this length (190 cm). The wall I'm facing is the wall that I share with the soundproofed one I’ve talked about in the chapter “The walls” and will consist of 3 flush mounted full range Eve Audio SC 208 monitors (L, R, C) and a self developed Sub, which will be located underneath the center speaker and driven by an Class D amplifier with DSP, which allows me to delay, and equalize it, if necessary. I’ve also took into account, that the positioning of the speakers are also nearly to this 38 % rule, regarding the baffle step on the left and on the right of the speaker (except the center and the sub, of course). I've done the horizontal ray tracing with the amroc tool and for the (half) vertical ray tracing I used the tool from Stuart to guide the reflections around the mixing position and get a reflection free zone.
This part of the room will approximately occupy 30% of the room. Behind the flush mounting baffle, there will be a big array of hangers, and where are no hangers possible, the space will be filled with rock wool or glass wool, depending on the measurements. The hot air from the amplifier of the four loudspeakers behind the baffle will be guided outside with three 10 cm air tubes (those ones that are intended for tumble dryers) and guided to the place in the ceiling where the hot air is sucked out of the room by the (future) HVAC.
After that, moving backwards from the listening position on the length of the room, there will be slat resonators (vertical), and a massive cloud (horizontal) filled with glass wool or rock wool, which will cover approximately 50% of the room, including a false door and a false window, to keep the reflection free zone consistent.
The remaining 20% of the room will be a false wall with another array of hangers behind it. Standing before this wall and facing in the opposite direction, there will be the Ls and Rs speakers. I know it is not ideal and will probably interfere with the reflection free zone, but since 5.1 will be the minority of my work in this room, I'm willing to sacrifice some of it in this case.
Details about the intended construction
The framework
The whole construction thing is totally new to me and I've absolutely no experience in framing. I've done some woodwork in the past (I've build some studio furniture), but building this room will be a total ne level for me. I've read a ton of material and watched countless videos regarding this topic, but I guess experience beats knowledge in this case. Never the less did I try to avoid basic mistakes, hopefully. Since we have a woodworking shop at my dayjob (to build prototypes of speaker cabinets), I have access to some expensive tools and even to a 2 x 1 m wood CNC cutter. So, dealing with complex shapes can be easy if I've done everything right acoustically. For all the connection points of the framework I'll use filling compound to prevent the structure from creaking and making resonant noises.
Question here: what is the "best" filling compound for this task? Is there a special brand (e.g. green glue) or can I use conventional filling compound?
The outer framework
The plan is to build an outer frame structure, which is parallel to the whole room, but don't touch the walls or ceiling. The main reason for this is the fact, that I would bypass the decoupled floor, which has to be avoided to keep the crosstalk to the other rooms as small as possible in both directions. This means that this inner structure is approximately 3 - 5 cm away from every wall and the ceiling. The slats I want to use are 4 x 6 cm, because this structure doesn’t need to carry a lot of weight, since there is no "real" ceiling needed. This whole structure will be glued to the floor with silicon glue, since I'm not allowed to drill holes in the floor and silicon glue is powerful enough to keep the structure in place and can be easily removed if I have to move out (hopefully not in the next 10 years, but you never know). I know this is not ideal, but I'm not located in an area which is endangered to earthquakes. Between the frameworks, there will be 6 cm rock wool for insulation except for some places where airflow is needed. Since the room has floor heating, I don't have to bother with a vapour barrier in this case. I want to wrap the rock wool in plastic sheets, so the fibres can't flow around. But I won't warp them tightly, so they don’t get a resonant surface.
The reflection free zone framework
This framework will hold the angled structure, which will house the speakers and the baffle of them. This was the hardest part to get working, since I wanted to avoid as many angled slats as possible. The construction I've intended will be just frames with 90° angles, which are connected to the outer framework via angled slats. With this approach, the only not - 90° - angled slats are the ones that connect the reflection free zone framework with the outer framework. Thos slats are also relatively short and I only need a mitre saw to make them.
Here is my first bigger question mark: how should I connect those angled slats with the outer framework? I intend to use metal brackets to connect them, but I'm not sure if this is the right approach. Is there some clever way to deal with this problem, but only use woodscrews? Or is there a way to connect them “jigsaw puzzle allike”?
I'll continue in the next post with all the details, since I'm ot of uploadable pictures...
Re: Chief Diggin Studio
So, my last post got also released, thank you Stuart!
The flush mounting baffle
This will be the most complex part when it comes to woodwork, since every part of it is angled in three dimensions. I want to use plywood sheets for this, since it is equally heavy to MDF, but looks much better. I don't want to paint it, because I like the natural look of it. I'll try to use the CNC cutter at my dayjob, but some parts are too big for it.
So, my question would be, how do you saw these complex angled plates? Is there a special approach to it?
I've left some space underneath the flush mounting baffle with false walls to "let the bass in and out" and a ventilating slot for each speaker, like it is described in the drawing from John Sayers, but there's one thing I do not understand:
Why is there a bafflestep directly underneath the speakers, which is covered with a false wall and glass wool underneath? For every step in the baffle, there will be some ripple in the frequency response. So why not just keep the baffle consistent nearly to the ground?
Like I've described in the chapter "The outer framework" The whole construction is not touching the walls and ceiling. This leads to the problem, that the front and the back site of the baffle is not sealed, which is absolutely critical to my understanding, because this will act like a giant vented port for the very low frequencies and therefore has a resonance. To avoid this problem, my Idea is to use memory foam stripes which will seal the front site from the back side (except the intended false wall on the ground and the hot air shaft for the speakers). I've read that the damping properties are quite good, and that there is a type of memory foam that don't let the air thru because it has closed bubbles (different to Basotect, which has a capillary structure). Also, the vibration of the structure doesn’t get much derived to the room walls and ceiling. So hopefully, I will not bypass the floor impact protection significantly with this approach.
But this is only a theoretical approach and I really don't know if I can trust the numbers. So, It would be great to know if anyone has experiences with this approach or even has a better idea how to deal with this.
I was thinking of sealing the whole outer framework with OSB Plates, but then I'll build myself a three leave system as far as I understand, which should be avoided at any cost.
Another question would be how to make the whole baffle maintain-able? If a speaker got defective, or you want to install new cables or other stuff, how do you manage to do so with this giant baffle? Is there a way to make some parts removable without breaking the RFZ or introduce new problems like rattle?
The slat resonators
As described above, the flush mounted baffle will merge into the slat resonators, which have two different purposes in this case. First, absorbing the midrange and second, keep the reflection free zone working. The cloth between the slats and the absorption material will be hessian cloth, which will be impregnated with non-flammable spray. This is necessary to keep the insurance of the building. With the slat resonators, I've stumbled again over the fact that these only work properly in a perfectly sealed cabinet. Unfortunately, there is a door in my room. So, my idea to solve this problem is to build a fake door, which consists of the slats and seal the space between the real door and the slats with memory foam. The door itself seals the room perfectly. So, in my theoretical considerations this should work.
My question here: am I right with this assumption? Does anybody around here have ever tested this?
I've read that you will need some glass wool behind the clothing that is behind the slats. I really want to avoid exposing glass wool fibres to the environment without covering it in thin plastic sheets. I know that there are different opinions when it comes to health concerns regarding this stuff, but I definitely don't want to take chances.
So my question here is: is it possible to use a thin layer of open capillary Basotect instead of glass wool? Will it have the same effect? Because this will be not a health concern like open glass wool is.
On the other side of the room, there is the window. As stated in the chapter "the room", only one of the two frames of the window is intended to be open, the other one is just window glass in a frame. My Idea is to cover the non-open able window and only use the window, which I'm able to open to let the light and fresh air in. The other window will be covered by a slat resonator, which also uses the volume of the window sill. To prevent a vented connection between the slat resonators behind the reflection free zone baffle and the volume for the open-able window, both sides will be sealed with memory foam again.
But I'm not very positive to get it perfectly sealed. Is there another way to get this problem solved? I've wrapped my head around this for quite a while but did not come up with a different solution. Could this work? Or should I use a different technique? Also, can I use the volume of the window sill for the slat resonator? I hope to get a different absorption frequency because the than the volume is bigger than on the opposite site.
The false window
I want to build a second “false” window in front of the "real" window. This window will just be one layer of 10 cm glass to keep the reflection free zone consistent. Main purpose is to let the light and fresh air in. In the case of the window, I have basically the same problem as I have with the window-sided slat resonator: because of the windows still, it is challenging to seal the space behind the slat resonator perfectly.
I will try to use the memory foam technique I've described earlier, but I'm not sure if this will work out fine. So, if anyone has a better solution, feel free to educate me!
The cloud
The cloud will be 19,5 cm thick and cover the whole remaining ceiling between the flush mounting baffle and the false wall. I plan to put the in- and output of the HVAC behind it, If possible, so that fresh air will be pushed into the room on the rear part of the cloud, and will be sucked out of the room in the front part of the room. I will install some air flow guides, too, so that the fresh air does not only circulate behind the cloud, but through the room. The HVAC will be located on the roof of the building, including the silencers and heat exchanger.
Here I could use some Input. I have no experience with HVACs and don't know if my Idea to put the two pipes behind the cloud will work. So, some input on this topic is highly appreciated.
The falls walls
The falls wall will be frames that are covert with hessian cloth, which will be impregnated with non-flammable spray. This hessian cloth will be cover a frame, and this frame will be hold in place with some cheap door magnets. The cool thing with this Idea is, that they are easy to remove if I need to have access for maintaining (e.g. power, audio, network). Behind that, there will be hangers, wrapped in plastic sheets to prevent the glass wool fibres from flowing around.
I'll talk about the measurements and the add the downloadable files in the next post, since I'm ot of uploadable pictures...
The flush mounting baffle
This will be the most complex part when it comes to woodwork, since every part of it is angled in three dimensions. I want to use plywood sheets for this, since it is equally heavy to MDF, but looks much better. I don't want to paint it, because I like the natural look of it. I'll try to use the CNC cutter at my dayjob, but some parts are too big for it.
So, my question would be, how do you saw these complex angled plates? Is there a special approach to it?
I've left some space underneath the flush mounting baffle with false walls to "let the bass in and out" and a ventilating slot for each speaker, like it is described in the drawing from John Sayers, but there's one thing I do not understand:
Why is there a bafflestep directly underneath the speakers, which is covered with a false wall and glass wool underneath? For every step in the baffle, there will be some ripple in the frequency response. So why not just keep the baffle consistent nearly to the ground?
Like I've described in the chapter "The outer framework" The whole construction is not touching the walls and ceiling. This leads to the problem, that the front and the back site of the baffle is not sealed, which is absolutely critical to my understanding, because this will act like a giant vented port for the very low frequencies and therefore has a resonance. To avoid this problem, my Idea is to use memory foam stripes which will seal the front site from the back side (except the intended false wall on the ground and the hot air shaft for the speakers). I've read that the damping properties are quite good, and that there is a type of memory foam that don't let the air thru because it has closed bubbles (different to Basotect, which has a capillary structure). Also, the vibration of the structure doesn’t get much derived to the room walls and ceiling. So hopefully, I will not bypass the floor impact protection significantly with this approach.
But this is only a theoretical approach and I really don't know if I can trust the numbers. So, It would be great to know if anyone has experiences with this approach or even has a better idea how to deal with this.
I was thinking of sealing the whole outer framework with OSB Plates, but then I'll build myself a three leave system as far as I understand, which should be avoided at any cost.
Another question would be how to make the whole baffle maintain-able? If a speaker got defective, or you want to install new cables or other stuff, how do you manage to do so with this giant baffle? Is there a way to make some parts removable without breaking the RFZ or introduce new problems like rattle?
The slat resonators
As described above, the flush mounted baffle will merge into the slat resonators, which have two different purposes in this case. First, absorbing the midrange and second, keep the reflection free zone working. The cloth between the slats and the absorption material will be hessian cloth, which will be impregnated with non-flammable spray. This is necessary to keep the insurance of the building. With the slat resonators, I've stumbled again over the fact that these only work properly in a perfectly sealed cabinet. Unfortunately, there is a door in my room. So, my idea to solve this problem is to build a fake door, which consists of the slats and seal the space between the real door and the slats with memory foam. The door itself seals the room perfectly. So, in my theoretical considerations this should work.
My question here: am I right with this assumption? Does anybody around here have ever tested this?
I've read that you will need some glass wool behind the clothing that is behind the slats. I really want to avoid exposing glass wool fibres to the environment without covering it in thin plastic sheets. I know that there are different opinions when it comes to health concerns regarding this stuff, but I definitely don't want to take chances.
So my question here is: is it possible to use a thin layer of open capillary Basotect instead of glass wool? Will it have the same effect? Because this will be not a health concern like open glass wool is.
On the other side of the room, there is the window. As stated in the chapter "the room", only one of the two frames of the window is intended to be open, the other one is just window glass in a frame. My Idea is to cover the non-open able window and only use the window, which I'm able to open to let the light and fresh air in. The other window will be covered by a slat resonator, which also uses the volume of the window sill. To prevent a vented connection between the slat resonators behind the reflection free zone baffle and the volume for the open-able window, both sides will be sealed with memory foam again.
But I'm not very positive to get it perfectly sealed. Is there another way to get this problem solved? I've wrapped my head around this for quite a while but did not come up with a different solution. Could this work? Or should I use a different technique? Also, can I use the volume of the window sill for the slat resonator? I hope to get a different absorption frequency because the than the volume is bigger than on the opposite site.
The false window
I want to build a second “false” window in front of the "real" window. This window will just be one layer of 10 cm glass to keep the reflection free zone consistent. Main purpose is to let the light and fresh air in. In the case of the window, I have basically the same problem as I have with the window-sided slat resonator: because of the windows still, it is challenging to seal the space behind the slat resonator perfectly.
I will try to use the memory foam technique I've described earlier, but I'm not sure if this will work out fine. So, if anyone has a better solution, feel free to educate me!
The cloud
The cloud will be 19,5 cm thick and cover the whole remaining ceiling between the flush mounting baffle and the false wall. I plan to put the in- and output of the HVAC behind it, If possible, so that fresh air will be pushed into the room on the rear part of the cloud, and will be sucked out of the room in the front part of the room. I will install some air flow guides, too, so that the fresh air does not only circulate behind the cloud, but through the room. The HVAC will be located on the roof of the building, including the silencers and heat exchanger.
Here I could use some Input. I have no experience with HVACs and don't know if my Idea to put the two pipes behind the cloud will work. So, some input on this topic is highly appreciated.
The falls walls
The falls wall will be frames that are covert with hessian cloth, which will be impregnated with non-flammable spray. This hessian cloth will be cover a frame, and this frame will be hold in place with some cheap door magnets. The cool thing with this Idea is, that they are easy to remove if I need to have access for maintaining (e.g. power, audio, network). Behind that, there will be hangers, wrapped in plastic sheets to prevent the glass wool fibres from flowing around.
I'll talk about the measurements and the add the downloadable files in the next post, since I'm ot of uploadable pictures...
Re: Chief Diggin Studio
Here is the final part of my initial post:
The measurements
I've done the measurements as it is demanded by Stuart. The REW files can be found at the end of this post. For the sake of completeness and for the people around here who just want to see the curves, I've added some pictures. I've used a NTI XL2 Sound Meter for calibration, and a Beyerdynamic MM 1 Microphone for measurements. Right now, I’ve only done the measurements with a stereo pair of monitors. The reason for this is that the subwoofer has to be constructed first, and that the expansion to 5.1 will take some time since I have to get the money for the other three speakers first.
L--Baseline Empty
R--Baseline Empty
LR-Baseline Empty
LR-Baseline Empty vs. L+R Baseline Empty
As you can see, there are a lot of strong modes in the frequency response. A remarkable site note to the measurements is that when I add the two measurement curves of each individual loudspeaker, they match the measurements of both speakers perfectly! So, in conclusion, the room response must be very symmetrical, otherwise the curves wouldn't match this perfectly. Since the room has only heavy walls and no plaster board walls, the room modes are very strong! I hope, that my acoustic concept will flatten down theses modes to a workable remaining ripple. Finger’s crossed!
You've done it! You've read through my first post(s)! Thank you for taking your time!
Best Regards,
Thomas
Downloadable files:
If there is some change in the data, I'll update the zip file!
https://www.dropbox.com/s/jr4j6kmr6a1g3 ... a.zip?dl=0
The measurements
I've done the measurements as it is demanded by Stuart. The REW files can be found at the end of this post. For the sake of completeness and for the people around here who just want to see the curves, I've added some pictures. I've used a NTI XL2 Sound Meter for calibration, and a Beyerdynamic MM 1 Microphone for measurements. Right now, I’ve only done the measurements with a stereo pair of monitors. The reason for this is that the subwoofer has to be constructed first, and that the expansion to 5.1 will take some time since I have to get the money for the other three speakers first.
L--Baseline Empty
R--Baseline Empty
LR-Baseline Empty
LR-Baseline Empty vs. L+R Baseline Empty
As you can see, there are a lot of strong modes in the frequency response. A remarkable site note to the measurements is that when I add the two measurement curves of each individual loudspeaker, they match the measurements of both speakers perfectly! So, in conclusion, the room response must be very symmetrical, otherwise the curves wouldn't match this perfectly. Since the room has only heavy walls and no plaster board walls, the room modes are very strong! I hope, that my acoustic concept will flatten down theses modes to a workable remaining ripple. Finger’s crossed!
You've done it! You've read through my first post(s)! Thank you for taking your time!
Best Regards,
Thomas
Downloadable files:
If there is some change in the data, I'll update the zip file!
https://www.dropbox.com/s/jr4j6kmr6a1g3 ... a.zip?dl=0
- Starlight
- Full Member
- Posts: 482
- Joined: Wed, 2019-Sep-25, 12:52
- Location: Slovakia, Europe
- Contact:
Re: Chief Diggin Studio
Tomess wrote:... installing my own HVAC will require a quiet large amount of money which I do not have...yet.
What an impressive start! I have read your first post and will continue when I have time.
I just wanted to say about HVAC that in my previous studio, which was rented so I knew that at some point I would be leaving, that my biggest cost was HVAC. I bought a multi-split AC and a separate ERV ventilator. That was 4 years ago and I still feel that what felt like a risk at the time turned out to be a brilliant investment. When I left, the company that installed them came and uninstalled them and I have them in storage at home waiting for my new place to be ready for them. I understand where you are at but just want to encourage you that when you can afford the HVAC it will make your studio feel so much more professional simply because it works.
- Soundman2020
- Site Admin
- Posts: 905
- Joined: Thu, 2019-Sep-19, 22:58
- Location: Santiago, Chile
- Contact:
Re: Chief Diggin Studio
Hi Thomas, and Welcome to the Forum!
As Starlight said: that's a very impressive first post. The quality of initial posts here on the new forum is excellent, far above that of some other forums. And yours is right up there, at the top.
No problem. Most of us here can work in both systems. I was fortunate enough to live in Australia many years ago (don't ask how many!) while they were transitioning from Imperial to Metric, so I got quite familiar with both.
In other words: I'd recommend that you design your room for 5.1, not 2.1.
Wow! That's fantastic! You have an entire facility at your disposal, and your own room as well! Lucky guy....
), so your room is "in the ball park", as the yanks would say.
The thing is that, even if the spec says "minimum 20m2", that does not mean that all rooms 20.1 m2 and greater are automatically perfect, while all rooms 19.9 m2 or less are automatically terrible. Its just a point on a scale, that's all. Rooms larger than that will generally be good (but there's also some bad ones that are far bigger!), and rooms smaller than that will generally not be so good, or will require more treatment to make the good. I have designed rooms as small as 9m2 (!) that worked out well, and the owner was very satisfied with the outcome. So just because yours is a little smaller than "ideal" does not mean that it must be bad: it can be very good, actually.
Uh-oh!
As long as you have authorization to do that, you can get the climate in your room under control.
- Stuart -
As Starlight said: that's a very impressive first post. The quality of initial posts here on the new forum is excellent, far above that of some other forums. And yours is right up there, at the top.
Wow! That's great! I'm sure there will be other members with questions about speakers for you!As a day job, I work in a company that develops loudspeakers for industrial and HIFI purposes.
It shows! I mean, from your initial post, it is very clear that you have done a lot of research, and put a lot of time into your SketchUp mode.That’s why after a half year of research and 3D modelling,
all measurements are in centimetres.
If you had not said that, I'm pretty sure monody would have noticed! Your English, is way, way better than my German.Also, English is not my native tongue,
There are some fundamental differences in the way a studio should be designed and treated for 2.1 and 5.1. Or ore generally, differences between two-channel and multi-channel. The main difference is that for multi-channel sound (5.1, 7.1, etc.), you have some of the speakers at the back of the room, facing forward, and that can be a problem for rooms designed for 2.1. Typically, 2.1 rooms have reflective surfaces at the front of the room, at the locations where the rear speakers are pointing. So, if you do plan to use your room for 5.1 in the future, it should be designed with that in mind right now. It's easy to adapt a 2.1 room to work well with 5.1: it needs some fairly drastic changes. But from other point of view, there's no problem with mixing in a 2.1 room that was designed for 5.1.The main goal is to have a reliable acoustic environment for stereo playback. My main focus will be mixing and producing in stereo. The second (future) goal will be to have the possibility to expand to 5.1 surround for film score mixing.
In other words: I'd recommend that you design your room for 5.1, not 2.1.
True, but there's a lot of other "impossible" things about home studios, that can be minimized with good design! A small room is never going to behave like a large room, but there's lots of stuff you can do to get it close.it is impossible meet the requirements for this approach in this particular room, regarding the recommendations based on the “recommendation for surround sound production” I’ve downloaded somewhere.
There is already a control room, a live room, a drum room and a vocal booth from the owner of the facility, which I’m allowed to use when the rooms are not occupied by him.
It's not ideal, but it's not far away from the specs for two-channel rooms. BS.1116-3 specifies 20 m² as the minimum area for 2-channel, and 30 m² for multi-channel (EBU is a bit higher for both, but ITU specs are broadly regarded as good for control rooms). Some designers also talk about a minimum room volume of 45 m3, or 42 m3, or 47 m3 (depending on who you talk to...The room dimensions are: 263 cm x 420,8 cm x 442,5 cm (H x W x L), so the floor area is about 18,6 m² and the volume is 48,9 m³. I know that these dimensions are not ideal and do not meet the EBU listening standards
The thing is that, even if the spec says "minimum 20m2", that does not mean that all rooms 20.1 m2 and greater are automatically perfect, while all rooms 19.9 m2 or less are automatically terrible. Its just a point on a scale, that's all. Rooms larger than that will generally be good (but there's also some bad ones that are far bigger!), and rooms smaller than that will generally not be so good, or will require more treatment to make the good. I have designed rooms as small as 9m2 (!) that worked out well, and the owner was very satisfied with the outcome. So just because yours is a little smaller than "ideal" does not mean that it must be bad: it can be very good, actually.
With all of that, you should have very decent isolation, so I imagine that you don't need more than that, and you only need treatment?The Walls are made out of sand-lime brick (KSR 2,2 / 12 / DBM), 24 cm for the outside wall, 20 cm for the walls that are separating the room from the other rooms and the corridor. ...
The ceiling is made out of 20 cm reinforced concrete plates (STB C25/30 XC1 / BST 500 M/S)....
The floor is made out of different stacked materials;...
The bad news is there is no HVAC.
Great!I've talked to the owner of the complex and he allows me to make two core drillings in the ceiling to get fresh air in and consumed air out.
Right. HVAC is not cheap. There's lots more to it than just drilling a couple of holes in your wall...The problem here is that installing my own HVAC will require a quiet large amount of money which I do not have...yet. I guess it will take me at least until summer to get the money for this thing
So far you are doing GREAT! I'm going to carry on reading your second thread, then get respond to that later tonight (my time...)I've read all the recommended threads and have searched for specific problems. Also, I read a lot of the recommended literature regarding this topic. So hopefully, I did not make to many mistakes. I'll continue in the next post with all the details, since I'm ot of uploadable pictures...
- Stuart -
- Soundman2020
- Site Admin
- Posts: 905
- Joined: Thu, 2019-Sep-19, 22:58
- Location: Santiago, Chile
- Contact:
Re: Chief Diggin Studio
... continued ...
Question: Which 5.1 layout are you using? Your speaker layout does not seem to fit the recommended 5.1 layouts. There's a few variations on the angles for the rear surround speakers, but your layout doesn't seem to match any of them.
You also seem to be using the old Philip Newell concept for your side walls: Most designers don't do that, as it wastes space, and the acoustic benefits are not that great. It's better to leave your side walls parallel, and keep the room as wide as possible. Splaying the side walls is not commonly done in small rooms any more. Some old-school designers still do that, with contemporary advances in acoustic research and knowledge, up-to-date designs and designers use better methods.
In studio construction, it is important to use caulk any place that needs to be air-tight. For example, when building a two-leaf isolation system (which you do seem to be doing, and sometimes called "room in a room" construction), both of the leaves must be completely sealed, absolutely hermetic, so caulk is used abundantly all over the place: under the walls, around the ends of the walls, in joints between walls, or joints between drywall panels. If that's what you are referring to, then the caulk you need is the type that remains soft, flexible, and "rubbery" even when it is fully cured. There are special acoustic caulks for this, but ordinary kitchen and bathroom caulk are fine too, and a lot cheaper. I've had good success with a product called Sikaflex F11 FC, which seems to be available in many countries around the world, but any good quality flexible caulk will work.
If you are planning a two-leaf isolation system, then your existing walls, floor and ceiling are your "outer-leaf", and you only need one single "inner-leaf" frame built inside that, to complete the system. From your diagrams, it seems you are not doing it that way as you are adding a third leaf, which is your splayed walls. You don't need those.
Also, your framing does not seem to be standard. Normally, the studs are set at either 400 mm OC or 600mm OC. "OC" means "On Center". The measurements are from the center of one stud to the center of the next stud (not the distance between the studs). The reason for using 400 or 600 mm centers, is because all the panels (drywall, plywood, OSB, MDF, etc.) are made in lengths and widths at that are multiples of 400, so they will line up with the framing members easily if you use 400mm OC (or 600 mm OC). But be careful! Sometimes panels are still made to imperial specifications, which is for 16" OC (or 24" OC), and there's a slight difference. 16" is 406.4mm, and 24" is 609.6 mm. If the panels where you live are made by imperial machines, they will measure 122cm x 244 cm, instead of the metric standard, which is 120cm x 240 cm. It's complicated! It would be good if you first check at your local hardware stores to find out what the actual real sizes are of the panels they sell, and do your framing for that. It makes it easier, so you don't end up having to do a lot of cutting, and waste a lot of materials.
This might be a big issue. I would check into it very carefully before you do anything, and get a locally qualified structural engineer to tell you what you need to do. Maybe I'm wrong, and your building code does allow structures to be glue to foundations with no mechanical fasteners....
Those are some soffits that I designed for some of my clients, and they built. You can see how "beefy" they need to be.
The "baffle" on a soffit is only the part that goes directly around the speaker. Here's a photo of just the baffle from a different customer:
In this case, the baffle is cast in solid concrete, to get the mass that is needed. The baffle has to be VERY massive. In this case, my client built a wood "form" with the shape of the baffle and the speaker, and poured concrete into it, then waited for it to cure, and removed the wood. What you see in the photo is the baffle. He then mounted that on the framing, and added some other panels on the soffit as well, but that part that surrounds the speaker is the only part that should be called the "baffle". It's the new front panel of the speaker. It's an extension of the original front panel of the speaker, which is also referred to as "baffle", technically.
If you do two layers of 19mm MDF, then the surface density of the baffle will be about 28kg/m2. That's not very much for a soffit baffle, but it would be OK for a low powered speaker in a small room on a small baffle. But I normally go for higher mass in the baffles. That concrete one in the photo above was something like 70 or 80 kg/m2 if I recall correctly.
For the rest of your soffit, you don't need to make the entire front surface hard. In fact, I prefer to not do that, as it puts too much reflective surface at the front of the room, especially if you are going to do 5.1. For example, if you have hangers above and below the soffit, then you need some way to expose those to the room air: they won't do much if they are hidden behind thick, solid, massive panels. I prefer to leave sections at the top and bottom of the soffit with just framed fabric panels: just a simple frame to get the same right, then two layers of breathable fabric stretched across the frame.
You can see one such gap in the photo below, between each speaker baffle and the wing section next to it. The trim has not yet been installed (there's also another layer of material still to go on the baffles). This room is currently under construction, and I'm trying to persuade the client to start a thread here about it, but he's too busy building the place right now! He says he'll do a thread when he has some time...
(Steve, I hope you are reading this!
).
Rather, I extend the actual baffle surface lower than the speaker, and only then have an absorber behind a fabric panel.
You would think that extending the baffle to the floor would produce the best results, but it turns out to not be necessary. You can leave a fairly large gap down there, between the floor and the bottom edge of the baffle, with little consequence in acoustic response. There's any reasons for that, but rather complex to get into.
They way I do soffits is to have each soffit section separated from the next one with rigid, heavy panels. So there is one one panel between the left speaker and the center speaker, then another one between the center speaker and the right speaker, then two more panels outboard for the speakers, between them and the wing sections. There is also a top panel above the speaker to separate it from the hangers above, and another panel below the speaker to separate it from the hanger below. So the cavity where each speaker is located has panels around it on all sides, and it is filled with insulation, to damp any resonances that would form in there otherwise.
Note! Some of the details have been deliberately hidden in that photo! I have developed a proprietary method for mounting speakers in soffits, so those details have been disguised in that photo. I'm not prepared to give away all of my secretes in public!
Sorry!
It completely prevents any transfer of vibration.
I'll try to get back to you on the remainder of your post tomorrow, ... I need to get some sleep now!
It's nearly 2 AM where I live... and getting past my bed time...
- Stuart -
Question: Which 5.1 layout are you using? Your speaker layout does not seem to fit the recommended 5.1 layouts. There's a few variations on the angles for the rear surround speakers, but your layout doesn't seem to match any of them.
Careful with that! It's not really a rule: more of a guideline: a good starting point for figuring out the best location.All my following considerations are based on the "38% rule"; I've read so much about.
Your orientation looks reasonable to me: you are facing one of the short walls (419cm), and the speakers are aiming down the longest dimension of the room (442.5cm), so that's fine.Sadly, my room let me only fulfil this requirement in one direction (the 442,5 cm length of the room).
That's fine. Not a problem. Your mix position is a bit further back than normal, but it should be OK. You could probably get it closer to the front by changing the angles of the soffit baffles a bit. It looks like it should be possible.Therefore, the orientation of the listening position is along the longer side of the room (442,5cm) and the mix position will be in 36-40% of this length (190 cm).
Good speakers! Good choice. I really like the Eve Audio monitors.“The walls” and will consist of 3 flush mounted full range Eve Audio SC 208 monitors (L, R, C)
In general, it's not a good idea to put the sub in the middle of the wall. It's usually better to have it off to one side. Better still is to have a pair of subs, set up as a plane-wave bass array, as that can be tuned to deal with modal issues and SBIR issues.and a self developed Sub, which will be located underneath the center speaker
Which DSP are you considering using? A good speaker controller can make a big difference in final room tuning. It's not so easy to do that tuning, but with a pair of subs and a quality DSP, the results can be very, very good.and driven by an Class D amplifier with DSP, which allows me to delay, and equalize it, if necessary.
I'd suggest using an angled hard-backed cloud at the front of the room, to improve that even more. Sound waves don't really reflect as straight lines: more similar to cones. You can represent the reflections as straight lines, yes, but the actual reflection is still going to be "smeared" a bit wider than that: not so specular. Especially for the mid-range frequencies. Using that criteria, I think you could benefit from doing a cloud.I've done the horizontal ray tracing with the amroc tool and for the (half) vertical ray tracing I used the tool from Stuart to guide the reflections around the mixing position and get a reflection free zone.
This is where multi-channel rooms (5.1, etc.) and stereo rooms (2.0, 2.1, etc.) are different. If you look at your diagram, you'll notice that the rear surround speakers are facing the the hard, reflective wing extensions of the baffles, and you will get reflections from those into your ears. I would suggest correcting that.Behind the flush mounting baffle, there will be a big array of hangers,
After that, moving backwards from the listening position on the length of the room, there will be slat resonators (vertical),
You also seem to be using the old Philip Newell concept for your side walls: Most designers don't do that, as it wastes space, and the acoustic benefits are not that great. It's better to leave your side walls parallel, and keep the room as wide as possible. Splaying the side walls is not commonly done in small rooms any more. Some old-school designers still do that, with contemporary advances in acoustic research and knowledge, up-to-date designs and designers use better methods.
Cloud: definitely! But put a hard back on it (massive), and angle it, instead of having it horizontal, to help with several issues at once.and a massive cloud (horizontal) filled with glass wool or rock wool,
You probably don't really need those, unless you a e doing a proper "room-in-a-room" studio, with a decoupled inner-leaf. The door and window are far enough back in the room that they will not be interfering with your reflection free zone, so unless you are doing a two-leaf isolation system, you don't need those. It's not clear from your diagrams if this is the case, or not.including a false door and a false window, to keep the reflection free zone consistent.
When you say "filling compound", are you referring to wood filler, which is a type of paste used to fill gaps and holes in wood? Or are you referring to "caulk", which is the compound used in kitchens and bathrooms to fill and seal gaps around many different things?For all the connection points of the framework I'll use filling compound to prevent the structure from creaking and making resonant noises. ... Question here: what is the "best" filling compound for this task? Is there a special brand (e.g. green glue) or can I use conventional filling compound?
In studio construction, it is important to use caulk any place that needs to be air-tight. For example, when building a two-leaf isolation system (which you do seem to be doing, and sometimes called "room in a room" construction), both of the leaves must be completely sealed, absolutely hermetic, so caulk is used abundantly all over the place: under the walls, around the ends of the walls, in joints between walls, or joints between drywall panels. If that's what you are referring to, then the caulk you need is the type that remains soft, flexible, and "rubbery" even when it is fully cured. There are special acoustic caulks for this, but ordinary kitchen and bathroom caulk are fine too, and a lot cheaper. I've had good success with a product called Sikaflex F11 FC, which seems to be available in many countries around the world, but any good quality flexible caulk will work.
If you are planning a two-leaf isolation system, then your existing walls, floor and ceiling are your "outer-leaf", and you only need one single "inner-leaf" frame built inside that, to complete the system. From your diagrams, it seems you are not doing it that way as you are adding a third leaf, which is your splayed walls. You don't need those.
Right. But that's not your outer-leaf. It is your inner-leaf. The outer leaf is the walls that are already there.The plan is to build an outer frame structure, which is parallel to the whole room, but don't touch the walls or ceiling.
Also, your framing does not seem to be standard. Normally, the studs are set at either 400 mm OC or 600mm OC. "OC" means "On Center". The measurements are from the center of one stud to the center of the next stud (not the distance between the studs). The reason for using 400 or 600 mm centers, is because all the panels (drywall, plywood, OSB, MDF, etc.) are made in lengths and widths at that are multiples of 400, so they will line up with the framing members easily if you use 400mm OC (or 600 mm OC). But be careful! Sometimes panels are still made to imperial specifications, which is for 16" OC (or 24" OC), and there's a slight difference. 16" is 406.4mm, and 24" is 609.6 mm. If the panels where you live are made by imperial machines, they will measure 122cm x 244 cm, instead of the metric standard, which is 120cm x 240 cm. It's complicated! It would be good if you first check at your local hardware stores to find out what the actual real sizes are of the panels they sell, and do your framing for that. It makes it easier, so you don't end up having to do a lot of cutting, and waste a lot of materials.
Right. So you will have to put the sheathing on the room-side of the framing, doing "conventional" construction (as opposed to "inside-out" construction). Have you calculated how much isolation you need? That's the key to determining how much space you need between the outer leaf and the inner leaf, but it will need to be at least 10cm. So, allowing for a 5cm gap, plus the depth of the framing, you should be OK.This means that this inner structure is approximately 3 - 5 cm away from every wall and the ceiling.
I think you are talking about the framing members here, right? Slats are usually thin "planks" used for acoustic purposes. 4 x 6 cm would be rather thick for slats, so I think you mean "framing". 4 x 6 cm (or 40mm by 60mm) is probably too small for your studio framing. That's equivalent to 2" x 3" in the imperial system, but studios are normally framed with 2 x 4", which is 40mm x 90mm (and usually measures 38mm x 89mm in reality... !). Especially for doors and windows, the framing needs to be big enough to take the heavy loads. And for the ceiling joists (the framing members that run across the room at the tops of the walls are called "joists"), those need to be even bigger, because they have to span a long distance with no support underneath. In your case, they will have to span about 4.1m with no support, so they will need to be much larger then 40 x 90. There are tables and calculators that you can use to tell you what size joists you need, based on the load they have to carry and the span distance, and the amount of deflection that is allowed. The load consists of two parts: the "dead load"; which is the weight of the ceiling structure itself, and the "live load", which is things that you might hang form the ceiling, such as clouds, lights, decorations, cabling, etc. Calculating structural framing is complex. You should hire a structural engineer to do that for you, when the time comes. It's not safe to do it yourself, as you might make a mistake that causes the structure to be too week, then it falls on your head one day....The slats I want to use are 4 x 6 cm,
You will need a ceiling if you are planning to do a proper "room-in-a-room" system. The ceiling is part of the two-leaf isolation system. But even if there is no drywall up there, you still have the dead load of the ceiling framing itself (which is a lot), plus everything that you want to hang from that (clouds, lights, etc.). The joists still have to support that weight, and since they have to span a long distance, then need to have suitable large dimensions.because this structure doesn’t need to carry a lot of weight, since there is no "real" ceiling needed.
You should check your local building code, to see if that is allowed. Many countries do not allow glue alone for load-bearing structures, and require mechanical fasteners, such as bolts, nails, screws, etc. Get a copy of the building code from your local municipality (they probably have it on their website), and check what the legal requirements are.This whole structure will be glued to the floor with silicon glue,
Then almost definitely glue alone will not be allowed. I'd be surprised if structural framing is permitted without mechanical fasteners in a seismic area. I live in Chile, which has the wonderful distinction of being the "earthquake capital of the world", and the regulations are very tough. We have had the largest earthquakes in recorded history here, and we get tremors and quakes all the time. We had a 6.1 just a couple of weeks ago. So I'm familiar with how structures move in earthquakes, and I would not want to be inside a structure that was just glued down.I know this is not ideal, but I'm not located in an area which is endangered to earthquakes.
This might be a big issue. I would check into it very carefully before you do anything, and get a locally qualified structural engineer to tell you what you need to do. Maybe I'm wrong, and your building code does allow structures to be glue to foundations with no mechanical fasteners....
Vapor barriers are not really related to heating: they are related to the way moisture in the air moves through the structure of a building, but the building where you are going to locate your studio is already completed, so you won't need a vapor barrier anyway.Since the room has floor heating, I don't have to bother with a vapour barrier in this case.
The framing for speaker soffits needs to be very large: it has to be rigid, and heavy, and tough. It has two main purposes: 1) prevent the vibrations of the speaker from being transmitted into the soffit itself, and also into the rest of the structure, and 2) support the heavy weight of the speaker baffles. They are VERY heavy. It does not look like your soffit framing is heavy enough, and rigid enough. Here's some pictures of how the framing looks for typical speaker soffits:The reflection free zone framework ... This framework will hold the angled structure, which will house the speakers and the baffle of them.
Those are some soffits that I designed for some of my clients, and they built. You can see how "beefy" they need to be.
You can see that in the above photos. All of the soffit framing is just nailed together. If you cut the framing members carefully to the correct angles, then they will fit together neatly, and ordinary framing nails (or framing screws, if you prefer) hold them together firmly. The side panels on the soffits also help to strengthen the structure, and hold it even more firmly (in addition to doing their acoustic jobs!).Here is my first bigger question mark: how should I connect those angled slats with the outer framework? I intend to use metal brackets to connect them, but I'm not sure if this is the right approach. Is there some clever way to deal with this problem, but only use woodscrews? Or is there a way to connect them “jigsaw puzzle allike”?
Your image under that heading shows a lot more than just the baffle!The flush mounting baffle
In this case, the baffle is cast in solid concrete, to get the mass that is needed. The baffle has to be VERY massive. In this case, my client built a wood "form" with the shape of the baffle and the speaker, and poured concrete into it, then waited for it to cure, and removed the wood. What you see in the photo is the baffle. He then mounted that on the framing, and added some other panels on the soffit as well, but that part that surrounds the speaker is the only part that should be called the "baffle". It's the new front panel of the speaker. It's an extension of the original front panel of the speaker, which is also referred to as "baffle", technically.
Actually, that's not correct. The density of plywood is around 560 kg/m3, and the density of MDF is around 750 kg/m3, so MDF is roughly 35% heavier. The baffle has to be as heavy as possible, so it is better to use MDF. I usually build up the baffle from two or three layers of materials, to get to the mass I want. For two layers, I would use one layer of 19mm MDF, with a layer of 19mm Melamine laminate board for the front. Melamine laminate is ordinary MDF but with a very thin layer of melamine on the front, that looks very much like real wood. You can also get a similar type of MDF laminate that actually does have a thin layer of real wood on one side.I want to use plywood sheets for this, since it is equally heavy to MDF,
If you do two layers of 19mm MDF, then the surface density of the baffle will be about 28kg/m2. That's not very much for a soffit baffle, but it would be OK for a low powered speaker in a small room on a small baffle. But I normally go for higher mass in the baffles. That concrete one in the photo above was something like 70 or 80 kg/m2 if I recall correctly.
For the rest of your soffit, you don't need to make the entire front surface hard. In fact, I prefer to not do that, as it puts too much reflective surface at the front of the room, especially if you are going to do 5.1. For example, if you have hangers above and below the soffit, then you need some way to expose those to the room air: they won't do much if they are hidden behind thick, solid, massive panels. I prefer to leave sections at the top and bottom of the soffit with just framed fabric panels: just a simple frame to get the same right, then two layers of breathable fabric stretched across the frame.
The way I do soffits, all of the panels are flat. The places where they meet have small gaps that are filled in with "trim" pieces, that are just strips of wood cut to the right shapes to match the surfaces on each side. For example, at the point where the soffit wing meets the soffit baffle, I leave a gap between them that is maybe 30mm wide, and since they are at different angles, one half of that 30mm width has the same angle as the baffle, while the other half as the same angle as the wing.So, my question would be, how do you saw these complex angled plates? Is there a special approach to it?
You can see one such gap in the photo below, between each speaker baffle and the wing section next to it. The trim has not yet been installed (there's also another layer of material still to go on the baffles). This room is currently under construction, and I'm trying to persuade the client to start a thread here about it, but he's too busy building the place right now! He says he'll do a thread when he has some time...
Right. Very necessary. But I think the gaps at the bottom of your soffits are not big enough to properly expose the hangers to the room.I've left some space underneath the flush mounting baffle with false walls to "let the bass in and out" and a ventilating slot for each speaker,
That's a very old drawing: old-school style soffits. It's also rather incomplete, and is just a concept drawing. Most studio designers these days would not build soffits that way.like it is described in the drawing
The theory with that design is that there will be reflections coming back towards the soffit from the desk and console, and the insulation behind the fabric on the front face of the soffit is supposed to absorb that. Once again, that's a hold over from the days of large studios with huge consoles, which is not the case with pretty much all home studios: most home studios and project studios these days have a low-profile desk with a DAW, not a console, or maybe a small console, but not the monster consoles that were common 30 or 40 years ago, when the concept in that drawing was originally developed. So that's not the way I do soffits, and I'm pretty sure most designers don't do it like that either.Why is there a bafflestep directly underneath the speakers, which is covered with a false wall and glass wool underneath? For every step in the baffle, there will be some ripple in the frequency response. So why not just keep the baffle consistent nearly to the ground?
Rather, I extend the actual baffle surface lower than the speaker, and only then have an absorber behind a fabric panel.
You would think that extending the baffle to the floor would produce the best results, but it turns out to not be necessary. You can leave a fairly large gap down there, between the floor and the bottom edge of the baffle, with little consequence in acoustic response. There's any reasons for that, but rather complex to get into.
I'm still not clear about why you want to have that framing there: I'm assuming that this is to create a proper two-leaf isolation system, or "room in a room", but I don't see any sheathing on that inner-leaf (eg, drywall), so that's confusing. What is the purpose of that framing, if it is not for an inner-leaf?Like I've described in the chapter "The outer framework" The whole construction is not touching the walls and ceiling.
The soffit does not have to be sealed. It is not a speaker cabinet, and in fact it cannot be sealed, because it must have the ventilation path up the rear of the speaker. So it can't be sealed. But it should still be enclosed, ... however, I don't don't see any side panels on your soffits.This leads to the problem, that the front and the back site of the baffle is not sealed,
They way I do soffits is to have each soffit section separated from the next one with rigid, heavy panels. So there is one one panel between the left speaker and the center speaker, then another one between the center speaker and the right speaker, then two more panels outboard for the speakers, between them and the wing sections. There is also a top panel above the speaker to separate it from the hangers above, and another panel below the speaker to separate it from the hanger below. So the cavity where each speaker is located has panels around it on all sides, and it is filled with insulation, to damp any resonances that would form in there otherwise.
It would, yes, but the frequency would be so low as to not be of much concern. But it is still better to out the panels all around, and fill with insulation (except for the air ventilation path).which is absolutely critical to my understanding, because this will act like a giant vented port for the very low frequencies and therefore has a resonance.
Foam doesn't have much mass, and is not rigid. Just use wood. 19mm MDF is usually enough.To avoid this problem, my Idea is to use memory foam stripes which will seal the front site from the back side
If it is "closed cell" (does not allow air through), then it isn't any use acoustically, and won't provide any acoustic damping to airborne sounds. Only "open cell" materials are useful acoustically.I've read that the damping properties are quite good, and that there is a type of memory foam that don't let the air thru
Just put wood panels around the sides, top and bottom of each speaker, as far away from it as you can get them, and fill the cavity with fibrous insulation. You can sort of see that in the photo above, showing the gap for the trim. Here's another photo from just before the baffles went on, where you can get a better idea of how it all goes together:But this is only a theoretical approach and I really don't know if I can trust the numbers. So, It would be great to know if anyone has experiences with this approach or even has a better idea how to deal with this.
Note! Some of the details have been deliberately hidden in that photo! I have developed a proprietary method for mounting speakers in soffits, so those details have been disguised in that photo. I'm not prepared to give away all of my secretes in public!
That won't happen if you use my soffit design, and my proprietary method for floating the speakers in the soffits...Also, the vibration of the structure doesn’t get much derived to the room walls and ceiling.
Yes there is a method for doing that... but once again, I'm not releasing it in public yet. If you take a look at Studio 3 Productions ( viewtopic.php?f=8&t=14 ), I designed their soffits with speaker replacement in mind. It is possible to remove the speakers easily for repairs or maintenance, or even to replace them with something completely different. In fact, they started out with Genelec 1031 speakers, but then later upgraded them to Eve SC-407s. And more recently, they had to pull one of those out, as it went flaky and needed to be returned for repairs. I designed a system that allowed them to simply undo some attachment points, then slide the entire mounting assembly out as a unit, and slide another one in. They can replace a speaker in less than an hour, if they have the spare one already mounted in a second mounting module.Another question would be how to make the whole baffle maintain-able? If a speaker got defective, or you want to install new cables or other stuff, how do you manage to do so with this giant baffle? Is there a way to make some parts removable without breaking the RFZ or introduce new problems like rattle?
As I mentioned above, I don't think you'll need those. In a room the size of yours, the mid range is unlikely to be problematic at the side walls. It will be problematic at the desk and console, yes, but not from the side walls. It seems to me that you are over-treating the room in the mids and highs. It would probably be too "dry" like that. In a small room like yours, it is common to end up with a dip in the lower mid range, in the time-domain response, around 200 to 500 Hz, and that's very difficult to fix. That usually comes form over-treating one specific area of the spectrum, often unintentionally.As described above, the flush mounted baffle will merge into the slat resonators, which have two different purposes in this case. First, absorbing the midrange and second, keep the reflection free zone working.
Exactly. slot walls are Helmholtz devices, and therefore must be sealed in order to work.With the slat resonators, I've stumbled again over the fact that these only work properly in a perfectly sealed cabinet
As mentioned above, I don't think you will need that. Besides, your main door opens inwards, to there is no space to have a second door in there. And that entire splayed wall stricture is wasting space in the room. It isn't necessary.Unfortunately, there is a door in my room. So, my idea to solve this problem is to build a fake door,
If you put a plastic membrane between the slats and the cavity where the insulation is, then the slot wall will not work at all. Helmholtz resonators work on the principle of a "slug" of air vibrating back and fort in the neck of the device, against the "spring" of the air trapped in the cavity. That slug of air needs to move past the end of the neck in both directions, and that's where the insulation mus be, for bet effect. Putting plastic in the way would interrupt the entire mechanism, and the device would not work at all. So, unfortunately, you cannot put plastic in there.I've read that you will need some glass wool behind the clothing that is behind the slats. I really want to avoid exposing glass wool fibres to the environment without covering it in thin plastic sheets. I know that there are different opinions when it comes to health concerns regarding this stuff, but I definitely don't want to take chances.
The insulation "damper" in a Helmholtz resonator is usually chosen very carefully, to create the exact resonant absorption that is needed. The thickness and Gas Flow Resisitivity of that insulation are usually selected with great care, to do a specific job. Changing either the thickens or the Gas Flow Resisitivity would change the acoustic characteristics of the device. If it is a broad-band device with low Q, then that's probably not an issue, but if it is high Q, low open area, and with each slot tuned to a specific target, then the difference could be very significant.So my question here is: is it possible to use a thin layer of open capillary Basotect instead of glass wool? Will it have the same effect? Because this will be not a health concern like open glass wool is.
I don't think you need that either. If you leave out the splayed walls entirely and just use more conventional treatment for the side walls, you wont need the fake window, the fake door, or the slot walls, and you'd have much more space in the room, plus a better situation for setting up the soffit wings.On the other side of the room, there is the window. As stated in the chapter "the room", only one of the two frames of the window is intended to be open, the other one is just window glass in a frame. My Idea is to cover the non-open able window and only use the window, which I'm able to open to let the light and fresh air in. The other window will be covered by a slat resonator, which also uses the volume of the window sill. To prevent a vented connection between the slat resonators behind the reflection free zone baffle and the volume for the open-able window, both sides will be sealed with memory foam again.
I'll try to get back to you on the remainder of your post tomorrow, ... I need to get some sleep now!
- Stuart -
Re: Chief Diggin Studio
Starlight wrote:I just wanted to say about HVAC that in my previous studio, which was rented so I knew that at some point I would be leaving, that my biggest cost was HVAC. I bought a multi-split AC and a separate ERV ventilator. That was 4 years ago and I still feel that what felt like a risk at the time turned out to be a brilliant investment. When I left, the company that installed them came and uninstalled them and I have them in storage at home waiting for my new place to be ready for them. I understand where you are at but just want to encourage you that when you can afford the HVAC it will make your studio feel so much more professional simply because it works.
Thank you very much for your answer, I've tried to prepare as much as possible based on what I've read and learned and then want to alter the prepared design according to the recommendation of Stuart and others around here. I was hoping not to have to change too much of the design...but I guess I was wrong about that. But that’s a good thing, because otherwise it might look good but sound bad, and I definitely want it to be the other way around. Regarding the HVAC, I definitely will install one when the money is there! But after Investing in the room, I'll need some time to "recharge"
Soundman2020 wrote:Hi Thomas, and Welcome to the Forum!As Starlight said: that's a very impressive first post. The quality of initial posts here on the new forum is excellent, far above that of some other forums. And yours is right up there, at the top.
Thank you very much for your kind words, it really means a lot, since I’ve invested most of my free time of the last half year into this project!
Soundman2020 wrote: I'm sure there will be other members with questions about speakers for you
I’ll be happy to help if I can!
Soundman2020 wrote: There are some fundamental differences in the way a studio should be designed and treated for 2.1 and 5.1. Or more generally, differences between two-channel and multi-channel. The main difference is that for multi-channel sound (5.1, 7.1, etc.), you have some of the speakers at the back of the room, facing forward, and that can be a problem for rooms designed for 2.1. Typically, 2.1 rooms have reflective surfaces at the front of the room, at the locations where the rear speakers are pointing. So, if you do plan to use your room for 5.1 in the future, it should be designed with that in mind right now. It's easy to adapt a 2.1 room to work well with 5.1: it needs some fairly drastic changes. But from other point of view, there's no problem with mixing in a 2.1 room that was designed for 5.1. In other words: I'd recommend that you design your room for 5.1, not 2.1.
Fair enough! But since the room is intended to be used 90% of the time in stereo, I was thinking that optimizing the room for this approach is much more desirable that having an “allround” solution. I did not even intend to use the subwoofer in stereo mode, since the speakers reach down to 36 Hz (-3 dB) which is enough bass for me. Also, I was thinking that it is not possible to have a ”correct” surround application in this small room, that’s why I choose the approach of a stereo application. Anyway, if you say it is possible in this room with this (quite powerful) speaker system, then I would definitely re-think my design and change it! But this would bring me back to square one, sadly...so, If there’s a way to safe some of my sketchup and optimize the room for this mixed format approach, your input would be highly appreciated, sine I’ve only a vague idea of what to change...
Soundman2020 wrote: True, but there's a lot of other "impossible" things about home studios, that can be minimized with good design! A small room is never going to behave like a large room, but there's lots of stuff you can do to get it close.
That’s a relief! I was hoping that the room is okay...
Soundman2020 wrote:The room dimensions are: 263 cm x 420,8 cm x 442,5 cm (H x W x L), so the floor area is about 18,6 m² and the volume is 48,9 m³. I know that these dimensions are not ideal and do not meet the EBU listening standards
It's not ideal, but it's not far away from the specs for two-channel rooms. BS.1116-3 specifies 20 m² as the minimum area for 2-channel, and 30 m² for multi-channel (EBU is a bit higher for both, but ITU specs are broadly regarded as good for control rooms). Some designers also talk about a minimum room volume of 45 m3, or 42 m3, or 47 m3 (depending on who you talk to...), so your room is "in the ball park", as the yanks would say. The thing is that, even if the spec says "minimum 20m2", that does not mean that all rooms 20.1 m2 and greater are automatically perfect, while all rooms 19.9 m2 or less are automatically terrible. It’s just a point on a scale, that's all. Rooms larger than that will generally be good (but there's also some bad ones that are far bigger!), and rooms smaller than that will generally not be so good, or will require more treatment to make the good. I have designed rooms as small as 9m2 (!) that worked out well, and the owner was very satisfied with the outcome. So just because yours is a little smaller than "ideal" does not mean that it must be bad: it can be very good, actually.
That’s a relief, too! Thank you for the detailed insights!
Soundman2020 wrote:With all of that, you should have very decent isolation, so I imagine that you don't need more than that, and you only need treatment?The Walls are made out of sand-lime brick (KSR 2,2 / 12 / DBM), 24 cm for the outside wall, 20 cm for the walls that are separating the room from the other rooms and the corridor. ...The ceiling is made out of 20 cm reinforced concrete plates (STB C25/30 XC1 / BST 500 M/S)....The floor is made out of different stacked materials;...
Yes, I’m looking for treatment, because I also think that the insulation will be enough. Like I said in one of my previous posts (somewhere), while measuring the room at 80 dB sweeps, those where barley hear able outside the room. I‘ve intend to do a “real” insulation measurement in the next few weeks to have the numbers. Also, the wall that I share to the left from the door is treated from the other side.
Soundman2020 wrote: Question: Which 5.1 layout are you using? Your speaker layout does not seem to fit the recommended 5.1 layouts. There are a few variations on the angles for the rear surround speakers, but your layout doesn't seem to match any of them.
I’ve used the PDF from “The Recording Academy's Producers & Engineers Wing - Recommendations For Surround Sound Production”. There’s a drawing on page 30. I know that in my drawing, the speakers are not in a perfect circle, but I was planning to use a sample delay on those outputs so they behave like in a circle and are in phase. This approach is also stated somewhere in the PDF. Here’s the link to it: https://www.grammy.com/sites/com/files/ ... ations.pdf Since experts like George Massenburg and Bob Ludwig were consulted for this PDF, I thought it should be correct...
Soundman2020 wrote:Careful with that! It's not really a rule: more of a guideline: a good starting point for figuring out the best location.All my following considerations are based on the "38% rule"; I've read so much about.
Yes, I’ve read your longer posts in the John Sayers forum about that. In fact, I’m sitting at approximately 40% if you do the math, but I had to start somewhere. So, as you also say, I only use it as a start to base all other Ideas on. Because only then I was able to place the speakers and check how far they have to be away from the walls and check the dimensions, etc.
Soundman2020 wrote:Your mix position is a bit further back than normal, but it should be OK. You could probably get it closer to the front by changing the angles of the soffit baffles a bit. It looks like it should be possible.
At the moment, they are in a perfect 60° triangle. I’ve used this angel, because with it I was able to use speaker soffits (in my case: the whole front wall) were the speaker is not in the middle of the soffit, but in a 38-62% ratio to the next plates that have a different angle. This will help to keep the frequency response flat I’ve read. Also, with this position in a perfect 60° triangle, the centre speaker has enough space to the wall behind it, because the Eve Audio SC 208 have a bass reflex port that faces backwards, which could change its intended tuning frequency if the speaker is too close to a wall.
Soundman2020 wrote:In general, it's not a good idea to put the sub in the middle of the wall. It's usually better to have it off to one side. Better still is to have a pair of subs, set up as a plane-wave bass array, as that can be tuned to deal with modal issues and SBIR issues.
Mhh, okay. The PDF I’ve shared the Link above says it should be like that. Could you explain this a little further? A pair of subs would be possible to build (but I will need two amplifiers with DSP, which will be expensive), but I think I won’t need that much amount of bass energy in this small room...It could lead to much more problems I fear ...like I said, those Eve Audio SC 208 speakers go down to 36 Hz. I only intend to use the Sub for Video postproduction exclusively. Maybe check the “club character” of a song with the 2.1 config but that’s it.
Soundman2020 wrote: Which DSP are you considering using? A good speaker controller can make a big difference in final room tuning. It's not so easy to do that tuning, but with a pair of subs and a quality DSP, the results can be very, very good.
The Eves have their own DSP with some filters. If they don’t match the problems I will use the control room functions of my DAW, which allow me to put VST plugins in the monitor way. For the Sub, I wanted to use a modular system from sure electronics (http://store.sure-electronics.com/). They sell amplifiers, DSP programmers, DSP break-out circuits and DSP boards separately. You can combine them as needed for the task. The ADAU 1701 DSP board they offer is a bit older but performs well @48 kHz and has a simple graphical programming interface, where you can combine different audio tasks like delay, iir filters, fir filters, etc. If this would not be enough, I will also use a VST in the control room of my DAW. (Cubase)
Soundman2020 wrote:I'd suggest using an angled hard-backed cloud at the front of the room, to improve that even more. Sound waves don't really reflect as straight lines: more similar to cones. You can represent the reflections as straight lines, yes, but the actual reflection is still going to be "smeared" a bit wider than that: not so specular. Especially for the mid-range frequencies. Using that criteria, I think you could benefit from doing a cloud.I've done the horizontal ray tracing with the amroc tool and for the (half) vertical ray tracing I used the tool from Stuart to guide the reflections around the mixing position and get a reflection free zone.
The flush mounting baffle, which I’ve described in my second post of this thread, is designed to guide most of the mid range wavelength (the speaker are narrowing as higher the frequency gets) above my head. With a short gap for the HVAC ventilation pipe (the air should be sucked out at this point of the room), the waves are guided with the hard back cover of the cloud. I could change the design, so that the flush mounting baffle only guides the waves in the horizontal position, and the cloud guides them in the vertical position. However, I’ve tried that before and it seems that it is really hard to get a good working reflection free zone that way if I only use an angled cloud instead of the two angled plates that are connected to the flush mounting baffle. For my understanding, it is even more critical to have two different angels in my case, because the near field sound waves radiate in a spherical sector, like you said, and therefore the approximation to a ray do not reflect the reality exact enough. Or is it not as critical as I think it is? Please advice in this case, because I’m kind of lost here. And because the approach for a surround configuration is different, I do not even know how to deal with the hangers in this case...
Soundman2020 wrote:This is where multi-channel rooms (5.1, etc.) and stereo rooms (2.0, 2.1, etc.) are different. If you look at your diagram, you'll notice that the rear surround speakers are facing to the hard, reflective wing extensions of the baffles, and you will get reflections from those into your ears. I would suggest correcting that.Behind the flush mounting baffle, there will be a big array of hangers
Like I said before, I was thinking that in this small room it is not possible to get a good surround sound, so I was optimizing for stereo. However, you told me that it is possible, so I will rethink the whole front design, but I certainly need help with that since I’ve no real Idea how to treat a room for surround. D you have some links to literature?
Soundman2020 wrote:[You also seem to be using the old Philip Newell concept for your side walls: Most designers don't do that, as it wastes space, and the acoustic benefits are not that great. It's better to leave your side walls parallel, and keep the room as wide as possible. Splaying the side walls is not commonly done in small rooms any more. Some old-school designers still do that, with contemporary advances in acoustic research and knowledge, up-to-date designs and designers use better methods.
That’s good to hear, since it will save me a lot of time and money if I don’t have to build them! But another reason why I choose this design was the fact that I did not get a good reflection free zone in the horizontal position without those walls, so I thought it will not harm to do “two-in-one” side walls. If you could take a look at the following ray tracing pictures, you can see what I meant. If I don’t want to cover the window, or change the angle so that the window is not convered, a reflection free zone does not work, if the ray tracing is trustworthy.
Soundman2020 wrote:[Cloud: definitely! But put a hard back on it (massive), and angle it, instead of having it horizontal, to help with several issues at once.
Will do! But what angle do I need? Like I’ve described above, I needed two angled plates to get it working with the ray tracing.
Soundman2020 wrote:You probably don't really need those, unless you a e doing a proper "room-in-a-room" studio, with a decoupled inner-leaf. The door and window are far enough back in the room that they will not be interfering with your reflection free zone, so unless you are doing a two-leaf isolation system, you don't need those. It's not clear from your diagrams if this is the case, or not.including a false door and a false window, to keep the reflection free zone consistent.
Room in room was never my approach, because of the triple leaf situation this would introduce, the costs and the need of it. Like you said, insulation is already okay, but no treatment. But you’re right; the design looks a bit as if this would be the case. I’m using insulation between the slats just to get the overall reverb time a bit under control. I’m using the outer frame work, because I needed some structure to mount the reflection free zone framework on. If I leave out the slat resonators like you suggested, I don’t need the outer frame work anymore. Because than I have two independent structures and a cloud when I keep the design. How should I threat the sidewalls in this case? And what about the window? Is it really not a problem to have such a big reflective area one-sided in my room? How do I keep symmetry in this case, regarding the reflections?
Soundman2020 wrote:When you say "filling compound", are you referring to wood filler, which is a type of paste used to fill gaps and holes in wood? Or are you referring to "caulk", which is the compound used in kitchens and bathrooms to fill and seal gaps around many different things?For all the connection points of the framework I'll use filling compound to prevent the structure from creaking and making resonant noises. ... Question here: what is the "best" filling compound for this task? Is there a special brand (e.g. green glue) or can I use conventional filling compound?
I guess I meant caulk in this case, sorry...just to keep the frame connection joints from creaking and making resonant noises when the speakers are blasting.
Soundman2020 wrote:In studio construction, it is important to use caulk any place that needs to be air-tight. For example, when building a two-leaf isolation system (which you do seem to be doing, and sometimes called "room in a room" construction), both of the leaves must be completely sealed, absolutely hermetic, so caulk is used abundantly all over the place: under the walls, around the ends of the walls, in joints between walls, or joints between drywall panels. If that's what you are referring to, then the caulk you need is the type that remains soft, flexible, and "rubbery" even when it is fully cured. There are special acoustic caulks for this, but ordinary kitchen and bathroom caulk are fine too, and a lot cheaper. I've had good success with a product called Sikaflex F11 FC, which seems to be available in many countries around the world, but any good quality flexible caulk will work.
Thank you for clarifying this to me, it helps a lot! But like I said before (I think my drawing is a bit misleading) I’m using insulation between the slats just to get the overall reverb time a bit under control, but it is not sealed with plates. I’m only using the outer frame work, because I needed some structure to mount the reflection free zone framework on, which is obsolete if I leave out the slat resonators like you suggested.
Soundman2020 wrote:If you are planning a two-leaf isolation system, then your existing walls, floor and ceiling are your "outer-leaf", and you only need one single "inner-leaf" frame built inside that, to complete the system. From your diagrams, it seems you are not doing it that way as you are adding a third leaf, which is your splayed walls. You don't need those.
Like I said, my drawing must be misleading in this case. There’s only the outer leaf, which is the sand-lime brick walls, and there is the inner leaf, which is the flush mounting baffle, I thought. I’m even not sure if this counts as an inner leaf, since it is not sealed and inconsistent. If not, then I would have only one leaf: the sand-lime brick walls.
Soundman2020 wrote:Right. But that's not your outer-leaf. It is your inner-leaf. The outer leaf is the walls that are already there.The plan is to build an outer frame structure, which is parallel to the whole room, but don't touch the walls or ceiling.
Understood!
Soundman2020 wrote: Also, your framing does not seem to be standard. Normally, the studs are set at either 400 mm OC or 600mm OC. "OC" means "On Center". The measurements are from the center of one stud to the center of the next stud (not the distance between the studs). The reason for using 400 or 600 mm centers, is because all the panels (drywall, plywood, OSB, MDF, etc.) are made in lengths and widths at that are multiples of 400, so they will line up with the framing members easily if you use 400mm OC (or 600 mm OC).
Thank you for this explanation. But like I said, I was not planning to build another leaf. It is just insulation to lower the overall reverb time, and those I could pack accordingly, since I was planning to wrap and seal them in plastic film to keep the fibres from flowing around. My Idea was to run a zig-zag-pattern yarn that is stapled on the frames to keep the insulation in place.
Soundman2020 wrote: But be careful! Sometimes panels are still made to imperial specifications, which is for 16" OC (or 24" OC), and there's a slight difference. 16" is 406.4mm, and 24" is 609.6 mm. If the panels where you live are made by imperial machines, they will measure 122cm x 244 cm, instead of the metric standard, which is 120cm x 240 cm. It's complicated! It would be good if you first check at your local hardware stores to find out what the actual real sizes are of the panels they sell, and do your framing for that. It makes it easier, so you don't end up having to do a lot of cutting, and waste a lot of materials.
I did that online by the store I’m planning to buy most of the stuff I need for building. But I only looked for the measures of the construction wood. I decided to go with framing that are 4 x 6 cm, since for my understanding, those have the best weight/cost ratio for the construction I need. I’ve seen that people are using 10 x 5 cm framing, but I thought I don’t need so heavy framing since the construction I intended was not a weight-carrying one. But I was wrong I see...
Soundman2020 wrote:Right. So you will have to put the sheathing on the room-side of the framing, doing "conventional" construction (as opposed to "inside-out" construction). Have you calculated how much isolation you need? That's the key to determining how much space you need between the outer leaf and the inner leaf, but it will need to be at least 10cm. So, allowing for a 5cm gap, plus the depth of the framing, you should be OK.This means that this inner structure is approximately 3 - 5 cm away from every wall and the ceiling.
I’m not quite sure if I understand you in this case. You are expecting that I build a second leaf for insulation inside out, but I’m planning just to use the insulation without a leaf like I said before. It is intended for the overall reverb time in the room. Or is this a bad Idea and will not work (I’ve read this somewhere)? I was thinking that by introducing this leaf you’re talking about above, I would build myself a third leaf, which should be avoided. Or am I wrong in this case? Please advice. Because I’m not sure if this is really needed...The reason why I do not want to connect the floor with the walls is the decoupled floor impact protection, which would be short-circuited if I do so.
Soundman2020 wrote:I think you are talking about the framing members here, right? Slats are usually thin "planks" used for acoustic purposes. 4 x 6 cm would be rather thick for slats, so I think you mean "framing". 4 x 6 cm (or 40mm by 60mm) is probably too small for your studio framing. That's equivalent to 2" x 3" in the imperial system, but studios are normally framed with 2 x 4", which is 40mm x 90mm (and usually measures 38mm x 89mm in reality... !). Especially for doors and windows, the framing needs to be big enough to take the heavy loads. And for the ceiling joists (the framing members that run across the room at the tops of the walls are called "joists"), those need to be even bigger, because they have to span a long distance with no support underneath. In your case, they will have to span about 4.1m with no support, so they will need to be much larger than 40 x 90. There are tables and calculators that you can use to tell you what size joists you need, based on the load they have to carry and the span distance, and the amount of deflection that is allowed. The load consists of two parts: the "dead load"; which is the weight of the ceiling structure itself, and the "live load", which is things that you might hang form the ceiling, such as clouds, lights, decorations, cabling, etc. Calculating structural framing is complex. You should hire a structural engineer to do that for you, when the time comes. It's not safe to do it yourself, as you might make a mistake that causes the structure to be too week, then it falls on your head one day....The slats I want to use are 4 x 6 cm,
Okay, understood. So the only way to avoid this (which should be possible if I understood you right) is to build without the outer framework and just build the front with the reflection free zone baffle (freestanding because of the decoupled floor impact protection) and treat the room for acoustically. And check how the reflection free zone baffle has to be altered to prevent problems with the rear speakers.
Soundman2020 wrote:You will need a ceiling if you are planning to do a proper "room-in-a-room" system. The ceiling is part of the two-leaf isolation system. But even if there is no drywall up there, you still have the dead load of the ceiling framing itself (which is a lot), plus everything that you want to hang from that (clouds, lights, etc.). The joists still have to support that weight, and since they have to span a long distance, then need to have suitable large dimensions.because this structure doesn’t need to carry a lot of weight, since there is no "real" ceiling needed.
Like I said, I don’t want to build a second leaf if not absolutely necessary. In my initial design, the ceiling framing was supported by the reflection free zone framework. But this will not be there anymore if I build it like you suggested, without the slat resonators on both sides... Regarding the cloud: it is possible to hang it on the ceiling directly, because it is not touching anything.
Soundman2020 wrote:You should check your local building code, to see if that is allowed. Many countries do not allow glue alone for load-bearing structures, and require mechanical fasteners, such as bolts, nails, screws, etc. Get a copy of the building code from your local municipality (they probably have it on their website), and check what the legal requirements are.This whole structure will be glued to the floor with silicon glue,
Oh boy, this will lead to some discussion with the owner of the complex. He don’t want me to damage the floor...but I guess, if it is required by law, he might re-think his decision...I’ll ask and will come back to this topic as soon as I got an answer from him.
Soundman2020 wrote:Vapour barriers are not really related to heating: they are related to the way moisture in the air moves through the structure of a building, but the building where you are going to locate your studio is already completed, so you won't need a vapour barrier anyway.Since the room has floor heating, I don't have to bother with a vapour barrier in this case.
Cool, so I don’t have to worry about that! Thanks for the explanation!
Soundman2020 wrote:The framing for speaker soffits needs to be very large: it has to be rigid, and heavy, and tough. It has two main purposes: 1) prevent the vibrations of the speaker from being transmitted into the soffit itself, and also into the rest of the structure, and 2) support the heavy weight of the speaker baffles. They are VERY heavy. It does not look like your soffit framing is heavy enough, and rigid enough. Those are some soffits that I designed for some of my clients, and they built. You can see how "beefy" they need to be,The reflection free zone framework ... This framework will hold the angled structure, which will house the speakers and the baffle of them.
All right! I’ll alter the design accordingly! So, changing the framing like you have described above (using 4 x 9 cm framing) will be rigged enough? When I look at your pictures, you use smaller framing for the inner structure than for the corner framing. What is the ratio of those frames? It is hard to tell just from a picture...and also I’m a bit confused because it seems that all four photos have different measurements and ratios regarding the thickness of the framing...could you recommend a measurement and ratio? The store that I’m planning to buy the supplies from is offering the following measurements for frames (all mm, increasing in 20 mm steps): 40 - 240 x 60 – 240.
Soundman2020 wrote:You can see that in the above photos. All of the soffit framing is just nailed together. If you cut the framing members carefully to the correct angles, then they will fit together neatly, and ordinary framing nails (or framing screws, if you prefer) hold them together firmly. The side panels on the soffits also help to strengthen the structure, and hold it even more firmly (in addition to doing their acoustic jobs!).Here is my first bigger question mark: how should I connect those angled slats with the outer framework? I intend to use metal brackets to connect them, but I'm not sure if this is the right approach. Is there some clever way to deal with this problem, but only use woodscrews? Or is there a way to connect them “jigsaw puzzle allike”?
Okay, that sounds convenient and cheaper, since I don’t have to buy a ton of metal brackets! I think I will use framing screws in my case!
Soundman2020 wrote:Your image under that heading shows a lot more than just the baffle!The flush mounting baffleThe "baffle" on a soffit is only the part that goes directly around the speaker. Here's a photo of just the baffle from a different customer: In this case, the baffle is cast in solid concrete, to get the mass that is needed. The baffle has to be VERY massive. In this case, my client built a wood "form" with the shape of the baffle and the speaker, and poured concrete into it, then waited for it to cure, and removed the wood. What you see in the photo is the baffle. He then mounted that on the framing, and added some other panels on the soffit as well, but that part that surrounds the speaker is the only part that should be called the "baffle". It's the new front panel of the speaker. It's an extension of the original front panel of the speaker, which is also referred to as "baffle", technically.
Ok thank you for clearing that up! In loudspeaker terminology, the term “baffle” is the surface the chassis are mounted on and since you extend it with the speaker soffit, I was thinking this would be the same word in this case. So, basically what you’re saying is, that my reflective surface (baffle + panels) is not correct? Should it be smaller, like just a horizontal stripe and the rest should be covered with another falls wall, so that the hangers could work better? Or is the hanger concept not the right approach for a surround room? Or do I have to make some additional baffles in the back for the surround speakers?
Soundman2020 wrote:Actually, that's not correct. The density of plywood is around 560 kg/m3, and the density of MDF is around 750 kg/m3, so MDF is roughly 35% heavier. The baffle has to be as heavy as possible, so it is better to use MDF. I usually build up the baffle from two or three layers of materials, to get to the mass I want. For two layers, I would use one layer of 19mm MDF, with a layer of 19mm Melamine laminate board for the front. Melamine laminate is ordinary MDF but with a very thin layer of melamine on the front, that looks very much like real wood. You can also get a similar type of MDF laminate that actually does have a thin layer of real wood on one side.I want to use plywood sheets for this, since it is equally heavy to MDF,
I know this melamine laminate, but the sources I’ve found are very expensive (80 – 100€ / m²). I’m not willing to pay this price. I will look for a good paint in this case and use ordinary MDF. So, what do you recommend to use to combine those two layers for the baffle? Ordinary wood glue? Greenglue (which is hard to get and therefore also very expensive)? There are quite different opinions about greenglue: https://www.youtube.com/watch?v=J7Qi42E5I9c
Soundman2020 wrote: If you do two layers of 19mm MDF, then the surface density of the baffle will be about 28kg/m2. That's not very much for a soffit baffle, but it would be OK for a low powered speaker in a small room on a small baffle. But I normally go for higher mass in the baffles. That concrete one in the photo above was something like 70 or 80 kg/m2 if I recall correctly.
Could you explain a bit further why it needs to be this heavy? When I’m developing Hifi Speakers e.g. I can test different baffle designs using cardboard and except of the frequencies less than 200 Hz, the measurements are nearly the same when the speaker is made out of MDF.
Soundman2020 wrote: For the rest of your soffit, you don't need to make the entire front surface hard. In fact, I prefer to not do that, as it puts too much reflective surface at the front of the room, especially if you are going to do 5.1. For example, if you have hangers above and below the soffit, then you need some way to expose those to the room air: they won't do much if they are hidden behind thick, solid, massive panels. I prefer to leave sections at the top and bottom of the soffit with just framed fabric panels: just a simple frame to get the same right, then two layers of breathable fabric stretched across the frame.
Allright! This is the answer of a question that I’ve asked above! So, no big baffle, just a stripe of reflective surface for the speakers to work out the refelction free zone. But how much bigger than the speaker does it have to be? Also, what to do with the rear speakers?
Soundman2020 wrote:The way I do soffits, all of the panels are flat. The places where they meet have small gaps that are filled in with "trim" pieces that are just strips of wood cut to the right shapes to match the surfaces on each side. For example, at the point where the soffit wing meets the soffit baffle, I leave a gap between them that is maybe 30mm wide, and since they are at different angles, one half of that 30mm width has the same angle as the baffle, while the other half as the same angle as the wing.So, my question would be, how do you saw these complex angled plates? Is there a special approach to it?
Understood! I will change this in my updated design!
Soundman2020 wrote: You can see one such gap in the photo below, between each speaker baffle and the wing section next to it. The trim has not yet been installed (there's also another layer of material still to go on the baffles). This room is currently under construction, and I'm trying to persuade the client to start a thread here about it, but he's too busy building the place right now! He says he'll do a thread when he has some time...(Steve, I hope you are reading this!
![]()
).
Maybe I’m missing something, but there’s no photo below.
Soundman2020 wrote:Right. Very necessary. But I think the gaps at the bottom of your soffits are not big enough to properly expose the hangers to the room.I've left some space underneath the flush mounting baffle with false walls to "let the bass in and out" and a ventilating slot for each speaker
Okay, they are 30 cm in height, like it was described in the picture from the John Sayers forum. But like stated before, If they are not working properly, I’ll change the design. But I have to know If this still applies to surround or only to stereo.
Soundman2020 wrote:That's a very old drawing: old-school style soffits. It's also rather incomplete, and is just a concept drawing. Most studio designers these days would not build soffits that way.like it is described in the drawing
Oh well...I’ll update the design to a more modern approach, If you give me some guidance...
Soundman2020 wrote:The theory with that design is that there will be reflections coming back towards the soffit from the desk and console, and the insulation behind the fabric on the front face of the soffit is supposed to absorb that. Once again, that's a holdover from the days of large studios with huge consoles, which is not the case with pretty much all home studios: most home studios and project studios these days have a low-profile desk with a DAW, not a console, or maybe a small console, but not the monster consoles that were common 30 or 40 years ago, when the concept in that drawing was originally developed. So that's not the way I do soffits, and I'm pretty sure most designers don't do it like that either. Rather, I extend the actual baffle surface lower than the speaker, and only then have an absorber behind a fabric panel. You would think that extending the baffle to the floor would produce the best results, but it turns out to not be necessary. You can leave a fairly large gap down there, between the floor and the bottom edge of the baffle, with little consequence in acoustic response. There's any reasons for that, but rather complex to get into.Why is there a bafflestep directly underneath the speakers, which is covered with a false wall and glass wool underneath? For every step in the baffle, there will be some ripple in the frequency response. So why not just keep the baffle consistent nearly to the ground?
Understood. I will not have a console, I have a “reflection free desk” (expanded metal with cloth over it to let the lower frequencies through) with two Avid Artist Mix controllers and keyboard and mouse. The only thing I kind of forgot to think of are the two 28” computer monitors I have. Those have to be placed somewhere. I will alter my design to have a greater gap between the floor and the bottom edge of the baffle.
Soundman2020 wrote:I'm still not clear about why you want to have that framing there: I'm assuming that this is to create a proper two-leaf isolation system, or "room in a room", but I don't see any sheathing on that inner-leaf (eg, drywall), so that's confusing. What is the purpose of that framing, if it is not for an inner-leaf?Like I've described in the chapter "The outer framework" The whole construction is not touching the walls and ceiling.
Like stated before, the outer framework was intended to just hold the reflection free zone framework, which is obsolete and therefore can be spared. No “room in room” system is intended.
Soundman2020 wrote:The soffit does not have to be sealed. It is not a speaker cabinet, and in fact it cannot be sealed, because it must have the ventilation path up the rear of the speaker. So it can't be sealed. But it should still be enclosed, ... however, I don't don't see any side panels on your soffits.This leads to the problem, that the front and the back site of the baffle is not sealed,
Okay, good to know, that I don’t have to worry about that. Then I just have to get some guidance how I should build the soffits...
Soundman2020 wrote: They way I do soffits is to have each soffit section separated from the next one with rigid, heavy panels. So there is one one panel between the left speaker and the center speaker, then another one between the center speaker and the right speaker, then two more panels outboard for the speakers, between them and the wing sections. There is also a top panel above the speaker to separate it from the hangers above, and another panel below the speaker to separate it from the hanger below. So the cavity where each speaker is located has panels around it on all sides, and it is filled with insulation, to damp any resonances that would form in there otherwise.
Okay, this helps a lot! So I just have to expand the speaker front in all directions, and have them (acoustically) connected in the horizontal axis, like a “baffle stripe”. Are there any recommendations how large the expansions have to be above and below the speaker? [/quote]
Soundman2020 wrote:It would, yes, but the frequency would be so low as to not be of much concern. But it is still better to out the panels all around, and fill with insulation (except for the air ventilation path).which is absolutely critical to my understanding, because this will act like a giant vented port for the very low frequencies and therefore has a resonance.
Okay, understood. But do I really need a ventilation slot directly above the speaker (like it is shown in the concrete soffit you have posted earlier)?
Soundman2020 wrote:Foam doesn't have much mass, and is not rigid. Just use wood. 19mm MDF is usually enough.To avoid this problem, my Idea is to use memory foam stripes which will seal the front site from the back side
Thank you, but like I said before, I don’t want to connect the floor with the walls because I will lose the intended acoustic insulation from the decoupled floor.
Soundman2020 wrote:Just put wood panels around the sides, top and bottom of each speaker, as far away from it as you can get them, and fill the cavity with fibrous insulation. You can sort of see that in the photo above, showing the gap for the trim. Here's another photo from just before the baffles went on, where you can get a better idea of how it all goes together. Note! Some of the details have been deliberately hidden in that photo! I have developed a proprietary method for mounting speakers in soffits, so those details have been disguised in that photo. I'm not prepared to give away all of my secrets in public!But this is only a theoretical approach and I really don't know if I can trust the numbers. So, It would be great to know if anyone has experiences with this approach or even has a better idea how to deal with this.Sorry!
I understand that you will keep some of your secrets! No problem. Just to get this right: Is it critical to build a bigger cabinet with all the insulation that is sealed? Or can I just build a frame, mount the soffits and just build fake walls above and below? Like I said, I want to pack all the insulation in plastic sheets, so that the fibres can’t get into the air. I’m planning to use plastic sheets that are only 10 µm thick and therefore are very light. Is this a problem?
Soundman2020 wrote:That won't happen if you use my soffit design, and my proprietary method for floating the speakers in the soffits...Also, the vibration of the structure doesn’t get much derived to the room walls and ceiling.It completely prevents any transfer of vibration.
Good to know, but that’s your secret, isn’t it?
Soundman2020 wrote:Yes there is a method for doing that... but once again, I'm not releasing it in public yet. If you take a look at Studio 3 Productions (viewtopic.php?f=8&t=14), I designed their soffits with speaker replacement in mind. It is possible to remove the speakers easily for repairs or maintenance, or even to replace them with something completely different. In fact, they started out with Genelec 1031 speakers, but then later upgraded them to Eve SC-407s. And more recently, they had to pull one of those out, as it went flaky and needed to be returned for repairs. I designed a system that allowed them to simply undo some attachment points, then slide the entire mounting assembly out as a unit, and slide another one in. They can replace a speaker in less than an hour, if they have the spare one already mounted in a second mounting module.Another question would be how to make the whole baffle maintain-able? If a speaker got defective, or you want to install new cables or other stuff, how do you manage to do so with this giant baffle? Is there a way to make some parts removable without breaking the RFZ or introduce new problems like rattle?
Oh Boy, I hope it won’t be necessary to replace the speakers this often in my case. But I get the point. Question is, am I able to build something similar in my room?
Soundman2020 wrote:As I mentioned above, I don't think you'll need those. In a room the size of yours, the mid range is unlikely to be problematic at the side walls. It will be problematic at the desk and console, yes, but not from the side walls. It seems to me that you are over-treating the room in the mids and highs. It would probably be too "dry" like that. In a small room like yours, it is common to end up with a dip in the lower mid range, in the time-domain response, around 200 to 500 Hz, and that's very difficult to fix. That usually comes from over-treating one specific area of the spectrum, often unintentionally.As described above, the flush mounted baffle will merge into the slat resonators, which have two different purposes in this case. First, absorbing the midrange and second, keep the reflection free zone working.
Thank you for this advice. Like I said, I will change the design accordingly and leave the slat resonators out if it.
Soundman2020 wrote:[...] If you leave out the splayed walls entirely and just use more conventional treatment for the side walls, you won’t need the fake window, the fake door, or the slot walls, and you'd have much more space in the room, plus a better situation for setting up the soffit wings.
This helps a lot, thank you!
Re: Chief Diggin Studio
This post is only here, because I've altered the last one and so the thread does not get listed on top of the subforum.
Re: Chief Diggin Studio
Hello,
Any chance to get some answers before Christmas? I have some days off and could spend the time correcting my drawing. Would be good to start building asap, because I'm already paying rent for the room. And I definately won't start building until the planning is done...
Best regards, and happy holidays!
Thomas
Any chance to get some answers before Christmas? I have some days off and could spend the time correcting my drawing. Would be good to start building asap, because I'm already paying rent for the room. And I definately won't start building until the planning is done...
Best regards, and happy holidays!
Thomas
- Soundman2020
- Site Admin
- Posts: 905
- Joined: Thu, 2019-Sep-19, 22:58
- Location: Santiago, Chile
- Contact:
Re: Chief Diggin Studio
Hey Thomas, Sorry about the long delay in getting back to you! It's been real hectic here for a while... the same day you posted, my daughter was admitted to hospital for major surgery... she's OK now, but that sort of sidelined me from things here a bit. Then Christmas, New Year... But that's all gone now, and I'm getting back to normal... and catching up on the forum!
So....
Or you can use combinations of the above. As long as you achieve the end goal of not having reflections from the rear surrounds to the mix position, while still having good reflection control for the L and R, then that's fine.
Also, I have a beef with that diagram: it places the sub in the center of the front wall: that's not a good location for it, as I'm sure you know. It should be off-center, as I mentioned before. The center of the front wall is a modal null for several frequencies in any room, so those frequencies would be somewhat attenuated in the entire room. Subs should be off-center to the left or right. And the best solution is a pair of subs, o even a set of four subs. But that's for a separate discussion...
I could go into a lot more detail on that, but that's the basics: 30° toe-in° (60° triangle) is not written in stone, and you can vary the angle a bit, if needed.
Take a look at this thread: viewtopic.php?f=8&t=14 Those are Eve SC-407 speakers, soffit mounted, vertically! Against the rules. When I designed that room many years ago, I found that I would need to set them up like that for many reasons, so I contacted Eve headquarters, and discussed this with their chief engineer. A very nice guy, and very helpful!. I told him what I wanted to do, and why: he agreed that it was the best option for that room, and we came up with a plan. Those SC-407's also have bass reflex ports on the rear, and there was very little space inside the soffit. So I damped the reflex ports, basically killing them, with the blessing of the chief engineer himself at Eve Audio. He even gave m some tips on the best way to do that with the SC-407. And I also mounted them vertically, instead of the more recommended horizontally. You can see the results on the customer's own website.
So it is possible to deal with bass reflex speakers in soffits... or close to walls. The wall will do that the reflex port was trying to do out in the open, and the wall will do a better job, so there's no problem with damping the reflex port. Some people don't understand this, and think that you can't flush-mount a rear-ported speaker, but in fact it is possible, if you do it right.
So, it would be possible for you to get your SC-208 closer to the front wall if you need to... but do also be careful about cooling airflow. Leave enough space to ensure that air can circulate around the speaker freely.
That's pretty darn amazing, as you can see. Perfectly clean, smooth, even, flat, balanced bass all the way down to 12 Hz.
To put that in perspective, here's the original first spectrogram from the same room, before it was treated and tuned:
So that's the level of improvement you can get when a room is properly designed, properly treated, and properly tuned, including the placement and adjustment of a sub to deal with the low end.
That's not what subs are meant for. Contrary to popular belief, the purpose of a sub is not to "make some stuff sound good if it has a lot of bass". The real purpose of a sub in a studio, is acoustic, not music. It is there to even out the low end, smoothing away issues such as SBIR and modal problems that still remain after the room has been treated. By smoothing out the low-end response, it helps flatten the frequency response curve. If you turn it off, then it can no longer do that, and your entire room response is messed up!
This is not at all intuitive, and many people don't understand how a sub can fix problems in the mid range, or higher, but it does.
It's a little complex, but basically it has to do with the modal response of the room. As I mentioned before, the low frequency modal response "shapes" the frequency response curve for the entire room, and the entire spectrum. If a room could have no modes at all (in other words: no walls and no ceiling), then the frequency response would be flat. As soon as you have one single mode in the room, that puts a "kink" in the response curve, all the way up... because you can't just have one single mode! If you have a mode at, for example, 30 Hz, then you also MUST have one at 60 Hz, ...and another at 90... and another at 120... and so on, all the way up the spectrum, at every multiple of 30 Hz. Because modes are resonant, they are also harmonic. Every single harmonic of that fundamental mode is present in the spectrum. So just from having one single modal resonance in the room, that messes up the entire spectrum: the full frequency response curve is no longer flat, all the way up to 20,000 Hz, just because of one mode. Now, if there were only some way to deal with that one single mode at 30 Hz, if you could flatten it out somehow, then you would also flatten out every single harmonic... and the full frequency response curve would be flat again. If only there were some way to deal with that fundamental mode, way down at 30 Hz. If only..... If only you had a sub! With a sub, you can indeed deal with that mode. And with several others as well. By carefully placing and tuning the sub, you can flatten out the entire frequency spectrum again, by using the sub. Then, every time that any sound came out of the sound system at any of the frequencies that the sub covers, the sub would produce that tone in the right way, and at the right location, to keep things flat around the rest of the room. But if you don't have a sub, or if you turn it off, then it can't do that, and you mess up the frequency response again....
So that's what studio designers and acousticians use subs for: not just to make the music "sound nice", but rather to deal with acoustic issues in the room that only a sub can fix.
That's how I got the response of that room so flat, and clean: by using a sub that goes down low enough to do the job.
Yes, there are still some artifacts visible in that "final" graph: certainly. So by rolling off the very low end on the sub (everything below 17 Hz), well below the musical spectrum, I improved things even more, to this:
So that's what a sub will do for you, in a well design room, properly treated, and properly tuned.
But it's a lot easier if you have a cloud that you can adjust the angle of, to tune the room as needed. In the room for the graphs that I showed above, I initially go the angle wrong, and needed to adjust it. I was getting unexpected reflections (I still don't know where they came from), but changing the angle of the cloud fixed it. And it also fixed some other issues.
Clouds can be used to do a lot more than just establish an RFZ: The can also be used to smooth out bass issues, for example. Sticking to the example of the same room, here's the "before" and "after" waterfall plots regarding the cloud:
BEFORE CLOUD:
AFTER CLOUD INSTALLED:
You can clearly see the huge improvement in the low end.
Clouds can do lots of things: CID panels can't.

That's a cloud I designed for a very small room, in two sections at two different angles.


But anyway: just use wood glue, or even better don't glue it at all: just screw the panels together around the edges (from the back).
Excellent!
The other, more modern (and more sensible method) is to "float" the speaker on resilient pads. You still have a massive, rigid enclosure around the speaker, but it does not fit tightly: it is held on place by a few strategically placed rubber pads, carefully located to absorb the movement of the speaker as it vibrates, and carefully calculated in terms of size, thickness, deflection, and resilience, so that the speaker does indeed "float". The secret to getting this right is the calculation of the pads. It's not that hard, but it does take time and effort, and care. Basically, the speaker and the enclosure box form an MSM resonant system, so you just need to calculate the resonant frequency for that, and make sure that it is at least one octave lower than the lowest frequency that the speaker will b producing. It's that simple. If you know the resilient characteristics of the pads, the weight of the speaker, and the frequency, then it's not hard to do the math and figure out how big to make them, and where to put them. The complexity comes in when you realize that you have to do this on ALL sides of the speaker (not just under it), and that speakers are not well balanced: they are heavier at teh front, or back, or to one side... so you have to adjust the sizes of the pads to compensate for that. Then also, the pads on top of the speaker are putting pressure on it, pressing it down, so the pads under it are loaded not just with the weight of the speaker but also with the pressure from the top pads.... Yeah, it gets to be complicated. That's why I wrote a program to do all the calculations for me, which makes it much faster, and simpler....
With this second method, there is now space around the sides, top and bottom of the speaker cabinet, inside the enclosure box, so it can still have air flowing around it, as the designer intended. It is also held gently, not tightly, on the resilient mounts, so the cabinet is not damaged from grinding it against the enclosure box, and the original cabinet is still there, not in direct contact with the enclosure box, so it behaves as the original speaker designer intended. So this method is far, far better than the old method... but it involves math that some folks are not prepared to do (in case they get it wrong, I suppose...), so the only option they have is to use the old, outdated methods. That's a pity, because it really isn't that hard to float it, and the results are so much better! For example, taking the room associated with all the graphs above again: I floated those speakers like this, and you can see the results. And the Eve SC-407 speakers in the thread I linked you to above, Studio Three Productions, are also floated in the same way: you can see the results their too. I could show you many others where I have gotten similar results, so it's pretty clear that it works very, very well when done right. I have heard some people (who don't seem to understand the physics of floating systems) claim that this is not a good way to soffit-mount speakers, and it does not work, and it produces artifacts, and they don't like it... but the truth is that they are wrong: It does work, really really well. Much better than the old "super-massive cabinet crusher" method.
I can't say any more about how I do it, as it's taken me years to develop my method. I probably said too much here already. But I do offer a "soffit design service" if you are interested, where I design just the soffits for any give room and speaker. I have a standard design for doing that, and it's fairly easy to adapt to different rooms shapes and sizes, and different speakers. It just takes a few hours to do, for most speakers and rooms. Of course, all the designs I do like this look similar from the outside, since its the same basic design, but inside they are all different, adapted specifically for each client. If you don't feel up to the task of doing all that design work yourself for your soffits, then that service is available. PM me. You give me the dimensions of your room, and the make and model of speaker, and I send you back the complete dimensioned 3D plans, tailored specifically for your room, and your speakers.

In fact, I originally came up with the concept for Studio Three Productions (see link above), as they owner thought he might want to upgrade his speakers one day. He originally had some old Genelec's in there, and that's what I design the soffit mounts (and the entire room) for. Then about a year after the studio was completed, one of his Genelec's developed a problem, so he decided to replace them, with the Eve SC-407's. It was simple to build new internals for the new speakers, then slide out the old modules, slide in the new ones, and within a few hours he was up and running with the new speakers. We also had to re-tune the room, of course, since the Eve SC-407's are rather different form the Genelec's, sonically, and he also wanted to add a second sub at the same time. But the actual swap of the speakers was down in a few hours, with very little down-time for the studio. It is not possible to do that with the old "cabinet crusher" method of soffit mounting, since everything is tightly bolted and nailed together...
- Stuart -
So....
Basically, the idea is to eliminate reflections from the rear speakers getting back to your ears at the mix position. You can do that by re-angling the hard, reflective surfaces at the front of the room and also slightly adjsuting the rear speaker angles, until you get the situation where there are no serious reflections heading your way. You can also do it by replacing some reflective surfaces with absorptive ones, or even with rounded diffusive ones: it is possible to create treatment that the main L and R speakers will "see" mostly as solid reflective surfaces, (to help with RFZ) but that the rear surrounds will "see" as rounded slats and mostly absorptive. It takes a lot of careful figuring to do that, but it can be done.If there’s a way to safe some of my sketchup and optimize the room for this mixed format approach, your input would be highly appreciated, sine I’ve only a vague idea of what to change...
Or you can use combinations of the above. As long as you achieve the end goal of not having reflections from the rear surrounds to the mix position, while still having good reflection control for the L and R, then that's fine.
Right. That's one of the standards, but your layout still doesn't seem to match that: As you mentioned, you speakers are not on the "circle", so yes, you will need to have delays on all of the other speakers, to match the time-of-flight to the one that is furthest away.I’ve used the PDF from “The Recording Academy's Producers & Engineers Wing - Recommendations For Surround Sound Production”. There’s a drawing on page 30.
Also, I have a beef with that diagram: it places the sub in the center of the front wall: that's not a good location for it, as I'm sure you know. It should be off-center, as I mentioned before. The center of the front wall is a modal null for several frequencies in any room, so those frequencies would be somewhat attenuated in the entire room. Subs should be off-center to the left or right. And the best solution is a pair of subs, o even a set of four subs. But that's for a separate discussion...
That's fine. Many engineers prefer to sit a bit forward of the famous "38%" spot, but a bit behind it is fine too. As long as your predictions show that you will get a good stereo image and broad, clean soundstage, then all is well!I’m sitting at approximately 40% if you do the math, but I had to start somewhere. So, as you also say, I only use it as a start to base all other Ideas on. Because only then I was able to place the speakers and check how far they have to be away from the walls and check the dimensions, etc.
I've written about this before, but I think I should do a complete article on it, and posit it here permanently: There is no need have a "perfect 60° triangle". It's nice if you can get it, but not necessary. Nothing will happen if the intercept angle happens to be 58° or 62°. In other words, the speaker toe-in angle does not need to be 30°. In fact, anything between about 25° and 40° is fine, and it is even possible to go out to 20° and 45° under certain circumstances, with careful design. There are many reasons why you might need to do that, such as an unusually wide or narrow room, or window, doors, pillars, in the room that need to be taken into account, or a need to fit in an unusually large or small console, or other furniture. There is no acosutic reason to only ever use 30° toe-in. In fact, if you look into psycho-acoustics, human hearing is most sensitive about 40° off the median plane, so purely form that point of view, it would make sense to spread the speakers wider than the "perfect triangle" allows.At the moment, they are in a perfect 60° triangle. I’ve used this angel, because with it I was able to use speaker soffits (in my case: the whole front wall) were the speaker is not in the middle of the soffit, but in a 38-62% ratio to the next plates that have a different angle.
I could go into a lot more detail on that, but that's the basics: 30° toe-in° (60° triangle) is not written in stone, and you can vary the angle a bit, if needed.
That's correct, yes. The "rule of thumb" that I use is to offset the speaker 3/5 across the baffle: so your layout is very close to that. It's not so much frequency response that suffers, but rather intensity response too. There can be "lobing" of certain frequencies if you have the speaker perfectly centered in the soffit. So yes, you are doing the right thing.the speaker is not in the middle of the soffit, but in a 38-62% ratio to the next plates that have a different angle. This will help to keep the frequency response flat I’ve read.
There are ways of dealing with that. It is possible to damp the reflex port, acoustically, so it is not a problem any more.because the Eve Audio SC 208 have a bass reflex port that faces backwards, which could change its intended tuning frequency if the speaker is too close to a wall.
Take a look at this thread: viewtopic.php?f=8&t=14 Those are Eve SC-407 speakers, soffit mounted, vertically! Against the rules. When I designed that room many years ago, I found that I would need to set them up like that for many reasons, so I contacted Eve headquarters, and discussed this with their chief engineer. A very nice guy, and very helpful!. I told him what I wanted to do, and why: he agreed that it was the best option for that room, and we came up with a plan. Those SC-407's also have bass reflex ports on the rear, and there was very little space inside the soffit. So I damped the reflex ports, basically killing them, with the blessing of the chief engineer himself at Eve Audio. He even gave m some tips on the best way to do that with the SC-407. And I also mounted them vertically, instead of the more recommended horizontally. You can see the results on the customer's own website.
So it is possible to deal with bass reflex speakers in soffits... or close to walls. The wall will do that the reflex port was trying to do out in the open, and the wall will do a better job, so there's no problem with damping the reflex port. Some people don't understand this, and think that you can't flush-mount a rear-ported speaker, but in fact it is possible, if you do it right.
So, it would be possible for you to get your SC-208 closer to the front wall if you need to... but do also be careful about cooling airflow. Leave enough space to ensure that air can circulate around the speaker freely.
If the sub is in the middle of the front wall, it is sitting in a null for every possible first-order axial mode in both the 1.0.0 and 0.1.0 directions, and thus also every tangential mode associated with the 1.1.0 axis, as well as all possible oblique modes. At the same time, it is also sitting in the modal peak for all of the second order modes of those same axes. Thus, it can potentially excite all of those second-order modes with high efficiency, and also fail to produce much sound at the frequencies of the first-order modes. In other words, it distorts the frequency response of the entire room, across the entire spectrum. (The frequency response curve of a room is highly dependent on the modal response, as caused by the speakers). If you offset the sub to one side or the other, then you no longer have that problem: you move the speaker out of the modal points, into areas where modes are less affected: it smooths out the response somewhat.Mhh, okay. The PDF I’ve shared the Link above says it should be like that. Could you explain this a little further?
Unless you use active subs. I really like the Neumann KH-805 for this: it goes down really low, and a pair of those can produce excellent results, even in a small room.A pair of subs would be possible to build (but I will need two amplifiers with DSP, which will be expensive)
It's not about how much power the sub can produce, but rather about how you use that power. It's about placing the speakers carefully, and tuning the carefully, to deal with some of the room problems, in addition to just playing music.but I think I won’t need that much amount of bass energy in this small room...It could lead to much more problems I fear
The KH-805 goes down one entire octave more! Yes, it goes down to 16 Hz. The spec sheet says 18 Hz, but they are being conservative there: In several places where I have used that in studios, it consistently puts out plenty of energy way down at 16 Hz,... and even lower. In fact, it goes down to about 12 Hz. Here's the final spectrogram for a small control room I designed a few years ago. similar to yours, where I used a KH-805 to clean up the low end:those Eve Audio SC 208 speakers go down to 36 Hz.
That's pretty darn amazing, as you can see. Perfectly clean, smooth, even, flat, balanced bass all the way down to 12 Hz.
To put that in perspective, here's the original first spectrogram from the same room, before it was treated and tuned:
So that's the level of improvement you can get when a room is properly designed, properly treated, and properly tuned, including the placement and adjustment of a sub to deal with the low end.
That would be a mistake...I only intend to use the Sub for Video postproduction exclusively. Maybe check the “club character” of a song with the 2.1 config but that’s it.
This is not at all intuitive, and many people don't understand how a sub can fix problems in the mid range, or higher, but it does.
It's a little complex, but basically it has to do with the modal response of the room. As I mentioned before, the low frequency modal response "shapes" the frequency response curve for the entire room, and the entire spectrum. If a room could have no modes at all (in other words: no walls and no ceiling), then the frequency response would be flat. As soon as you have one single mode in the room, that puts a "kink" in the response curve, all the way up... because you can't just have one single mode! If you have a mode at, for example, 30 Hz, then you also MUST have one at 60 Hz, ...and another at 90... and another at 120... and so on, all the way up the spectrum, at every multiple of 30 Hz. Because modes are resonant, they are also harmonic. Every single harmonic of that fundamental mode is present in the spectrum. So just from having one single modal resonance in the room, that messes up the entire spectrum: the full frequency response curve is no longer flat, all the way up to 20,000 Hz, just because of one mode. Now, if there were only some way to deal with that one single mode at 30 Hz, if you could flatten it out somehow, then you would also flatten out every single harmonic... and the full frequency response curve would be flat again. If only there were some way to deal with that fundamental mode, way down at 30 Hz. If only..... If only you had a sub! With a sub, you can indeed deal with that mode. And with several others as well. By carefully placing and tuning the sub, you can flatten out the entire frequency spectrum again, by using the sub. Then, every time that any sound came out of the sound system at any of the frequencies that the sub covers, the sub would produce that tone in the right way, and at the right location, to keep things flat around the rest of the room. But if you don't have a sub, or if you turn it off, then it can't do that, and you mess up the frequency response again....
So that's what studio designers and acousticians use subs for: not just to make the music "sound nice", but rather to deal with acoustic issues in the room that only a sub can fix.
That's how I got the response of that room so flat, and clean: by using a sub that goes down low enough to do the job.
Yes, there are still some artifacts visible in that "final" graph: certainly. So by rolling off the very low end on the sub (everything below 17 Hz), well below the musical spectrum, I improved things even more, to this:
So that's what a sub will do for you, in a well design room, properly treated, and properly tuned.
Yes they do, but they do not have the precision needed to tune a room. They are great speakers, and I have used Eves in several rooms, but I just set them mostly flat with a slight bass roll-off, then I do the actual tuning in hardware.The Eves have their own DSP with some filters.
It might seem that this will work, but in reality it wont. Once again, it does not have the precision of a dedicated hardware DSP, and there's another major issue: it only works when you use your DAW! You wont have any tuning at all if you just play back something from your console, or anything else that does direct to the speakers. Even if you play music on the computer itself without running the DAW, then you don't have any correction.... This is not a good solution for a pro studio, and I don't know of any major studio that works like that.If they don’t match the problems I will use the control room functions of my DAW, which allow me to put VST plugins in the monitor way.
I'm sure it is possible to string together a bunch of stuff and get a good result, but I find it a whole lot easier to just buy something like a KH-805 and an SP-2600, and I'm done! That's all I need. The 805 goes down way lower than anything else I'm aware of in the price range, and works very well. The 2600 gives me a really good range of filters with reasonably good precision, to do the tuning I need to do on all the speakers. And I use REW for all the rest.For the Sub, I wanted to use a modular system from sure electronics (http://store.sure-electronics.com/). They sell amplifiers, DSP programmers, DSP break-out circuits and DSP boards separately. You can combine them as needed for the task. The ADAU 1701 DSP board they offer is a bit older but performs well @48 kHz and has a simple graphical programming interface, where you can combine different audio tasks like delay, iir filters, fir filters, etc.
It looks like you are trying to do a CID concept design, but you are not following the full CID principles. You should read the actual paper on that, to find out how to do it. It's old, but you can probably find it on-line. I'll see if I have it somewhere. However, I'm not aware of many studios that were ever built using CID (apart from those few at the BBC), and it is certainly not a commonly used design concept. It has several drawbacks, one of which is that it leaves the room overly live, and it also only works for a single location in the room. In the years since CID was first proposed, better concepts and designs have appeared. That's why I suggested using a hard-backed, angled cloud. Because you an do more with it than you can with a fixed ceiling panel. A hard-backed cloud can do several things at once, but a CID ceiling cannot.The flush mounting baffle, which I’ve described in my second post of this thread, is designed to guide most of the mid range wavelength (the speaker are narrowing as higher the frequency gets) above my head.
Yes, but not through a pipe! It should go out through a silencer box, then into the actual HVAC duct.With a short gap for the HVAC ventilation pipe (the air should be sucked out at this point of the room),
It is ALWAYS hard to produce a good RFZ in most small rooms!However, I’ve tried that before and it seems that it is really hard to get a good working reflection free zone that way if I only use an angled cloud instead of the two angled plates that are connected to the flush mounting baffle.
Clouds can be used to do a lot more than just establish an RFZ: The can also be used to smooth out bass issues, for example. Sticking to the example of the same room, here's the "before" and "after" waterfall plots regarding the cloud:
BEFORE CLOUD:
AFTER CLOUD INSTALLED:
You can clearly see the huge improvement in the low end.
Clouds can do lots of things: CID panels can't.
You mean like this?For my understanding, it is even more critical to have two different angels in my case,
That's a cloud I designed for a very small room, in two sections at two different angles.
It is the mid and low frequency sounds that expand spherically, and not just in the near field. You can probably figure out why I did some of the things you can see in those two clouds.because the near field sound waves radiate in a spherical sector, like you said, and therefore the approximation to a ray do not reflect the reality exact enough.
Right. It is important, and getting the angle right is also important. For a mult-channel room, you would check that by revers-ray tracing: from the rear speakers back towards the front of the room, to see what they hit, and where they would be reflected.Or is it not as critical as I think it is? Please advice in this case, because I’m kind of lost here. And because the approach for a surround configuration is different,
I think you maybe missed the point I was making: you do need the "wing" sections between the actual soffit face and the wall, and it does need to be angled, yes. But the side wall itself does not need to be angled. If you have your mix position in the best location, and the soffit and wings correctly designed, then there should be no need to have the side walls angled. Unless the room is very narrow, in which case there are other ways of dealing with that...That’s good to hear, since it will save me a lot of time and money if I don’t have to build them! But another reason why I choose this design was the fact that I did not get a good reflection free zone in the horizontal position without those walls, so I thought it will not harm to do “two-in-one” side walls. If you could take a look at the following ray tracing pictures, you can see what I meant. If I don’t want to cover the window, or change the angle so that the window is not convered, a reflection free zone does not work, if the ray tracing is trustworthy.
That's the basic idea, yes!Okay, understood. So the only way to avoid this (which should be possible if I understood you right) is to build without the outer framework and just build the front with the reflection free zone baffle (freestanding because of the decoupled floor impact protection) and treat the room for acoustically. And check how the reflection free zone baffle has to be altered to prevent problems with the rear speakers.
Absolutely! That's the way I normally do it. I assume your ceiling is able to support the weight. Just use good strong chain, and closed-loop hooks to hang it. Make sure the chain and hooks can support ten times the weight of the cloud, for safety. So if the cloud weighs (for example) 30 kg, then make sure that the chains and hooks can support 300 kg.Regarding the cloud: it is possible to hang it on the ceiling directly, because it is not touching anything.
Wood glue is fine. Gree Glue is not glue at all! Despite the name it is NOT adhesive, and CANNOT be used to stick things together. I wish they would have chosen a better name... It's a great product, and really, really good at what it does: in fact, it is without equal for that. It is a constrained layer damping compound, for use between two layers of drywall in isolation construction, and it excels for that. But it is not glue. I didn't watch the video yet, but my guess would be that the people who have "differing opinions" about it, are not using it the way it is supposed to be used, for the purpose it is designed for. It has been extremely well tested in independent acoustic testing laboratories, and the test results have been widely published: It does exactly what the manufacturer claims it does. If you try to use it for another purpose, then it probably won't work well. But when used correctly, for the design purpose, it is amazing stuff.I will look for a good paint in this case and use ordinary MDF. So, what do you recommend to use to combine those two layers for the baffle? Ordinary wood glue? Greenglue (which is hard to get and therefore also very expensive)?
But anyway: just use wood glue, or even better don't glue it at all: just screw the panels together around the edges (from the back).
The baffle is a very large surface: many times the surface area of the typical baffle on a studio speaker. It is subject to much larger forces, because of the acoustic loading imposed on it by the room, and also the loading that it imposes on the room. It must not vibrate, so it has to be massive, and rigid. And it is precisely the frequencies below 200 Hz that it must deal with. In fact, it deals with everything down to the lowest frequency present in the room, and it must have the mass and rigidity needed to handle that, without flexing or vibrating.Could you explain a bit further why it needs to be this heavy? When I’m developing Hifi Speakers e.g. I can test different baffle designs using cardboard and except of the frequencies less than 200 Hz, the measurements are nearly the same when the speaker is made out of MDF.
I think you misunderstood: You DO need a very large baffle around the speaker: as large as possible. But at the same time, you can't cover the zone too far down towards the floor, or too far up towards the ceiling, because there are other things going on up there, that need to be considered as well. Ideally, the baffle would go floor to ceiling, but in practical reality it cannot do that, because there are other conflicting needs. So the baffle has to be a bit shorter, in order that the other things can work.Allright! This is the answer of a question that I’ve asked above! So, no big baffle, just a stripe of reflective surface for the speakers to work out the refelction free zone. But how much bigger than the speaker does it have to be?
Understood. I will not have a console, I have a “reflection free desk” (expanded metal with cloth over it to let the lower frequencies through)
You need to ventilate somewhere! I used to do it like that, with a slot in the front of the baffle, copying a really old concept from somewhere else, but now I do it differently. I try to keep it concealed, in the top panel of the soffit enclosure, so it ventilates up through the hangers, and out the front and side of the soffit module.But do I really need a ventilation slot directly above the speaker (like it is shown in the concrete soffit you have posted earlier)?
Decouple the speaker itself, not the soffit! The old-school method for soffit-mounting speakers was to grip them tightly in a very, very massive, rigid box inside a very, very massive, rigid structure. But better ways have been developed over the years, and most up-to-date designers don't do it that way any more. Instead, we completely "float" the speakers inside the soffit, so that they are free to vibrate as much as they want, but cannot transmit any vibration into the soffit structure itself. Thus, the soffit framing and baffle do not get any vibration from the speaker itself, since it is fully decoupled from the structure.I don’t want to connect the floor with the walls because I will lose the intended acoustic insulation from the decoupled floor
As I hinted at above, there are two basic methods for soffit-mounting speakers. The "old" way, where the speaker is mounted tightly in a very rigid, very massive enclosure, that is then rigidly mounted to the framing and baffle of the soffit, which is also very rigid and massive. That's not a good method, and seldom done these days by designers who are up to date on acoustics and technology. Since the wooden enclosure box must fit tightly around the speaker cabinet, it can damage the cabinet as you try to force the speaker in and out, and it prevents proper ventilation of the cabinet too: it prevents air flowing over the sides, top and bottom, which is important for some speakers, as you know yourself. It also changes the characteristics of the speaker, as you also know, because it changes the density and weight of that cabinet.I understand that you will keep some of your secrets! No problem. Just to get this right: Is it critical to build a bigger cabinet with all the insulation that is sealed? Or can I just build a frame, mount the soffits and just build fake walls above and below? Like I said, I want to pack all the insulation in plastic sheets, so that the fibres can’t get into the air. I’m planning to use plastic sheets that are only 10 µm thick and therefore are very light. Is this a problem?
The other, more modern (and more sensible method) is to "float" the speaker on resilient pads. You still have a massive, rigid enclosure around the speaker, but it does not fit tightly: it is held on place by a few strategically placed rubber pads, carefully located to absorb the movement of the speaker as it vibrates, and carefully calculated in terms of size, thickness, deflection, and resilience, so that the speaker does indeed "float". The secret to getting this right is the calculation of the pads. It's not that hard, but it does take time and effort, and care. Basically, the speaker and the enclosure box form an MSM resonant system, so you just need to calculate the resonant frequency for that, and make sure that it is at least one octave lower than the lowest frequency that the speaker will b producing. It's that simple. If you know the resilient characteristics of the pads, the weight of the speaker, and the frequency, then it's not hard to do the math and figure out how big to make them, and where to put them. The complexity comes in when you realize that you have to do this on ALL sides of the speaker (not just under it), and that speakers are not well balanced: they are heavier at teh front, or back, or to one side... so you have to adjust the sizes of the pads to compensate for that. Then also, the pads on top of the speaker are putting pressure on it, pressing it down, so the pads under it are loaded not just with the weight of the speaker but also with the pressure from the top pads.... Yeah, it gets to be complicated. That's why I wrote a program to do all the calculations for me, which makes it much faster, and simpler....
With this second method, there is now space around the sides, top and bottom of the speaker cabinet, inside the enclosure box, so it can still have air flowing around it, as the designer intended. It is also held gently, not tightly, on the resilient mounts, so the cabinet is not damaged from grinding it against the enclosure box, and the original cabinet is still there, not in direct contact with the enclosure box, so it behaves as the original speaker designer intended. So this method is far, far better than the old method... but it involves math that some folks are not prepared to do (in case they get it wrong, I suppose...), so the only option they have is to use the old, outdated methods. That's a pity, because it really isn't that hard to float it, and the results are so much better! For example, taking the room associated with all the graphs above again: I floated those speakers like this, and you can see the results. And the Eve SC-407 speakers in the thread I linked you to above, Studio Three Productions, are also floated in the same way: you can see the results their too. I could show you many others where I have gotten similar results, so it's pretty clear that it works very, very well when done right. I have heard some people (who don't seem to understand the physics of floating systems) claim that this is not a good way to soffit-mount speakers, and it does not work, and it produces artifacts, and they don't like it... but the truth is that they are wrong: It does work, really really well. Much better than the old "super-massive cabinet crusher" method.
I can't say any more about how I do it, as it's taken me years to develop my method. I probably said too much here already. But I do offer a "soffit design service" if you are interested, where I design just the soffits for any give room and speaker. I have a standard design for doing that, and it's fairly easy to adapt to different rooms shapes and sizes, and different speakers. It just takes a few hours to do, for most speakers and rooms. Of course, all the designs I do like this look similar from the outside, since its the same basic design, but inside they are all different, adapted specifically for each client. If you don't feel up to the task of doing all that design work yourself for your soffits, then that service is available. PM me. You give me the dimensions of your room, and the make and model of speaker, and I send you back the complete dimensioned 3D plans, tailored specifically for your room, and your speakers.
Yep!Good to know, but that’s your secret, isn’t it?
Certainly! That option isn't in my standard soffit design, but I can easily add it for specific cases.Oh Boy, I hope it won’t be necessary to replace the speakers this often in my case. But I get the point. Question is, am I able to build something similar in my room?
In fact, I originally came up with the concept for Studio Three Productions (see link above), as they owner thought he might want to upgrade his speakers one day. He originally had some old Genelec's in there, and that's what I design the soffit mounts (and the entire room) for. Then about a year after the studio was completed, one of his Genelec's developed a problem, so he decided to replace them, with the Eve SC-407's. It was simple to build new internals for the new speakers, then slide out the old modules, slide in the new ones, and within a few hours he was up and running with the new speakers. We also had to re-tune the room, of course, since the Eve SC-407's are rather different form the Genelec's, sonically, and he also wanted to add a second sub at the same time. But the actual swap of the speakers was down in a few hours, with very little down-time for the studio. It is not possible to do that with the old "cabinet crusher" method of soffit mounting, since everything is tightly bolted and nailed together...
Thank you for this advice. Like I said, I will change the design accordingly and leave the slat resonators out if it.
- Stuart -
Re: Chief Diggin Studio
Soundman2020 wrote:Hey Thomas, Sorry about the long delay in getting back to you! It's been real hectic here for a while... the same day you posted, my daughter was admitted to hospital for major surgery... she's OK now, but that sort of sidelined me from things here a bit. Then Christmas, New Year... But that's all gone now, and I'm getting back to normal... and catching up on the forum!
Hey Stuart!
No worries, I understand, I'm glad that your daughter is better now! Family comes first, always! I started re-modelling anyway, and after reading your last post, I did a lot right, but some things not. I'll post the current status of the plan anyway, because it might be easier to help me with some stuff that is still not optimal.
Here is the link of the updated studio data
I've changed the following things like you recommended in the post before:
1. Beef everything up. Now, the whole framework is made out of 4 x 10 cm frames. I will use Sikaflex 221 as a caulk between the joints. (Maybe) use insulation between the frames that are located directly in front of the wall. If so, the frames will be altered so that the insulation will fit in perfectly.
2. Got rid of the slat resonators, falls door and window. Now, there is only a front and a back framework. The sides with the door and the window are not threaded at the moment (and maybe can stay this way).
3. The distance of the center speaker to the wall is increased by 5 cm. I can use the bass reflex port like this, because now I have 12 cm of space to the wall.
4. The “front baffle” (the solid front) is replaced by an easier design. Now, there are just smaller plates (baffles) around the speakers and they will be made from 2 x 1,9 cm MDF and 0,3 cm plywood multiplex, glued together with wood glue or screws from the back. I plan to CNC cut them for the best result.
5. The Lr and Rr speaker will now be integrated in the back wall and will also have soffits and baffles, too.
6. The rest of the walls in front of the framework will be replaced by false walls.
7. The cloud is altered: now, it is bigger and has two angles, kind of replacing the solid front when it comes to the RFZ (at least I hope this works like this)
Also, after reading your post, these are the things that are still wrong and have to be altered or added/removed. The questions I have regarding those things and topics will be posted directly under your statement from the post before. Here’s a summing for better overview:
1. Angles of the speakers and soffits are still not optimal. After checking with your ray tracing tool, there will be a first reflection from Lr hitting the R baffle and vice versa. This has to be altered. And because of that, everything else that is affected by this has to be altered, too.
2. The position of the subwoofer has to be changed to an off-center position. Maybe, more than one subwoofer should be used for acoustic reasons. Or even upgrade it to a double bass array (my new idea).
3. (Maybe) changing the speaker mounting technique to the more modern sorbothan approach. There are certain advantages to this mounting technique.
4. Change the soffit ratio to 3/5 in the horizontal direction and make them as large as possible without introducing reflections to the RFZ. This is directly connected to the change of the speaker angels.
5. (Maybe) close the bass reflex port of the speakers because of the wall directly behind the center speaker, if 12 cm distance are not enough space.
6. Make concealed ventilation for the speaker amps.
7. Changing the DSP correction (baffle, room, timing, etc.) to a dedicated DSP system instead of using a VST inside the DAW control room.
8. Correct the cloud design; it is not optimal in its current state. It should be usable for room treatment. (Maybe) the cloud has to be altered for the rear speakers. Check, if the ceiling can handle the load of the cloud.
9. Use a silencer box for the HAVC.
Soundman2020 wrote:Basically, the idea is to eliminate reflections from the rear speakers getting back to your ears at the mix position. You can do that by re-angling the hard, reflective surfaces at the front of the room and also slightly adjusting the rear speaker angles, until you get the situations where there are no serious reflections heading your way. You can also do it by replacing some reflective surfaces with absorptive ones, or even with rounded diffusive ones: it is possible to create treatment that the main L and R speakers will "see" mostly as solid reflective surfaces, (to help with RFZ) but that the rear surrounds will "see" as rounded slats and mostly absorptive. It takes a lot of careful figuring to do that, but it can be done. Or you can use combinations of the above. As long as you achieve the end goal of not having reflections from the rear surrounds to the mix position, while still having good reflection control for the L and R, then that's fine.
I’ve tried that, and it works for R, L and C, but Lr and Rr are still radiating directly to the opposite baffle: Lr is hitting the R baffle and vice versa. I’m kind of limited regarding Lr and Rr: the more I alter the angels (between 130 and 150° seen from the center axis), the more I will get close to the window with the Rr speaker. This will reduce the amount of space that the baffle could have. And because of that, I lose space for treatment in the back. Also, for best ray trace result, there has to be free space between the L and C baffle and the C and R baffle. So, maybe I should use your rounded slats solution. Is there some literature out there about it? I have an Idea how this should work but don’t know the math behind it...
Soundman2020 wrote:That's fine. Many engineers prefer to sit a bit forward of the famous "38%" spot, but a bit behind it is fine too. As long as your predictions show that you will get a good stereo image and broad, clean soundstage, then all is well!I’m sitting at approximately 40% if you do the math, but I had to start somewhere. So, as you also say, I only use it as a start to base all other Ideas on. Because only then I was able to place the speakers and check how far they have to be away from the walls and check the dimensions, etc.
That’s a relive!
Soundman2020 wrote:There is no need to have a "perfect 60° triangle". It's nice if you can get it, but not necessary. Nothing will happen if the intercept angle happens to be 58° or 62°. In other words, the speaker toe-in angle does not need to be 30°. In fact, anything between about 25° and 40° is fine, and it is even possible to go out to 20° and 45° under certain circumstances, with careful design. There are many reasons why you might need to do that, such as an unusually wide or narrow room, or window, doors, pillars, in the room that need to be taken into account, or a need to fit in an unusually large or small console, or other furniture. There is no acoustic reason to only ever use 30° toe-in. In fact, if you look into psycho-acoustics, human hearing is most sensitive about 40° off the median plane, so purely form that point of view, it would make sense to spread the speakers wider than the "perfect triangle" allows. I could go into a lot more detail on that, but that's the basics: 30° toe-in° (60° triangle) is not written in stone, and you can vary the angle a bit, if needed.
Thank you for this explanation! As far as I know, it matches the panning law of the DAW regarding the loss of SPL vs. localisation. This applies to stereo and surround I’ve read somewhere. There are some DAWs where you can alter this law exactly for the reason you’ve described above. But in my case, it works out fine with 30° as far as I can tell. I don’t lose too much space but can build bigger bass hangers, which should be beneficial.
Soundman2020 wrote:That's correct, yes. The "rule of thumb" that I use is to offset the speaker 3/5 across the baffle: so your layout is very close to that. It's not so much frequency response that suffers, but rather intensity response too. There can be "lobing" of certain frequencies if you have the speaker perfectly centered in the soffit. So yes, you are doing the right thing.the speaker is not in the middle of the soffit, but in a 38-62% ratio to the next plates that have a different angle. This will help to keep the frequency response flat I’ve read.
Nice! In the revision of the design I’ve posted pictures from in this post, I’ve done it wrong again, because of the RFZ to work out with the altered position of the speakers. I guess I’ll have to compromise here and will focus on the RFZ and break this “rule of thumb” if it is necessary. Or change it to rounded slats like you suggested before, right?
Soundman2020 wrote:There are ways of dealing with that. It is possible to damp the reflex port, acoustically, so it is not a problem anymore. [...] So, it would be possible for you to get your SC-208 closer to the front wall if you need to... but do also be careful about cooling airflow. Leave enough space to ensure that air can circulate around the speaker freely.because the Eve Audio SC 208 have a bass reflex port that faces backwards, which could change its intended tuning frequency if the speaker is too close to a wall.
Okay thanks for that insight. This could have been a solution, but now in the current state of my drawing, the bass reflex port has 12 cm space, which is enough to work without flaws. I’ve tested this and there was no difference in the measurements between freestanding and 12 cm distance to a wall. But I plan to use insulation between the slats that are located directly in front of the wall. Is this a good Idea? Or will the room become to dead? My aim is to have a reverb time of 0,3 - 0,4s, if possible. If so, the frames will be altered so that the insulation will fit in perfectly.
Soundman2020 wrote:If the sub is in the middle of the front wall, it is sitting in a null for every possible first-order axial mode in both the 1.0.0 and 0.1.0 directions, and thus also every tangential mode associated with the 1.1.0 axis, as well as all possible oblique modes. At the same time, it is also sitting in the modal peak for all of the second order modes of those same axes. Thus, it can potentially excite all of those second-order modes with high efficiency, and also fail to produce much sound at the frequencies of the first-order modes. In other words, it distorts the frequency response of the entire room, across the entire spectrum. (The frequency response curve of a room is highly dependent on the modal response, as caused by the speakers). If you offset the sub to one side or the other, then you no longer have that problem: you move the speaker out of the modal points, into areas where modes are less affected: it smoothes out the response somewhat.Mhh, okay. The PDF I’ve shared the Link above says it should be like that. Could you explain this a little further?
Okay totally logical, this makes sense. I should know how this room mode distribution works but did not think about it in this context. Thank you! I’ll alter my design!
Soundman2020 wrote: It's not about how much power the sub can produce, but rather about how you use that power. It's about placing the speakers carefully, and tuning the carefully, to deal with some of the room problems, in addition to just playing music. [...] Perfectly clean, smooth, even, flat, balanced bass all the way down to 12 Hz. [...] That's the level of improvement you can get when a room is properly designed, properly treated, and properly tuned, including the placement and adjustment of a sub to deal with the low end.
Okay, very impressive indeed! I feel like I’m in good hands around here!
Soundman2020 wrote:That would be a mistake...I only intend to use the Sub for Video postproduction exclusively. Maybe check the “club character” of a song with the 2.1 config but that’s it.That's not what subs are meant for. Contrary to popular belief, the purpose of a sub is not to "make some stuff sound good if it has a lot of bass". The real purpose of a sub in a studio, is acoustic, not music. It is there to even out the low end, smoothing away issues such as SBIR and modal problems that still remain after the room has been treated. By smoothing out the low-end response, it helps flatten the frequency response curve. [...] Now, if there were only some way to deal with that one single mode at 30 Hz, if you could flatten it out somehow, then you would also flatten out every single harmonic... and the full frequency response curve would be flat again. If only there were some way to deal with that fundamental mode, way down at 30 Hz. If only..... If only you had a sub! With a sub, you can indeed deal with that mode. And with several others as well. By carefully placing and tuning the sub, you can flatten out the entire frequency spectrum again, by using the sub. Then, every time that any sound came out of the sound system at any of the frequencies that the sub covers, the sub would produce that tone in the right way, and at the right location, to keep things flat around the rest of the room. But if you don't have a sub, or if you turn it off, then it can't do that, and you mess up the frequency response again.... So that's what studio designers and acousticians use subs for: not just to make the music "sound nice", but rather to deal with acoustic issues in the room that only a sub can fix. That's how I got the response of that room so flat, and clean: by using a sub that goes down low enough to do the job.
Once again, this is a real impressive result! I definitely will now use a sub or more subs. In fact, after thinking about everything what you said before, I was thinking of using the double bass array method, if this is possible with the treatment. I would place two or four small subwoofer on the front and back wall, inverse the back polarity and delay the back array with a DSP. Would this work at the back of the hangers? If not, I would only place two subs in each bottom corner directly behind the falls walls and make space to move them arround and try the same approach with some different timing and filtering.
I have also changed my mind regarding the amplifiers of the subs. I will use one or two Hypex NC252MP OEM two channel 150W class D amp and build it in a 19” rack together with the DSP solution I have in mind (more about that later in this post).
Soundman2020 wrote:It might seem that this will work, but in reality it won’t. Once again, it does not have the precision of a dedicated hardware DSP, and there's another major issue: it only works when you use your DAW! You won’t have any tuning at all if you just play back something from your console, or anything else that does direct to the speakers. Even if you play music on the computer itself without running the DAW, then you don't have any correction.... This is not a good solution for a pro studio, and I don't know of any major studio that works like that.If they don’t match the problems I will use the control room functions of my DAW, which allow me to put VST plugins in the monitor way.
I don’t know about the precision, but having one AD/DA process less in the chain could not harm I thought. Also, there are software solutions to use systemwide VSTs (in Windows) but I did not see them in action to be honest. So, I will go the way with an external 19” rack system like you suggested: I’ll use the Behringer DCX2496. The cool thing is, you can mod them to have a better analog input and output stage. Those have 3 in and 6 out. So, I will have 3 I/O per unit. I will use two DCX2496 for the SC 208 and one additional DCX2496 for the subs. I could even think about buying one extra Hypex amp to have 4 amplifiers and tune each subwoofer individually with one dedicated DSP channel (or two at once), if the idea with the double bass array works. Here, I could need some guidance...
Soundman2020 wrote: That's why I suggested using a hard-backed, angled cloud. Because you an do more with it than you can with a fixed ceiling panel. A hard-backed cloud can do several things at once, but a CID ceiling cannot.
Thanks. I’ve already altered that in the current state of the drawing, can you comment on that? I just copied the the angles I’ve created with the fix wall, but now, I can alter the heights and tune the room. Also, the cloud is bigger now and covered nearly the whole ceiling. I left some space for the HAVC, of course.
Soundman2020 wrote:Yes, but not through a pipe! It should go out through a silencer box, then into the actual HVAC duct.With a short gap for the HVAC ventilation pipe (the air should be sucked out at this point of the room),
Okay, the drawing of the HVAC was more symbolic than technically correct. I just got told from the guy who builds the other HVAC of the building, that the HVAC itself will be equipped with a silencer...do I have to build a silencer inside the building? Or is it also possible on the roof? The space between the cloud and the ceiling is only 12 cm at the moment...Here, I also could use some help...
Soundman2020 wrote:It is ALWAYS hard to produce a good RFZ in most small rooms!However, I’ve tried that before and it seems that it is really hard to get a good working reflection free zone that way if I only use an angled cloud instead of the two angled plates that are connected to the flush mounting baffle.But it's a lot easier if you have a cloud that you can adjust the angle of, to tune the room as needed. In the room for the graphs that I showed above, I initially go the angle wrong, and needed to adjust it. I was getting unexpected reflections (I still don't know where they came from), but changing the angle of the cloud fixed it. And it also fixed some other issues. Clouds can be used to do a lot more than just establish an RFZ: The can also be used to smooth out bass issues, for example. Sticking to the example of the same room, here's the "before" and "after" waterfall plots regarding the cloud: You can clearly see the huge improvement in the low end. Clouds can do lots of things: CID panels can't.
Understood and changed! Thank you. I will check with Lr and Rr ray tracing again and maybe I have to alter some angels again...at the same time I will alter the speaker angels and baffle dimensions for the RFZ...will see if this works out...otherwise use your rounded slats solution.
Soundman2020 wrote:It is the mid and low frequency sounds that expand spherically, and not just in the near field. You can probably figure out why I did some of the things you can see in those two clouds.because the near field sound waves radiate in a spherical sector, like you said, and therefore the approximation to a ray do not reflect the reality exact enough.Right. It is important, and getting the angle right is also important. For a multi-channel room, you would check that by reveres-ray tracing: from the rear speakers back towards the front of the room, to see what they hit, and where they would be reflected.Or is it not as critical as I think it is? Please advice in this case, because I’m kind of lost here. And because the approach for a surround configuration is different,
I’ve done that and still have reflections like I said before. I have to alter the angles for Lr and Rr and maybe even for L and R to get it to work...this will once again take a while because every other piece is based on the angles...or try your idea with the rounded slats.
Soundman2020 wrote:I think you maybe missed the point I was making: you do need the "wing" sections between the actual soffit face and the wall, and it does need to be angled, yes. But the side wall itself does not need to be angled. If you have your mix position in the best location, and the soffit and wings correctly designed, then there should be no need to have the side walls angled. Unless the room is very narrow, in which case there are other ways of dealing with that...That’s good to hear, since it will save me a lot of time and money if I don’t have to build them! But another reason why I choose this design was the fact that I did not get a good reflection free zone in the horizontal position without those walls, so I thought it will not harm to do “two-in-one” side walls. If you could take a look at the following ray tracing pictures, you can see what I meant. If I don’t want to cover the window, or change the angle so that the window is not covered, a reflection free zone does not work, if the ray tracing is trustworthy.![]()
Good to know. I’ll leave it like this for now regarding the walls where the window and the door is located.
Soundman2020 wrote:Absolutely! That's the way I normally do it. I assume your ceiling is able to support the weight. Just use good strong chain, and closed-loop hooks to hang it. Make sure the chain and hooks can support ten times the weight of the cloud, for safety. So if the cloud weighs (for example) 30 kg, then make sure that the chains and hooks can support 300 kg.Regarding the cloud: it is possible to hang it on the ceiling directly, because it is not touching anything.
The ceiling is made out of 20 cm reinforced concrete plates (STB C25/30 XC1 / BST 500 M/S). In the other room which has the same ceiling, there is already a massive cloud. So, this should work out fine. I’ll ask the architect of the building anyway, not taking chances...
Soundman2020 wrote:Wood glue is fine. [...] But anyway: just use wood glue, or even better don't glue it at all: just screw the panels together around the edges (from the back).I will look for a good paint in this case and use ordinary MDF. So, what do you recommend to use to combine those two layers for the baffle? Ordinary wood glue? Greenglue (which is hard to get and therefore also very expensive)?
Noted and will do!
Soundman2020 wrote:The baffle is a very large surface: many times the surface area of the typical baffle on a studio speaker. It is subject to much larger forces, because of the acoustic loading imposed on it by the room, and also the loading that it imposes on the room. It must not vibrate, so it has to be massive, and rigid. And it is precisely the frequencies below 200 Hz that it must deal with. In fact, it deals with everything down to the lowest frequency present in the room, and it must have the mass and rigidity needed to handle that, without flexing or vibrating.Could you explain a bit further why it needs to be this heavy? When I’m developing Hifi Speakers e.g. I can test different baffle designs using cardboard and except of the frequencies less than 200 Hz, the measurements are nearly the same when the speaker is made out of MDF.
Noted and already changed!
Soundman2020 wrote:I think you misunderstood: You DO need a very large baffle around the speaker: as large as possible. But at the same time, you can't cover the zone too far down towards the floor, or too far up towards the ceiling, because there are other things going on up there, that need to be considered as well. Ideally, the baffle would go floor to ceiling, but in practical reality it cannot do that, because there are other conflicting needs. So the baffle has to be a bit shorter, in order that the other things can work.Allright! This is the answer of a question that I’ve asked above! So, no big baffle, just a stripe of reflective surface for the speakers to work out the reflection free zone. But how much bigger than the speaker does it have to be?
Then I might have made the baffles to small in the current state of my drawing...I’ll check again with the raytracing tool from you...and check your Idea with the rounded slats.
Soundman2020 wrote:You need to ventilate somewhere! I used to do it like that, with a slot in the front of the baffle, copying a really old concept from somewhere else, but now I do it differently. I try to keep it concealed, in the top panel of the soffit enclosure, so it ventilates up through the hangers, and out the front and side of the soffit module.But do I really need a ventilation slot directly above the speaker (like it is shown in the concrete soffit you have posted earlier)?
Okay, I may have an Idea how to do it. Since there will be space above the baffle for the hangers to work, I’ll guide the heat to the edge of it behind the falls wall. Could this work?
Soundman2020 wrote:Decouple the speaker itself, not the soffit! The old-school method for soffit-mounting speakers was to grip them tightly in a very, very massive, rigid box inside a very, very massive, rigid structure. But better ways have been developed over the years, and most up-to-date designers don't do it that way anymore. Instead, we completely "float" the speakers inside the soffit, so that they are free to vibrate as much as they want, but cannot transmit any vibration into the soffit structure itself. Thus, the soffit framing and baffle do not get any vibration from the speaker itself, since it is fully decoupled from the structure.I don’t want to connect the floor with the walls because I will lose the intended acoustic insulation from the decoupled floor
I have indeed read a lot about this sorbothan approach and have done some calculations and designs. The thing is, that sorbothan is hart to get here in Germany, and therefore very expensive, if you need specific ones. The method I’m planning to build right now is as following. Build a cabinet (without front and back) around the speaker to lock them tightly. Build a second one that has the inner dimensions of the speaker plus the cabinet. Slide the inner cabinet into the outer cabinet. There, it is not critical if both cabinets will get some scratches.
Soundman2020 wrote:[...] Since the wooden enclosure box must fit tightly around the speaker cabinet, it can damage the cabinet as you try to force the speaker in and out, and it prevents proper ventilation of the cabinet too: it prevents air flowing over the sides, top and bottom, which is important for some speakers, as you know yourself. It also changes the characteristics of the speaker, as you also know, because it changes the density and weight of that cabinet.
Like I said, If I use the approach like it is described above, the speaker won’t get damaged (at least I hope so). Regarding the characteristics of the speaker, it is actually an advantage to have a load on the cabinet, because the resonances from the cabinet enclosure will be reduced or even eliminated when the load big enough. The disadvantage is, that if the developer of the speaker uses a DSP to correct those resonances, the converse effect will be occur in the frequency response if the resonances are gone. And, the cabinet will transmit the vibration to the framing, of course.
There are certain brands of speaker that are using concrete blocks as cabinets, because they do not resonate (or the resonance frequency is much smaller than the lowest frequency the chassis can produce). Regarding the airflow, this is indeed critical if the box would be closed. But if you use a vented system (like I intend to do), there is enough airflow inside the cabinet to cool the bass chassis. In my dayjob, I recently made a chassis test with a closed and vented subwoofer enclosure, and the vented one just got up a few degrees while the close on was indeed very hot.
Soundman2020 wrote: The other, more modern (and more sensible method) is to "float" the speaker on resilient pads. You still have a massive, rigid enclosure around the speaker, but it does not fit tightly: it is held on place by a few strategically placed rubber pads, carefully located to absorb the movement of the speaker as it vibrates, and carefully calculated in terms of size, thickness, deflection, and resilience, so that the speaker does indeed "float". The secret to getting this right is the calculation of the pads. [...] The complexity comes in when you realize that you have to do this on ALL sides of the speaker (not just under it), and that speakers are not well balanced: they are heavier at the front, or back, or to one side... so you have to adjust the sizes of the pads to compensate for that. Then also, the pads on top of the speaker are putting pressure on it, pressing it down, so the pads under it are loaded not just with the weight of the speaker but also with the pressure from the top pads.... Yeah, it gets to be complicated. That's why I wrote a program to do all the calculations for me, which makes it much faster, and simpler....![]()
I’ve also done this with an excel sheet...I understand how this works in theory and how the speakers have to be fixated to get a load distribution that “triggers” the intended behaviour of the sorbothan pads. But like I said before, this will be quiet cost intensive for me, because of the amount of speakers I want to use and that I have to buy the sorbothan pads directly overseas. I made a design anyway, maybe you can take a look.
Soundman2020 wrote: [...] I have heard some people (who don't seem to understand the physics of floating systems) claim that this is not a good way to soffit-mount speakers, and it does not work, and it produces artefacts, and they don't like it... but the truth is that they are wrong: It does work, really really well. Much better than the old "super-massive cabinet crusher" method.
I’ve also read this in some other posts in the John Sayers forum and yeah, it seems like some people just don’t got the math right and build themselves a resonator and not an absorber. Then of course, the results are bad. I’ve also read that those pads have a relatively short “livespan” regarding the physical proprieties. Can you comment on that?
Soundman2020 wrote: [...] But I do offer a "soffit design service" if you are interested, where I design just the soffits for any give room and speaker. [...] If you don't feel up to the task of doing all that design work yourself for your soffits, then that service is available. PM me. You give me the dimensions of your room, and the make and model of speaker, and I send you back the complete dimensioned 3D plans, tailored specifically for your room, and your speakers.
I will give it a thought, thank you for your proposal in this case. But like I said, I’ve already done the calculations, but I guess that in this case experience beats knowledge from books and papers!
I once again want to thank you for your guidance and time you put in answering my (monstrous) posts. I definitely don’t take it for granted. I’ll alter the things I’ve summarised in the beginning of this post and post an update here when I’m done. It will take me some weeks I guess...
Thomas
Re: Chief Diggin Studio
Hello again,
After a week of frustrating raytracing and moving reflective and absorptive walls around I have come to the conclusion, that in my room, “flawless” surround is not possible when I want the advantages of flush mounted speakers that need a large baffle to work with. I have to make some sacrifices when it comes to Lr and Rr and the first and second reflections they are causing. I can’t move Rr more around than it is shown in my last drawing of the back framework, because the window is in the way. And without doing so, there will always be a first or second reflection from the baffle or the window/door. I had this idea of dealing with the reflections from the window/door by putting an absorbing curtain (https://www.mbakustik.de/produkt/akustikvorhaenge/) in front of each. It is easy to attach a drawstring to both sides of the framework. I think it could also look quite pleasant and I can put it away when I want some daylight.
Here is the link to the latest sketchup files
I will once again focus on L and R, like I wanted to do in the first place. I’ve also researched how this baffle made out of rounded slats should work, but no luck, I did not found any information about how this should work. I guess that’s once again one of your secrets, Stuart
! The front baffle will be bigger again, and the Lr and Rr won’t even have a baffle, just false walls around them, so the reflective surface is only the speaker itself. The baffle around the L, C and R speakers are enlarged again to the whole front, but there is space underneath and above for the Hangers to work properly and for the speaker ventilation. Underneath I have a 32cm slot, and above a 42cm slot. Also, with the new framework introduced in my last post, there is a false wall for the bass hanger. I hope this will be okay and the bass hangers will work. Here, I would like to have some feedback.
I gave the subwoofer idea a little more attention and my new idea is as follows. I want to try to use 4 subwoofers in each bottom corner of the room.
The chassis will be facing upwards. I’ve managed to design a relatively small bass reflex subwoofer with the (simulated) -3 dB point at 28 Hz.
Those 4 subwoofers will have a dedicated DSP channel and amplifier, so I can filter and delay them individually. The 2 subwoofers in the back will be delayed and 180° phase-flipped. The intention is to “suck out” the energy of the lowest room mode wave when triggered after it travelled through the room. The room mode calculator suggested 38,8 Hz based on the room dimension. In reality, I’ve measured 39,4 Hz. This means that the subwoofer is up to the task. I also placed the chassis of-center in the cabinet, so that there are more possibilities to move them around if necessary underneath the hangers. I hope that it won’t make any problems with the hangers above. I’ve shorten them so there is space for the chassis to move. Here, I could also use some feedback. Maybe, it is enough to have only two subwoofers that are placed in diagonal corners. I have to try this out I guess.
I hope that I will get a good result with this plan; I really want to start building at the end of January. I can’t afford to reject any more projects and I really need the old space of my studio as a room for my kid. So, sadly, with the risk of making some mistakes on the road, I will end the design phase at this point and move on to build the studio. It would be great to have some final feedback to my ideas. Of course, it will take a while to build this thing, so, there is a little bit more time to correct me
. I'll continue this thread in the intended forum.
If there are any design updates in the process, I will post them here with a short explanation.
Thank you all for reading this far!
Thomas
After a week of frustrating raytracing and moving reflective and absorptive walls around I have come to the conclusion, that in my room, “flawless” surround is not possible when I want the advantages of flush mounted speakers that need a large baffle to work with. I have to make some sacrifices when it comes to Lr and Rr and the first and second reflections they are causing. I can’t move Rr more around than it is shown in my last drawing of the back framework, because the window is in the way. And without doing so, there will always be a first or second reflection from the baffle or the window/door. I had this idea of dealing with the reflections from the window/door by putting an absorbing curtain (https://www.mbakustik.de/produkt/akustikvorhaenge/) in front of each. It is easy to attach a drawstring to both sides of the framework. I think it could also look quite pleasant and I can put it away when I want some daylight.
Here is the link to the latest sketchup files
I will once again focus on L and R, like I wanted to do in the first place. I’ve also researched how this baffle made out of rounded slats should work, but no luck, I did not found any information about how this should work. I guess that’s once again one of your secrets, Stuart
I gave the subwoofer idea a little more attention and my new idea is as follows. I want to try to use 4 subwoofers in each bottom corner of the room.
The chassis will be facing upwards. I’ve managed to design a relatively small bass reflex subwoofer with the (simulated) -3 dB point at 28 Hz.
Those 4 subwoofers will have a dedicated DSP channel and amplifier, so I can filter and delay them individually. The 2 subwoofers in the back will be delayed and 180° phase-flipped. The intention is to “suck out” the energy of the lowest room mode wave when triggered after it travelled through the room. The room mode calculator suggested 38,8 Hz based on the room dimension. In reality, I’ve measured 39,4 Hz. This means that the subwoofer is up to the task. I also placed the chassis of-center in the cabinet, so that there are more possibilities to move them around if necessary underneath the hangers. I hope that it won’t make any problems with the hangers above. I’ve shorten them so there is space for the chassis to move. Here, I could also use some feedback. Maybe, it is enough to have only two subwoofers that are placed in diagonal corners. I have to try this out I guess.
I hope that I will get a good result with this plan; I really want to start building at the end of January. I can’t afford to reject any more projects and I really need the old space of my studio as a room for my kid. So, sadly, with the risk of making some mistakes on the road, I will end the design phase at this point and move on to build the studio. It would be great to have some final feedback to my ideas. Of course, it will take a while to build this thing, so, there is a little bit more time to correct me
If there are any design updates in the process, I will post them here with a short explanation.
Thank you all for reading this far!
Thomas
-
- Similar Topics
- Statistics
- Last post
-
-
Just Another Garage Studio Attachment(s)
by bradvuv » Sat, 2025-Aug-16, 01:40 » in RECORDING STUDIO DESIGN -
Replies: 6
Views: 91755 -
by bradvuv
View the latest post
Tue, 2025-Aug-19, 01:41
-
-
-
CYC WALL IN STUDIO? PROBLEMS?
by StudioJiimaan » Mon, 2025-Feb-17, 20:23 » in RECORDING STUDIO ACOUSTICS AND TREATMENT -
Replies: 6
Views: 42566 -
by StudioJiimaan
View the latest post
Fri, 2025-Feb-21, 19:03
-
-
-
Replies: 5
Views: 59255 -
by gullfo
View the latest post
Tue, 2025-Apr-15, 17:55
-
-
Garage to single room studio Attachment(s)
by tl_balk » Fri, 2025-Apr-25, 14:59 » in RECORDING STUDIO DESIGN -
Replies: 7
Views: 155822 -
by gullfo
View the latest post
Tue, 2025-May-06, 16:03
-
Who is online
Users browsing this forum: No registered users and 7 guests