New Design
-
1970428scj
- Active Member
- Posts: 40
- Joined: Sat, 2023-Apr-01, 16:22
- Location: san diego ca
New Design
Hi Thanks for the add here, I was apart of John Sayers forum and started a design thread before covid shut me down, I am sad to hear of his passing, RIP
I am back at my design and will start over here with hopes of getting feedback.
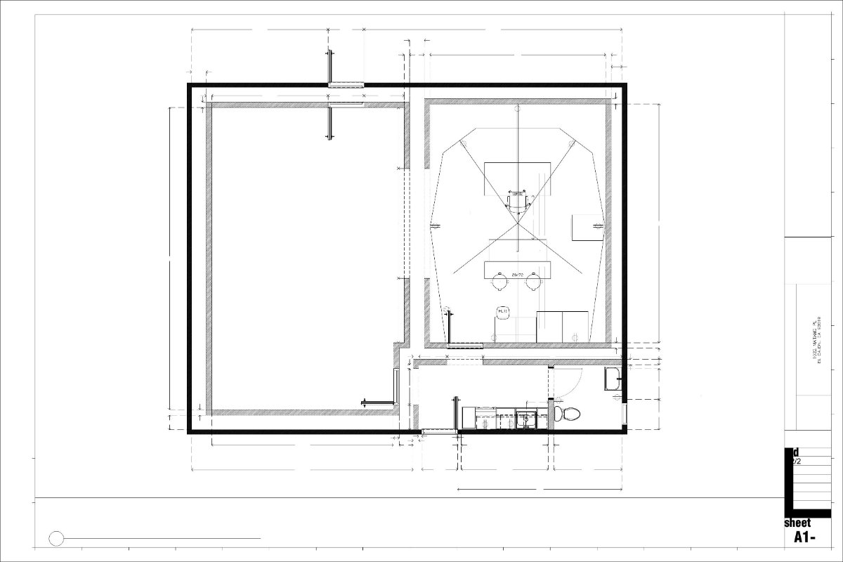
I own a stand alone building. It is slab on grade, is 40'x30' 1200sq/ft. My property is 2.3 acres and the studio is the highest building in the neighhood, The closest house is 150 feet and sits lower than my studio building. The roof is concrete tile and is 10ft high inside , but is going to 14 feet inside.
Please have a look at my floor plan design.
I am back at my design and will start over here with hopes of getting feedback.
I own a stand alone building. It is slab on grade, is 40'x30' 1200sq/ft. My property is 2.3 acres and the studio is the highest building in the neighhood, The closest house is 150 feet and sits lower than my studio building. The roof is concrete tile and is 10ft high inside , but is going to 14 feet inside.
Please have a look at my floor plan design.
- Attachments
-
- 20230329-STUDIO REMODEL-Layout.pdf
- (956.39 KiB) Downloaded 839 times
- 20230329-STUDIO REMODEL-Layout.pdf
- (956.39 KiB) Downloaded 839 times
New Design
i might change the lower (in the drawing) door to open to the wall thereby leaving the activity through that unencumbered. maybe move it slightly to the right as that will also enable a fuller swing - especially useful for load-in/out.
-
1970428scj
- Active Member
- Posts: 40
- Joined: Sat, 2023-Apr-01, 16:22
- Location: san diego ca
New Design
Thank you for your reply.
I am curious to get some feedback on my wall design. The building exterior walls are 2"x6" stud, 5/8" OSB, paper and stucco, open stud on the interior.
The live room is then double walled and the control room is 1 wall with iso clips both rooms 2x 5/8" gypsum board per leaf etc.
The thinking is a live room will go down lower and louder, Say a 26" bass drum, than playback.
The other question is room dimensions, these are a bit different than the last drawing now, Control room is 17'x 22' x 12' and live room 18'8"x 28' but there will be a corner iso booth added.
I am curious to get some feedback on my wall design. The building exterior walls are 2"x6" stud, 5/8" OSB, paper and stucco, open stud on the interior.
The live room is then double walled and the control room is 1 wall with iso clips both rooms 2x 5/8" gypsum board per leaf etc.
The thinking is a live room will go down lower and louder, Say a 26" bass drum, than playback.
The other question is room dimensions, these are a bit different than the last drawing now, Control room is 17'x 22' x 12' and live room 18'8"x 28' but there will be a corner iso booth added.
-
eightamrock
- Full Member
- Posts: 166
- Joined: Thu, 2022-Jan-20, 13:47
- Location: Somerset County, New Jersey, USA..
New Design
If the existing exterior walls are open stud, you can use this as your outer leaf. Cut the sheetrock and stuff your 2 layers in the cavities right against the sheathging along with your insulation. Then just build 1 new set of interior walls for your inner leaf. You are losing some space the way you have it. Its also very difficult to build and lift a wall with sheetrock already attached and get it squared up into place. So stuffing the existing cavities will be much much easier for you. This is how I am building my space.
-
1970428scj
- Active Member
- Posts: 40
- Joined: Sat, 2023-Apr-01, 16:22
- Location: san diego ca
New Design
Hi thanks for reply, the way I originally had the space was how you are saying but does OBS and stucco really act as the 1st leaf?
I can also put gypsum board between the studs on existing walls. I could then leave an air space to the 2nd leaf? Existing wall is 2x6 stud should leaf 2 also be 2x6 or is 2x4 fine?
If i can use the existing wall as leaf 1 then I would need to rethink the control. Also is there any benifet to iso clips on leaf 2?
I can also put gypsum board between the studs on existing walls. I could then leave an air space to the 2nd leaf? Existing wall is 2x6 stud should leaf 2 also be 2x6 or is 2x4 fine?
If i can use the existing wall as leaf 1 then I would need to rethink the control. Also is there any benifet to iso clips on leaf 2?
-
1970428scj
- Active Member
- Posts: 40
- Joined: Sat, 2023-Apr-01, 16:22
- Location: san diego ca
-
1970428scj
- Active Member
- Posts: 40
- Joined: Sat, 2023-Apr-01, 16:22
- Location: san diego ca
-
1970428scj
- Active Member
- Posts: 40
- Joined: Sat, 2023-Apr-01, 16:22
- Location: san diego ca
New Design
If I use the existing wall as leaf 1, it will be directly attached to the slab and roof, This will cause flanking ?
New Design
the exterior layer - since you're building this to be a studio - should have sufficient mass to act as the outer mass boundary. the inner walls then become the inner mass boundary - thus 2 leafs. the structure transfers then happen between the slab and if you connect the inner room with a hard connection to the exterior roof trusses (Etc) or bridge to the exterior walls (sway bracing).
to solve it: create separate slabs for each room. 1 - CR, 1 LR, and 1 for both entry and bath. then use decoupled sway bracing to support the inner walls and isolation hangers for the ceilings (or dedicated joists on the inner walls). since the pads are disconnected and earth-damped, there will be mainly the acoustic transfers between boundaries, and whatever bridging you create with the wiring, conduits, ducts, etc.
to solve it: create separate slabs for each room. 1 - CR, 1 LR, and 1 for both entry and bath. then use decoupled sway bracing to support the inner walls and isolation hangers for the ceilings (or dedicated joists on the inner walls). since the pads are disconnected and earth-damped, there will be mainly the acoustic transfers between boundaries, and whatever bridging you create with the wiring, conduits, ducts, etc.
-
1970428scj
- Active Member
- Posts: 40
- Joined: Sat, 2023-Apr-01, 16:22
- Location: san diego ca
New Design
There are issue with this,
There is sewer lines running where the slab would need to be cut, there would also need to be a footer deep where the rooms divide.
Thats also a ton of work for an existing building with walls already up and a concrete tile roof that weighs a bunch, seems like cutting the slab in 3 pieces would not be safe. This leads me back to my 2 leaf wall system,
does floor underlay of neoprene, plywood , then flooring not isolate the floors between CR and LR?
I need to look at where the sewer line is exactly but it runs diagonal, there maybe room to cut the slab of the CR
There is sewer lines running where the slab would need to be cut, there would also need to be a footer deep where the rooms divide.
Thats also a ton of work for an existing building with walls already up and a concrete tile roof that weighs a bunch, seems like cutting the slab in 3 pieces would not be safe. This leads me back to my 2 leaf wall system,
does floor underlay of neoprene, plywood , then flooring not isolate the floors between CR and LR?
I need to look at where the sewer line is exactly but it runs diagonal, there maybe room to cut the slab of the CR
- Soundman2020
- Site Admin
- Posts: 911
- Joined: Thu, 2019-Sep-19, 22:58
- Location: Santiago, Chile
- Contact:
New Design
It's also a question of how much isolation you can get by with, and what is the lowest frequency where you need good isolation.
If you need high isolation at low frequencies, or if there are already structure-borne vibrations happening, then as Glenn mentioned, the best solution is to cut the slab. As you mentioned, doing so isn't a simple thing, as you'd probably need to pour new footings under the edges of the cuts, and you would run into issues with the sewer pipes (and possibly other "stuff" down there).
So, it would be good if you could figure out what level of isolation you need, and check on the frequencies and vibrations. If you can get by without that, then just concentrating on maximizing isolation in the walls and ceilings would be the next step. In most cases, the existing slab, without cutting, should be sufficient, but you are the one who can judge if what you have is "good enough"!
- Stuart -
If you need high isolation at low frequencies, or if there are already structure-borne vibrations happening, then as Glenn mentioned, the best solution is to cut the slab. As you mentioned, doing so isn't a simple thing, as you'd probably need to pour new footings under the edges of the cuts, and you would run into issues with the sewer pipes (and possibly other "stuff" down there).
So, it would be good if you could figure out what level of isolation you need, and check on the frequencies and vibrations. If you can get by without that, then just concentrating on maximizing isolation in the walls and ceilings would be the next step. In most cases, the existing slab, without cutting, should be sufficient, but you are the one who can judge if what you have is "good enough"!
- Stuart -
New Design
if you cannot separate the slabs, you'll hit a limit of roughly 50-55db of full isolation before you'll start to notice the transfer through the slab. so still build your walls and ceiling to hit 63db+ and live with the slight transfer. most residential studios are in the same boat.
-
1970428scj
- Active Member
- Posts: 40
- Joined: Sat, 2023-Apr-01, 16:22
- Location: san diego ca
New Design
The LR will have drum kits with 26" bass drums going down low, I would guess 40hz or lower, The CR will just be play back, My concern will be the sound getting out more than coming through the wall, window or slab to the CR.
I have cut the slab to install sewer lines, It can be done I guess with out an issue, but it would be only the control room, The bathroom and kitchen would remain as one slab with the LV . No big deal. The slab will need to be cut in the CR to install conduit from the api to the mm 1200, FX rack. So it maybe easier to put another slab over the existing an isolate this way, But this is getting into some serious money this way.
If I leave the slab alone, and install walls, ceiling etc to a 60 plus stc. What is my best plan of attack?
use existing wall as leaf 1 with a wide air gap as possible
gypsum between studs , insolation, then 2nd leaf neoprene at seal , 2x4 stud,2x gypsum green glue , iso clips
or
2 leaf wall built inside.
I do have a budget but its not a ton of money so I need to be really smart with the design.
Does a neoprene underlay of 1/2 or so, Plywood and then floor isolate the slab at all? of is this a waste?
The nearest neighbor is 150 feet away, the studio sits higher in elevation, and is the highest building around, however its quiet at night here, some road noise but pretty quiet, I can measure dba or c to get an idea.
I have attached a photo so you can see what my surroundings are.
Thank you for your help and all the info/feedback
I have cut the slab to install sewer lines, It can be done I guess with out an issue, but it would be only the control room, The bathroom and kitchen would remain as one slab with the LV . No big deal. The slab will need to be cut in the CR to install conduit from the api to the mm 1200, FX rack. So it maybe easier to put another slab over the existing an isolate this way, But this is getting into some serious money this way.
If I leave the slab alone, and install walls, ceiling etc to a 60 plus stc. What is my best plan of attack?
use existing wall as leaf 1 with a wide air gap as possible
gypsum between studs , insolation, then 2nd leaf neoprene at seal , 2x4 stud,2x gypsum green glue , iso clips
or
2 leaf wall built inside.
I do have a budget but its not a ton of money so I need to be really smart with the design.
Does a neoprene underlay of 1/2 or so, Plywood and then floor isolate the slab at all? of is this a waste?
The nearest neighbor is 150 feet away, the studio sits higher in elevation, and is the highest building around, however its quiet at night here, some road noise but pretty quiet, I can measure dba or c to get an idea.
I have attached a photo so you can see what my surroundings are.
Thank you for your help and all the info/feedback
-
1970428scj
- Active Member
- Posts: 40
- Joined: Sat, 2023-Apr-01, 16:22
- Location: san diego ca
New Design
yes, except i build each inner wall entirely on the separated slab. i think for your case, maybe just leave it as your concern is the exterior levels, and i think with the two leaf and enough mass, you're not likely to hear even a drum kit like that more than 10ft from the building. if you do, it will sound like a tiny radio off in the distance, and after 20ft you'd not hear it.
Who is online
Users browsing this forum: No registered users and 9 guests