Multi-purpose Music/Home Theater/Recording Studio

Start your own studio thread here: Goals, plans, layouts, treatment, speakers, questions, queries, comments...
goodwater
Active Member
Posts: 62
Joined: Sun, 2022-May-08, 22:45
Location: Canada, Saguenay (Quebec province)

Multi-purpose Music/Home Theater/Recording Studio

#1

Postby goodwater » Sun, 2025-Jan-12, 18:39

Hello all!

First of all I would like to wish everyone a great 2025 and that everything goes well in your part of the world, despite the bad things that happen, intentionally or not. A special thought for those in California affected by the fires. Very sad.

Stephan here, french canadian...not bad in English but often need help by Google Translate. I could have used the title « I've been planning this (garage) studio for 15 years » but I don't want to compete with GraGra... :lol: ...however like him : after « more than » a decade of dreaming and researching I am finally ready to build my dream home studio! :yahoo:

I've read a lot on Recording.org, John's forum and in this one. I really appreciate the work that you all do to share very technical knowledge and help others, and I hope you can find the time to help me with my project. I also read many books and documentation (Rod's book, Audio Expert-E. Winner, Recording Studio Design-Newell, Acoustics 101-Auralex, and others). As I read, I accumulated several pages of reading notes, classified by category (Isolation, Acoustic, Electric, HVAC, …).

Here's the outline of what follows:

1. Overview
2. Background
3. Goals and priorities
4. Existing construction
5. Neighborhood / Pre-Construction Sound Transmission Test Results
6. Budget and Schedule
7. Questions

1. Overview

The goal is to finish an existing 24x40 feet (exterior measurements) building (next to the house) that I build in 2012 to become a two room building: a gym (around 25% of the total space) and a music studio. The wall separating the two rooms is not built. Initially, I wanted a two rooms studio like the pro studios (recording and control room) but after an initial drawing and placed my many instruments, I find that the best solution might be one big room, also considering that I am the only user.

Here is the exterior plan I succeed to make with SketchUp in 2012 (in the end, I only put one window on the right wall (the first one) :

Garage.jpg


The studio room will operate as a rehearsal, composing, recording, mix, listening to music and home theater (HT) space for me and my wife, friends and maybe my own bands. It possibly could be a LEDE room, so a dead zone in the front (mix/listening area) and a live zone in the back (drums). I realize that my needs are many and that I will probably have to make concessions. The gym can also be used to record vocals, electric guitar, djembe, etc...and the bathroom could also serve has vocal booth!

I mainly play acoustic drums so I need a good isolation. The HT sub need it too, I think. I don't have (and don't want to invest in) professional studio gear that cost thousands of dollars (and more) but I have semi-pro equipment. I live in a quiet neighborhood and my neighbors are quite far away. So I don't think I need a total isolation.

2. Background

In my spare time I'm a drummer and a little bit of a pianist/keyboardist/composer. I like to practice/compose and record my own music and once in a while I'm working with other musicians on projects. In my previous house, I had a space in the basement for my keyboards, computer and drum kit but I can't call it a recording studio. In fact, my studio was an Ensoniq TS-10 workstation keyboard (24 tracks) and I was only recording the stereo output into my computer. Here is my setup at that time. My drum kit (not pictured) was in the other part of the family room, near the TV and stereo... :

First setup.jpg


I made several plans at this time to convert the basement or to extend the house to build a studio but finally (in 2011) we bought a new house with enough ground to build a studio in a separate building. Then I started to read books and Internet forums.

In 2012, when I went to get my building permit, I learned that the regulations were going to change and if I had not build in 2012 I would have been limited in the size of the building. So I started building without having a precise plan (Error #1). I did the best I could with the knowledge that I had been able to assimilate at that time. And also the pressure from parents and friends, telling me that I was not doing a professional studio and not being too much of a perfectionist...and I also believed the nice words of the hardware store salesman! Anyway, I ended up thinking that the materials used for the exterior wall weren't that important (Error #2) because I thought "I'll make another wall inside"! (The « A room in a room » technique) I could blame and flagel myself all day long (I did it a little, I confess) but it wouldn't help. I have to move forward. One thing is certain, I don't want to improvise any more for the future.

At the beginning of 2013, while I was inside the studio screwing in slats in the gym with my friend carpenter, I said: enough! I decided to stop building until I had a plan. Then I’ve had to put the studio on hold so that I could continue my studio studying and also focus on other projects around the new house, finish the basement, music bands, ect.

3. Goals & Priorities

    - Priority #1 : Soundproof space to practice drums (and other instruments) at any time of the day without disturbing my wife or the neighbors, or to play with other musicians
    - Priority #2 : Good acoustics to be able to compose/record/mix drums, synths, acoustic piano, guitar, vocal tracks, etc. and to listen to CDs/Vinyls LP
    - Acceptable acoustics for watching Dolby 5.1 shows and movies on a projection screen with a ceiling-mounted projector.
    - Practice drums by watching a drum course on DVD or on the Internet
    - Acoustically acceptable for practicing with other musicians (3-4 people)
    - Being able to have two drum kits installed, at least one on a movable riser
    - Have enough storage (drum cases/parts/hardware, studio mic/stands/cables...)
    - Have a “workshop” place (to change a drum head, a synth battery, a computer component, etc.)
    - Like a forum member said : I don’t want the studio to feel cramped, so I’d like to use as much of my available space as possible, and I’m willing to sacrifice a bit of sound quality to keep the room larger. If necessary, however, I will sacrifice some space if it means a significant improvement in sound isolation (or in acoustics).

4. Existing Construction

First I summarize :

The 2x6 walls rest on an 8-inch concrete foundation (which itself rests on a 4-foot-deep footing) and a radiant heating system was poured into the concrete floor. (I don't plan on putting any floor covering in order to reduce costs...and scratches, and block the heat, and concrete is a good reflective surface.) I installed a 100A electrical panel connected to the 200A panel in the house. I also ran an accessory pipe (Internet, Security System, etc.) and a water pipe. I didn't put any window in the studio area in order to simplify soundproofing. The front part (gym) has 3 windows and a garden door, and I plan to use one or two sliding patio doors (Thermal doubling glazing) to let in some natural light in the studio. The structure is very stable and well insulated. Nothing has moved, nothing has cracked since 2012.

The following things were given to contractors: excavation, concrete, fabrication of trusses, front brick wall, heating system (except pex installation), electricity job, gutters. Everything else was done by me with the help of a more experienced carpenter, family and friends. I'm not very experienced at construction but I am able to use a hammer, a drill or a saw! A final word: there is no question of undoing what has been done, that is to say removing construction materials already installed, unless I absolutely have to in order to achieve my soundproofing goal.

Here are now some photos and explanations. I condensed it as best I could. Sorry if it's long. My goal is to explain well what I did because I know that the experts have to see how things are built to be able to give good answers.

BEGINNERS (like me): DON'T THINK THIS IS THE PERFECT WAY TO BUILD A RECORDING STUDIO. This is why I created this thread in the Design forum instead of the Construction one.

Photo 4-1. Foundation et footing. My contractor suggested that I do the back wall foundation higher to avoid water infiltration in the spring (because the land is sloping). In the photo there is no house in the back...but a seniors' home with 24 apartments (2 floors) was built 1 or 2 years later... :x
Error #3 : If I had a specific plan, I would have had to build a foundation to better support the wall separating the gym from the studio.

4-1.JPG


Photo 4-2. While compacting the sand, the contractor installed 2-inch thick, 2' deep Styrofoam insulation along the foundation (Dow SM Insulation Panel, R7.5).

4-2.JPG


Photo 4-3. Exterior part of the walls (before cladding).
Excel II Panel (wood fiber Insulation Panel ½'', mass 16 lb/ft3, R-1.5, includes an air barrier coating)
I put a Mulco Acoustik sealant (CAN/CGSB-19.21-M87 standard) at each joint.
Error #4 : Excel Panel = Not enough mass
Error #5 : Not sure if sealant was needed at this location...

4-3.JPG


Photo 4-4. Above the sand: Dow Insulation Panel + metal mesh + pex for the radiant floor (2 lines in the gym and 3 lines in the studio).
Error #6 : Since I have a heated floor, I think I should have put a vapor barrier over the sand, before the insulation.
Error #7 : Having installed the pex without thinking about the interior wall (which should normally be nailed or screwed into the floor)

4-4.JPG


Photo 4-5. The two 40' walls were built in four 20' sections.

4-5.JPG


Photo 4-6. Who can boast of having ever walked in a field with a 20' 2x6 wall? :lol:

4-6.JPG


Photo 4-7. End of the walk.

4-7.JPG


Photo 4-8. Pouring the concrete floor 5 to 6'' thick (4350 psi) taking care to lift the metal mesh so that the pex is approximately in the middle of the floor (done by the best contractor in town). After that : Polish the floor, wet the floor for a few days (so that the concrete does not harden too quickly) and application of two coats of sealant (Diamond Clear Vox).

4-8.JPG


Photo 4-9. Installation of trusses. Hipped roof (4-sided roof, like the house and the garage).

4-9.JPG


Photo 4-10. Aspenite (OSB) 5/8'' tongue and groove for roofing, asphalt shingles and a ventilation maximum.

4-10.JPG


Photo 4-11. Wood slat and James Hardie fiber ciment siding on three walls.

4-11.JPG


Photo 4-12. Brick for the front wall. Soffit and exterior lightning installed.
(I didn't put brick on all 4 walls to reduce costs. Just the front wall cost $3k.)

4-12.JPG


Photo 4-13. Ceiling Fiberglass Thermal Insulation R-35 (RSI 6.10) Owens Corning then Enermax panel (wood fiber ½'' cover by vapor barrier, mass 14.5 lb/ft3, R-3.0). Since (at this time) I was thinking of making an interior wall (and ceiling), and winter was approaching I thought I could insulate and close the walls and ceiling to be able to heat during the winter and store things.
Error #8 : Enermax Panel = Not enough mass (the beams of the trusses can support much more)
Error #9 : The vapor barrier. I cannot add a second one on the interior (new) wall. « Vapor barriers always go on the surface that will be warmest in winter, so you would not put it up against the outer wall” (Stuart) And I cannot remove it without removing the entire panels.

4-13.JPG


Photo 4-14. Fiberglass Insulation R-19 in walls (density of 12.1 kg/m³).

4-14.JPG


Photo 4-15. Enermax Panel on walls too.
Error #10 : Enermax Panel = Not enough mass (the foundation can support much more)

4-15.JPG


Photo 4-16. At the bottom of the walls, there was 2'' of uninsulated foundation concrete. So before putting the Enermax at the bottom, we insulated the foundation (and a part of the insulation panel) with urethane. Then we put the Enermax on top of the urethane. I'm not sure this was the best way to deal with it.

4-16.JPG


To be continued...



goodwater
Active Member
Posts: 62
Joined: Sun, 2022-May-08, 22:45
Location: Canada, Saguenay (Quebec province)

Multi-purpose Music/Home Theater/Recording Studio

#2

Postby goodwater » Sun, 2025-Jan-12, 18:50

Photo 4-17. The result.

4-17b.JPG


To better understand:

Exterior wall 1.JPG
Exterior wall 1.JPG (32.63 KiB) Viewed 36115 times
Exterior wall 1.JPG
Exterior wall 1.JPG (32.63 KiB) Viewed 36115 times


Had I known what I know now, I might have built the wall this way, because the foundation can support a great deal of weight. Maybe that would have been enough for my soundproofing needs :( (air barrier and vapor barrier not shown):

Exterior wall 2b.JPG
Exterior wall 2b.JPG (26.97 KiB) Viewed 36115 times
Exterior wall 2b.JPG
Exterior wall 2b.JPG (26.97 KiB) Viewed 36115 times


On the other hand, someone in the construction field told me that putting OSB on an exterior wall (here in Quebec) could cause humidity problems...???...anyway. What is done is done.


5. Neighborhood / Pre-Construction Sound Transmission Test Results

I live at the end of the neighborhood. The neighborhood is generally quiet, with the occasional sound of a motor vehicle in the roundabout (motorcycle, all-terrain vehicle or snowmobile).

Google Earth.JPG


There is a fairly large distance (in my opinion) between the studio and the neighbors, as you can see on the Google map image below. The studio (the red S) is 60 feet from the house, 75 feet from the street (so my neighbors across the street are over 150 feet away), 70 feet from my back neighbor's driveway, 100 feet from my next door neighbor, and 60 feet from the senior's house (in theory, the older you are, the less you hear...lol). So, yes I need soundproofing but I also don't want to do too much for nothing.

Distances avec voisins.JPG


After the building, I set up a drum kit and an MP3 player with speakers (towards the back of the building) to test the building's soundproofing with a Radio Shack sound level meter.

Tests.JPG


Table 1 – Tests with a rock song and Drum kit.

Sound Level Test - tableau 1.JPG


Table 2 – Tests with a rock song and a few low frequencies.

Sound Level Test - tableau 2.JPG


My conclusion : the wall seems to have a TL around 30db for low freq.

NOTE (1): As the building currently stands, I suspect that sound is coming out of the windows a bit more than the walls and roof. Since there will be no windows in the studio, the walls/ceiling may have a better level of soundproofing than my tests show.

NOTE (2) : Low frequencies make some fiber cement boards vibrate. Not good.

According to the municipal bylaw that I found on my city's website: "the noise measured one meter (1 m) from the boundary of the property where the disturbing device is located on the neighbor's side must not exceed 50 dB(A)". But in practice, no neighbor will come and sit down to have a beer or sunbathe right in front of the studio wall. And especially not in winter! ;)

Moreover, I read that the “perfect decay” (transmission loss) is -6 db each time the distance is doubled. Although my tests do not perfectly reflect this rule (perhaps they are not reliable enough), if I use a conservative value (-4 db) and an SPL of 80 db at 3 feet from the wall (outside), here are my calculations:

Decay.JPG


So, in theory, since my nearest neighbors are 60 and 70 feet away, they shouldn't hear almost anything!? BUT, I suspect that these calculations do not take enough account of low frequencies. The ones that interest me the most are:

Bass guitar: 40-400 Hz
Kick drum: 50-500 Hz
Snare: 100-300 Hz
Toms : 80-500 Hz

So, if I am very conservative and drop the decay to only 1 db, here is the new calculations:

Very Conservative Decay
3' = 80 db
6' = 79 db (-1)
12' = 78 db (-1)
24' = 77 db (-1)
48' = 76 db (-1)
96' = 75 db (-1)

So I guess I should cut another 15 db (45 db total) to have 65 db outside and then 60db at my neighbors. It should be ok for me if I hear a little “boom boom” at 1 meter of the wall (outside).

6. Budget (CAN $) and Schedule

Gym: I estimate the gym to be finished at around $13k, including the air handling system (ERV, conduits, etc...) costing $7k (which will also be used for the studio). I am dealing with a qualified contractor and the plan he made and the equipment he chose for my needs will be OK. More on that later. No special soundproofing for the gym, except for the wall that separates it from the studio. However, I am planning to put acoustic ceiling tiles and maybe some acoustic treatments here and there. The room will measure approximately 11x22.

Studio: I would like to not exceed $27k, which includes: materials, sealant, electrical (circuit breakers, wires, light fixtures, outlets, switch, ...), plumbing, audio wiring, snakes (2), materials to make acoustic panels, projector and giant screen ($2k). I already bought two used patio doors in 2012 for $160. I am not sure if I will need an air conditioner but I intend to do what is necessary in anticipation (circuit breaker, electrical cable, hole in the wall to the outside, sealant, ect.). The room will measure approximately 26x22.

Total estimated budget: $40k

I'm going to do as much of it as possible myself with friends and/or hiring help here and there. My goal is to be done in September or October 2025, before next winter. I can work almost full time on this project. This is the first and last studio I will build.


7. Questions

    7.1 Is my interpretation (extrapolation) of the perfect decay make sense?

    7.2 Does my 45db target make sense?

    7.3 Currently, is my wall Mass-Air-Mass-Air-Mass (3 leafs) ?
    (Enermax panel – Insulation – Excel panel - Wood slat – Fibrociment)
    In other words, should the space created by the wooden slat be considered an air space?

    7.4 Since I have a radiant floor, which radiates all around, could I make an interior wall/ceiling and leave the vapor barrier where it is? (which assumes that the space between the 2 walls will not be colder than the exterior wall)


I stop here (this post is quite long) to give you time to answer questions and make any comment/question you deem relevant. I will then continue with my preliminary plan, soundproofing ideas and further details.

Stef



User avatar
gullfo
Senior Member
Posts: 770
Joined: Fri, 2021-Jun-25, 14:50
Location: Panama City Beach, FL USA

Multi-purpose Music/Home Theater/Recording Studio

#3

Postby gullfo » Sun, 2025-Jan-12, 19:45

1. yes but maybe overthinking it a bit - your levels are already pretty good at the property line and once you get the resonances in the walls stopped and maybe window shutters (i'd think you'd want the daylight option), you should be good.

2. yes

3. the enermax doesn't seem dense enough to consider it as a "leaf". if the wood slats are open (like an inside-out wall / ceiling) then it's only partially a "leaf".

4. leave it. it's not really worth the expense to redo it.

5. definitely keep in mind a hyperinsulated sealed space need continous air exchange to remove CO2, so investing in a proper HVAC system is critical - do not wait to plan it - do it today. too many studio building projects leave it until the end and then it's really a nightmare to correct it. note that split units do not provide fresh air - get a proper ducted solution, possible with multiple zones - one for the gym and one for the studio so you can set temperature and humidity levels. a good quality ERV for the air exchange.



goodwater
Active Member
Posts: 62
Joined: Sun, 2022-May-08, 22:45
Location: Canada, Saguenay (Quebec province)

Multi-purpose Music/Home Theater/Recording Studio

#4

Postby goodwater » Sun, 2025-Jan-12, 23:00

Thanks Glenn!

Your answers are very encouraging. If I understand your answers to questions 3 and 4 correctly, I could make an interior wall while leaving the vapor barrier where it is (Enermax) and without adding a second vapor barrier on the interior wall. I will come back to this subject soon.

Regarding HVAC, yes I know this critical part and I already signed with a contractor for an ERV with 6 inches steel ducts, with 1 push/1 pull in the gym and 3 push/1 pull in the studio. More on that soon.

Stef



goodwater
Active Member
Posts: 62
Joined: Sun, 2022-May-08, 22:45
Location: Canada, Saguenay (Quebec province)

Multi-purpose Music/Home Theater/Recording Studio

#5

Postby goodwater » Mon, 2025-Jan-20, 22:35

Hello! I continue the presentation of my project.

Here's the outline of what follows :

1. Preliminary design
2. Does this design achieve my -45db TL goal?
3. Questions

1. Preliminary design

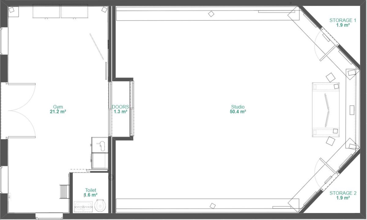
To start, here is a plan I made with an online tool called Kozikaza, easier to use than SketchUp but has a lot of limitations. I haven't invested time in SketchUp (since my little drawing in 2012) because I'm not sure my project is complex enough. But if it is recommended to me, I could try to make a detailed plan myself with SketchUp.

This design does not include an interior wall for the studio (a room in a room). This is the simplest and least expensive solution. It offers the largest usable area in the studio and the highest ceiling height. I can't make the gym smaller than what you see on the plan. So there will be a remaining space of about 26' long by 22' 11'' wide (Enermax to Enermax) for the studio, taking into account the 2 walls. Currently the ceiling height is 10' 3'' (from floor to Enermax panel).

Design v1.0 - Empty

Plan 2D - v1 - vide.JPG


Here are the details (not in the correct order of completion):

  1. I built a first wall out of 2x4s to separate the gym from the studio with ROCKWOOL Safe'n'Sound inside. This wall is straight. Inside the gym, I put a layer of 5/8 gwb on all the walls. For the gym ceiling, I'm thinking about acoustic tiles.

  2. I build a second wall out of 2x4s leaving 1 inch between the 2 (except for the second sliding door which will be about 2 feet from the first). I put ROCKWOOL Safe'n'Sound inside too. On the studio side, a layer of osb 5/8 and a layer of gwb 5/8. The osb provides better support for screwing things into rather than putting 2 layers of gwb. The reason there are 2 walls is that I think that a single wall (therefore a single sliding door) will not be enough to properly isolate the studio from the gym. Here is a picture:

    Murs gym.JPG

  3. for the other 3 walls of the studio, same thing: osb 5/8 + gwb 5/8 (over the Enermax panels)

  4. for the studio ceiling, I'm thinking of putting Plywood ¾ + gwb 5/8. I could also do the opposite, put the gwb first and then a sanded Plywood ¾ on one side that I would only have to stain, which avoids having to plaster/sand and reduces the weight of the ceiling. The beams of the trusses can support 7.0 lbs/psf. According to my research, the weight of a Plywood ¾ is about 2.2 lbs/psf and that of a gwb is also 2.2 lbs/psf. If I round the sum of the two to 4.5 lbs/psf, I get a margin of 2.5 lbs/psf (soffit for air ducts, lightning, cloud, projector, …). Before buying the materials, I will ask the vendor for the real values ​​of the 2 products.

  5. Since the studio walls are already enclosed with Enermax panels, I have to use surface conduit for all electrical (wires, outlets, switches, lightning) and studio (audio) wiring.

  6. when I made this plan, I didn't think about bass traps. According to what I read, I should put them in place of my 2 storages and also in the back corners. But if I do that, I won't have any storage or workshop anymore...

  7. I could build the 2 walls first and redo sound tests, but I would hinder the entry of materials into the studio (doors).

Now here is the same plan but with the instruments and furniture.

Design v1.0 - Full

Plan 2D - v1 - annoté.JPG

S1 = Active speaker (Tapco TH-15A) on a tripod stand (for band rehearsals, for example)
S2 = Surround speakers on the wall


Design v1.0 – 3D views

Here is 3D images where we can better visualize the whole thing and we can see the projection screen, the different monitors, some ideas for the location of acoustic panels (to be confirmed later). We can also see the soffit that goes all around the studio and will contain the ventilation ducts and recessed lights (the air exchanger (ERV) and soffit in the gym do not appear on this plan). I don't have much talent in interior design...it's a draft. More details in a future post. I want to sort out the soundproofing issue first.

Plan 3D - v1 - vue 1.JPG


Plan 3D - v1 - vue 2.JPG


Plan 3D - v1 - vue 3.JPG


Plan Visite-1.JPG


Plan Visite-2.JPG



2. Does this design achieve my -45db goal?

I remind you how the current walls are built:

Mur actuel.JPG


On the ceiling, there is an Enermax and Fiberglass R-35 in the attic. Obviously, there is a sound leak through the soffits under the edges of the roof, around the building, which are there for ventilation of the attic (with the Maximum on the roof).

So I tried to answer the question myself. In my reading notes, I have a link to a sheet named Gregwor & audiomutt's MSM Transmission Loss Calculator Version 2.05. I then made three simulations.

Simulation #1 : I entered only the two layers I add to the walls. If I understand correctly the result, from 63Hz, this would add 15.26db or more of TL. So if I add that to the current 30db TL of the wall, I would be OK (except for frequencies below 63Hz).

MSM TLC - sim1.JPG


Simulation #2 : I entered the same two layers plus the layer of Enermax. Since Enermax is not in the sheating drop down list, I choose OSB and CUSTOM kg/m2, and found the value 2.54 on Internet. The result is what I expected: slightly better.

MSM TLC - sim2.JPG


Simulation #3 : I entered the same three layers on the LEAF 1 and I added my second leaf (the Excel panel + wood slat + fiber cement siding). Here the result is weird. While I expected an improvement, it is worse. The simulation includes the whole assembly but I get a TL of 45db from 315Hz only.

MSM TLC - sim3.JPG


So I wonder if this tool is reliable...


3. Questions

  1. Does my v1.0 design allow me to achieve my goal of soundproofing the studio? (-45db)?
    According to the results of the tool above, I answer yes but...

    Otherwise:

    1. Will adding bass traps and acoustic panels help achieve this?
    2. Will adding a layer on the 3 walls only (for example, 1 gwb ½ or 1 osb ½ ) allow to reach it?
      (I do not want to add any to the ceiling so as not to risk exceeding the load of 7.0 lbs/psf)
    3. Would the use of sound isolation clips (Isomax, GenieClip) and a steel furring channel be necessary and sufficient? Only on the ceiling? (but I read that it is not good for low frequencies)
    4. If the main drum is on a riser, will it help (for the drum sound only, of course)?

      As you can see, I'm looking at all the possibilities to avoid having to build an interior wall, without overdoing it either.
  2. Is a margin of 2.5 lbs/psf acceptable for the ceiling?

  3. Should I calculate the weight of the walls separating the gym, given that there is no foundation to support them only the floor, and check with an engineer if the floor is capable of supporting it?

  4. Is it possible to integrate bass traps into the 2 storage areas and the workshop corner?

    If so, some ideas? Should an opening be made at the bottom of the 2 doors (for example, an opening of 18'' x 18'') to allow low frequencies to better penetrate into the storage?

  5. Do you have any other ideas for creating storage spaces and a workshop area?

  6. How to tune the wall? I read that I have to tune it so that the resonant frequency is at least 1.414 times lower than the lowest frequency I need to isolate. But I have no idea how to do that!

  7. For the walls separating the gym, should I use acoustic brackets like this one?
    Acoustic Bracket.JPG


    If so, do I have to use them to fix the walls to the ceiling AND to the exterior walls?


Any comment will be greatly appreciated.

Stef



User avatar
gullfo
Senior Member
Posts: 770
Joined: Fri, 2021-Jun-25, 14:50
Location: Panama City Beach, FL USA

Multi-purpose Music/Home Theater/Recording Studio

#6

Postby gullfo » Tue, 2025-Jan-21, 13:06

one option is to attach the wall isolators to the exterior wall - sway stability and if you need to, add a ledger board to accommodate the depth. e.g.
Attachments
Clipboard_01-21-2025_01.jpg



User avatar
gullfo
Senior Member
Posts: 770
Joined: Fri, 2021-Jun-25, 14:50
Location: Panama City Beach, FL USA

Multi-purpose Music/Home Theater/Recording Studio

#7

Postby gullfo » Fri, 2025-Jan-31, 14:41

to generally answer the questions - for inside-to-outside sound isolation - you need mass and you need to seal things air-tight. if you are reducing mass at any location or leaving something unsealed, you will lose isolation. room-to-room isolation you need to not only have mass and seal things, you need to decouple adjoining structure including floors to fully achieve higher than 50db isolation.

in general what you are proposing should work to meet the 45db target.



goodwater
Active Member
Posts: 62
Joined: Sun, 2022-May-08, 22:45
Location: Canada, Saguenay (Quebec province)

Multi-purpose Music/Home Theater/Recording Studio

#8

Postby goodwater » Sat, 2025-Feb-01, 13:12

Thanks Glenn.

gullfo wrote:Source of the post in general what you are proposing should work to meet the 45db target.


Just to be sure, you mean the 2 layers I propose on the walls and ceiling, without any other thing, right? (except the sealing for sure, and the clips to fix the walls that separate the gym)



User avatar
gullfo
Senior Member
Posts: 770
Joined: Fri, 2021-Jun-25, 14:50
Location: Panama City Beach, FL USA

Multi-purpose Music/Home Theater/Recording Studio

#9

Postby gullfo » Mon, 2025-Feb-03, 13:45

yes, i think the 2x layers of mass material should do it.



goodwater
Active Member
Posts: 62
Joined: Sun, 2022-May-08, 22:45
Location: Canada, Saguenay (Quebec province)

Multi-purpose Music/Home Theater/Recording Studio

#10

Postby goodwater » Thu, 2025-Feb-06, 12:37

As for using the wall isolator, I don't see how to use it. If I screw the plate vertically on the stud (over the Enermax panel), the isolating part (the red part) is not at the right angle to be screwed vertically on the 2x4 of the new wall (which is perpendicular to the exterior wall).

Another possibility would be to remove part of the Enermax in order to screw the plate horizontally onto the 2x6...this way the isolating part would have the correct angle to be screwed into the 2x4 of the wall.



User avatar
gullfo
Senior Member
Posts: 770
Joined: Fri, 2021-Jun-25, 14:50
Location: Panama City Beach, FL USA

Multi-purpose Music/Home Theater/Recording Studio

#11

Postby gullfo » Fri, 2025-Feb-07, 12:39

hence the reason for the ledger board or plywood strip etc which gives you a surface to secure it to.



goodwater
Active Member
Posts: 62
Joined: Sun, 2022-May-08, 22:45
Location: Canada, Saguenay (Quebec province)

Multi-purpose Music/Home Theater/Recording Studio

#12

Postby goodwater » Sun, 2025-Feb-09, 12:27

I understand very well now how to attach the new walls to the exterior walls with the clips (see the blue circles in the attached image). This is what you say to do in post #6 (viewtopic.php?p=7063#p7063) but you don't say to attach it to the ceiling (see the red circle). If that's right, what do I do? I thought I had to attach the walls to the ceiling with clips too...I'm confused here.

Capture.JPG



User avatar
gullfo
Senior Member
Posts: 770
Joined: Fri, 2021-Jun-25, 14:50
Location: Panama City Beach, FL USA

Multi-purpose Music/Home Theater/Recording Studio

#13

Postby gullfo » Sun, 2025-Feb-09, 19:52

the back to back walls will support each other - they're secured into the floor and in the case of the back to back - depending on separation space - either use the ledger board to enable the space or use a double isolating sway brace. the inner ceiling sits on the wall frame, or if using the existing ceiling joists (w/ isolators and hat channel), then only your mass layers connect inside the room. anything else short circuits the isolation, or in the case of trying to stabilize the walls via the ceiling - make things more complex than needed.

Clipboard_02-09-2025_01.jpg



goodwater
Active Member
Posts: 62
Joined: Sun, 2022-May-08, 22:45
Location: Canada, Saguenay (Quebec province)

Multi-purpose Music/Home Theater/Recording Studio

#14

Postby goodwater » Mon, 2025-Feb-10, 14:51

Thanks again Glenn! As I understand it, the top plate of the partition wall can touch the Enermax on the ceiling, but the layers screwed to the frame does not. Instead, I will leave a 1/8 or 1/4 air gap between the top of the layer and the Enermax, then backer rod and caulk. Is that correct?

Good idea the double isolating sway brace. I could put one on the bottom of the wall, one in the middle and one on the top, but not on each stud but instead each side of the sliding door (so a total of 6 double isolating sway brace) . What do you think?

A24R-installed.jpg


Stef



User avatar
gullfo
Senior Member
Posts: 770
Joined: Fri, 2021-Jun-25, 14:50
Location: Panama City Beach, FL USA

Multi-purpose Music/Home Theater/Recording Studio

#15

Postby gullfo » Thu, 2025-Feb-13, 17:20

correct. on the number of sway braces - usually you stagger them across high and low and ~4' o.c. also check any seismic and wind regulations/codes for your area to ensure your exterior and interior stability assemblies are correct. for example you might need shear wall stability on your exterior walls, strapping on your ceiling / roof, and the sway bracing to the exterior / interior as well as interior to interior.




  • Similar Topics
    Statistics
    Last post

Who is online

Users browsing this forum: No registered users and 15 guests