Rural Earth Wall Studio - Using Existing Slab

Start your own studio thread here: Goals, plans, layouts, treatment, speakers, questions, queries, comments...
trispembo
New Member
Posts: 1
Joined: Mon, 2022-Mar-14, 07:47
Location: Mid North Coast, NSW, Australia

Rural Earth Wall Studio - Using Existing Slab

#1

Postby trispembo » Tue, 2026-Jan-13, 00:22

Hi all,

This is my first post here, after lurking in the background for years - at JS Forum and this one - taking in all the cool inspirational stuff that happens when people decide they want to build a recording studio, and a community of geeks gather around to support them. Thanks so much for making this all available.

To start with, I'm very lucky to have arrived on a good sized property in a beautiful part of the world - mid north coast, NSW, Australia.

What's super cool is the property has an existing, but disused, large concrete slab that was once the floor of a shed. Apparently, or so the story goes, some previous inhabitants - now long gone - used the shed for nefarious (illegal) activities such as a chop shop for stolen cars, amongst other things. Anyway, that was a long time ago but what remains would make the perfect floor for a recording studio. So, that's my starting place.

Studio Design Overview
I’m in the early stages of designing the studio to be constructed on the disused slab (noted above) on our 36 ha rural property. The aim is to create a studio that takes in the beautiful natural surroundings, and provides a warm, inviting internal space in which musicians (everyone) will feel comfortable.

We are looking to use natural building materials - as much is practicably possible – for the main construction and, along with acoustic considerations, will aim to add passive energy elements the design.

As I’m starting from scratch (apart from slab), I’m hoping to get some help getting the right design BEFORE I start building.

Noise Considerations
The loudest instrument will be rock drums (approx. 120dB).

We have quite a bit of space between us and our neighbours. The closest will be approximately 300-400 metres away in a direct line. However, our main house (yet to be constructed) may be - at its closest - 100 metres from the studio.

I’d like to be able to record at any time of day or night without annoying anyone nearby. We all know those times when you’re in the zone, and want to keep pushing through to 3 in the morning!

So, based on a quick test with a sound meter, if the sound level one metre from the outside wall is 60dB or less, that should be an acceptable level to keep everyone happy. So I’m looking for 60dB of reduction.

Luckily the property is quite remote on a no-through road, so there are no real noise concerns from outside the studio. Just the occasional car or truck passing on the road about 200 metres away from the proposed studio location.

Construction Details
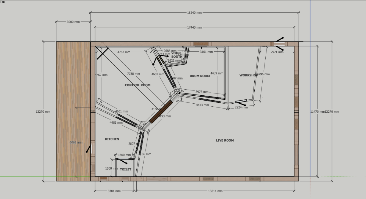
Currently there is an existing reinforced concrete slab (with nothing on it) from a previous building that’s about 11.4 x 17.4 metres (198 m2) which I’ll use as a starting point.

The outside dimension of the studio may be approximately 12.2 x 18.2 metres (with 400mm thick walls).

I’m thinking it will have seven spaces:
1 – control/mix room – big enough for some tracking
2 - big live room – big enough for a 4-8 piece rock band if needed
3 - smaller live room – smaller space/drum booth
4 - vocal booth - small room to accomodate one person
5 – workshop – storage of gear and work benches/solder station
6 - kitchenette – distinct possibility it may also contain a fridge with cold beer
7 - toilet – small throne room

Outside there will also be a deck, accessible via kitchen, that will be surrounded by rainforest.

Walls
Some of the building materials we are considering for the main walls are:

Poured Earth (up to 2,610 kg/m3)
Mud brick (1400-1800 kg/m3)
Rammed Earth (2,000 kg/m3)
*or a mixture of some/all the above

It would be great to achieve sufficient transmission loss with just the walls, windows, doors and roof/celling to not need a second leaf for the main live room, though I’m not sure how realistic that will be.

So I’m planning to build a second skin for the drum booth, vocal booth and control room. Considering drums will be the loudest instrument, if we keep drums in the drum booth (especially during a late night session) this should be our best chance of provide the isolation needed to keep the neighbours happy.

Top of the list of earth methods is poured earth, and we did a small test pour to trial this method (2.2 x 1.2 x 0.3m). There’s a great standards document that NZ government has created for poured earth, and I recently came across a poured earth building in Pemberton, WA, so gained some practical advice on how to build with this method. It’s load-bearing, so a skillion roof will be achievable with a large I-beam running the length of the roof supported by one post (a felled tree trunk) in the middle of the building.

Also, all the earth materials provide a hard surface providing a more “live” space when needed. Alternatively, I’ll add fold out wall panels that’ll reveal baffles/soft surfaces, and roll out rugs, when I want to reduce the liveliness.

Obviously, another major challenge will be windows, doors and roof. Having double sliding doors (aka John Sayer’s method) and two plates of glass per window (that are non-operable) should help. More on the roof below.

Roof
The skillion roof will have an internal ceiling of 3000mm and the lowest, and 3500mm at the highest point. The roof structure will probably be constructed from a combination of timber & steel frame and steel cladding, with insulation and gyprock (plaster sheeting) layers.

The control room will have an additional decoupled ceiling (room-in-a-room) to increase transmission loss between it, the building exterior, and the live rooms.

In my live rooms I’d like to not have to build additional decoupled ceilings to achieve sufficient transmission loss, though getting enough roof mass in the roof is looking to be rather challenging. I don’t want to use a concrete slab roof due to the additional expense and complication, plus it’s hardly an eco friendly building material.

One strategy I’m looking at, to increase mass and therefore transmission loss, is an ‘extensive’ green roof - which can weigh between 100-200 kg/m2. With this method, steel cladding would be substituted with cement sheeting, plus various layers for growing media, drainage and waterproofing added. However, this would require a significant upgrade in roof construction and, therefore, expense. It would be more cost effective to build a decoupled ceiling above the live rooms instead.

The question remains, how much isolation could I achieve in the live room without creating a room-within-a-room, but instead using a two skin roof/ceiling (MAM) and the heavy floor & wall mass? Certainly not 60dB but it may be enough for non-drum instruments? Though probably not in the lower (sub 100Hz) frequencies.

Interior
Materials used for the interior will be largely be informed by input from the experts on this forum.

That said, I’d really like natural timber to be used where possible to create a warm aesthetic environment, and provide some of the lovely diffusion/refection characteristics that wood offers. This could include some wooden panelling on the walls and ceilings – I’m happy to use plywood or OSB for this purpose where possible. We have plenty of raw timber material on the property if needed.

Also, I’m hoping if the walls, windows, roof and ceiling are constructed properly that, for the live spaces, I may not need another a second wall (inside external walls) to provide the isolation needed to gain the reduction I’m aiming for – at least for the quieter instruments in a band. So if possible, the MAM approach would only be used to isolate the control room, drum room, and vocal booth.

As there’s already an existing slab, I’m planning to polish that for all floor surfaces. Then with a selection of rugs/mats on hand, I could reduce or increase floor reflections depending on what’s required on the day.

HVAC
Before HVAC is designed, my first priority is to apply passive heating principles into the design.

Fundamentally, it’s all about trying to control the slab temperature. This would mean using sun energy to heat the slab (thermal mass) during colder times of the year. To achieve this the north and east walls (remember, I'm in the southern hemisphere) will have generous glass windows to allow sun to directly hit the slab floor which captures and stores heat energy like a battery. During the evening/nights, the slab releases heat to stabilise the internal temperature of the live room.

During the hotter periods of the year, curtains are drawn across windows to control/reduce/stop sunlight from hitting the slab. Keeping the slab cool in summer has the same effect of stabilising the temperature in the live room. Ultimately the effect is reducing to overall artificial energy (IE electricity) consumed in the studio.

For reference, north of the building is the opposite end to where the deck is. There are three windows and a sliding door on the north wall.

So, regarding HVAC, I’m thinking two split units with ducting should work for this.

Using two zones – 1] for the control room, kitchen and toilet; 2] for the other spaces (drum booth, vocal booth, workshop and live room).

The reality is, most of the work will be me alone in the control room. However, on the occasions I have other musicians in the space, then I’ll fire up the second system.

Once I’m happy with the internal wall/celling designs, then I’ll design the ducting system, including internal baffles as is demonstrated in many of the builds that feature on this site.

There’s a total air volume of 590 m3 in all combined spaces. Zone 1 is approximately 1/3 of the space (197m3), and the rest 2/3 (393 m3).

Replacing the air 4 times per hour, the volumes are for: zone 1 = 788 m3/h and zone 2 = 1572 m3/h.

Budget
Currently I have a budget of around AU$100,000 for the project. This is for the studio build only as I’ve already got a bunch of studio equipment (mics, analogue pre-amps, outboard recording gear, and instruments etc.).

I realise this in not a lot for a build from scratch, but I will be aiming to use as much recycled and on-site materials as possible. Add to that I’ll be doing much of the work myself, plus the intention to use natural building materials – some of which will be obtained from the property itself – so I feel this may be achievable.

Notes
I have invested in some resources (‘Master Handbook of Acoustics’, Rod Gervais’ ‘Home Recording Studio’) which I’m studying. My wife is a civil engineer with a keen interest in natural building materials, so has been assisting in collecting information about the above materials – not just for the acoustic properties, but also thermal properties.

Basically, I’m slowly getting my head around the differences between mass law, and absorption coefficients.

But before I get too far down the track researching the details of my proposed design (man, studio design is one big rabbit hole!) I was hoping to have some critical thinking applied at a high level first. Then I’m happy to research more.

Questions
1] Can’t find much info on this (in the forum, or online) – has anyone build a studio using natural earth building materials that could offer advice?
2] Can I better use the room size, and wall angles to maximise the space more efficiently (reduce nodes, improve quality of space) than my current design ? Keep in mind there's a post in the middle of the building to support the I-beam.
3] How realistic is it to achieve a 60bB reduction using 400 mm thick poured earth wall (which has a mass of approx. 1044 kg/m2 or total of 2,610 kg/m3), double-glazed (or doubled up) windows and ceiling treatment (is that reduction even possible in ceiling/roof) from a design perspective? Note the control room, vocal booth and drum booth will use room-within-a-room (MAM) design.
4] If I decide to have more windows/glass for the main live room - to ‘bring in’ the outside environment - what are some design strategies I should be researching/considering for this design?
5] In the main live room, if I want to design roof/ceiling with MAM (but not the exterior walls) how can I do this effectively?

Please let me know if I haven't provided enough detail or information to get this discussion started. Any help will be most graciously and humbly accepted.

Images
I've been designing in SketchUp, so have attached some initial images of the design.

Note: I have only drawn basic (2D) internal walls to give an idea of where they will go. I expect this will change once I have some feedback, and then will start to design wall frames, etc.

The Chop Shop v6 2span-1pier v1.png

The Chop Shop v6 2span-1pier v2.png

The Chop Shop v6 2span-1pier v3.png

The Chop Shop v6 2span-1pier v4.png

The Chop Shop v6 2span-1pier v5.png

The Chop Shop v6 2span-1pier v6.png

The Chop Shop v6 2span-1pier v7.png

The Chop Shop v6 2span-1pier v8.png

The Chop Shop v6 2span-1pier v9.png

The Chop Shop v6 2span-1pier v10.png

The Chop Shop v6 2span-1pier v11.png

The Chop Shop v6 2span-1pier v12.png

The Chop Shop v6 2span-1pier v13.png

The Chop Shop v6 2span-1pier v14.png

The Chop Shop v6 2span-1pier v15.png

The Chop Shop v6 2span-1pier - north.png
North Elevation

The Chop Shop v6 2span-1pier - south.png
South Elevation

The Chop Shop v6 2span-1pier - east.png
East Elevation



  • Similar Topics
    Statistics
    Last post

Who is online

Users browsing this forum: Bing [Bot] and 6 guests