Small control room design mk2
-
garethmetcalf
- Full Member
- Posts: 277
- Joined: Sun, 2020-Jan-19, 14:35
- Location: Derbyshire, Englad
Small control room design mk2
Hi all. This is my first post on this forum and I'm pleased that Stuart has set up this really helpful space. I set out a build diary before on another forum and received help from Stuart with my design at that time, that concluded in me commissioning him to fine tune my room. We ended up with good results (more of that later) but unfortunately personal situations led me to selling that house. A few years on and my partner and I are hoping that our house purchase completes within a couple of months, so I'm back to the virtual drawing board that is waking at 4am with a new thought about an inside out roof etc.
I am going to be breaking some of the forum rules in this post, because I don't have exact measurements yet as we don't own it and with the current social distancing restrictions I have been able to return. I did take a few measurements at our second viewing, but I am not convinced of their accuracy as it was dark and we did them quickly.
So, my name is Gareth and I am creating a design for a mixing room, mainly on my own but with some clients in attendance as well. I am aiming to create a room with as flat a frequency response as is feasible (within reason and budget) so that clients have a reason to come to the space rather than work in their own room. I will also offer some analogue outboard processing and summing for those that want it too.
For this room I will be building a single storey extension off the kitchen/diner at the back of our (hopefully) detached house near Nottingham in the East Midlands of England. The house is in a residential area and then terrain is flat. The garden is approximately 12.8m long x 6.8m wide and I am planning an extension that will sit in the bottom left hand corner of the garden.
The picture above shows a rough outline of the plot (alongside an image from google earth!) but I am not happy that the angle of the fence is correct (showing as 4 degrees on here). In order to allow for access to the back garden, the extension will have to run parallel to the fence, hence the wonky layout - with the extension being the angled bit showing as 3.58m x 4.66m. These outside dimensions are currently based around a set of final internal dimensions of 3.01m wide x 4.09m long x 2.15m high. These achieve the Louden 1:1.4:1.9 ratios so should be a good start for a small room.
Currently there is a patio where the extension will be sited and it will be accessed through a door from the kitchen/diner where there is currently a window (the left window in the picture below). The only unknown so far is the drains as I did see a manhole cover in that part of the patio. The following two pictures hopefully make more sense of the plot.
So, on to the questions and detail. At this point I'm interested in planning the construction method and exterior dimensions. I need to get back to the site to do some proper measurements before doing much in sketchup!
I plan to build a single storey flat roof extension using the warm roof design principle where the insulation is on the outside under an EPDM layer. There will be one door into the back of the room (from the dining room) and one window to the right hand wall (I'm hoping to reuse the window that will be removed from the dining room). As long as the building is not more than 2.5m high I should be able to build it under permitted development regulations which mean I don't require planning permission.
Construction will be either a concrete block outer wall (sealed on the inside as per the discussion in John Steel's thread on here) and a double plasterboard/stud wall inner leaf, or a normal UK construction of a cavity wall consisting of block-cavity-block. Foundations and a concrete floor will need to be dug and installed.
Once I get to it, the internal design and treatment will be based on my previous build, which comprised soffit mounted Mackie HR824 monitors, deep absorption across the back wall and wall to ceiling corners (and inside the soffit top), hangers underneath the soffit and then panel absorption along the left and right walls. I propose to build an inside out ceiling and have a laminate wood floor. A lot more detail and planning will happen with this, but not quite yet. To give an idea, pictures of my previous build are below which was based around a room that already existed, which was 2.4m wide, 2.4m high (yes, the same) and 5.4m long. With Stuart's help we got a respectable sound in the room as set out in the graphs below, especially for a small room with two identical dimensions.
At this stage I have a few questions:
1. Given that this room will only be used for mixing, so the SPL levels will be under 100dB, would the standard UK method of concrete block - cavity with insulation - concrete block be OK? I know it will be easier to explain this build to the builder. If so, are the wall ties significant in transfer of sound between the 'leaves'?
2. Am I really limiting myself by doing for 2.15m high inside dimension, which is dictated by the maximum external hight of 2.5m?
3. If so, would building down be a possibility?
4. You're right I haven't mentioned budget. Hopefully less than £15,000
Thanks!
I am going to be breaking some of the forum rules in this post, because I don't have exact measurements yet as we don't own it and with the current social distancing restrictions I have been able to return. I did take a few measurements at our second viewing, but I am not convinced of their accuracy as it was dark and we did them quickly.
So, my name is Gareth and I am creating a design for a mixing room, mainly on my own but with some clients in attendance as well. I am aiming to create a room with as flat a frequency response as is feasible (within reason and budget) so that clients have a reason to come to the space rather than work in their own room. I will also offer some analogue outboard processing and summing for those that want it too.
For this room I will be building a single storey extension off the kitchen/diner at the back of our (hopefully) detached house near Nottingham in the East Midlands of England. The house is in a residential area and then terrain is flat. The garden is approximately 12.8m long x 6.8m wide and I am planning an extension that will sit in the bottom left hand corner of the garden.
The picture above shows a rough outline of the plot (alongside an image from google earth!) but I am not happy that the angle of the fence is correct (showing as 4 degrees on here). In order to allow for access to the back garden, the extension will have to run parallel to the fence, hence the wonky layout - with the extension being the angled bit showing as 3.58m x 4.66m. These outside dimensions are currently based around a set of final internal dimensions of 3.01m wide x 4.09m long x 2.15m high. These achieve the Louden 1:1.4:1.9 ratios so should be a good start for a small room.
Currently there is a patio where the extension will be sited and it will be accessed through a door from the kitchen/diner where there is currently a window (the left window in the picture below). The only unknown so far is the drains as I did see a manhole cover in that part of the patio. The following two pictures hopefully make more sense of the plot.
So, on to the questions and detail. At this point I'm interested in planning the construction method and exterior dimensions. I need to get back to the site to do some proper measurements before doing much in sketchup!
I plan to build a single storey flat roof extension using the warm roof design principle where the insulation is on the outside under an EPDM layer. There will be one door into the back of the room (from the dining room) and one window to the right hand wall (I'm hoping to reuse the window that will be removed from the dining room). As long as the building is not more than 2.5m high I should be able to build it under permitted development regulations which mean I don't require planning permission.
Construction will be either a concrete block outer wall (sealed on the inside as per the discussion in John Steel's thread on here) and a double plasterboard/stud wall inner leaf, or a normal UK construction of a cavity wall consisting of block-cavity-block. Foundations and a concrete floor will need to be dug and installed.
Once I get to it, the internal design and treatment will be based on my previous build, which comprised soffit mounted Mackie HR824 monitors, deep absorption across the back wall and wall to ceiling corners (and inside the soffit top), hangers underneath the soffit and then panel absorption along the left and right walls. I propose to build an inside out ceiling and have a laminate wood floor. A lot more detail and planning will happen with this, but not quite yet. To give an idea, pictures of my previous build are below which was based around a room that already existed, which was 2.4m wide, 2.4m high (yes, the same) and 5.4m long. With Stuart's help we got a respectable sound in the room as set out in the graphs below, especially for a small room with two identical dimensions.
At this stage I have a few questions:
1. Given that this room will only be used for mixing, so the SPL levels will be under 100dB, would the standard UK method of concrete block - cavity with insulation - concrete block be OK? I know it will be easier to explain this build to the builder. If so, are the wall ties significant in transfer of sound between the 'leaves'?
2. Am I really limiting myself by doing for 2.15m high inside dimension, which is dictated by the maximum external hight of 2.5m?
3. If so, would building down be a possibility?
4. You're right I haven't mentioned budget. Hopefully less than £15,000
Thanks!
- Soundman2020
- Site Admin
- Posts: 905
- Joined: Thu, 2019-Sep-19, 22:58
- Location: Santiago, Chile
- Contact:
Small control room design mk2
Hi Gareth! Welcome to the forum!
I'm really glad you found us.
It's a pity you had to move from the other place: that studio turned out quite nicely, especially considering the limitations imposed by the room. But this one can be better!
As long as that side is not within 2m of the property line, you are OK.
In fact, you can actually go up to 4m height at the apex for a gable-type roof (what they call a "dual pitch" roof in the regulations). The 2.5m limit only applies if your studio will be within 2m of the property line: otherwise 3m for a shed root, or 4m for a gabled roof... In all cases, the eves can't be higher than 2.5m, but be able to go up to 3m does mean you can get some extra ceiling height inside.
It always ends up costing more than you ever expected...
I'm looking forward to seeing your plan come together again, like it did last time! This is going to be a good thread, for sure....
- Stuart -
I'm really glad you found us.It's a pity you had to move from the other place: that studio turned out quite nicely, especially considering the limitations imposed by the room. But this one can be better!
No problem! Totally understandable, given the current situation.I am going to be breaking some of the forum rules in this post, because I don't have exact measurements yet as we don't own it and with the current social distancing restrictions I have been able to return.
Any chance you can make it bigger? 12 m2 floor area is small... a little smaller than your previous place in fact. I'm sure you remember the ITU and EBU specs, that call for 20m2 floor area as their recommended smallest. That's not to say that you can't get usable acoustics in there! The smallest room I've done (so far) was around 9m2, and the worked out quiet well. So 12 m2 is do-able (you already did it once!), but more would be better, if you can figure it out.a set of final internal dimensions of 3.01m wide x 4.09m long x 2.15m high.
With a small room like that, don't worry too much about ratios. The top priority should be to maximize room volume, even if that means a less good ratio.These achieve the Louden 1:1.4:1.9 ratios
There's a few "tricks" that you can use with permitted development, assuming you are under Class E. For example, you can use a shed roof and get up to 3m on one side of the building:As long as the building is not more than 2.5m high I should be able to build it under permitted development regulations which mean I don't require planning permission.
As long as that side is not within 2m of the property line, you are OK.
In fact, you can actually go up to 4m height at the apex for a gable-type roof (what they call a "dual pitch" roof in the regulations). The 2.5m limit only applies if your studio will be within 2m of the property line: otherwise 3m for a shed root, or 4m for a gabled roof... In all cases, the eves can't be higher than 2.5m, but be able to go up to 3m does mean you can get some extra ceiling height inside.
First impression? You are probably OK like that. However, in order to maximize your actual studio interior, I'd suggest doing the concrete block outer wall, then a stud-frame inner wall with high density sheathing, such as MDF and fiber-cement board, rather than drywall. That also maximizes space, since you can get the same mass in a thinner wall. Every cm counts here! How thick are your concrete blocks? Is it one of these?1. Given that this room will only be used for mixing, so the SPL levels will be under 100dB, would the standard UK method of concrete block - cavity with insulation - concrete block be OK? I know it will be easier to explain this build to the builder. If so, are the wall ties significant in transfer of sound between the 'leaves'?
Ahh, but I think you might be short-changing yourself! You can get more than 2.15 inside, with that 2.5 height outside at the eaves! That's the key: you can go higher in the middle: up to 4m.... it's the eaves that have to be 2.5m.2. Am I really limiting myself by doing for 2.15m high inside dimension, which is dictated by the maximum external hight of 2.5m?
Definitely! Have you seen Tom's thread? viewtopic.php?f=6&t=32 He went down quite a bit.3. If so, would building down be a possibility?
I'm sure you already know this, but all budgets for home studios are basically just wishful thinking....4. You're right I haven't mentioned budget. Hopefully less than £15,000
I'm looking forward to seeing your plan come together again, like it did last time! This is going to be a good thread, for sure....
- Stuart -
-
garethmetcalf
- Full Member
- Posts: 277
- Joined: Sun, 2020-Jan-19, 14:35
- Location: Derbyshire, Englad
Small control room design mk2
Hi Stuart thanks for the reply. Your images haven't come through?
I will do some more research on the permitted development but I think the outside wall of my extension will be within 1m never mind 2m of the fence to the neighbours.
Thanks
Gareth
I will do some more research on the permitted development but I think the outside wall of my extension will be within 1m never mind 2m of the fence to the neighbours.
Thanks
Gareth
-
garethmetcalf
- Full Member
- Posts: 277
- Joined: Sun, 2020-Jan-19, 14:35
- Location: Derbyshire, Englad
Small control room design mk2
So it turns out that I failed the first test! I did not do enough research before making my first post, and have since learned there were gaps in my knowledge of permitted development planning.
Having spoken to my local council, I've learned that for an extension I'll need planning permission because it will be attached to both the previous extension and original house, as well as being over 4m into the garden. This will take at least 8 weeks.
My partner and I have been talking and we are now thinking that a separate building at the bottom of the garden might be better. This could be completed under permitted development (thus taking away that 8 week delay), and I could probably eek more space out of such a build without compromising the garden as much.
I had considered such a building initially but have been put off because UK weather would mean having to go up and down the garden in the rain. However, the lasting effects of Covid-19 will likely require me to work from home several days a week, so this studio will also be my home office. If the building was the full width of the garden I could fit in an entrance hallway and small toilet and sink area, meaning walking to the house in the rain would be less frequent! This would also be better for bringing in clients as they wouldn't need to go into our house at all. Downside - this could cost more.
So now I'm confused about the angled roof as this isn't something I've looked at in depth before. The crude designs below are to illustrate my questions at the end, and are a view of the side of the studio, ie the shortest wall.
My questions now are:
1. If I build a garden building with a shed style single pitch roof as in design C above, how would I design the inside ceiling - would that be angled too as in the picture? This would mean the symmetry would be off with the ceiling higher on the right hand side of the mix position compared to the left.
2. If I went for a dual pitch roof, would the inside ceiling be higher in the middle (parallel to the floor) and have some angles either side (as in design B), or be fully angled (as in design A)?
Having spoken to my local council, I've learned that for an extension I'll need planning permission because it will be attached to both the previous extension and original house, as well as being over 4m into the garden. This will take at least 8 weeks.
My partner and I have been talking and we are now thinking that a separate building at the bottom of the garden might be better. This could be completed under permitted development (thus taking away that 8 week delay), and I could probably eek more space out of such a build without compromising the garden as much.
I had considered such a building initially but have been put off because UK weather would mean having to go up and down the garden in the rain. However, the lasting effects of Covid-19 will likely require me to work from home several days a week, so this studio will also be my home office. If the building was the full width of the garden I could fit in an entrance hallway and small toilet and sink area, meaning walking to the house in the rain would be less frequent! This would also be better for bringing in clients as they wouldn't need to go into our house at all. Downside - this could cost more.
So now I'm confused about the angled roof as this isn't something I've looked at in depth before. The crude designs below are to illustrate my questions at the end, and are a view of the side of the studio, ie the shortest wall.
My questions now are:
1. If I build a garden building with a shed style single pitch roof as in design C above, how would I design the inside ceiling - would that be angled too as in the picture? This would mean the symmetry would be off with the ceiling higher on the right hand side of the mix position compared to the left.
2. If I went for a dual pitch roof, would the inside ceiling be higher in the middle (parallel to the floor) and have some angles either side (as in design B), or be fully angled (as in design A)?
- Soundman2020
- Site Admin
- Posts: 905
- Joined: Thu, 2019-Sep-19, 22:58
- Location: Santiago, Chile
- Contact:
Small control room design mk2
I'm no expert on Permitted Development, but I have looked into it for a few projects for clients in the UK, and there's a LOT of confusing stuff in there! I'd suggest downloading the latest "Technical Guidance" document, and work your way through it. The version I have is from 2017, so it might be a bit out of date. Try to get the most up-to-date one, as they change it all the time.
However, there is no prohibition on building an extension attached to the house. That is allowed, not prohibited, but there are restrictions that probably do rule you out. That falls under "Class A" of the permitted development regulations. What you are proposing now, as a stand-alone structure, falls under "Class E". There's several other classes too, but A and E are the ones you will likely need to research. The rules are different in each case.
That said, it seems that the problem you ran into with your local council is this; "...it will be attached to both the previous extension and original house, as well as being over 4m into the garden". Both of those are "no-go's" under Class A: you can't add on another extension to an existing extension, and no extension can go more than 4m into the garden. So that's two strikes: It seems that your only option is Class E.
I'm not sure how much distance you need to ave between the existing and new structure for it to be considered Class E, but I'm wondering if you could just have a couple of meter away, then have a covered "breezeway" joining them: basically just a light-weight roof with no walls, so at least you don't get wet on your walk out there and back?
There's several ways you could do it. I would suggest checking again with the Permitted Development regs and also your local council people, to see how large you can make the building (total area), how close you can get to the property line, and how high your eaves and peak can be. Once you have that, do a very simple model in SketchUp, and see what you can come up with that meets the regs and fits your needs. Once you have the basic shape of the biggest possible shell, then the interior layout might start suggesting itself.
- Stuart -
However, there is no prohibition on building an extension attached to the house. That is allowed, not prohibited, but there are restrictions that probably do rule you out. That falls under "Class A" of the permitted development regulations. What you are proposing now, as a stand-alone structure, falls under "Class E". There's several other classes too, but A and E are the ones you will likely need to research. The rules are different in each case.
That said, it seems that the problem you ran into with your local council is this; "...it will be attached to both the previous extension and original house, as well as being over 4m into the garden". Both of those are "no-go's" under Class A: you can't add on another extension to an existing extension, and no extension can go more than 4m into the garden. So that's two strikes: It seems that your only option is Class E.
That sounds like a plan! But do check the regs there as well: There's still a limit on the total area you can have, and also limits on how close it can be to the property line, and also on how much of the total land area you can use... lots of complications. You might be able to make the build more trapezoid in shape, so the walls follow the property lines better, to maximize height and area.I could probably eek more space out of such a build without compromising the garden as much.
I had considered such a building initially but have been put off because UK weather would mean having to go up and down the garden in the rain.
I'm not sure how much distance you need to ave between the existing and new structure for it to be considered Class E, but I'm wondering if you could just have a couple of meter away, then have a covered "breezeway" joining them: basically just a light-weight roof with no walls, so at least you don't get wet on your walk out there and back?
Depending on how you arrange it, and which way the shed roof runs, any of your options might be valid. For example, if you have the shed roof running lengthways down the building, instead of across it, then you could arrange the control room so the low side of the roof is at the front, over the speakers, and the higher side is behind you, for the client couch. That would work well, acoustically. Or if you can't do that for whatever reason, then either your "A" or "B" diagrams would be options. I would suggest going with "B", as that allows you space above the middle of the room for your HVAC ducts and silencers, so they don't take up space inside the room itself.So now I'm confused about the angled roof as this isn't something I've looked at in depth before. The crude designs below are to illustrate my questions at the end, and are a view of the side of the studio,
There's several ways you could do it. I would suggest checking again with the Permitted Development regs and also your local council people, to see how large you can make the building (total area), how close you can get to the property line, and how high your eaves and peak can be. Once you have that, do a very simple model in SketchUp, and see what you can come up with that meets the regs and fits your needs. Once you have the basic shape of the biggest possible shell, then the interior layout might start suggesting itself.
- Stuart -
-
garethmetcalf
- Full Member
- Posts: 277
- Joined: Sun, 2020-Jan-19, 14:35
- Location: Derbyshire, Englad
Small control room design mk2
A month has passed and I've made some progress with my designs. A garden building has been deemed the most sensible option, and I've had conversations with local planning people and an architect family friend. The view from the house is currently:
I've submitted an application for a Lawful Development Certificate from the local planning department, that essentially will confirm (hopefully) that my plans do fit the permitted development rules. If not, it will be the first step towards a planning application, so it seems to be time and money well spent.
The plan is a building the full width of the garden, with an entrance lobby, a toilet and sink and a studio room. The overall dimensions of the building will be 7m wide (at the front) and 3.72m deep. The garden is slightly narrower at the far end than at the house end, so the building will be slightly trapezoid on the outside.
From ground level the height at the front will be 2.5m, and slightly less at the back to allow for rain to flow off the roof. The concrete floor will be 35cm lower than ground level, to maximise internal height. Therefore the floor in the lobby will step down a couple of times.
The construction will be concrete block and brick from the concrete pad up to about 15cm above ground level, and from there a stud frame with OSB and larch cladding. I'm planning on one layer of 18mm OSB3, a vapour barrier and then 21mm thick larch cladding (mounted on battens), but if people think I need to double up on the OSB that can be done. There will be a warm roof, so 18mm OSB3 atop the joists, a plastic membrane, 10cm of PIR insulation, an 11mm OSB3 layer and finally an EPDM covering.
The lobby and bathroom will have double layer plasterboard mounted directly to the outside stud frame, but the studio room will be a room in a room with its own stud frame and double layer plasterboard or OSB around the outside of the frame. It will have its own joists and an inside out ceiling, using some kind of modular design. I will need to put a vapour barrier on the inside of the external stud wall, once some insulation has gone in the stud cavities.
The internal dimensions of the studio room will be 3.34m wide, 5.05m long (deep) and 2.4m high, giving nearly 17m2 of floor and 40m3 volume. This is about the best I can squeeze out of the space, I think.
Airflow will be managed through silencers mounted between the joists of both the roofs (the external roof joists and the studio roof joists), connected via a short piece of flexible ducting.
I have followed Stuarts notes for the speaker positioning and soffit design, and come up with the following:
- speakers mounted in a 1.2m x 1.2m soffit (off centre)
- centre of the speaker 28% of the width of the room (at 0.94m)
- my head will be at 35% of the room length (1.77m)
- speakers angled at 28 degrees so they intersect about 30cm behind my head
I've not done much more with the studio room design but I feel pretty happy with where I'm at.
In case you want to look at it, here is the SKB file:
My current questions are:
1. Can I use PIR insulation in the stud bay cavities of the outside wall, or would rockwool be better?
2. Am I right to place the vapour barrier after this insulation, before the insulation filling the air gap between the two leaves?
3. Does my speaker/soffit location look the best it could be in the space?
I've submitted an application for a Lawful Development Certificate from the local planning department, that essentially will confirm (hopefully) that my plans do fit the permitted development rules. If not, it will be the first step towards a planning application, so it seems to be time and money well spent.
The plan is a building the full width of the garden, with an entrance lobby, a toilet and sink and a studio room. The overall dimensions of the building will be 7m wide (at the front) and 3.72m deep. The garden is slightly narrower at the far end than at the house end, so the building will be slightly trapezoid on the outside.
From ground level the height at the front will be 2.5m, and slightly less at the back to allow for rain to flow off the roof. The concrete floor will be 35cm lower than ground level, to maximise internal height. Therefore the floor in the lobby will step down a couple of times.
The construction will be concrete block and brick from the concrete pad up to about 15cm above ground level, and from there a stud frame with OSB and larch cladding. I'm planning on one layer of 18mm OSB3, a vapour barrier and then 21mm thick larch cladding (mounted on battens), but if people think I need to double up on the OSB that can be done. There will be a warm roof, so 18mm OSB3 atop the joists, a plastic membrane, 10cm of PIR insulation, an 11mm OSB3 layer and finally an EPDM covering.
The lobby and bathroom will have double layer plasterboard mounted directly to the outside stud frame, but the studio room will be a room in a room with its own stud frame and double layer plasterboard or OSB around the outside of the frame. It will have its own joists and an inside out ceiling, using some kind of modular design. I will need to put a vapour barrier on the inside of the external stud wall, once some insulation has gone in the stud cavities.
The internal dimensions of the studio room will be 3.34m wide, 5.05m long (deep) and 2.4m high, giving nearly 17m2 of floor and 40m3 volume. This is about the best I can squeeze out of the space, I think.
Airflow will be managed through silencers mounted between the joists of both the roofs (the external roof joists and the studio roof joists), connected via a short piece of flexible ducting.
I have followed Stuarts notes for the speaker positioning and soffit design, and come up with the following:
- speakers mounted in a 1.2m x 1.2m soffit (off centre)
- centre of the speaker 28% of the width of the room (at 0.94m)
- my head will be at 35% of the room length (1.77m)
- speakers angled at 28 degrees so they intersect about 30cm behind my head
I've not done much more with the studio room design but I feel pretty happy with where I'm at.
In case you want to look at it, here is the SKB file:
My current questions are:
1. Can I use PIR insulation in the stud bay cavities of the outside wall, or would rockwool be better?
2. Am I right to place the vapour barrier after this insulation, before the insulation filling the air gap between the two leaves?
3. Does my speaker/soffit location look the best it could be in the space?
- Starlight
- Full Member
- Posts: 482
- Joined: Wed, 2019-Sep-25, 12:52
- Location: Slovakia, Europe
- Contact:
Small control room design mk2
Looking at your picture of the larch cladding makes me think of the British weather and how, if that was my studio, how much help a little porch would be in the rain as I stand there fumbling for keys. Something small and simple, like this:
-
garethmetcalf
- Full Member
- Posts: 277
- Joined: Sun, 2020-Jan-19, 14:35
- Location: Derbyshire, Englad
Small control room design mk2
Hi Starlight
Indeed that might be an option. Currently I have the roof overhanging at the front by about 30cm, but I suppose that might not be enough to stand under and open the door...
I'll investigate and speak with the good lady, as it needs to look good from the house!
Gareth
Indeed that might be an option. Currently I have the roof overhanging at the front by about 30cm, but I suppose that might not be enough to stand under and open the door...
I'll investigate and speak with the good lady, as it needs to look good from the house!
Gareth
-
garethmetcalf
- Full Member
- Posts: 277
- Joined: Sun, 2020-Jan-19, 14:35
- Location: Derbyshire, Englad
Small control room design mk2
Hi
Since my previous post I have been talking to a family friend architect, who has given me helpful advice about foundations etc. I am still waiting confirmation from the council planning department about whether my plans are classed as permitted development, and even more frustratingly we still don't have a date for moving in as the mortgage companies have slowed to a covid-19 related crawl.
Anyway, the architect had a play with the plan in order to better fit the toilet in, and in his tweaking he splayed the long walls in the studio to make it as big as it can be. This can be seen in his picture below:
I hadn't thought to do this before, as I thought that a rectangular room was easier to predict and therefore easier to treat.
My question is: is it better to have a slightly bigger room with angled side walls, or a slightly smaller room with parallel walls?
Thanks!
Gareth
Since my previous post I have been talking to a family friend architect, who has given me helpful advice about foundations etc. I am still waiting confirmation from the council planning department about whether my plans are classed as permitted development, and even more frustratingly we still don't have a date for moving in as the mortgage companies have slowed to a covid-19 related crawl.
Anyway, the architect had a play with the plan in order to better fit the toilet in, and in his tweaking he splayed the long walls in the studio to make it as big as it can be. This can be seen in his picture below:
I hadn't thought to do this before, as I thought that a rectangular room was easier to predict and therefore easier to treat.
My question is: is it better to have a slightly bigger room with angled side walls, or a slightly smaller room with parallel walls?
Thanks!
Gareth
Small control room design mk2
Greetings Gareth,
Before you make any decisions read:
viewtopic.php?f=16&t=428
All the best,
Paul
My question is: is it better to have a slightly bigger room with angled side walls, or a slightly smaller room with parallel walls?
Before you make any decisions read:
viewtopic.php?f=16&t=428
All the best,
Paul
-
garethmetcalf
- Full Member
- Posts: 277
- Joined: Sun, 2020-Jan-19, 14:35
- Location: Derbyshire, Englad
Small control room design mk2
Thanks Paul. I've just read the linked article and that confirmed what I'd previously thought.
However, in my case the room would be bigger for having angled walls, not smaller. I doubt, though, that the increase in floor space for angled walls would be enough to overcome the many potential downsides as illustrated in that article.
Cheers
Gareth
However, in my case the room would be bigger for having angled walls, not smaller. I doubt, though, that the increase in floor space for angled walls would be enough to overcome the many potential downsides as illustrated in that article.
Cheers
Gareth
Small control room design mk2
Greetings Gareth,
Yes, this was what I was getting at. I should have been more clear. Sorry about that.
All the best,
Paul
the many potential downsides
Yes, this was what I was getting at. I should have been more clear. Sorry about that.
All the best,
Paul
-
garethmetcalf
- Full Member
- Posts: 277
- Joined: Sun, 2020-Jan-19, 14:35
- Location: Derbyshire, Englad
Small control room design mk2
It's been quite a while since I last posted, but as we've finally moved into our new house I've been able to make some progress on the design.
I now have some more accurate measurements of the garden, and having spent a couple of weeks here I've amended my design a bit.
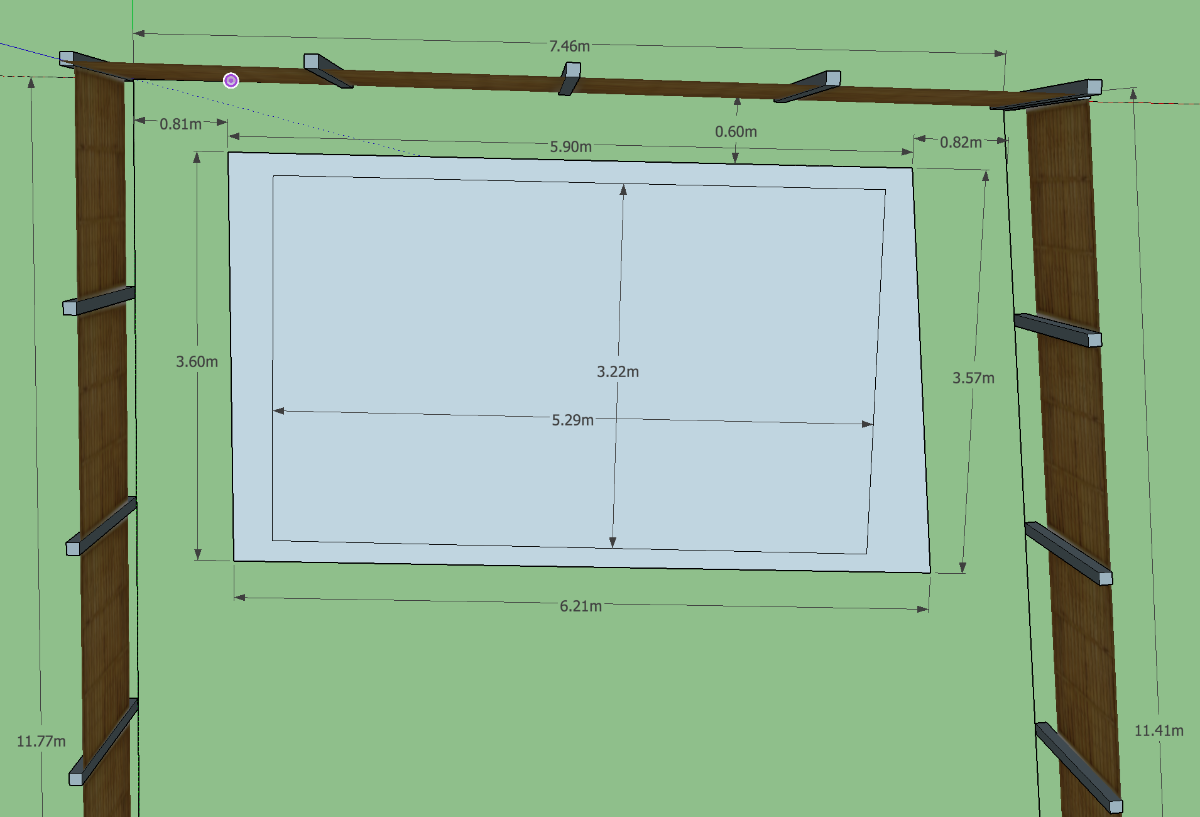
The dimensions of the outside of the building, and the inside dimensions of the studio room are shown in the diagram below (3.22m wide, 5.29m long, 2.3m high). I have decided not to bother putting a toilet and lobby area in to the building, for several reasons, so the design is now more straightforward.
There will be a glazed door and window on the longest wall, to allow plenty of natural light in, speakers mounted in soffits on the left hand wall, leaving the whole back wall (the right hand one) free for treatment.
I have started a very vague plan for the room, as can be seen in the screenshot below. Air silencers will be located in the gaps between the joists for the ceiling(s) and the whole building will be sunk into the ground so that the top of the concrete block is 350mm below ground level. This will give me enough head height whilst staying within the permitted development rules. The highest part of the building (the front) will be 2.4m about ground.
The next steps for me are to speak to the landscaper who lives next door about the work, as we're also doing some garden re-modelling. As the only access down the side of the building is 60cm wide, I hope that he's up for the excavation work and can take the 15m3 or so of earth out via his own garden!
I now have some more accurate measurements of the garden, and having spent a couple of weeks here I've amended my design a bit.
The dimensions of the outside of the building, and the inside dimensions of the studio room are shown in the diagram below (3.22m wide, 5.29m long, 2.3m high). I have decided not to bother putting a toilet and lobby area in to the building, for several reasons, so the design is now more straightforward.
There will be a glazed door and window on the longest wall, to allow plenty of natural light in, speakers mounted in soffits on the left hand wall, leaving the whole back wall (the right hand one) free for treatment.
I have started a very vague plan for the room, as can be seen in the screenshot below. Air silencers will be located in the gaps between the joists for the ceiling(s) and the whole building will be sunk into the ground so that the top of the concrete block is 350mm below ground level. This will give me enough head height whilst staying within the permitted development rules. The highest part of the building (the front) will be 2.4m about ground.
The next steps for me are to speak to the landscaper who lives next door about the work, as we're also doing some garden re-modelling. As the only access down the side of the building is 60cm wide, I hope that he's up for the excavation work and can take the 15m3 or so of earth out via his own garden!
Small control room design mk2
Greetings Gareth,
Congratulations on moving in!
I guess you have to take down sections of fence in order to fix anything, yes?
All the best,
Paul
Congratulations on moving in!
the only access down the side of the building is 60cm wide
I guess you have to take down sections of fence in order to fix anything, yes?
All the best,
Paul
-
garethmetcalf
- Full Member
- Posts: 277
- Joined: Sun, 2020-Jan-19, 14:35
- Location: Derbyshire, Englad
Small control room design mk2
Hi Paul
Yes I think that’ll be the case! I’m leaving enough room around the building to be able to build and maintain it, but the gap between my house and the fence of 60cm means getting materials and tools in and out of the garden is a pain.
With any luck my neighbour will be happy to do the excavation and we can take out a fence panel between our gardens to move in a mini digger and most importantly remove the excavated earth. If not it’ll be taking a mini digger through the house and hiring some builders with a narrow wheelbarrow!
Cheers
Gareth
Yes I think that’ll be the case! I’m leaving enough room around the building to be able to build and maintain it, but the gap between my house and the fence of 60cm means getting materials and tools in and out of the garden is a pain.
With any luck my neighbour will be happy to do the excavation and we can take out a fence panel between our gardens to move in a mini digger and most importantly remove the excavated earth. If not it’ll be taking a mini digger through the house and hiring some builders with a narrow wheelbarrow!
Cheers
Gareth
-
- Similar Topics
- Statistics
- Last post
-
-
Garage to single room studio Attachment(s)
by tl_balk » Fri, 2025-Apr-25, 14:59 » in RECORDING STUDIO DESIGN -
Replies: 7
Views: 156293 -
by gullfo
View the latest post
Tue, 2025-May-06, 16:03
-
-
-
Insulation selection for inside out room
by norg » Fri, 2025-Feb-28, 14:10 » in RECORDING STUDIO ACOUSTICS AND TREATMENT -
Replies: 2
Views: 20749 -
by norg
View the latest post
Fri, 2025-Feb-28, 17:40
-
-
-
What is the best sounding room in the world for drums?
by Diegel » Fri, 2025-Feb-28, 13:48 » in RECORDING STUDIO DESIGN -
Replies: 2
Views: 22051 -
by Diegel
View the latest post
Fri, 2025-Feb-28, 18:02
-
-
-
Practice room for rental house in Japan Attachment(s)
by osamushaku » Wed, 2025-Jul-23, 03:02 » in OTHER ACOUSTIC SPACES -
Replies: 3
Views: 54811 -
by gullfo
View the latest post
Fri, 2025-Jul-25, 14:25
-
Who is online
Users browsing this forum: No registered users and 2 guests