CNR Studio Design – Basement, One-Room

Start your own studio thread here: Goals, plans, layouts, treatment, speakers, questions, queries, comments...
claudegriswold
New Member
Posts: 6
Joined: Tue, 2023-Oct-31, 01:49
Location: LaGrange, Ohio, USA (Cleveland area)

CNR Studio Design – Basement, One-Room

#1

Postby claudegriswold » Tue, 2023-Oct-31, 13:38

Hi! Clark here, writing from LaGrange, Ohio USA, 30 minutes southwest of Cleveland. My wife and I moved here from downtown Chicago four months ago. For the last 25+ years, I’ve lived in one-bedroom condos in the city, most of that time with my wife in our one-bedroom loft condo two blocks from the Sears Tower. Living in the city was fun in a lot of ways, but I didn't have any separated space to work on music. In June, we moved to a house on a golf course in a small community in Ohio surrounded by miles of farmland. It’s a huge change of scenery, and it’s really great. Best of all, I now have a basement space to turn into a studio.

I’ve been exploring this forum for a couple of months now, and I’m a big fan. I need some trustworthy advice to move ahead with my project, and I'm optimistic that I’ve found the right place.

Here’s the outline of what follows:

  1. Background
  2. Goals & Priorities
  3. The Space
  4. Existing Structure
  5. Pre-Construction Sound Transmission Test Results
  6. Capabilities & Preparations to Date
  7. Overall Plan & Room Dimensions
  8. Wall & Ceiling Assemblies
  9. Wrap-Up
  10. Compiled Questions

1. Background

Twenty-five years ago, I was playing in rock bands in the clubs in Chicago—mostly guitar and bass with some vocals. With one group, we did some recording at an indie studio, and good things were starting to happen. Then, my fingers started going numb, and between the progressing numbness in my hands and the disabling back pain I developed, I took a break from making music to get my body sorted out. 20 years later, after countless hours of yoga and every type of therapeutic treatment I could find, I was finally diagnosed with severe compression of my spinal cord in my neck and low back. It took eight more years and three super un-fun surgeries that involved sawing open substantial portions of my spine, but I’m now able to play again—happily, better than I could in my twenties. My desire to write, record and perform music is as strong as ever.


2. Goals & Priorities

I want a studio in my basement where I can write and record songs without bothering my wife upstairs. I want to be able to sing loudly and accompany myself on keys or guitar and not distract her from the TV on the first floor or wake her up on the second floor.

I expect that cranking up the volume of a full-band arrangement to inspiring levels might cause some sound transmission to the rest of the house. However, I do hope to get it so my voice, accompanied by a guitar or keyboard at serviceable volume, will be inaudible or at least negligible/unintelligible upstairs. For the sake of my creativity, I’d like to know that no one will overhear me while I’m belting out stream-of-consciousness nonsense.

My target transmission loss is at least 24 dB.

I want the acoustics in the studio to be decent for mixing, but I also want the room to sound good as a “band rehearsal room”—especially, to sound relatively clear and balanced while standing on the far side of the room from the speakers, playing guitar or bass on top of a loud track in progress while working out parts. My available space isn’t huge—about 17’ x 13.5’ x 8’ to start with—so I don’t expect pro studio acoustics, but I’m willing to work hard to make the room sound as good as it can.

I don’t want the studio to feel cramped, so I’d like to use as much of my available space as possible, and I’m willing to sacrifice a bit of sound quality to keep the room larger. If necessary, however, I will sacrifice some space if it means a significant improvement in sound isolation.

I want to start working with other musicians again soon, but that isn’t a significant concern for the studio design. The design that will meet my solo goals will be fine for two or three of us. I plan to have strong enough ventilation to keep the room comfortable for multiple people, and there’s a bathroom right at the top of the basement stairs. I will use it only as a personal/private studio (no commercial use).

I’d like to keep the budget to $10,000-$15,000.

It’s also important to me to preserve or enhance the resale value of the house. For that reason, I’d like the studio room to be able to work well as a home theater. Above all, I want to make sure I don’t do anything that might damage any part of the house through lumber expansion, joist deflection/damage, mold, etc.

Regarding process, I want to start by planning everything out well enough that I won’t have to redo anything. There was a time that I would have rushed into construction, but I’ve had enough of that particular type of self-inflicted aggravation.


3. The Space

My available space is in the basement of our two-story house, which was built in 2018. The construction is solid, and the foundation has so far proven reliably waterproof, even with six inches of rain the other night. (Still, I’ve had a battery-powered backup sump pump installed, and we’re looking at a whole-house backup generator, which we’ll probably get in the spring.)

The closest neighbors are 40 feet away on either side (more than it appears in the photo below). I’m not worried about sound transmitting out of the house from the basement and bothering anyone.

3-1 Photo of house.jpg
FIGURE 3-1. Photo of house, front elevation

3-2 Floor plan of house.png
FIGURE 3-2. Floor plan of house, 1st floor

Figure 3-2 is a photo of a framed floor plan that the original owners left for us. The space I have to work with is the area of the basement below the green highlighted area. Most of the first floor—including the family room, kitchen and morning room—is a single open space. Our bedroom is above the kitchen, two floors directly above the studio space.

Compared to the floor plan above, my design drawings are rotated 90 degrees counter-clockwise.

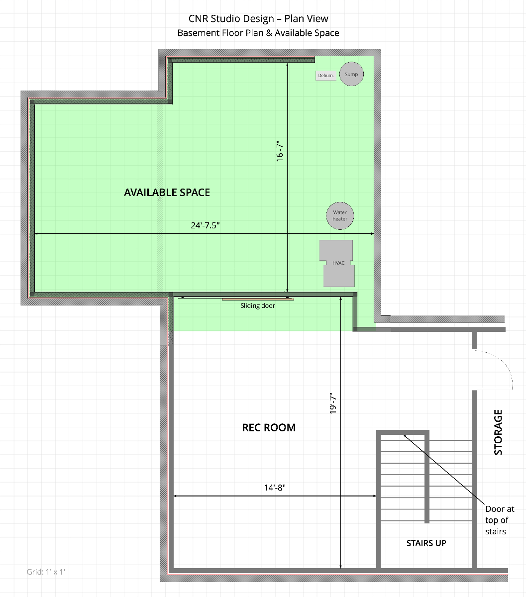
3-3 Basement Floor Plan & Available Space.png
FIGURE 3-3. Basement floor plan & available space

Figure 3-3 shows the available space within the rest of the basement, including the stairs to the first floor. The storage room about 8’ wide and is completely bounded by exterior walls beyond the edge of the drawing.


4. Existing Structure

4-1 Existing Structure.png
FIGURE 4-1. Existing structure of the available space

I’ve made measurements from the faces of existing drywall because I expect to keep most of those walls, though I’ll definitely replace a section of the wall with the sliding door.

Following are two photos of the space before the original owners moved out. The space is now empty. The flooring is 1/2”-thick dense rubber, which I plan to keep, at least for the time being.

4-2 Basement front-left.jpg
FIGURE 4-2. Photo of existing structure, front-left corner of available space

4-3 Basement front-right.jpg
FIGURE 4-3. Photo of existing structure, front-right corner of available space

As shown in figure 4-1, the space also includes the sump, water heater and HVAC system, which are off-camera in the above photos.


5. Pre-Construction Sound Transmission Test Results

I read the Soundman post “Myth: ‘STC is a good way of measuring studio soundproofing’,” and I found it super helpful regarding the importance of focusing on transmission loss (vs. STC) and testing the environment to determine actual needs.

I conducted a few tests. The following table describes the method I used and shows the results:

5-1 Sound Transmission Test Results.jpg
FIGURE 5-1. Sound transmission test results (Excel screenshot)

The results suggest that my target TL should be at least 24 db.

For the tests, I used my Event 20/20 bas monitors, which have a 70W HF amp driving a 1” tweeter and a 130W LF amp driving an 8” woofer. At some point, I’d like to bring in a subwoofer and maybe a couple of big PA speakers to get a punchier, deeper (if less accurate) sound going in the room. Also, if I’m standing across the room playing guitar or bass through an instrument amp in a better-treated space, I expect I’ll want the output level to be higher than my tested levels (which, in the studio space, I measured six feet from the monitors).

  • Given my planned uses of the studio, what would you recommend for my target transmission loss?

A few structural factors that I think are worth mentioning here:

  1. The ceiling of the studio space is currently unfinished.
  2. An exposed 8” HVAC duct runs the full length of the studio space between the joists (figure 5-2, below). At the front of the room near the speaker setup, the duct opens up into the morning room above the front of the studio space through a 9” x 4” floor register.
  3. The main house HVAC return duct (figure 5-3, below) is also in the same room as the planned studio space, and it opens into the kitchen/family room above the back of the studio space through a 19” x 15” wall vent.
  4. There are significant openings in all of the walls and doors between the studio space and the family room at the top of the basement stairs. In the first floor living area, the flanking transmission up the stairs is noticeable, though more sound seems to be coming through the floor and the ducts.

I was happy to discover that music at 100 dB in the studio space was completely inaudible on the opposite side of the 2nd floor, and the master bedroom, two floors directly above the studio space, only showed a bump of around 9 dB.

5-2 HVAC duct 1.jpg
FIGURE 5-2. HVAC duct in the ceiling of the studio space

5-3 HVAC duct 2.jpg
FIGURE 5-3. Main HVAC return duct, currently in the same room as the planned studio space


6. Capabilities & Preparations to Date

I’ve studied three books on studio design and construction—Home Recording Studio: Build It Like the Pros by Gervais, The Studio Builder’s Handbook by Owsinski & Moody, and Handbook of Sound Studio Construction by Everest & Pohlmann. I’ve also researched a bunch of topics online, including on this forum.

In addition to what’s included in this post, I’ve created:
  • Wall frame drawings
  • Ceiling isolation plan (clip & hat channel locations)
  • Room ventilation plan (incl. two baffles and a soffit plenum)
  • Electrical plan
  • A list of additional questions about various aspects of the project

I feel comfortable doing most of the work myself. I’ll ask an HVAC professional to help with a couple of things.

I already own most of the tools that I’ll need to do the construction. I do not have any of the building materials yet.


7. Overall Plan & Room Dimensions

I believe that my best plan looks like this:

7-1 Overall Plan - Furniture and Treatments.png
FIGURE 7-1. Overall plan for the studio

7-2 New Walls & Room Dimensions.png
FIGURE 7-2. New walls & room dimensions

I plan to build double-stud walls, and I plan to hang the ceiling from the overhead joists using sound isolation clips with hat channel.

The interior room dimensions of the planned studio are 16’-3” x 12’-3” x 7’-7.5”. Because the existing walls are slightly out of square, I’ve used the front edge of the beam as the reference for laying out the new walls (light brown frames) and everything else.

From bobgolds.com, the room modes calculator results for the planned dimensions:

7-3 Room Modes Calculator.png
FIGURE 7-3. Room modes calculator results for the planned room dimensions

Source: https://www.bobgolds.com/Mode/RoomModes.htm

  • Do you see any significant problems in the room modes report for the planned room dimensions?

I think the report looks good, but I’d appreciate an expert’s thoughts.


8. Walls & Ceiling Plan

My plan establishes the inner leaf and outer leaf as follows:

8-1 Inner Leaf & Outer Leaf.png
FIGURE 8-1: Inner leaf & outer leaf of planned room

You’ll notice that in the front half of the room, the plan places the outer leaf on the inside of the outer wall (the outer of part my double-stud wall), making the space between the inner leaf and outer leaf narrower than in a normal double-stud wall. Also in the front half of the room, the double-stud wall runs along and in close proximity to the exterior wall of the basement.

I know I'm creating a triple-leaf situation, but I hope it doesn't matter since the studio is in the basement. What I don't know is whether my plan might create resonances that will travel upstairs.

I REALLY hope that I won't have to remove the existing walls around the front half of the room. As I see it, removing them would add a lot of time and expense to the project and make it much more complicated to seal the outer leaf. I’m completely open to advice, though.

  • Does my plan for the inner leaf and outer leaf look OK?

By the way, for simplicity, I'm referring to the double-stud wall as consisting of an inner wall and an outer wall (as opposed to the exterior wall of the house).

Drawings of my planned wall and ceiling assemblies:

8-2 Walls & Ceiling – Front Wall.png
FIGURE 8-2. Detail – Walls & ceiling – Front wall

8-3 Walls & Ceiling – Left Wall, Front Half.png
FIGURE 8-3. Detail – Walls & ceiling – Left wall, front half of room

8-4 Walls & Ceiling – Left Wall, Back Half.png
FIGURE 8-4. Detail – Walls & ceiling – Left wall, back half of room

In the inner leaf, I’m including the OSB to make it easy to hang treatments and light fixtures wherever I want them. I’ve put the OSB between the two layers of drywall because I’d rather use shorter screws to hang things, and if I ever need to remove screws, I’ll be able to reseal it more reliably than if it were the deepest layer.

I’m planning on using sound isolation clips from PAC International. RSIC-1 and RSIC-DC04 are their model numbers.

  • Should I attach more mass to the bottom of the 1st-floor subfloor or treat the subfloor differently than shown in my drawings?
  • Should I treat the sides of the joists any differently than shown in my drawings?
  • Will the Rockwool and fire sealant work in this vertical configuration?
  • Is there any reason I should consider a different brand of sound isolation hardware vs. PAC International?
  • Is there any reason not to put the OSB between the two layers of drywall?
  • Is 5.5” R-21 insulation the right choice for the ceiling?
  • What R-rating of insulation should I use in the walls?
  • In the back half of the room where there’s more space between the inner leaf and outer leaf (as in figure 8-4), should I fill the entire space with fiberglass insulation? If so, what should I use there?

8-5 Beam Soffit.png
FIGURE 8-5. Detail – Beam soffit assembly

8-6 Beam Soffit With Clips.jpg
FIGURE 8-6. Plan view – Beam soffit (in two parts) with locations of sound isolation clips

As designed, the beam soffit will weigh 178 pounds. I plan to build and install it in two halves, each 6’-3” long and 89 pounds. As shown in figure 8-6, I plan to use six isolation clips to hang each half. The clips have an acoustical design load of 36 pounds each, but I figure I should use six clips per half to provide sufficient support at the ends and in the middle.

  • Is the beam soffit designed with sufficient structural integrity? (Do I need to reinforce the plywood along the length and/or at the RSIC attachment sites?)
  • Should I fill the voids of the beam with insulation?
  • Should I attach any type of acoustical treatment to outside of the beam soffit?

The two parts of the soffit will be secured to the ceiling with isolation clips when partially built, as the plywood frame only (46 pounds per half). The two layers of 5/8" drywall will be attached after the plywood frame is in place—during ceiling installation to nest the panel joints.


9. Wrap-Up

Three general questions to wrap up this post:

  • Will the studio, as currently planned, meet my goals?
  • Is anything overbuilt?
  • Do you see any problems with the design or any opportunities for improving it?

Thanks in advance for any advice you can offer!


10. Compiled Questions

Given my planned uses of the studio, what would you recommend for my target transmission loss? (Figure 5-1)
Do you see any significant problems in the room modes report for the planned room dimensions? (Figure 7-3)
Does my plan for the inner leaf and outer leaf look OK? (Figure 8-1)
Should I attach more mass to the bottom of the 1st-floor subfloor or treat the subfloor differently than shown in my drawings? (Figure 8-4)
Should I treat the sides of the joists any differently than shown in my drawings? (Figure 8-4)
Will the Rockwool and fire sealant work in this vertical configuration? (Figure 8-4)
Is there any reason I should consider a different brand of sound isolation hardware vs. PAC International? (Figures 8-2 through 8-5)
Is there any reason not to put the OSB between the two layers of drywall? (Figure 8-4)
Is 5.5” R-21 insulation the right choice for the ceiling? (Figure 8-4)
What R-rating of insulation should I use in the walls? (Figure 8-4)
In the back half of the room where there’s more space between the inner leaf and outer leaf, should I fill the entire space with fiberglass insulation? If so, what should I use there? (Figure 8-4)
Is the beam soffit designed with sufficient structural integrity? (Do I need to reinforce the plywood structure along the length and/or at the RSIC attachment sites?) (Figures 8-5 and 8-6)
Should I fill the voids of the beam with insulation? (Figure 8-5)
Should I attach any type of acoustical treatment to the outside of the beam soffit? (Figure 8-5)
Will the studio, as currently planned, meet my goals?
Is anything overbuilt?
Do you see any problems with the design or any opportunities for improving it?


Clark

User avatar
Soundman2020
Site Admin
Posts: 916
Joined: Thu, 2019-Sep-19, 22:58
Location: Santiago, Chile
Contact:

CNR Studio Design – Basement, One-Room

#2

Postby Soundman2020 » Wed, 2023-Nov-01, 08:09

Hi there Clark, and welcome to the Forum! :thu: :D

And WOW! What an excellent first post! Very detailed, very complete, with all your goals and current situation clearly explained. I wish all first posts were like yours! Awesome.

I'm going to take a while to work through that, and get beck to you with comments, in no specific order. (It's gonna take a little while, though, to absorb everything you posted...)

Stay tuned!


- Stuart -



User avatar
gullfo
Senior Member
Posts: 789
Joined: Fri, 2021-Jun-25, 14:50
Location: Panama City Beach, FL USA

CNR Studio Design – Basement, One-Room

#3

Postby gullfo » Wed, 2023-Nov-01, 14:29

as a quick note - consider having the OSB be the first layer to attach to the structural supports - hat channel etc as a) it tends to be more secure than gwb, and b) use a let-in into the exterior frame, attach the mass, then the isolator brace via long fasteners into the let-in rather than a ledger board attached to drywall. this way you have continuous mass layer.
as a general rule - do not use drywall as a structural component.



claudegriswold
New Member
Posts: 6
Joined: Tue, 2023-Oct-31, 01:49
Location: LaGrange, Ohio, USA (Cleveland area)

CNR Studio Design – Basement, One-Room

#4

Postby claudegriswold » Thu, 2023-Nov-02, 16:47

Soundman2020 wrote:Source of the post Hi there Clark, and welcome to the Forum! :thu: :D

And WOW! What an excellent first post!


Thanks, Stuart! I look forward to learning from you!


Clark

claudegriswold
New Member
Posts: 6
Joined: Tue, 2023-Oct-31, 01:49
Location: LaGrange, Ohio, USA (Cleveland area)

CNR Studio Design – Basement, One-Room

#5

Postby claudegriswold » Thu, 2023-Nov-02, 17:32

gullfo wrote:Source of the post as a quick note - consider having the OSB be the first layer to attach to the structural supports - hat channel etc as a) it tends to be more secure than gwb, and b) use a let-in into the exterior frame, attach the mass, then the isolator brace via long fasteners into the let-in rather than a ledger board attached to drywall. this way you have continuous mass layer.
as a general rule - do not use drywall as a structural component.


Thanks, Glenn! I can see now that the wall assembly will be more stable with the OSB as the first layer. I'll do it that way. Regarding your second point, in my drawings where I have boards on top of drywall (on the outer leaf), I was planning on fastening the boards directly to the wood frame with long screws through the existing 1/2" drywall. Does that suffice, or am I missing something? I might be reading your note incorrectly, but I don't understand the purpose of attaching to a let-in versus attaching directly to a stud. (As I understand it, a let-in is a diagonal brace between a top or bottom plate and a stud.)


Clark

User avatar
gullfo
Senior Member
Posts: 789
Joined: Fri, 2021-Jun-25, 14:50
Location: Panama City Beach, FL USA

CNR Studio Design – Basement, One-Room

#6

Postby gullfo » Fri, 2023-Nov-03, 12:18

the let-in adds structural support - could simply be blocks/nailers etc in the frame. then the mass layers. then you attach to the structure rather than drywall or structure supports on the drywall (although an option to prevent cracking on the top layer)



claudegriswold
New Member
Posts: 6
Joined: Tue, 2023-Oct-31, 01:49
Location: LaGrange, Ohio, USA (Cleveland area)

CNR Studio Design – Basement, One-Room

#7

Postby claudegriswold » Fri, 2023-Nov-03, 12:56

gullfo wrote:Source of the post the let-in adds structural support - could simply be blocks/nailers etc in the frame. then the mass layers. then you attach to the structure rather than drywall or structure supports on the drywall (although an option to prevent cracking on the top layer)


Got it. Thanks!


Clark

claudegriswold
New Member
Posts: 6
Joined: Tue, 2023-Oct-31, 01:49
Location: LaGrange, Ohio, USA (Cleveland area)

CNR Studio Design – Basement, One-Room

#8

Postby claudegriswold » Thu, 2024-Jan-25, 16:39

Hi Stuart, I hope you had happy and healthy holidays! I trust that you're interested in helping me and that you were busy and lost track of my post. I was going to follow up in November but decided that it wouldn't make sense for me to start building my studio until after the holidays, so I held off. I'm hoping to get started in the next few weeks now and would appreciate any advice you might offer!


Clark

User avatar
gullfo
Senior Member
Posts: 789
Joined: Fri, 2021-Jun-25, 14:50
Location: Panama City Beach, FL USA

CNR Studio Design – Basement, One-Room

#9

Postby gullfo » Thu, 2024-Jan-25, 17:53

one quick note: in drawing 8.4

1) i'd separate the 3x layers from the floor above from the exterior mass wall and simply seal that gap - just less things to transfer through the structure.
2) the additional single layer drywall on the sides of the joists aren't really needed, and if you find you have nails or other fasteners protruding from the subfloor, and cutting isn't an option (they're hardwood cut nails or simply risking loosing the upper floor layer) you can press on rigid insulation (blue board) onto those and then add the drywall. the blue board takes out the air gap and thus mostly eliminates a resonant chamber from the equation...

otherwise i would use the approach in 8.4 all around.



claudegriswold
New Member
Posts: 6
Joined: Tue, 2023-Oct-31, 01:49
Location: LaGrange, Ohio, USA (Cleveland area)

CNR Studio Design – Basement, One-Room

#10

Postby claudegriswold » Thu, 2024-Jan-25, 22:47

Will do! Thanks, Glenn!


Clark


  • Similar Topics
    Statistics
    Last post

Who is online

Users browsing this forum: No registered users and 40 guests