New Home Studio Build
- Soulshaker Studios
- Active Member
- Posts: 61
- Joined: Tue, 2019-Oct-01, 16:05
- Location: Richmond Virginia USA
New Home Studio Build
Hi All,
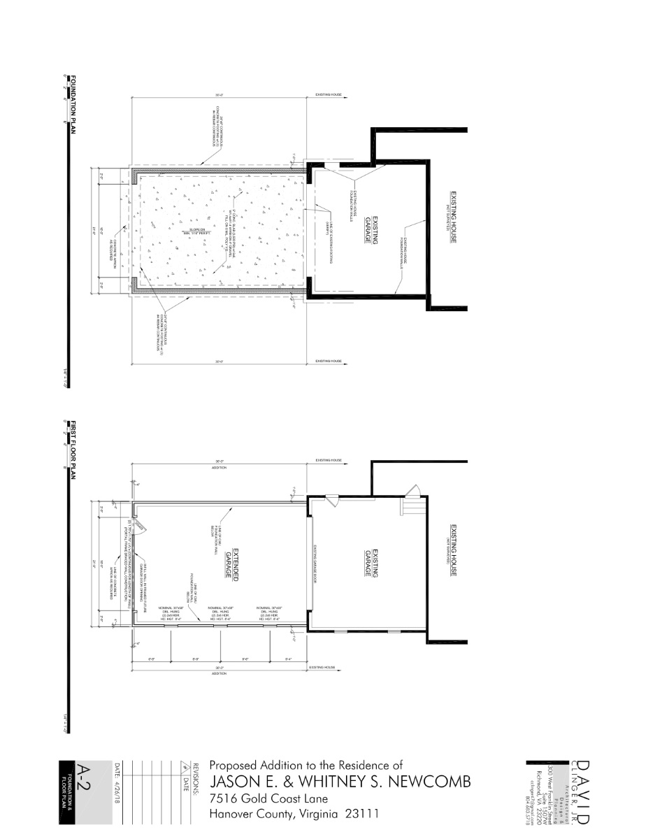
I'm building a home recording studio and feel blessed to have found this forum! I've spent some time learning from here and Rod Gervais's book as well. I added an addition to my existing attached garage, so far just the outer shell. I'm planning now to finish the inner section of addition which will be my tracking room and I will finish out the control room section in existing garage in the next phase. I want to build a 2 leaf wall system, room within a room. I have neighbors 130ft away and my attached house is bigger concern. I attached plans & pics of the outer shell we did and the proposed plans for internal room. I'm hoping to get a confirmation from the experts here that I'm on the right path. Thank you for your time & expertise,
Jason Newcomb
I'm building a home recording studio and feel blessed to have found this forum! I've spent some time learning from here and Rod Gervais's book as well. I added an addition to my existing attached garage, so far just the outer shell. I'm planning now to finish the inner section of addition which will be my tracking room and I will finish out the control room section in existing garage in the next phase. I want to build a 2 leaf wall system, room within a room. I have neighbors 130ft away and my attached house is bigger concern. I attached plans & pics of the outer shell we did and the proposed plans for internal room. I'm hoping to get a confirmation from the experts here that I'm on the right path. Thank you for your time & expertise,
Jason Newcomb
- Soundman2020
- Site Admin
- Posts: 905
- Joined: Thu, 2019-Sep-19, 22:58
- Location: Santiago, Chile
- Contact:
Re: New Home Studio Build
Hi there Jason, and a warm welcome to the Forum!
Glad you found us.
That's a nice looking space you have there. From what I can see on the plans, it seems to be 30' long by 21'6" wide, which is nearly 650 square feet. Also, your roof seems to be nice and high: 12'4" at the walls, rising to 19' at the peak. So this place has the makings of a really, really nice studio.
Congratulations!
The roof seems to be similar, with raised tie scissor trusses, OSB, and asphalt shingles?
Those trusses are really nice for a studio; that allows you to get your final inner-leaf ceilings as high as possible.
All around, this is looking pretty good.
Also, I imagine this is for commercial purposes, right? You plan to charge musicians for tracking / rehearsing, etc. If so, have you checked for any ADA requirements for the building, such as wheelchair access, wide doors, and suchlike? Just something that you should look into, if it is going to be used commercially. Not a big deal in your case, as you have plenty of space and could easily make any changes that might be needed, since you are just in the early stages right now.
So one thing you will definitely need to consider early on, is how to run all your signals from this live room (LR) to the control room (CR). Visualize how you would expect a typical session to run, where you would expect to have your instruments and musicians, and plan to have patchbays on the walls close to those locations, with cable runs back to the control room.
I would also suggest that you consider the "interface" between the CR and LR, even if you don't plan to build that yet. By "interface", I mean the wall between them, probably with window(s) and door(s). Sight lines and access paths are important for the smooth operation of a studio, so I would plan all of that now (which basically means planning the CR as well.... you need to know where the mix position will be, and the speakers, and the client couch, and the gear....). Even if you will just build a blank wall there initially, you should still plan the final situation in advance, so when the time comes it will all work together nicely. For example, you could build that "blank" wall in such a way that it is already framed for the windows and doors to the CR, so when the time comes to build the CR it can be relatively simple to just take out a few parts of that wall, without needing to completely re-build it.
In other words, try to plan as far in advance as you can, even for the parts that you won't be building yet.
Smart move! You already have one leaf in place: the existing building shell is your outer-leaf, so all you need now is to build the inner-leaf. Or, if you plan to add some of those extra amenities (green room, bathroom, kitchenette, storage, machine room, etc.) then you could put that all in one section that is walled off from the actual studio, with an isolation wall closes off the actual studio from those non-isolated "service" areas.
One question about the roof: is that a vented deck roof? It looks like it might be. In other words, with vents under the eaves and at the ridge, so that air can circulate under the deck. If that's the case, then you'll have to do a three-leaf ceiling, but that's not a big deal in your case, as you have plenty of height to play with.
The first order of business should be to define how much isolation you need, then we can help you figure out the best way to get that.
Your basic plan is right: room in a room is the way to go, but there will be some isolation issues to consider. For example, the garage doors, isolation between the LR and CR, as well as between the complete studio and the rest of the house, and what you actually want to do with this studio, in terms of practical operations. If you do plan to rent it to strangers, then you'd probably want to consider the things I mentioned above: bathroom, kitchenette, storage, etc. You don't want strangest tramping around the kitchen in your house, to make coffee or warm pizza, and you don't want them messing up your bathroom. Those types of facilities on-site in the studio area itself are better for everyone: it completely separates the studio from the house, and makes things more pleasant for your clients, as well as for your family.
I would think through those things first, see if you want to do that, then put them into the plans tentatively, before you start defining the actual studio isolation plan.
It's a great space, with excellent potential! If you plan it carefully!
- Stuart -
That's a nice looking space you have there. From what I can see on the plans, it seems to be 30' long by 21'6" wide, which is nearly 650 square feet. Also, your roof seems to be nice and high: 12'4" at the walls, rising to 19' at the peak. So this place has the makings of a really, really nice studio.
Congratulations!
How is that built? It looks like 2x6 with OSB sheathing, then I image Tyvek, then siding? Is that about right?I added an addition to my existing attached garage, so far just the outer shell.
The roof seems to be similar, with raised tie scissor trusses, OSB, and asphalt shingles?
Those trusses are really nice for a studio; that allows you to get your final inner-leaf ceilings as high as possible.
All around, this is looking pretty good.
Just checking here: this entire room will be your tracking room? Nothing else going in this space? Maybe a small storage area, or kitchenette, or bathroom, or green room?I'm planning now to finish the inner section of addition which will be my tracking room
Also, I imagine this is for commercial purposes, right? You plan to charge musicians for tracking / rehearsing, etc. If so, have you checked for any ADA requirements for the building, such as wheelchair access, wide doors, and suchlike? Just something that you should look into, if it is going to be used commercially. Not a big deal in your case, as you have plenty of space and could easily make any changes that might be needed, since you are just in the early stages right now.
I will finish out the control room section in existing garage in the next phase.
I would also suggest that you consider the "interface" between the CR and LR, even if you don't plan to build that yet. By "interface", I mean the wall between them, probably with window(s) and door(s). Sight lines and access paths are important for the smooth operation of a studio, so I would plan all of that now (which basically means planning the CR as well.... you need to know where the mix position will be, and the speakers, and the client couch, and the gear....). Even if you will just build a blank wall there initially, you should still plan the final situation in advance, so when the time comes it will all work together nicely. For example, you could build that "blank" wall in such a way that it is already framed for the windows and doors to the CR, so when the time comes to build the CR it can be relatively simple to just take out a few parts of that wall, without needing to completely re-build it.
In other words, try to plan as far in advance as you can, even for the parts that you won't be building yet.
I want to build a 2 leaf wall system, room within a room.
One question about the roof: is that a vented deck roof? It looks like it might be. In other words, with vents under the eaves and at the ridge, so that air can circulate under the deck. If that's the case, then you'll have to do a three-leaf ceiling, but that's not a big deal in your case, as you have plenty of height to play with.
Have you figured out how much isolation you will need? Both in terms of the house itself (not disturbing your family), and also in terms of outside noises getting in. For example: Thunder, rain, hail, or wind. Aircraft or helicopters flying over. Sirens from ambulances / police / fire engines. Nearby trains. Cars arriving / leaving / driving past. Dogs barking outside. Lawnmowers. Loud radios/TVs. Also things inside the building or house itself, such as water running in pipes, fans, pumps and other motors, people walking on floors, doors closing, people talking, vacuum cleaners, washing machine,phones ringing, furnace.... There's hundreds of possible sounds that could destroy a good recording, or just annoy you as you try to concentrate. Isolation is a two-way street: You need to be thinking about sounds going in both directions, and set your goal to deal with the loudest one. The "loudest one" might well be your music going out, but it also might be something out there that you don't want to let in...my attached house is bigger concern. I attached plans & pics of the outer shell we did and the proposed plans for internal room. I'm hoping to get a confirmation from the experts here that I'm on the right path. Thank you for your time & expertise,
The first order of business should be to define how much isolation you need, then we can help you figure out the best way to get that.
Your basic plan is right: room in a room is the way to go, but there will be some isolation issues to consider. For example, the garage doors, isolation between the LR and CR, as well as between the complete studio and the rest of the house, and what you actually want to do with this studio, in terms of practical operations. If you do plan to rent it to strangers, then you'd probably want to consider the things I mentioned above: bathroom, kitchenette, storage, etc. You don't want strangest tramping around the kitchen in your house, to make coffee or warm pizza, and you don't want them messing up your bathroom. Those types of facilities on-site in the studio area itself are better for everyone: it completely separates the studio from the house, and makes things more pleasant for your clients, as well as for your family.
I would think through those things first, see if you want to do that, then put them into the plans tentatively, before you start defining the actual studio isolation plan.
It's a great space, with excellent potential! If you plan it carefully!
- Stuart -
- Soulshaker Studios
- Active Member
- Posts: 61
- Joined: Tue, 2019-Oct-01, 16:05
- Location: Richmond Virginia USA
Re: New Home Studio Build
Stuart, thank you for your thorough response!
Yes you are correct in the framing design of the build. The addition is the main LR. I do plan on making a small iso room around 8' X 10' within it in one of the corners. As far as storage I was going to use some of the existing garage for that and in the right rear corner there is existing plumbing with a sink so I am going to put small bathroom there. I do plan on finishing the wall between the LR & CR as you said. I've added a makeshift drawing of that. Thank you for the advice on wheelchair/disability access. I did not consider that. As far as the ceiling, yes it is vented with soffit/eave & ridge vent roof so I'm going to have a 3 leaf system in LR. I plan to fill entire scissor joists with R-38 insulation, using rafter vents to protect the airflow from soffit to ridge vent top. Then enclose the outer shell ceiling with 1 layer of 5/8' OSB and 2 layers of 5/8' sheetrock with green glue. The walls of outer shell I put 5/8' sheetrock between the studs so I could insulate & leave open for 2 leaf at least on walls. Does that make sense considering roof of shell? How do you copy quotes on this sight as you did in your last response so I can better communicate?
Thank you for your time & expertise,
Jason
Yes you are correct in the framing design of the build. The addition is the main LR. I do plan on making a small iso room around 8' X 10' within it in one of the corners. As far as storage I was going to use some of the existing garage for that and in the right rear corner there is existing plumbing with a sink so I am going to put small bathroom there. I do plan on finishing the wall between the LR & CR as you said. I've added a makeshift drawing of that. Thank you for the advice on wheelchair/disability access. I did not consider that. As far as the ceiling, yes it is vented with soffit/eave & ridge vent roof so I'm going to have a 3 leaf system in LR. I plan to fill entire scissor joists with R-38 insulation, using rafter vents to protect the airflow from soffit to ridge vent top. Then enclose the outer shell ceiling with 1 layer of 5/8' OSB and 2 layers of 5/8' sheetrock with green glue. The walls of outer shell I put 5/8' sheetrock between the studs so I could insulate & leave open for 2 leaf at least on walls. Does that make sense considering roof of shell? How do you copy quotes on this sight as you did in your last response so I can better communicate?
Thank you for your time & expertise,
Jason
- Attachments
-
- Webp.net-resizeimage-4.jpg (143.08 KiB) Viewed 62280 times
- Webp.net-resizeimage-4.jpg (143.08 KiB) Viewed 62280 times
- Soundman2020
- Site Admin
- Posts: 905
- Joined: Thu, 2019-Sep-19, 22:58
- Location: Santiago, Chile
- Contact:
Re: New Home Studio Build
Just a quick note: I moved the thread from the "design" area to the "construction" area, since your place is already going up.
I'll reply a little later in more detail....
- Stuart -
I'll reply a little later in more detail....
- Stuart -
- Soundman2020
- Site Admin
- Posts: 905
- Joined: Thu, 2019-Sep-19, 22:58
- Location: Santiago, Chile
- Contact:
Re: New Home Studio Build
There's several ways of replying to a post on this forum:How do you copy quotes on this sight as you did in your last response so I can better communicate?
1) There's a "quick reply" box right below the last post on the page, where you can just type in text and send it straight away, but there's no buttons for adding quotes, highlights, or images.
2) If you want more complete control of your post, then click on the "Full Editor & Preview" button under the Quick Reply box, and you'll get a different window, with a row of buttons across the top, for doing various fancy things with your text, such as changing the color, size, underling, italics, boldface, and you can also quote text,
by selecting it with the mouse then clicking the "Quote" button. There's other stuff you can do as well, if you want (centering, lists, subscripts, adding smilies, etc.), and you can also "drag and drop" attachments directly onto the text window. If you want, you can then insert the attachment at any point in the text by placing your cursor at the spot where you want it, then clicking the "Place Inline" button in the list of attachments, under the bottom of the text window.like this
3) You can also click on the "Post Reply" button at the top left of every page of posts: that will take you directly to the full editor
4) Finally, you can automatically quote a previous post and go directly to the full editor, by clicking on the quote-marks button at the top right edge of any previous post. You can then edit that as well, in case it was too long and you only really wanted a small part of it.
One other thing: even in the "Quick Reply" text box you can still use all the fancy text controls... as long as you know the codes for doing that! For example, you can put the characters "[ b ]" (the letter "b" with square brackets around it) to start boldface text, then "[ / b ]" the same thing, but with a slash sign before the b) at the end of the part you want in boldface. That still works in "Quick Reply", the same as in the full editor, except that there's no buttons on the page for doing that: if you happen to remember the codes, then you can jus type them manually, without needing to go to the full editor.
I have tried to make the forum flexible and simple to use (unlike other forums!), but please do let me know if there's something that you think could be improved. There's lots of stuff in the engine room of the forum that I can fiddle with, to try to make it better still.
----
OK, on to your questions and comments:
Great! Make it as big as you can afford, in terms of floor area and room volume. Many home studios have to make do with small iso booths, but very small booths always have a "boxy" sound to them, and there's not much you can do to fix that, acoustically. The bigger the booth is, the better it sounds. When you design that booth, also consider the layout, both practically and also acoustically. For example, make sure that the sight lines are good to the live room and also to the future control room! You do want to be able to see the vocalist from the control room while tracking, so double check that this will work. That's easy to do if you design everything in SketchUp: its very simple to check what you can see from any given point. And acoustically, lay out the room right for that too. In other words, don't have reflective surfaces behind where the vocalist will be standing; only in front. Keep it very absorptive behind the talent, where the mic is facing, perhaps with some light smooth non-numeric diffusion. Then a little reflection and absorption for the side walls, and your front wall (the one the vocalist faces, and where the BACK of the mic faces) can be more reflective... such as glass! It's important to plan the acoustics in advance, along with the practical issues, and the sight lines. By "practical issues", I mean things like the door doesn't knock over the mic or bump into the vocalist or instrument when you open it, and the mic cable doesn't cross over the doorway, where you could trip over it... and that there's no light glare on the window glass, preventing the vocalist from seeing out clearly. Studio design is as much about functionality as it is about acoustics and aesthetics.I do plan on making a small iso room around 8' X 10' within it in one of the corners.
Great! What about a small kitchenette too? Its good to have some place to make a cup of coffee or warm up yesterday's pizza, then wash the mugs and plates afterwards, without needing to run off to the kitchen.in the right rear corner there is existing plumbing with a sink so I am going to put small bathroom there.
One thing to be aware of when you build the isolation wall that closes off the actual studio area: do not put any plumbing on that wall! So if that would be one of the walls of the bathroom, make it blank, with nothing noisy on it. Keep the sink, toilet, shower (?) etc on the other walls.
Careful with that! You seem to be showing your inner-leaf walls directly connected to the outer-leaf! Are those joists at the top your outer-leaf? Or are they the inner-leaf ceiling? If that's the outer-leaf up there, then you have a problem.... The inner-leaf of each room is entirely independent from the outer leaf: no mechanical connections at all. Not even one single nail. Each room in your studio is a single-leaf stand-alone structure, with it's own walls and ceiling. All of the rooms sit within the outer shell of the building, which is your outer leaf. The only exception are the two end walls, that will seal off the studio section from the rest. At the entrance end, you'll have your lobby, bathroom, storage and maybe kitchenette, OUTSIDE of the studio area, then comes the isolation wall, which is really part of the outer leaf. At the other end you'll have the wall that closes of the studio towards the future control room, which will also be an isolation wall, and an extension of the outer leaf. In between those two end walls, is the actual studio space. In there, you will build one structure, which is the live room itself, and a second structure, which is the isolation booth. Each of those is stand-alone structure: framing for the walls and ceiling, with sheathing (OSB, drywall, etc) on only one side of the framing. The Live Room is one structure that stands up all by itself, without touching the outer leaf or the booth, and the booth is a separate structure that stands up all by itself, without touching the outer leaf or the live room.I do plan on finishing the wall between the LR & CR as you said. I've added a makeshift drawing of that.
When you eventually build the control room, you will remove that isolation wall at the end, build another isolation wall beyond the far end of the control room, then build the control room as yet another separate structure that stands up all by itself, without touching the outer leaf or the live room, or the booth. Each room is an independent thing, none of them touch each other, and they all stand inside the outer-leaf "shell".
That's what I figured. It's not a problem as long as you do it right, and your plan does, indeed, do it right!As far as the ceiling, yes it is vented with soffit/eave & ridge vent roof so I'm going to have a 3 leaf system in LR.
I plan to fill entire scissor joists with R-38 insulation, using rafter vents to protect the airflow from soffit to ridge vent top. Then enclose the outer shell ceiling with 1 layer of 5/8' OSB and 2 layers of 5/8' sheetrock with green glue.
The walls of outer shell I put 5/8' sheetrock between the studs so I could insulate & leave open for 2 leaf at least on walls.
How did you attach the drywall to the underlying OSB? The correct method is to use cleats around the edges to hold it up against the OSB, and nail those cleats sideways into the joists, but I don't see those in your photo. The reason for that is to avoid nails or screws in the drywall itself, so it is free to flex and bend from sound waves acting on it. If you already nailed it, then its too late to undo that, but for that wall it doesn't matter too much, since it will just be your outer lobby/bathroom/kitchenette wall, so it's not a big deal. But for the other walls, I'd suggest doing it with cleats and caulk. Using Green Glue in between would help too: it gives you a lot of improvement in isolation.
Thank you for your time & expertise,
- Stuart -
- Soulshaker Studios
- Active Member
- Posts: 61
- Joined: Tue, 2019-Oct-01, 16:05
- Location: Richmond Virginia USA
Re: New Home Studio Build
This drawing you were refering to is of the inner leaf. It is not connected to the outer leaf at all. I added a makeshift drawing of leafs.Careful with that! You seem to be showing your inner-leaf walls directly connected to the outer-leaf! Are those joists at the top your outer-leaf? Or are they the inner-leaf ceiling? If that's the outer-leaf up there, then you have a problem.... The inner-leaf of each room is entirely independent from the outer leaf: no mechanical connections at all. Not even one single nail. Each room in your studio is a single-leaf stand-alone structure, with it's own walls and ceiling. All of the rooms sit within the outer shell of the building, which is your outer leaf.
How did you attach the drywall to the underlying OSB? The correct method is to use cleats around the edges to hold it up against the OSB, and nail those cleats sideways into the joists, but I don't see those in your photo. The reason for that is to avoid nails or screws in the drywall itself, so it is free to flex and bend from sound waves acting on it. If you already nailed it, then its too late to undo that, but for that wall it doesn't matter too much, since it will just be your outer lobby/bathroom/kitchenette wall, so it's not a big deal. But for the other walls, I'd suggest doing it with cleats and caulk. Using Green Glue in between would help too: it gives you a lot of improvement in isolation.
I used sheetrock screws into the sheetrock & OSB. I do plan to caulk it with OSI SC175 acoustical sealant.I did this in the entire Live room outer shell. Sounds like I didn't do it the best way. Do You think this Ok?
- Soundman2020
- Site Admin
- Posts: 905
- Joined: Thu, 2019-Sep-19, 22:58
- Location: Santiago, Chile
- Contact:
Re: New Home Studio Build
This drawing you were refering to is of the inner leaf. It is not connected to the outer leaf at all. I added a makeshift drawing of leafs.
It's better to not screw through the drywall "in the field" if it can be avoided, as that tends to limit the freedom of movement of the layers. The idea is that the layers can move independently of each other, "sliding over" each other as they move with the sound waves. That improves isolation, even more so if you have Green Glue in between. By screwing them together, then act more like one single layer, rather than two layers.I used sheetrock screws into the sheetrock & OSB. I do plan to caulk it with OSI SC175 acoustical sealant.I did this in the entire Live room outer shell. Sounds like I didn't do it the best way. Do You think this Ok?
If you already did it, then that's OK, but if there's places where you haven't done that yet, I'd do it the other way: use small cleats to hold the drywall in place, and nail them sideways into the studs.
That's fine. It's good stuff, just a bit messy to work with. If you already bought that, then excellent, but if not then you could also use any good quality bathroom or kitchen caulk. The type that is flexible and non-hardening: it remains soft and rubbery, even after it is fully cured. That is fine for most sealing in studio construction, and it is usually a bit cheaper than proper acosutic sealant.I do plan to caulk it with OSI SC175 acoustical sealant.
Sorry for the delay in replying: I've been real busy trying to finish up a project for a tight deadline... which was yesterday, and it is finished! So I've been a bit slow on replying to some threads. Sorry about that!
- Stuart -
- Soulshaker Studios
- Active Member
- Posts: 61
- Joined: Tue, 2019-Oct-01, 16:05
- Location: Richmond Virginia USA
Re: New Home Studio Build
Thanks for all the advice Stuart. I've framed up my inner walls in my LR. I'm getting ready to insulate with R13 and put 2 layers of 5/8" sheetrock with green glue in between. Should I use unfaced insulation or do I need faced and if so which side would the faced go? I included some pics.
- Attachments
-
- IMG_2927.jpg (31.76 KiB) Viewed 61963 times
- IMG_2927.jpg (31.76 KiB) Viewed 61963 times
-
- IMG_2930.jpg (33.47 KiB) Viewed 61963 times
- IMG_2930.jpg (33.47 KiB) Viewed 61963 times
-
- IMG_2931.jpg (62.32 KiB) Viewed 61963 times
- IMG_2931.jpg (62.32 KiB) Viewed 61963 times
-
- IMG_2933.jpg (64.25 KiB) Viewed 61963 times
- IMG_2933.jpg (64.25 KiB) Viewed 61963 times
-
- IMG_2934.jpg (68.85 KiB) Viewed 61963 times
- IMG_2934.jpg (68.85 KiB) Viewed 61963 times
- Soundman2020
- Site Admin
- Posts: 905
- Joined: Thu, 2019-Sep-19, 22:58
- Location: Santiago, Chile
- Contact:
Re: New Home Studio Build
What does your local building code say about vapor barriers (sometimes also called "vapor retarder")? Depending on climate, you might need a vapor barrier... or maybe not. The "facing" on the insulation is a vapor barrier. If you do need it, then that would go on the inner-leaf studs, with the facing towards the room. In other words, you'll staple up the faced insulation flanges or flaps onto the front face of the studs, then put the drywall directly over that. Vapor barriers always go on the surface that will be warmest in winter, so you would not put it up against the outer wall, for example.Should I use unfaced insulation or do I need faced and if so which side would the faced go?
Also, you must never have two vapor barriers inside the wall: only ever one. So don't put faced insulation on both sets of stud framing! Only on the inner-leaf. And don't also use a plastic sheeting vapor barrier, in addition to the faced insulation: one or the other, not both.
So first you'll have to find out if you are required to have a vapor barrier in your wall, or even if it is recommended for your local climate: Check your local code, talk to the inspector, talk to local contractors, and find out what you need. If there's no need for a vapor barrier, then just use unfaced insulation. If you do need a vapor barrier, then you'll have to decide of you prefer to use faced insulation for that, OR if you prefer to use plastic sheeting.
Regardless of what you do on the inner-leaf, you also need to completely fill the rest of the wall cavity with insulation, as I mentioned before. So first install plenty of pink-fluffy or mineral wool insulation into the stud bays for the outer leaf, and also the gap between the two frames, then put up your insulation (faced or unfaced) on the inner leaf studs. Then the drywall.
There's an easy way to install the drywall and still get excellent seals under the bottom: lay down some thin shims on the floor, up against the sole plates (maybe 1/8" - 1/4" thick), then rest the bottom edge of the drywall on those. Nail it in place, then pull out the shims. You now have the perfect size gap under there for caulking, to get your seal!
Also stagger the second layer in another sense: move the second layer over by one stud, so that the joints between panels in the second layer do not line up with the joints between panels in the first layer. Once again, that improves isolation by ensure that no two weak points are in the same place.
Lots of stuff to think about, to optimize isolation!
- Stuart -
- Soulshaker Studios
- Active Member
- Posts: 61
- Joined: Tue, 2019-Oct-01, 16:05
- Location: Richmond Virginia USA
Re: New Home Studio Build
Thanks Stuart, thats a great idea shimming the bottom of the sheetrock to create a gap for calking! So you think just using acoustical calling is fine in those gaps or should I ad backer rod then caulk? Yes I plan to stagger all joints in the ways you specified. Luckily I have done my share of sheetrock jobs so I understand.
- Soundman2020
- Site Admin
- Posts: 905
- Joined: Thu, 2019-Sep-19, 22:58
- Location: Santiago, Chile
- Contact:
Re: New Home Studio Build
Yes, you are right: backer rod plus caulking is better, of course. Adjust the size of the shim for whatever size of backer rod you happen to have around, but hopefully around 1/8" to 3/8". Not thicker than that, for reasons I'll explain below...
Also, and I think I mentioned this before, but you don't really need to buy the expensive acoustic caulk here: I mean, you can if you want, but ordinary kitchen and bathroom caulk works very well here, and is a bit cheaper. You can use any caulk that meets these characteristics:
1) It sticks like crazy to the materials you plan to use it on.
2) It never hardens, and remains flexible, soft and "rubbery" even when it is fully cured.
3) It does not shrink as it cures.
4) It does not crack as it cures.
I've had good success with a product called "Sikaflex 11-FC", which seems to be available in most countries around the world. It is both caulk and also adhesive, so it sticks like you wouldn't believe. I've used that on many studios, and never had a problem with it. But if you can't find that where you live, then buy one tube each of whatever you can find in your area, and do some tests with each one, to find the one that best fits the above criteria.
If you have a choice between transparent caulk and colored caulk, always get the colored one: it doesn't matter which color, just not transparent. The reason is simple: the transparent stuff has no pigments in it, so it is much lighter (lower density). The colored stuff does have pigments, which makes it a bit more than twice as dense as drywall. So you can get the same surface density as drywall with a bead of caulk just half the thickness of the drywall panel! Thus, you can have 1/4" backer rod in that gap under your 5/8" drywall, then 3/8" caulk, and you'll have more mass than the drywall! You can even have 3/8" backer rod and only 1/4" caulk, and still get the same mass as the drywall.
- Stuart -
Also, and I think I mentioned this before, but you don't really need to buy the expensive acoustic caulk here: I mean, you can if you want, but ordinary kitchen and bathroom caulk works very well here, and is a bit cheaper. You can use any caulk that meets these characteristics:
1) It sticks like crazy to the materials you plan to use it on.
2) It never hardens, and remains flexible, soft and "rubbery" even when it is fully cured.
3) It does not shrink as it cures.
4) It does not crack as it cures.
I've had good success with a product called "Sikaflex 11-FC", which seems to be available in most countries around the world. It is both caulk and also adhesive, so it sticks like you wouldn't believe. I've used that on many studios, and never had a problem with it. But if you can't find that where you live, then buy one tube each of whatever you can find in your area, and do some tests with each one, to find the one that best fits the above criteria.
If you have a choice between transparent caulk and colored caulk, always get the colored one: it doesn't matter which color, just not transparent. The reason is simple: the transparent stuff has no pigments in it, so it is much lighter (lower density). The colored stuff does have pigments, which makes it a bit more than twice as dense as drywall. So you can get the same surface density as drywall with a bead of caulk just half the thickness of the drywall panel! Thus, you can have 1/4" backer rod in that gap under your 5/8" drywall, then 3/8" caulk, and you'll have more mass than the drywall! You can even have 3/8" backer rod and only 1/4" caulk, and still get the same mass as the drywall.
- Stuart -
- Soulshaker Studios
- Active Member
- Posts: 61
- Joined: Tue, 2019-Oct-01, 16:05
- Location: Richmond Virginia USA
New Home Studio Build
Thanks Stuart for all your suggestions & knowledge. I've almost completed the inner shell in my tracking room and getting ready to start building my control room. I'm looking at some different plans for the control room but have a few other things that I'm unsure of. I've included some pics to illustrate. My questions are,
1) I know the outer leaf is supposed to be insulation facing insulation of inner leaf and it is throughout entire build but can I hang drywall on the walls just in the foyer for cosmetic purposes?
2) The concrete slab that was poured for the addition (tracking room) has a small expansion joint between it and the existing room (control room) but its not very wide. Should I get a concrete saw and make a better cut to keep from coupling?
3) Do I need to finish out the wall of the outer shell where there used to be the old garage door? Its the wall in-between the 2 rooms. If I finish this wall out technically there will be 3 walls there. I would need 3 pieces of glass for window as well. I'm really confused on what I should do here. Thanks again for your time & expertise.
-Jason-
1) I know the outer leaf is supposed to be insulation facing insulation of inner leaf and it is throughout entire build but can I hang drywall on the walls just in the foyer for cosmetic purposes?
2) The concrete slab that was poured for the addition (tracking room) has a small expansion joint between it and the existing room (control room) but its not very wide. Should I get a concrete saw and make a better cut to keep from coupling?
3) Do I need to finish out the wall of the outer shell where there used to be the old garage door? Its the wall in-between the 2 rooms. If I finish this wall out technically there will be 3 walls there. I would need 3 pieces of glass for window as well. I'm really confused on what I should do here. Thanks again for your time & expertise.
-Jason-
- Attachments
- Starlight
- Full Member
- Posts: 482
- Joined: Wed, 2019-Sep-25, 12:52
- Location: Slovakia, Europe
- Contact:
New Home Studio Build
That is looking great, Jason. I am so pleased to be seeing such excellent progress.
- Soulshaker Studios
- Active Member
- Posts: 61
- Joined: Tue, 2019-Oct-01, 16:05
- Location: Richmond Virginia USA
New Home Studio Build
Thanks Starlight!! Its been a lot of hard work and I've learned a lot. Cant wait to finish and make some music.
-Jason-
-Jason-
-
Purelythemusic
- Full Member
- Posts: 156
- Joined: Sat, 2019-Oct-12, 18:39
- Location: England - Bristol
New Home Studio Build
Yes it is looking great!
Where you have the old garage door section, does it need to isolate between the 2 rooms? Must do surely? Do you have a quick sketch as I’m finding it hard to envisage...
Where you have the old garage door section, does it need to isolate between the 2 rooms? Must do surely? Do you have a quick sketch as I’m finding it hard to envisage...
- Success in music is being able to make music whatever your situation -
-
- Similar Topics
- Statistics
- Last post
-
-
Multi-purpose Music/Home Theater/Recording Studio Attachment(s)
by goodwater » Sun, 2025-Jan-12, 18:39 » in RECORDING STUDIO DESIGN -
Replies: 47
Views: 140059 -
by gullfo
View the latest post
Sun, 2025-Nov-02, 16:20
-
-
-
Multi-purpose Music/Home Theater/Recording Studio Attachment(s)
by goodwater » Fri, 2025-Mar-14, 18:43 » in RECORDING STUDIO CONSTRUCTION -
Replies: 38
Views: 52402 -
by gullfo
View the latest post
Wed, 2025-Dec-10, 20:26
-
-
-
Replies: 5
Views: 59251 -
by gullfo
View the latest post
Tue, 2025-Apr-15, 17:55
-
-
New build with light gauge steel framework Attachment(s)
by seaweednylon » Thu, 2025-Mar-20, 06:38 » in RECORDING STUDIO CONSTRUCTION -
Replies: 3
Views: 11420 -
by gullfo
View the latest post
Thu, 2025-Mar-27, 12:20
-
Who is online
Users browsing this forum: Google [Bot] and 9 guests