If I do normal construction, there will be 1 layer of OSB and a second layer of 5/8" fire rated drywall with green glue between them. I like your idea of not having to search for a stud to hang things.
If I do inside out construction, it will just be 2 layers of 5/8 fire rated drywall with GG.
It's a good idea to do the OSB in any case: it provides sheer strength for the wall, which drywall doesn't do very well.
I'm guessing the OSB should be 5/8 as well?
Right. The thicker it is, the more mass it has, and that's good for isolation.
I have a pair of the original Event 20/20 BAS from about 2002. Dimensions are approx. 10"W x 12"D x 14.5"H. I know them very well but they are pretty old. If budget allows at the end of the build I may upgrade them to either the Focal Solo6 or the HEDD Type 20, depending on $ left. How much space would I need for the Hedd? It's not much bigger than the events but its oriented differently. 14"W x 13"D x 11"H. That being said, I'm probably going to inch the wall back anyway to give me about 3' in front of the door.
Once you decide on the speakers, let me know and I'll plug the dimensions into a tool I created to help in designing soffits. It shows how things will work out for any specific size of speaker, along with a few other dimensions.
While we're on the subject of monitors, what's your feeling about subs?
I love 'em!

OK, maybe "love" is a bit strong, but I do often use subs in studios. The reasons for that are:
1) If the mains don't go down very low, and need some help.
2) Using subs meas you can do a better job of isolating the mains, since the mains won't be putting out very low frequencies.
3) Subs can help a lot with some modal issues, as well as SBIR and a few other things.
I was always under the impression they were for hype and had no place in a critical listening environment.
It depends on how well they are integrated. If the mains already go down low, and the room is very well treated for the low end, then subs might not be needed. But they can improve things a lot, if they are installed right.
The decision should be based mainly on what your speakers are capable of, what your music needs, and what your room needs. Your Event 20/20s go down to about 35 Hz, which is pretty good, so with those you might not need subs to cover the spectrum well... but you might still benefit from theme for other reasons.
For example, in a room that still has low-end modal issues even after treatment, I use a pair of subs set up as a "plan wave bass array" (sometimes also called a "double bass array"). That's a special setup where the subs work together with the room to kill modal issues, or at least greatly reduce them. You need two subs to do that, and a careful process to place them correctly and tune them correctly, but the results can be very good. You can also use a sub (or two) to deal with SBIR. So it's not just for show or hype: they can be very useful, if done right.
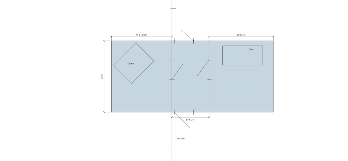
Sometime you become so intent on solving a problem, that the simple solution just escapes you. Once I saw your drawing it was obvious. Perfect solution!
At the rear of the room the ceiling will slope back down (from flat) somewhat due to the hip roof construction. However that slope should only be about 2' at most and that's probably about how deep the bass traps will be at the back, so it shouldn't be a big deal right? See SKP & JPG below for how the main roof of the house sits over the garage:
Hmmm.... you might be able to get away with that, but it's going to need some tricky treatment up there, to keep it all under control.
OR.... should I flip the control room around to face away from the sliding glass door? I was thinking about it and if we did it that way the roof could probably start low, but get even higher as it heads to the booth.
You could do that, but then you end up with a reflective rear end in your room. The big glass doors to the booth... That's would really complicate things...
Also, if I were tracking a live band: drums in the booth, guitar and bass direct in the CR and vocal in the CR, they could all be much closer to each other rather than looking over me and the desk to the drummer in the booth.
There's a lot of glass in those doors: should be enough room for everyone to see each other, even if you are in the way. Assuming you have a low-profile desk, that would improve visibility even more.
Also would make running the cables from the desk to the booth cleaner as they wouldn't have to pass on the ground in some kind of track where people will be walking to go in and out of the booth.
The cables to the booth should be done through the walls, not on the floor. The simplest method is to just put in an ordinary snake, with the stage box attached to the wall in the booth and the other end hard-wired into your desk, to the console, DAW, patchbay, etc. The cable itself runs through the walls, and ideally through the floor too.
Ditto for the CR itself, if you plan to do a lot of tracking in there. Run a snake to the rear of the room, with the stage box on the side wall, and the cable itself hidden in the wall, running to the desk. Keep the floor clear of cables as much as possible.
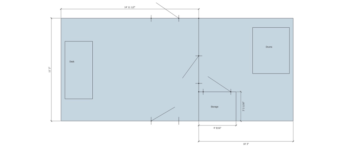
Only issue I see is a 5' glass wall dead center of the rear mixing room wall.
Yup! That is, indeed, a big issue!
1. Inside out walls, just to confirm my suspicions, there is no need to tape and mud the drywall if it is going to be installed interior, correct? Just acoustic caulk the seams and make sure the 2 layers are staggered?
Correct. You could mud and tape if you wanted to, but there's no need. Staggered joints and good caulking will do the job just fine.
2. The insulation in the wall cavities, pink fluffy is fine? Rockwool and/or OC 703 are used for the treatments? Or would it be better with Rockwool or OC 703 in the walls as well? Is there a reason to use one over the other or are they interchangeable? (OC seems to be much more expensive.)
They type of insulation doesn't really matter that much, acoustically: either fiberglass or mineral wool will do the job. What matters is the rather obscure parameter called "gas flow resistivity", or GFR, which is measured in the even more obsucure units of MKS rayls!. That's a measure of acoustic impedance, actually, and describes how the material reacts to sound. But you don't need to worry too much about what that all means (unless you really want to know). The problem is that manufactures of insulation don't usually even bother to measure that, as it has no meaning for the main use of their product: thermal insulation. It only matters to us crazy folks who want to build recording studios using their insulation! Fortunately, there are "rules of thumb" for estimating GFR for different types of insulation, using the density of the insulation. So you'll often see recommendations to use "3 PCF mineral wool", for some acoustic device, or maybe "20 kg/m3 fiberglass" for another device.
OK, you can actually ignore most of the above!

It's just a brief explanation to help you understand the issue a bit. Basically, you can use either mineral wool or fiberglass in your walls. If mineral wool, then something with a density of around 50 kg/m3 is fine, which is about 3 pcf (Pounds per Cubic Foot). If fiberglass, then go with something around 30 kg/m3, which is roughly 2 pcf. Anything in that ball park will do the job.
One other issue here: mineral wool stands up to water a lot better than fiberglass insulation does. If fiberglass gets wet, it gets soggy, sags, and crumples a bit. If mineral wool gets wet, nothing happens except that it is wet!

. Fiberglass does not recover when it dries out: it stays in its saggy, crumpled state. Mineral wool dries out, and is fine. So if your insulation might get wet while you are building, then go with mineral wool. It is also more fire resistant that fiberglass.
Now, when it comes time to treat your room acoustically, then you'll need to be more discerning: density, GFR, and type of insulation can be more important when designing treatment.
3. Back to inside out walls. It worries me some that all the walls will end up being fabric. I see guitar headstocks catching and ripping it, musicians leaning guitars against it, or leaning themselves right through it! What has been your experienece with the durability?
Simple! Never allow a musician with an instrument in your room!
Ok, on a more serious note: I use tough fabric, such as the type that is used to make upholstery, couches, chairs, etc. Or speaker grill cloth. That stuff can take a beating, and not get damaged. I also try to lay out the room so that people don't need to be close to vulnerable areas, and I use wood slats, trim, or other things to protect some places where damaged is very likely, such as directly behind the couch, or close to doorways.
In fact, with an inside-out wall, there's usually not much surface left that is just plain fabric after the room is fully treated. Considering that surrounding your entire room with thick insulation makes it pretty dead acoustically, there's a need to put a lot of reflective surfaces around the room to bring it back to life. Careful placement of such surfaces not only tunes the room acoustically, but also protects the fabric.
Also, look at the below picture of inside out construction.
That's a pretty old picture, from way back. It's done a bit different today. Acoustics has advanced a lot since that image was made, and acousticians today use more modern techniques. For sure, the floor would not be done that way! That's very old-school, and would not work well, for many reasons.
The 75mm insulation needs to be Rockwool or OC 703 for treatment.
It could also be other things, depending on what you needed to do acoustically. Completely filling he cavity of a Helmholtz resonator like that can be counterproductive: it can over-damp the very resonance that you need in order to make it work! So you might or might not need 75mm of insulation, and it might or might not need to be 703, or one of the Rockwool products. Rockwool is a brand name, and they make many different products, with different characteristics and purposes. So if someone tells you to "use Rockwool for that", then first ask them. "Which one?"!
Does the 50mm insulation between the walls also need to be? Or again, is pink fluffy ok there?
As above: If you use mineral wool (Rockwool products are mostly mineral wool), then something with a density or around 50 kg/m3 (3 pcf) would be fine, and if you use fiberglass, then 30 kg/m3 (2 pcf) would be fine. If you use another type of insulation, such as polyester, or cotton, or wool, or denim, or cellulose, then the density would need to be different in each case, since each TYPE of insulation has different GFR properties.
And does there need to be a space so that it doesn't touch the exterior wall studs or insulation?
No. There should never be a gap. That's one of the things that is wrong with that image. The entire cavity should be filled with insulation, and it can (and should) touch both surfaces. It can be compressed just a little if you have to, but it's better to not compress it. So if you have 6" of depth in your cavity, then use 6" thickness of insulation.
There are several reasons for this "rule", but the two big ones are that the insulation slows down the speed of sound (or more correctly: the speed of sound in insulation is lower than it is in air), so the cavity seems to be deeper than it really is, to the sound waves. They "feel" like they are traveling a longer distance than the actual depth of the cavity, which is good. The second reason is that the insulation changes the way the air deals with heat, from "adiabatic" to "isothermal". I won't go into the technical details, but basically "isothermal" is more efficient at removing sound energy. So, filling the cavity completely means that all of the cavity slows down the sound wave, and all of the cavity removes energy more efficiently. If you leave an air gap, you are wasting that space! Even worse, the air gap itself can, under some circumstances, resonate, and that would rob you of isolation. So the diagram is wrong. That's the way things were done 40 or 50 years ago, before these things were widely understood well. But today, there is better understanding, and there are are better methods that are more effective.
Do you even need that 50mm insulation if the outside wall it's facing is already a single leaf insulated stud wall and not external block like shown?
Yes, you always need the insulation in the cavity. It acts as an acoustic damper on all the resonances that would otherwise occur in there. It's a major part of the isolation system. Very necessary.
4. I assume it would be ok to mix and match the inside out and standard construction methods?
Yep! No problem.
I'm thinking the back wall and front wall of the control room would be standard, since they're going to get thick bass traps in the rear and speaker soffits in the front,
I would still do the front and back inside-out, as it gives you extra space. For example, at the front you get more space inside the soffit, so you could have a larger speaker....

the side walls of the CR and all 4 walls of the booth as inside out, the closet as standard,
and the ceiling standard,
You can gain a lot of height by doing the ceilings inside out...

Take a look here:
http://www.digistar.cl/Forum/viewtopic.php?f=12&t=50 as all the angles in the ceiling are going to make inside out difficult.
It should be possible to adapt the inside-out technique to an angled ceiling. I haven't done that (yet!), but I think it it is feasible. It would just be a bit harder to raise the modules.
5. The bass traps in the rear, most everything I see says 2 feet thick, is that correct? Should I allow for more if I have the room? Is that just the corners or the entire wall?
Two feet is bare minimum! I often use three feet in the corners, or more, and two feet in the middle. A "standard" Superchunk corner trap runs three feet down the side wall and three feet across the rear wall, for example. So definitely, if you have more space then use it. The deeper the better. The defining characteristic is the lowest axial mode f the room: you need to make your bass traps deep enough to damp that effectively. So figure out what the wavelength of the lowest mode will be, multiply that by 0.07, and that's the minimum thickness you should consider for your rear corner bass traps: For example, if you figure out that your lowest mode is going to be 35 Hz, the wavelength for that is 32 feet, times 0.07 = 2.24 feet. So 27 inches, minimum.
6. Speaking of cables above, the electrical cables and the audio cables will be running through the attic and dropping down the walls. What's the usual method? Drill holes through the top plate to drop down the cable? Then caulk it? Or should I try to drop them between the inner and outer walls?
Here's how I usually do wall penetrations for cables:

- Conduit-isolation-1-SML-ENH.png (217.77 KiB) Viewed 50717 times

- Conduit-isolation-1-SML-ENH.png (217.77 KiB) Viewed 50717 times
Use PVC conduit Bend it to an "S" shape with gentle curves, with the ends far apart, so the holes in the two leaves do not line up. For high isolation cut out an inch or so in the center, and wrap it with rubber. Hold in place with tie-wraps, and seal with duct tape. Pull the cables through, then plug both ends with insulation poked down deep into the conduit, and seal with a generous blob of caulk.
7. Looking ahead to HVAC. Confirm this for me, mini splits and/or central AC do not provide fresh air.
Right! The vast majority of minis-splits do no, by themselves, provide any ventilation air. I'm only ware of two models that do provide a small mount of air, but way, way short of what a studio needs.
A ventilation system of some sort to remove and replace the air (6 times per hour I think it was?) will be required for airtight construction.
Right! Sort of....

This gets to be a bit complex. You need to circulate the entire volume of air in your room six times per hour (once every ten minutes), to ensure good cooling, good mixing, etc. And you ALSO need to bring enough enough fresh air to provide the oxygen that you need to stay alive, while ALSO removing the same amount of stale air, full of CO2 that you exhaled, and other nasty stuff. But you DON'T need to replace all of the air six times per hour! You only need to smaller amount of fresh air/stale air ventilation, not all of it. I mean, you CAN do all of it if you want, but that's not efficient. It costs you money to cool or heat the outside the air that is coming into the room, and if you ten dump that air out again ten minutes later... that means you dumped all the money you spent heating or cooling it! hmm... not very efficient! It would be better to keep conditioned air around for as long as possible, until it really needs to go. It turns out that, for most climates, you only need to replace about 20% to 30% for the room air with each cycle.
So there's TWO things going on: one is that you are circulating a lot of air through the room, and the other is that you are taking out some of that and replacing it with fresh air.
For a typical room, the re-circulation rate might be 200 CFM (Cubic Feet per Minute), but you might only need 50 CFM of fresh air. So the HVAC system for that room would need to do both: circulate 200 CFM around the room AND ALSO bleed off 50 CFM to dump overboard, and replace that with 50 CFM of fresh air.
It's actually a bit more complex than most people realize. It takes a bit of math to figure out, and some attention to detail in the planning.
If you want to see how it is done, then we are doing that right now on Tom's thread:
http://www.digistar.cl/Forum/viewtopic.php?f=6&t=32 He's at the stage right now where w are discussing his HVAC system, so you might want to follow along, and pick up some tips on how to do the same thing in your place.
A through the wall unit (if I wanted to make the closet an exchange chamber) would provide fresh air, but it would need to be running all the time? Not very efficient I would think.
Right! I'm not a big fan of the "exchange chamber" concept, and even less of a fan of through-the-wall systems. They are noisy, and inefficient! Use only the "mini-split" type of system, along with a ventilation system. In Tom's case, we are going to do it with a ducted mini-split system, that combines both concepts into one single system. It is also possible to use a ductless mini-split system, which only does the circulation, and a separate ventilation system, to provide fresh air an remove stale air. Both ways are valid, both work. I prefer ducted, as it is more effective and more efficient.
I think that's all I have for now. Thanks again Stuart! I'm really getting excited that it's taking shape!
PS: I met with a contractor who came up with the idea to build a fake garage door out of wood. From the front it will look just like a garage door but the interior will be a solid wall, which buys me back 5" or so in the front! Which I can shift to the space for speaker soffits! And the contractor plays bass in a local band, so although he's never built a studio, he gets the importance of doing it just right!
Cool! If he can pull that off, with good mass and seals, making it look like an ordinary garage door, that would be great! 5" extra room length would be very useful.
- Stuart -