quail, Joshua Tree, CA

Studios designed and built by forum members, that are now fully complete and operational!
athnony
New Member
Posts: 8
Joined: Tue, 2020-Sep-22, 06:10
Location: Joshua Tree, CA, USA

quail, Joshua Tree, CA

#1

Postby athnony » Wed, 2025-Apr-09, 01:54

Hi all. It's been a while - almost 5 years since I last posted about my "desert dream studio" plans and design. I'm so, so happy to share that it's complete and far beyond what i could've imagined. I present my happy little home studio, quail.

20250316_145232.jpg

20250316_145301.jpg

20250319_082936.jpg

20250319_083010.jpg


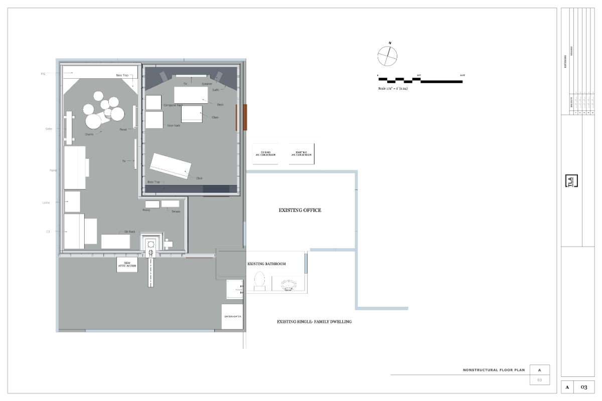
I wound up going with a simpler construction setup - something i was very grateful for, especially in the framing/drywall phases. This ended up being design version 5.3.

00_plans3.png

00_plans4.png


Mixes have been translating very, very nicely and i feel like i can hear more detail that i ever have before. It's even a problem sometimes, especially if we're just trying to lay something down but the tones are not perfect. I'm guessing those nulls around 100Hz+330Hz have something to do with the desk, but they honestly haven't caused any issues.

01_REW 6-2 waterfall.png

01_REW 6-2 spectogram.png


The mix room for the past three years have had PMC twotwo6s installed with a Genelec sub, but as you can see above I recently upgraded to PMC 6-2s with a larger PMC sub. Here's a look at before i started hacking away at the soffits:

20250314_182347.jpg


I have to say thank you, so incredibly much, to everyone here who shared their expertise, experience, encouragement, and knowledge. Stuart, if you read this, thank you for creating this online space. I learned so much from y'all and have been so fortunate to have the opportunity to make this dream happen.

I detailed the build process a little more on my website.. I'm not sure what the rules are for linking personal sites, but please let me know if you'd like me to pull the link: https://www.anthonyplopez.com/studio.

Again, thank you all. Wishing you the best with your studios and builds!



Who is online

Users browsing this forum: No registered users and 9 guests